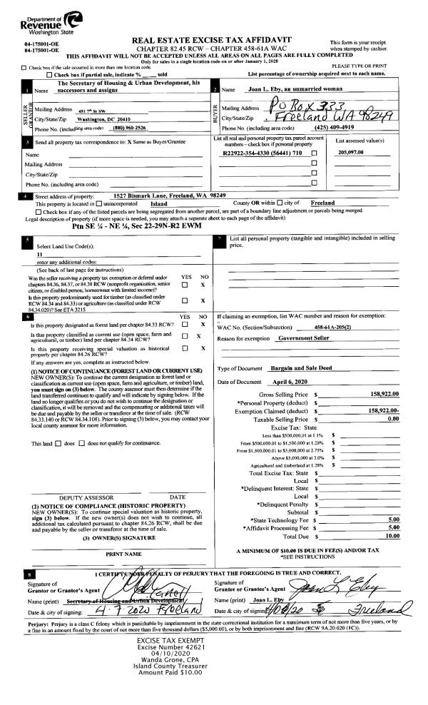
Property
Account |
| Property ID: | 430126 | Abbreviated Legal Description: | WHID SH LOT 131 LY N & S TR D |
| Geographic ID: | S8425-00-00131-1 | Agent Code: | |
| Type: | Real | | |
| Tax Area: | 710 - APPRAISER-S Whid Schl Dist, outside Langley, improved & 1 acre or less | Land Use Code | 11 |
| Open Space: | N | DFL | N |
| Historic Property: | N | Remodel Property: | N |
| Multi-Family Redevelopment: | N | | |
| Township: | | Section: | |
| Range: | |
Location |
| Address: | 2025 EASTPOINT DR LANGLEY, WA 98260 | Mapsco: | |
| Neighborhood: | Cycle 3 | Map ID: | 371 |
| Neighborhood CD: | 3 |
Owner |
| Name: | ELLIS, JEFFREY R | Owner ID: | 309921 |
| Mailing Address: | MELINDA FURRER 932 GLENHAVEN DR EVERETT, WA 98203 | % Ownership: | 100.0000000000% |
| | | Exemptions: | |
Taxes and Assessment Details
Values
| (+) Improvement Homesite Value: | + | $0 | |
| (+) Improvement Non-Homesite Value: | + | $139,162 | |
| (+) Land Homesite Value: | + | $0 | |
| (+) Land Non-Homesite Value: | + | $650,000 | |
| (+) Curr Use (HS): | + | $0 | $0 |
| (+) Curr Use (NHS): | + | $0 | $0 |
| | | -------------------------- | |
| (=) Market Value: | = | $789,162 | |
| (–) Productivity Loss: | – | $0 | |
| | | -------------------------- | |
| (=) Subtotal: | = | $789,162 | |
| (+) Senior Appraised Value: | + | $0 | |
| (+) Non-Senior Appraised Value: | + | $789,162 | |
| | | -------------------------- | |
| (=) Total Appraised Value: | = | $789,162 | |
| (–) Senior Exemption Loss: | – | $0 | |
| (–) Exemption Loss: | – | $0 | |
| | | -------------------------- | |
| (=) Taxable Value: | = | $789,162 | |
Taxing Jurisdiction
| Owner: | ELLIS, JEFFREY R | | |
| % Ownership: | 100.0000000000% | | |
| Total Value: | $789,162 | | |
| Tax Area: | 710 - APPRAISER-S Whid Schl Dist, outside Langley, improved & 1 acre or less |
| CF | Conservation Futures | 0.0316035091 | $789,162 | $789,162 | $24.94 | | |
| FIRE3 | Fire & Rescue Dist #3 S Whidbey GEN | 1.2004855531 | $789,162 | $789,162 | $947.38 | | |
| HOBOND | Hospital BOND | 0.1910887512 | $789,162 | $789,162 | $150.80 | | |
| HOGEN | Hospital GEN | 0.3902502903 | $789,162 | $789,162 | $307.97 | | |
| CE | County Current Expense | 0.3708482477 | $789,162 | $789,162 | $292.66 | | |
| CR | County Roads | 0.4584763726 | $789,162 | $789,162 | $361.81 | | |
| ISLANDEMS | Hospital GEN (EMS) | 0.5000000000 | $789,162 | $789,162 | $394.58 | | |
| LIB | Library Sno-Isle GEN | 0.3153421757 | $789,162 | $789,162 | $248.86 | | |
| PORTWHID | Port of S Whidbey GEN | 0.1094540357 | $789,162 | $789,162 | $86.38 | | |
| SCH206BOND | School 206 BOND | 0.3161759235 | $789,162 | $789,162 | $249.51 | | |
| SCH206MO | School 206 Enrichment | 0.4547169547 | $789,162 | $789,162 | $358.85 | | |
| ST | State School | 1.3035497053 | $789,162 | $789,162 | $1,028.71 | | |
| ST2 | State School Part 2 | 0.8169543533 | $789,162 | $789,162 | $644.71 | | |
| SWHIDPRBD | P & R S Whidbey BOND | 0.0152817568 | $789,162 | $789,162 | $12.06 | | |
| SWHIDPRBD2 | P & R S Whidbey BOND2 | 0.0138911264 | $789,162 | $789,162 | $10.96 | | |
| SWHIDPRMT | P & R S Whidbey GEN | 0.2053334452 | $789,162 | $789,162 | $162.04 | | |
| | Total Tax Rate: | 6.6934522006 | | | | | |
| | | | | Taxes w/Current Exemptions: | $5,282.22 | | |
| | | | | Taxes w/o Exemptions: | $5,282.22 | | |
Improvement / Building
| Improvement #1: | RESIDENTIAL | State Code: | Y | 1188.0 sqft | Value: | $139,162 |
| Bathrooms: | 1.75 | Bedrooms: | 2 | | Ceiling: | DRYWALL PAINTED | Exterior Wall/Cover: | WOOD SIDING | | Floor Covering: | HARDWOOD/CARP 20-80 | Floor Structure: | WOOD W/SUBFLOOR | | Foundation: | CONCRETE | Heating: | WALL HEAT ELECTRIC | | Interior Finish: | DRYWALL PAINT | Plumbing Fixture Cnt: | 1 | | Roof Slope: | 5" IN 12" | Roof Structure/Cover: | CJ ALUMINIUM HEAVY |
|
| | Type | Description | Class CD | Sub Class CD | Year Built | Area |
| | BAS | BASE/MAIN FLOOR | 3 | 0 | 1978 | 672.0 |
| | UPS | UPPER STORY | 3 | 0 | 1978 | 516.0 |
| | OWP | OPEN WOOD PORCH W/STEPS | 3 | 0 | 1978 | 64.0 |
| | OWP | OPEN WOOD PORCH W/STEPS | 3 | 0 | 1978 | 156.0 |
| | OWP | OPEN WOOD PORCH W/STEPS | 3 | 0 | 1978 | 379.0 |
| | UTY | STORAGE/UTILITY | 3 | 0 | 1978 | 120.0 |
Sketch
Property Image
Land
| 1 | LB | LOW BANK | 0.0000 | 0.00 | 50.00 | 0.00 | 1.00 | $650,000 | $0 |
Roll Value History
| 2026 | N/A | N/A | N/A | N/A | N/A |
| 2025 | $139,162 | $650,000 | $0 | $789,162 | $789,162 |
| 2024 | $141,363 | $650,000 | $0 | $791,363 | $791,363 |
| 2023 | $143,562 | $650,000 | $0 | $793,562 | $793,562 |
| 2022 | $131,987 | $650,000 | $0 | $781,987 | $781,987 |
| 2021 | $116,505 | $500,000 | $0 | $616,505 | $616,505 |
| 2020 | $114,653 | $500,000 | $0 | $614,653 | $614,653 |
| 2019 | $83,664 | $375,000 | $0 | $458,664 | $458,664 |
| 2018 | $83,967 | $375,000 | $0 | $458,967 | $458,967 |
| 2017 | $84,571 | $350,000 | $0 | $434,571 | $434,571 |
| 2016 | $85,779 | $350,000 | $0 | $435,779 | $435,779 |
| 2015 | $86,986 | $350,000 | $0 | $436,986 | $436,986 |
| 2014 | $88,195 | $350,000 | $0 | $438,195 | $438,195 |
| 2013 | $87,929 | $315,090 | $0 | $403,019 | $403,019 |
| 2012 | $89,173 | $315,090 | $0 | $404,263 | $404,263 |
| 2011 | $90,416 | $315,090 | $0 | $405,506 | $405,506 |
| 2010 | $98,234 | $350,097 | $0 | $448,331 | $448,331 |
| 2009 | $102,790 | $429,665 | $0 | $532,455 | $532,455 |
| 2008 | $104,446 | $509,232 | $0 | $613,678 | $613,678 |
| 2007 | $103,382 | $359,645 | $0 | $463,027 | $463,027 |
Deed and Sales History
| 1 | 07/19/2023 | QCD | Quit Claim Deed | ELLIS, JEFFREY R | ELLIS, JEFFREY R | | | $0.00 | 57351 | 4562441 |
| 2 | 07/13/2023 | WD | Warranty Deed | ELLIS, GREGORY ALLEN | ELLIS, JEFFREY R | | | $457,200.00 | 57349 | 4562438 |
| 3 | 05/20/2020 | QCD | Quit Claim Deed | ELLIS, ROBERT J | ELLIS, GREGORY ALLEN | | | $0.00 | 43146 | 4487622 |
| 4 | 01/01/1900 | OTHER | Other - Misc. Documents | Unknown | ELLIS, ROBERT J | | | $0.00 | 0 | 0 |
Payout Agreement
| No payout information available.. |