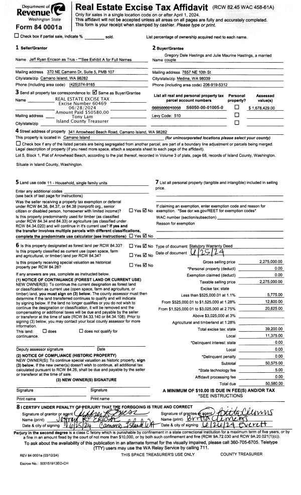
Property
Account |
| Property ID: | 430242 | Abbreviated Legal Description: | WHISP FIRS LOT 8 BLK 2 |
| Geographic ID: | S8430-00-02008-0 | Agent Code: | |
| Type: | Real | | |
| Tax Area: | 760 - APPRAISER-S Whid Schl Dist, Special District, improved & less than 1 acre | Land Use Code | 11 |
| Open Space: | N | DFL | N |
| Historic Property: | N | Remodel Property: | N |
| Multi-Family Redevelopment: | N | | |
| Township: | | Section: | |
| Range: | |
Location |
| Address: | 1795 WATKINS RD FREELAND, WA 98249 | Mapsco: | |
| Neighborhood: | Cycle 3 | Map ID: | 315 |
| Neighborhood CD: | 3 |
Owner |
| Name: | RODGERS, JILL | Owner ID: | 310633 |
| Mailing Address: | 1795 WATKINDS RD FREELAND, WA 98249 | % Ownership: | 100.0000000000% |
| | | Exemptions: | |
Taxes and Assessment Details
Values
| (+) Improvement Homesite Value: | + | $0 | |
| (+) Improvement Non-Homesite Value: | + | $362,197 | |
| (+) Land Homesite Value: | + | $0 | |
| (+) Land Non-Homesite Value: | + | $250,000 | |
| (+) Curr Use (HS): | + | $0 | $0 |
| (+) Curr Use (NHS): | + | $0 | $0 |
| | | -------------------------- | |
| (=) Market Value: | = | $612,197 | |
| (–) Productivity Loss: | – | $0 | |
| | | -------------------------- | |
| (=) Subtotal: | = | $612,197 | |
| (+) Senior Appraised Value: | + | $0 | |
| (+) Non-Senior Appraised Value: | + | $612,197 | |
| | | -------------------------- | |
| (=) Total Appraised Value: | = | $612,197 | |
| (–) Senior Exemption Loss: | – | $0 | |
| (–) Exemption Loss: | – | $0 | |
| | | -------------------------- | |
| (=) Taxable Value: | = | $612,197 | |
Taxing Jurisdiction
| Owner: | RODGERS, JILL | | |
| % Ownership: | 100.0000000000% | | |
| Total Value: | $612,197 | | |
| Tax Area: | 760 - APPRAISER-S Whid Schl Dist, Special District, improved & less than 1 acre |
| CF | Conservation Futures | 0.0316035091 | $612,197 | $612,197 | $19.35 | | |
| FIRE3 | Fire & Rescue Dist #3 S Whidbey GEN | 1.2004855531 | $612,197 | $612,197 | $734.93 | | |
| HOBOND | Hospital BOND | 0.1910887512 | $612,197 | $612,197 | $116.98 | | |
| HOGEN | Hospital GEN | 0.3902502903 | $612,197 | $612,197 | $238.91 | | |
| CE | County Current Expense | 0.3708482477 | $612,197 | $612,197 | $227.03 | | |
| CR | County Roads | 0.4584763726 | $612,197 | $612,197 | $280.68 | | |
| ISLANDEMS | Hospital GEN (EMS) | 0.5000000000 | $612,197 | $612,197 | $306.10 | | |
| LIB | Library Sno-Isle GEN | 0.3153421757 | $612,197 | $612,197 | $193.05 | | |
| PORTWHID | Port of S Whidbey GEN | 0.1094540357 | $612,197 | $612,197 | $67.01 | | |
| SCH206BOND | School 206 BOND | 0.3161759235 | $612,197 | $612,197 | $193.56 | | |
| SCH206MO | School 206 Enrichment | 0.4547169547 | $612,197 | $612,197 | $278.38 | | |
| ST | State School | 1.3035497053 | $612,197 | $612,197 | $798.03 | | |
| ST2 | State School Part 2 | 0.8169543533 | $612,197 | $612,197 | $500.14 | | |
| SWHIDPRBD | P & R S Whidbey BOND | 0.0152817568 | $612,197 | $612,197 | $9.36 | | |
| SWHIDPRBD2 | P & R S Whidbey BOND2 | 0.0138911264 | $612,197 | $612,197 | $8.50 | | |
| SWHIDPRMT | P & R S Whidbey GEN | 0.2053334452 | $612,197 | $612,197 | $125.70 | | |
| | Total Tax Rate: | 6.6934522006 | | | | | |
| | | | | Taxes w/Current Exemptions: | $4,097.71 | | |
| | | | | Taxes w/o Exemptions: | $4,097.71 | | |
Improvement / Building
| Improvement #1: | RESIDENTIAL | State Code: | Y | 1884.0 sqft | Value: | $362,197 |
| Bathrooms: | 2.5 | Bedrooms: | 2 | | Ceiling: | DRYWALL PAINTED | Cooling: | HEAT PUMP/CONV/V | | Exterior Wall/Cover: | CEMENT FIBER | Floor Covering: | CARPET/VINYL 60-40 | | Floor Structure: | WOOD W/SUBFLOOR | Foundation: | CONCRETE | | Interior Finish: | DRYWALL PAINT | Plumbing Fixture Cnt: | 11 | | Roof Slope: | 5" IN 12" | Roof Structure/Cover: | CJ ASPHALT |
|
| | Type | Description | Class CD | Sub Class CD | Year Built | Area |
| | BAS | BASE/MAIN FLOOR | 3 | 0 | 2014 | 1884.0 |
| | AGR | ATTACHED GARAGE | 3 | 0 | 2014 | 440.0 |
| | OP2 | OPEN PORCH W/STEPS | 3 | 0 | 2014 | 84.0 |
| | OWP | OPEN WOOD PORCH W/STEPS | 3 | 0 | 2014 | 228.0 |
Sketch
Property Image
Land
| 1 | 13 | SQ (06001-08000) | 0.0000 | 0.00 | 0.00 | 0.00 | 1.00 | $250,000 | $0 |
Roll Value History
| 2026 | N/A | N/A | N/A | N/A | N/A |
| 2025 | $362,197 | $250,000 | $0 | $612,197 | $612,197 |
| 2024 | $365,417 | $230,000 | $0 | $595,417 | $595,417 |
| 2023 | $368,234 | $200,000 | $0 | $568,234 | $568,234 |
| 2022 | $336,172 | $210,000 | $0 | $546,172 | $546,172 |
| 2021 | $294,698 | $140,000 | $0 | $434,698 | $434,698 |
| 2020 | $286,072 | $115,000 | $0 | $401,072 | $401,072 |
| 2019 | $203,504 | $170,000 | $0 | $373,504 | $373,504 |
| 2018 | $204,037 | $130,000 | $0 | $334,037 | $334,037 |
| 2017 | $205,106 | $120,000 | $0 | $325,106 | $325,106 |
| 2016 | $207,244 | $90,000 | $0 | $297,244 | $297,244 |
| 2015 | $209,379 | $85,000 | $0 | $294,379 | $294,379 |
| 2014 | $95,093 | $20,000 | $0 | $115,093 | $115,093 |
| 2013 | $0 | $15,000 | $0 | $15,000 | $15,000 |
| 2012 | $0 | $46,550 | $0 | $46,550 | $46,550 |
| 2011 | $0 | $56,000 | $0 | $56,000 | $56,000 |
| 2010 | $0 | $56,000 | $0 | $56,000 | $56,000 |
| 2009 | $0 | $80,000 | $0 | $80,000 | $80,000 |
| 2008 | $0 | $80,000 | $0 | $80,000 | $80,000 |
| 2007 | $0 | $82,000 | $0 | $82,000 | $82,000 |
Deed and Sales History
| 1 | 11/13/2023 | QCD | Quit Claim Deed | RODGERS, ROBERT W | RODGERS, JILL | | | $0.00 | 58488 | 4566660 |
| 2 | 07/29/2015 | WD | Warranty Deed | RIEPMA & MOTTET CONSTRUCTION LLC | RODGERS, ROBERT W | | | $285,000.00 | 20711 | 4383150 |
| 3 | 02/20/2014 | QCD | Quit Claim Deed | MOTTET, BRADELY | RIEPMA & MOTTET CONSTRUCTION LLC | | | $0.00 | 14348 | 4355504 |
| 4 | 05/28/2013 | WD | Warranty Deed | VITCOVICH, RANDY F | MOTTET, BRADELY | | | $21,000.00 | 11455 | 4340879 |
| 5 | 11/06/2007 | SEG | DNU - Segregation | VITCOVICH, RANDY F | VITCOVICH, RANDY F | | | $0.00 | 80438 | 0 |
| 6 | 04/09/2005 | ESTSEPPROP | Establish Separate Property | VITCOVICH, RANDY F | VITCOVICH, RANDY F | | | $10.00 | 51927 | 4133162 |
| 7 | 06/01/1990 | QCD | Quit Claim Deed | VITCOVICH, JOHN G | VITCOVICH, RANDY F | | | $0.00 | 3642 | 90011762 |
| 8 | 07/01/1987 | QCD | Quit Claim Deed | JOHNSON, HORTENSE G | VITCOVICH, JOHN G | | | $0.00 | 72364 | 87010833 |
| 9 | 01/01/1900 | OTHER | Other - Misc. Documents | Unknown | JOHNSON, HORTENSE G | | | $0.00 | 0 | 0 |
Payout Agreement
| No payout information available.. |