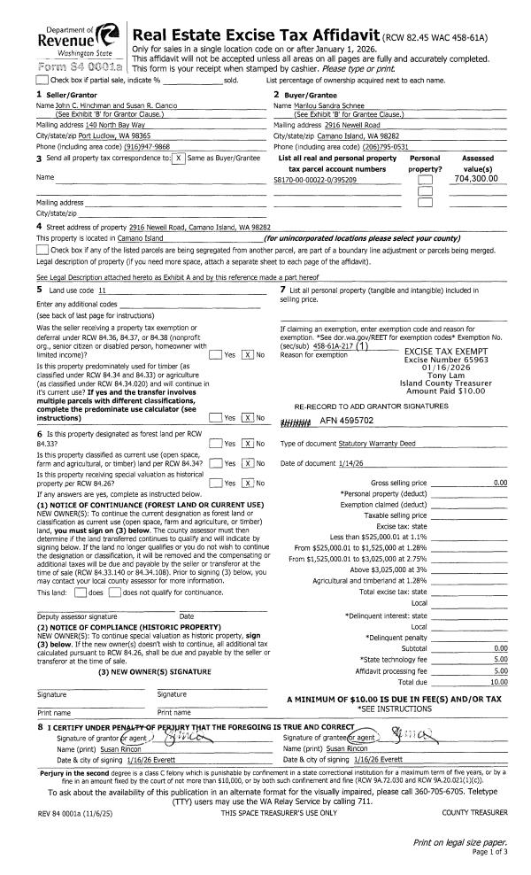
Property
Account |
| Property ID: | 430322 | Abbreviated Legal Description: | WHISP FIRS LOTS 26 & 27 BLK 2 |
| Geographic ID: | S8430-00-02026-0 | Agent Code: | |
| Type: | Real | | |
| Tax Area: | 760 - APPRAISER-S Whid Schl Dist, Special District, improved & less than 1 acre | Land Use Code | 11 |
| Open Space: | N | DFL | N |
| Historic Property: | N | Remodel Property: | N |
| Multi-Family Redevelopment: | N | | |
| Township: | | Section: | |
| Range: | |
Location |
| Address: | 1873 WATKINS RD FREELAND, WA 98249 | Mapsco: | |
| Neighborhood: | Cycle 3 | Map ID: | 316 |
| Neighborhood CD: | 3 |
Owner |
| Name: | CANUPP, TIMOTHY C | Owner ID: | 301798 |
| Mailing Address: | TINA M CANUPP 1873 WATKINS RD FREELAND, WA 98249 | % Ownership: | 100.0000000000% |
| | | Exemptions: | |
Taxes and Assessment Details
Values
| (+) Improvement Homesite Value: | + | $0 | |
| (+) Improvement Non-Homesite Value: | + | $389,998 | |
| (+) Land Homesite Value: | + | $0 | |
| (+) Land Non-Homesite Value: | + | $250,000 | |
| (+) Curr Use (HS): | + | $0 | $0 |
| (+) Curr Use (NHS): | + | $0 | $0 |
| | | -------------------------- | |
| (=) Market Value: | = | $639,998 | |
| (–) Productivity Loss: | – | $0 | |
| | | -------------------------- | |
| (=) Subtotal: | = | $639,998 | |
| (+) Senior Appraised Value: | + | $0 | |
| (+) Non-Senior Appraised Value: | + | $639,998 | |
| | | -------------------------- | |
| (=) Total Appraised Value: | = | $639,998 | |
| (–) Senior Exemption Loss: | – | $0 | |
| (–) Exemption Loss: | – | $0 | |
| | | -------------------------- | |
| (=) Taxable Value: | = | $639,998 | |
Taxing Jurisdiction
| Owner: | CANUPP, TIMOTHY C | | |
| % Ownership: | 100.0000000000% | | |
| Total Value: | $639,998 | | |
| Tax Area: | 760 - APPRAISER-S Whid Schl Dist, Special District, improved & less than 1 acre |
| CF | Conservation Futures | 0.0316035091 | $639,998 | $639,998 | $20.23 | | |
| FIRE3 | Fire & Rescue Dist #3 S Whidbey GEN | 1.2004855531 | $639,998 | $639,998 | $768.31 | | |
| HOBOND | Hospital BOND | 0.1910887512 | $639,998 | $639,998 | $122.30 | | |
| HOGEN | Hospital GEN | 0.3902502903 | $639,998 | $639,998 | $249.76 | | |
| CE | County Current Expense | 0.3708482477 | $639,998 | $639,998 | $237.34 | | |
| CR | County Roads | 0.4584763726 | $639,998 | $639,998 | $293.42 | | |
| ISLANDEMS | Hospital GEN (EMS) | 0.5000000000 | $639,998 | $639,998 | $320.00 | | |
| LIB | Library Sno-Isle GEN | 0.3153421757 | $639,998 | $639,998 | $201.82 | | |
| PORTWHID | Port of S Whidbey GEN | 0.1094540357 | $639,998 | $639,998 | $70.05 | | |
| SCH206BOND | School 206 BOND | 0.3161759235 | $639,998 | $639,998 | $202.35 | | |
| SCH206MO | School 206 Enrichment | 0.4547169547 | $639,998 | $639,998 | $291.02 | | |
| ST | State School | 1.3035497053 | $639,998 | $639,998 | $834.27 | | |
| ST2 | State School Part 2 | 0.8169543533 | $639,998 | $639,998 | $522.85 | | |
| SWHIDPRBD | P & R S Whidbey BOND | 0.0152817568 | $639,998 | $639,998 | $9.78 | | |
| SWHIDPRBD2 | P & R S Whidbey BOND2 | 0.0138911264 | $639,998 | $639,998 | $8.89 | | |
| SWHIDPRMT | P & R S Whidbey GEN | 0.2053334452 | $639,998 | $639,998 | $131.41 | | |
| | Total Tax Rate: | 6.6934522006 | | | | | |
| | | | | Taxes w/Current Exemptions: | $4,283.80 | | |
| | | | | Taxes w/o Exemptions: | $4,283.80 | | |
Improvement / Building
| Improvement #1: | RESIDENTIAL | State Code: | Y | 2125.2 sqft | Value: | $389,998 |
| Bathrooms: | 2 | Bedrooms: | 3 | | Ceiling: | DRYWALL PAINTED | Cooling: | HEAT PUMP/CONV/V | | Exterior Wall/Cover: | CEMENT FIBER | Floor Covering: | CARPET/VINYL 60-40 | | Floor Structure: | WOOD W/SUBFLOOR | Foundation: | CONCRETE | | Interior Finish: | DRYWALL PAINT | Plumbing Fixture Cnt: | 12 | | Roof Slope: | 6" IN 12" | Roof Structure/Cover: | CJ ASPHALT |
|
| | Type | Description | Class CD | Sub Class CD | Year Built | Area |
| | BAS | BASE/MAIN FLOOR | 3 | 0 | 2006 | 2125.2 |
| | OP4 | OPEN PORCH W/CEILING-ROOF | 3 | 0 | 2006 | 57.0 |
| | AGR | ATTACHED GARAGE | 3 | 0 | 2006 | 709.0 |
| | OP3 | OPEN PORCH W/ROOF | 3 | 0 | 2006 | 160.0 |
Sketch
Property Image
Land
| 1 | 15 | SQ (12001-21780) | 0.0000 | 0.00 | 0.00 | 0.00 | 1.00 | $250,000 | $0 |
Roll Value History
| 2026 | N/A | N/A | N/A | N/A | N/A |
| 2025 | $389,998 | $250,000 | $0 | $639,998 | $639,998 |
| 2024 | $394,469 | $230,000 | $0 | $624,469 | $624,469 |
| 2023 | $398,938 | $200,000 | $0 | $598,938 | $598,938 |
| 2022 | $364,293 | $210,000 | $0 | $574,293 | $574,293 |
| 2021 | $319,588 | $140,000 | $0 | $459,588 | $459,588 |
| 2020 | $310,218 | $115,000 | $0 | $425,218 | $425,218 |
| 2019 | $236,505 | $170,000 | $0 | $406,505 | $406,505 |
| 2018 | $237,141 | $130,000 | $0 | $367,141 | $367,141 |
| 2017 | $212,684 | $120,000 | $0 | $332,684 | $332,684 |
| 2016 | $215,100 | $90,000 | $0 | $305,100 | $305,100 |
| 2015 | $217,516 | $85,000 | $0 | $302,516 | $302,516 |
| 2014 | $219,933 | $70,000 | $0 | $289,933 | $289,933 |
| 2013 | $239,982 | $52,000 | $0 | $291,982 | $291,982 |
| 2012 | $242,495 | $53,550 | $0 | $296,045 | $296,045 |
| 2011 | $245,008 | $63,000 | $0 | $308,008 | $308,008 |
| 2010 | $249,731 | $63,000 | $0 | $312,731 | $312,731 |
| 2009 | $260,192 | $116,160 | $0 | $376,352 | $376,352 |
| 2008 | $263,182 | $116,160 | $0 | $379,342 | $379,342 |
| 2007 | $258,228 | $116,160 | $0 | $374,388 | $374,388 |
Deed and Sales History
| 1 | 10/22/2021 | WD | Warranty Deed | KING, DAVID C | CANUPP, TIMOTHY C | | | $620,000.00 | 50686 | 4532647 |
| 2 | 04/02/2018 | WD | Warranty Deed | PHILLIPS, JAMES T | KING, DAVID C | | | $428,000.00 | 33659 | 4442545 |
| 3 | 05/15/2015 | WD | Warranty Deed | SPEIGHT, SHANNON L | PHILLIPS, JAMES T | | | $314,500.00 | 19617 | 4378706 |
| 4 | 08/09/2006 | BLA | DNU - Boundary Line Adjustment | SPEIGHT, SHANNON L | SPEIGHT, SHANNON L | | | $0.00 | 70980 | 4165720 |
| 5 | 02/06/2006 | WD | Warranty Deed | CULTUS BAY INC, | SPEIGHT, SHANNON L | | | $143,000.00 | 60549 | 4161973 |
| 6 | 04/09/2005 | ESTSEPPROP | Establish Separate Property | CULTUS BAY INC, | CULTUS BAY INC, | | | $10.00 | 51927 | 4133162 |
| 7 | 11/30/2004 | WD | Warranty Deed | NDDS, LLC, | CULTUS BAY INC, | | | $5,498.00 | 45711 | 4120085 |
| 8 | 11/05/2004 | 5 | DNU - Marriage License/Name Change | WATKINS, H J | NDDS, LLC, | | | $0.00 | 45260 | 4117543 |
| 9 | 07/01/1995 | OTHER | Other - Misc. Documents | WATKINS, H J | WATKINS, H J | | | $0.00 | 66538 | 0 |
| 10 | 02/01/1995 | QCD | Quit Claim Deed | WATKINS, H J | WATKINS, H J | | | $0.00 | 50747 | 95003459 |
| 11 | 02/01/1984 | QCD | Quit Claim Deed | WATKINS, H J | WATKINS, H J | | | $0.00 | 42909 | 84004007 |
| 12 | 01/01/1900 | OTHER | Other - Misc. Documents | Unknown | WATKINS, H J | | | $0.00 | 0 | 0 |
Payout Agreement
| No payout information available.. |