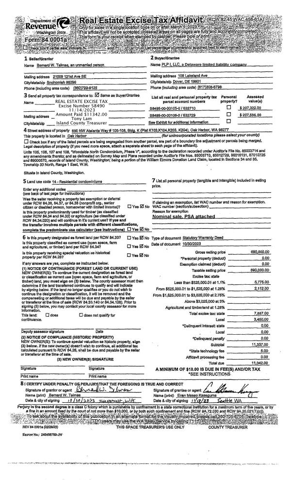
Property
Account |
| Property ID: | 430992 | Abbreviated Legal Description: | WIDARAMA BCH LOT 17 |
| Geographic ID: | S8440-00-00017-0 | Agent Code: | |
| Type: | Real | | |
| Tax Area: | 310 - APPRAISER-Cpvl Schl Dist, outside Cpvl, improved & 1 acre or less | Land Use Code | 11 |
| Open Space: | N | DFL | N |
| Historic Property: | N | Remodel Property: | N |
| Multi-Family Redevelopment: | N | | |
| Township: | | Section: | |
| Range: | |
Location |
| Address: | 127 WOODCREEK WAY COUPEVILLE, WA 98239 | Mapsco: | |
| Neighborhood: | Cycle 2 | Map ID: | 461 |
| Neighborhood CD: | 2 |
Owner |
| Name: | JOHNSON, ANGELA MARIE | Owner ID: | 307514 |
| Mailing Address: | JEFFREY ALAN JOHNSON 129 WOODCREEK WAY COUPEVILLE, WA 98239 | % Ownership: | 100.0000000000% |
| | | Exemptions: | |
Taxes and Assessment Details
Values
| (+) Improvement Homesite Value: | + | $0 | |
| (+) Improvement Non-Homesite Value: | + | $72,371 | |
| (+) Land Homesite Value: | + | $0 | |
| (+) Land Non-Homesite Value: | + | $240,000 | |
| (+) Curr Use (HS): | + | $0 | $0 |
| (+) Curr Use (NHS): | + | $0 | $0 |
| | | -------------------------- | |
| (=) Market Value: | = | $312,371 | |
| (–) Productivity Loss: | – | $0 | |
| | | -------------------------- | |
| (=) Subtotal: | = | $312,371 | |
| (+) Senior Appraised Value: | + | $0 | |
| (+) Non-Senior Appraised Value: | + | $312,371 | |
| | | -------------------------- | |
| (=) Total Appraised Value: | = | $312,371 | |
| (–) Senior Exemption Loss: | – | $0 | |
| (–) Exemption Loss: | – | $0 | |
| | | -------------------------- | |
| (=) Taxable Value: | = | $312,371 | |
Taxing Jurisdiction
| Owner: | JOHNSON, ANGELA MARIE | | |
| % Ownership: | 100.0000000000% | | |
| Total Value: | $312,371 | | |
| Tax Area: | 310 - APPRAISER-Cpvl Schl Dist, outside Cpvl, improved & 1 acre or less |
| CF | Conservation Futures | 0.0316035091 | $312,371 | $312,371 | $9.87 | | |
| CEM2 | Cemetery #2 | 0.0095056933 | $312,371 | $312,371 | $2.97 | | |
| FIRE5 | Fire & Rescue Dist #5 C Whidbey GEN | 1.2008080668 | $312,371 | $312,371 | $375.10 | | |
| FIRE5BOND | Fire & Rescue Dist #5 C Whidbey BOND | 0.1400090713 | $312,371 | $312,371 | $43.73 | | |
| HOBOND | Hospital BOND | 0.1910887512 | $312,371 | $312,371 | $59.69 | | |
| HOGEN | Hospital GEN | 0.3902502903 | $312,371 | $312,371 | $121.90 | | |
| CE | County Current Expense | 0.3708482477 | $312,371 | $312,371 | $115.84 | | |
| CR | County Roads | 0.4584763726 | $312,371 | $312,371 | $143.21 | | |
| ISLANDEMS | Hospital GEN (EMS) | 0.5000000000 | $312,371 | $312,371 | $156.19 | | |
| LIB | Library Sno-Isle GEN | 0.3153421757 | $312,371 | $312,371 | $98.50 | | |
| LIBCAP | Library Sno-Isle BOND (Cap Fac Imp Area) | 0.0543427938 | $312,371 | $312,371 | $16.98 | | |
| POCOUP | Port of Coupeville GEN | 0.1093371703 | $312,371 | $312,371 | $34.15 | | |
| POCOUPIDD | Port of Coupeville IDD | 0.3409740022 | $312,371 | $312,371 | $106.51 | | |
| COUPSDTECH | School 204 CP (TECH) | 0.7545480007 | $312,371 | $312,371 | $235.70 | | |
| SCH204MO | School 204 Enrichment | 0.6716186034 | $312,371 | $312,371 | $209.79 | | |
| ST | State School | 1.3035497053 | $312,371 | $312,371 | $407.19 | | |
| ST2 | State School Part 2 | 0.8169543533 | $312,371 | $312,371 | $255.19 | | |
| | Total Tax Rate: | 7.6592568070 | | | | | |
| | | | | Taxes w/Current Exemptions: | $2,392.51 | | |
| | | | | Taxes w/o Exemptions: | $2,392.51 | | |
Improvement / Building
| Improvement #1: | RESIDENTIAL | State Code: | Y | 384.0 sqft | Value: | $72,371 |
| Bathrooms: | 1 | Bedrooms: | 1 | | Ceiling: | BEAM PAINTED | Exterior Wall/Cover: | SHINGLE | | Floor Covering: | CARPET/VINYL 80-20 | Floor Structure: | WOOD W/SUBFLOOR | | Foundation: | WOOD BLOCKS | Heating: | BASEBOARD ELECTRIC | | Interior Finish: | DRYWALL PAINT | Plumbing Fixture Cnt: | 5 | | Roof Slope: | 3" IN 12" | Roof Structure/Cover: | BEAM ALUMINUM HEAVY |
|
| | Type | Description | Class CD | Sub Class CD | Year Built | Area |
| | BAS | BASE/MAIN FLOOR | 3 | 0 | 1963 | 384.0 |
| | OWP | OPEN WOOD PORCH W/STEPS | 3 | 0 | 1963 | 335.6 |
Sketch
Property Image
Land
| 1 | 15 | SQ (12001-21780) | 0.3059 | 13325.00 | 0.00 | 0.00 | 1.00 | $240,000 | $0 |
Roll Value History
| 2026 | N/A | N/A | N/A | N/A | N/A |
| 2025 | $72,371 | $240,000 | $0 | $312,371 | $312,371 |
| 2024 | $73,598 | $230,000 | $0 | $303,598 | $303,598 |
| 2023 | $74,645 | $220,000 | $0 | $294,645 | $294,645 |
| 2022 | $53,100 | $210,000 | $0 | $263,100 | $263,100 |
| 2021 | $46,852 | $150,000 | $0 | $196,852 | $196,852 |
| 2020 | $45,425 | $140,000 | $0 | $185,425 | $185,425 |
| 2019 | $31,256 | $200,000 | $0 | $231,256 | $231,256 |
| 2018 | $29,172 | $180,000 | $0 | $209,172 | $209,172 |
| 2017 | $29,391 | $150,000 | $0 | $179,391 | $179,391 |
| 2016 | $29,831 | $135,000 | $0 | $164,831 | $164,831 |
| 2015 | $30,269 | $100,000 | $0 | $130,269 | $130,269 |
| 2014 | $30,707 | $95,000 | $0 | $125,707 | $125,707 |
| 2013 | $31,146 | $90,000 | $0 | $121,146 | $121,146 |
| 2012 | $31,585 | $90,000 | $0 | $121,585 | $121,585 |
| 2011 | $32,024 | $100,000 | $0 | $132,024 | $132,024 |
| 2010 | $29,231 | $100,000 | $0 | $129,231 | $129,231 |
| 2009 | $30,135 | $125,000 | $0 | $155,135 | $155,135 |
| 2008 | $30,521 | $125,000 | $0 | $155,521 | $155,521 |
| 2007 | $30,907 | $125,000 | $0 | $155,907 | $155,907 |
Deed and Sales History
| 1 | 02/01/2023 | WD | Warranty Deed | SEBASTIAN, JIM G / JANET M | JOHNSON, ANGELA MARIE | | | $200,000.00 | 55792 | 4556480 |
| 2 | 11/01/1996 | WD | Warranty Deed | HAUFF, DENNIS/SUZANN & | SEBASTIAN, JIM G | | | $56,500.00 | 64250 | 96020757 |
| 3 | 10/01/1989 | QCD | Quit Claim Deed | SPEER, MARVIN E | HAUFF, DENNIS/SUZANN & | | | $0.00 | 94924 | 89015916 |
| 4 | 10/01/1980 | PACD | Purchaser's Assignment | SPEERS, M E | SPEER, MARVIN E | | | $8,819.00 | 3376 | 0 |
| 5 | 11/01/1978 | OTHER | Other - Misc. Documents | Unknown | SPEERS, M E | | | $25,000.00 | 85942 | 344143 |
Payout Agreement
| No payout information available.. |