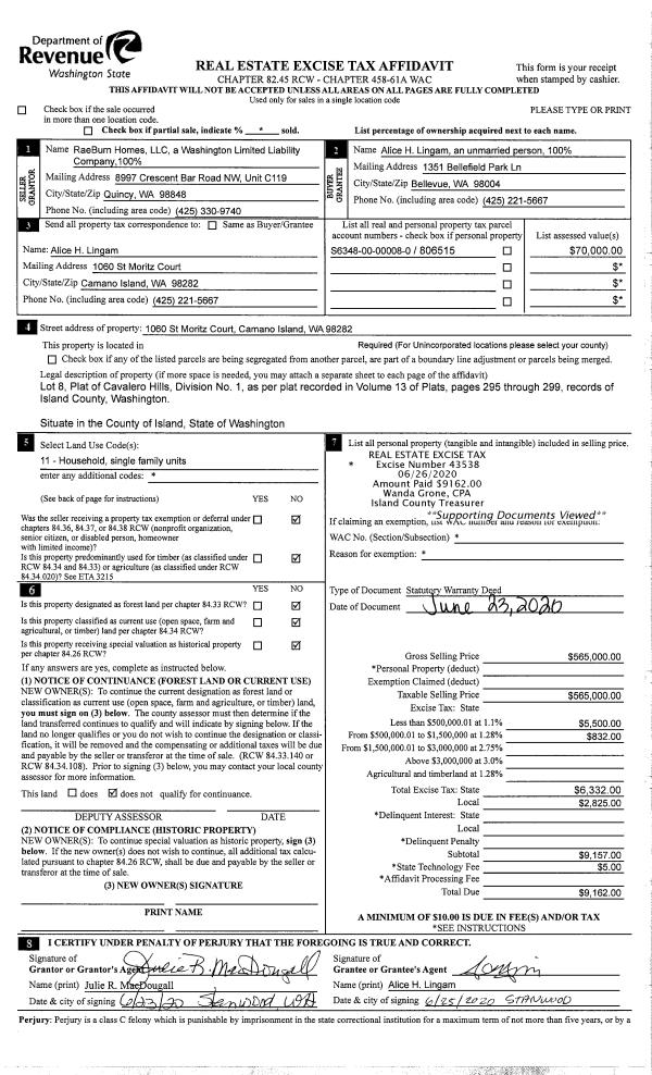
Property
Account |
| Property ID: | 431189 | Abbreviated Legal Description: | WILDLIFE HAVEN 1/4 INT IN TRACT B (PRI RD) |
| Geographic ID: | S8445-00-0000B-1 | Agent Code: | |
| Type: | Real | | |
| Tax Area: | 319 - APPRAISER-Cpvl Schl Dist, outside Cpvl, vacant & 50 acres or less | Land Use Code | 99 |
| Open Space: | N | DFL | N |
| Historic Property: | N | Remodel Property: | N |
| Multi-Family Redevelopment: | N | | |
| Township: | | Section: | |
| Range: | |
Location |
| Address: | | Mapsco: | |
| Neighborhood: | Cycle 3 | Map ID: | 526 |
| Neighborhood CD: | 3 |
Owner |
| Name: | VERHEYDEN, BETTY | Owner ID: | 90354 |
| Mailing Address: | PO BOX 881 COUPEVILLE, WA 98239-0881 | % Ownership: | 100.0000000000% |
| | | Exemptions: | U500 |
Taxes and Assessment Details
Values
| (+) Improvement Homesite Value: | + | $0 | |
| (+) Improvement Non-Homesite Value: | + | $0 | |
| (+) Land Homesite Value: | + | $0 | |
| (+) Land Non-Homesite Value: | + | $450 | |
| (+) Curr Use (HS): | + | $0 | $0 |
| (+) Curr Use (NHS): | + | $0 | $0 |
| | | -------------------------- | |
| (=) Market Value: | = | $450 | |
| (–) Productivity Loss: | – | $0 | |
| | | -------------------------- | |
| (=) Subtotal: | = | $450 | |
| (+) Senior Appraised Value: | + | $0 | |
| (+) Non-Senior Appraised Value: | + | $450 | |
| | | -------------------------- | |
| (=) Total Appraised Value: | = | $450 | |
| (–) Senior Exemption Loss: | – | $0 | |
| (–) Exemption Loss: | – | $450 | |
| | | -------------------------- | |
| (=) Taxable Value: | = | $0 | |
Taxing Jurisdiction
| Owner: | VERHEYDEN, BETTY | | |
| % Ownership: | 100.0000000000% | | |
| Total Value: | $450 | | |
| Tax Area: | 319 - APPRAISER-Cpvl Schl Dist, outside Cpvl, vacant & 50 acres or less |
| CF | Conservation Futures | 0.0316035091 | $450 | $0 | $0.00 | | |
| CEM2 | Cemetery #2 | 0.0095056933 | $450 | $0 | $0.00 | | |
| HOBOND | Hospital BOND | 0.1910887512 | $450 | $0 | $0.00 | | |
| HOGEN | Hospital GEN | 0.3902502903 | $450 | $0 | $0.00 | | |
| CE | County Current Expense | 0.3708482477 | $450 | $0 | $0.00 | | |
| CR | County Roads | 0.4584763726 | $450 | $0 | $0.00 | | |
| ISLANDEMS | Hospital GEN (EMS) | 0.5000000000 | $450 | $0 | $0.00 | | |
| LIB | Library Sno-Isle GEN | 0.3153421757 | $450 | $0 | $0.00 | | |
| LIBCAP | Library Sno-Isle BOND (Cap Fac Imp Area) | 0.0543427938 | $450 | $0 | $0.00 | | |
| POCOUP | Port of Coupeville GEN | 0.1093371703 | $450 | $0 | $0.00 | | |
| POCOUPIDD | Port of Coupeville IDD | 0.3409740022 | $450 | $0 | $0.00 | | |
| COUPSDTECH | School 204 CP (TECH) | 0.7545480007 | $450 | $0 | $0.00 | | |
| SCH204MO | School 204 Enrichment | 0.6716186034 | $450 | $0 | $0.00 | | |
| ST | State School | 1.3035497053 | $450 | $0 | $0.00 | | |
| ST2 | State School Part 2 | 0.8169543533 | $450 | $0 | $0.00 | | |
| | Total Tax Rate: | 6.3184396689 | | | | | |
| | | | | Taxes w/Current Exemptions: | $0.00 | | |
| | | | | Taxes w/o Exemptions: | $2.85 | | |
Improvement / Building
Sketch
| No sketches available for this property. |
Property Image
Land
| 1 | 54 | WASTE LAND | 0.0000 | 0.00 | 0.00 | 0.00 | 1.00 | $450 | $0 |
Roll Value History
| 2026 | N/A | N/A | N/A | N/A | N/A |
| 2025 | $0 | $450 | $0 | $450 | $0 |
| 2024 | $0 | $450 | $0 | $450 | $0 |
| 2023 | $0 | $450 | $0 | $450 | $0 |
| 2022 | $0 | $450 | $0 | $450 | $0 |
| 2021 | $0 | $10 | $0 | $10 | $0 |
| 2020 | $0 | $10 | $0 | $10 | $0 |
| 2019 | $0 | $10 | $0 | $10 | $0 |
| 2018 | $0 | $10 | $0 | $10 | $0 |
| 2017 | $0 | $10 | $0 | $10 | $0 |
| 2016 | $0 | $10 | $0 | $10 | $0 |
| 2015 | $0 | $10 | $0 | $10 | $0 |
| 2014 | $0 | $10 | $0 | $10 | $0 |
| 2013 | $0 | $10 | $0 | $10 | $0 |
| 2012 | $0 | $10 | $0 | $10 | $0 |
| 2011 | $0 | $10 | $0 | $10 | $0 |
| 2010 | $0 | $10 | $0 | $10 | $0 |
| 2009 | $0 | $10 | $0 | $10 | $0 |
| 2008 | $0 | $500 | $0 | $500 | $500 |
| 2007 | $0 | $500 | $0 | $500 | $500 |
Deed and Sales History
| 1 | 05/01/1996 | WD | Warranty Deed | MARCZEWSKI, STANLEY W | VERHEYDEN, BETTY | | | $540.00 | 61836 | 96009236 |
| 2 | 10/01/1995 | OTHER | Other - Misc. Documents | MARCZEWSKI, STANLEY W | MARCZEWSKI, STANLEY W | | | $0.00 | 66684 | 0 |
| 3 | 08/01/1981 | CD | DNU - Correction Deed | LIBBEY, WAYNE L | MARCZEWSKI, STANLEY W | | | $1.00 | 12346 | 386329 |
| 4 | 01/01/1900 | OTHER | Other - Misc. Documents | Unknown | LIBBEY, WAYNE L | | | $0.00 | 0 | 0 |
Payout Agreement
| No payout information available.. |