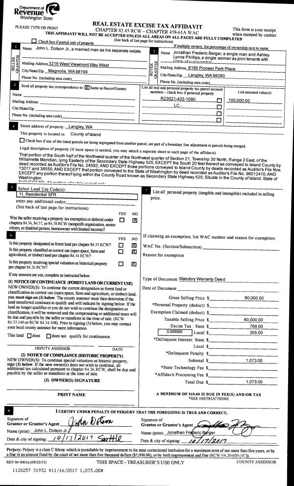
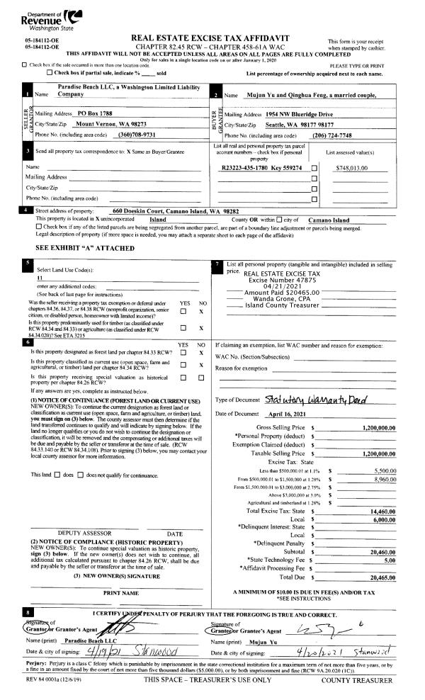
Property
Account |
| Property ID: | 431205 | Abbreviated Legal Description: | WILDLIFE HAVEN LOT 1 |
| Geographic ID: | S8445-00-00001-0 | Agent Code: | |
| Type: | Real | | |
| Tax Area: | 312 - APPRAISER-Cpvl Schl Dist, outside Cpvl, improved, greater than 1 acre | Land Use Code | 11 |
| Open Space: | N | DFL | N |
| Historic Property: | N | Remodel Property: | N |
| Multi-Family Redevelopment: | N | | |
| Township: | | Section: | |
| Range: | |
Location |
| Address: | 411 PUGET DR COUPEVILLE, WA 98239 | Mapsco: | |
| Neighborhood: | Cycle 3 | Map ID: | 526 |
| Neighborhood CD: | 3 |
Owner |
| Name: | PINZONE, GABRIEL DEMIAN GUTIERREZ | Owner ID: | 297065 |
| Mailing Address: | 105 223RD ST SE BOTHELL, WA 98021 | % Ownership: | 100.0000000000% |
| | | Exemptions: | |
Taxes and Assessment Details
Values
| (+) Improvement Homesite Value: | + | $0 | |
| (+) Improvement Non-Homesite Value: | + | $544,268 | |
| (+) Land Homesite Value: | + | $0 | |
| (+) Land Non-Homesite Value: | + | $310,000 | |
| (+) Curr Use (HS): | + | $0 | $0 |
| (+) Curr Use (NHS): | + | $0 | $0 |
| | | -------------------------- | |
| (=) Market Value: | = | $854,268 | |
| (–) Productivity Loss: | – | $0 | |
| | | -------------------------- | |
| (=) Subtotal: | = | $854,268 | |
| (+) Senior Appraised Value: | + | $0 | |
| (+) Non-Senior Appraised Value: | + | $854,268 | |
| | | -------------------------- | |
| (=) Total Appraised Value: | = | $854,268 | |
| (–) Senior Exemption Loss: | – | $0 | |
| (–) Exemption Loss: | – | $0 | |
| | | -------------------------- | |
| (=) Taxable Value: | = | $854,268 | |
Taxing Jurisdiction
| Owner: | PINZONE, GABRIEL DEMIAN GUTIERREZ | | |
| % Ownership: | 100.0000000000% | | |
| Total Value: | $854,268 | | |
| Tax Area: | 312 - APPRAISER-Cpvl Schl Dist, outside Cpvl, improved, greater than 1 acre |
| CF | Conservation Futures | 0.0316035091 | $854,268 | $854,268 | $27.00 | | |
| CEM2 | Cemetery #2 | 0.0095056933 | $854,268 | $854,268 | $8.12 | | |
| FIRE5 | Fire & Rescue Dist #5 C Whidbey GEN | 1.2008080668 | $854,268 | $854,268 | $1,025.81 | | |
| FIRE5BOND | Fire & Rescue Dist #5 C Whidbey BOND | 0.1400090713 | $854,268 | $854,268 | $119.61 | | |
| HOBOND | Hospital BOND | 0.1910887512 | $854,268 | $854,268 | $163.24 | | |
| HOGEN | Hospital GEN | 0.3902502903 | $854,268 | $854,268 | $333.38 | | |
| CE | County Current Expense | 0.3708482477 | $854,268 | $854,268 | $316.80 | | |
| CR | County Roads | 0.4584763726 | $854,268 | $854,268 | $391.66 | | |
| ISLANDEMS | Hospital GEN (EMS) | 0.5000000000 | $854,268 | $854,268 | $427.13 | | |
| LIB | Library Sno-Isle GEN | 0.3153421757 | $854,268 | $854,268 | $269.39 | | |
| LIBCAP | Library Sno-Isle BOND (Cap Fac Imp Area) | 0.0543427938 | $854,268 | $854,268 | $46.42 | | |
| POCOUP | Port of Coupeville GEN | 0.1093371703 | $854,268 | $854,268 | $93.40 | | |
| POCOUPIDD | Port of Coupeville IDD | 0.3409740022 | $854,268 | $854,268 | $291.28 | | |
| COUPSDTECH | School 204 CP (TECH) | 0.7545480007 | $854,268 | $854,268 | $644.59 | | |
| SCH204MO | School 204 Enrichment | 0.6716186034 | $854,268 | $854,268 | $573.74 | | |
| ST | State School | 1.3035497053 | $854,268 | $854,268 | $1,113.58 | | |
| ST2 | State School Part 2 | 0.8169543533 | $854,268 | $854,268 | $697.90 | | |
| | Total Tax Rate: | 7.6592568070 | | | | | |
| | | | | Taxes w/Current Exemptions: | $6,543.05 | | |
| | | | | Taxes w/o Exemptions: | $6,543.05 | | |
Improvement / Building
| Improvement #1: | RESIDENTIAL | State Code: | Y | 1788.1 sqft | Value: | $544,268 |
| Bathrooms: | 2 | Bedrooms: | 2 | | Ceiling: | DRYWALL PAINTED | Exterior Wall/Cover: | WOOD SIDING | | Floor Covering: | HARDWOOD 100% | Floor Structure: | WOOD W/SUBFLOOR | | Foundation: | CONCRETE | Heating: | HEAT PUMP | | Interior Finish: | DRYWALL PAINT | Plumbing Fixture Cnt: | 10 | | Roof Slope: | 6" IN 12" | Roof Structure/Cover: | CJ ALUMINIUM HEAVY |
|
| | Type | Description | Class CD | Sub Class CD | Year Built | Area |
| | BAS | BASE/MAIN FLOOR | 4 | 0 | 1997 | 1140.5 |
| | OWP | OPEN WOOD PORCH W/STEPS | 4 | 0 | 1997 | 228.0 |
| | DGR | DETACHED GARAGE | 4 | 0 | 1997 | 698.2 |
| | UPS | UPPER STORY | 4 | 0 | 1997 | 647.6 |
| | OWP | OPEN WOOD PORCH W/STEPS | 4 | 0 | 1997 | 98.3 |
| | OWP | OPEN WOOD PORCH W/STEPS | 4 | 0 | 1997 | 80.2 |
| | OWP | OPEN WOOD PORCH W/STEPS | 4 | 0 | 1997 | 471.5 |
| | OWR | OPEN WOOD PORCH W/STEPS/ROOF | 4 | 0 | 1997 | 33.6 |
| | OWR | OPEN WOOD PORCH W/STEPS/ROOF | 4 | 0 | 1997 | 18.0 |
| | ENP | ENCLOSED PORCH | 4 | 0 | 1997 | 602.3 |
Sketch
Property Image
Land
| 1 | 18 | AC (02.01-03.00) | 2.3900 | 104108.40 | 0.00 | 0.00 | 1.00 | $310,000 | $0 |
Roll Value History
| 2026 | N/A | N/A | N/A | N/A | N/A |
| 2025 | $544,268 | $310,000 | $0 | $854,268 | $854,268 |
| 2024 | $544,428 | $270,000 | $0 | $814,428 | $814,428 |
| 2023 | $550,597 | $250,000 | $0 | $800,597 | $800,597 |
| 2022 | $502,763 | $240,000 | $0 | $742,763 | $742,763 |
| 2021 | $441,064 | $170,000 | $0 | $611,064 | $611,064 |
| 2020 | $386,019 | $130,000 | $0 | $516,019 | $516,019 |
| 2019 | $295,839 | $200,000 | $0 | $495,839 | $495,839 |
| 2018 | $296,632 | $155,000 | $0 | $451,632 | $451,632 |
| 2017 | $207,908 | $115,000 | $0 | $322,908 | $322,908 |
| 2016 | $210,442 | $120,000 | $0 | $330,442 | $330,442 |
| 2015 | $212,980 | $100,000 | $0 | $312,980 | $312,980 |
| 2014 | $215,513 | $95,000 | $0 | $310,513 | $310,513 |
| 2013 | $210,442 | $100,000 | $0 | $310,442 | $310,442 |
| 2012 | $212,980 | $103,700 | $0 | $316,680 | $316,680 |
| 2011 | $215,513 | $122,000 | $0 | $337,513 | $337,513 |
| 2010 | $225,445 | $122,000 | $0 | $347,445 | $347,445 |
| 2009 | $235,105 | $131,750 | $0 | $366,855 | $366,855 |
| 2008 | $237,881 | $127,000 | $0 | $364,881 | $364,881 |
| 2007 | $240,667 | $118,000 | $0 | $358,667 | $358,667 |
Deed and Sales History
| 1 | 11/30/2020 | WD | Warranty Deed | MARSHALL, ALAN F | PINZONE, GABRIEL DEMIAN GUTIERREZ | | | $692,000.00 | 46021 | 4504455 |
| 2 | 11/01/2017 | WD | Warranty Deed | OTLEY, KATHLEEN | MARSHALL, ALAN F | | | $481,000.00 | 31801 | 4433478 |
| 3 | 08/18/2005 | WD | Warranty Deed | EDENHOLM, BETTY J | OTLEY, KATHLEEN | | | $368,700.00 | 54356 | 4146224 |
| 4 | 09/01/1997 | QCD | Quit Claim Deed | VERHEYDEN, BETTY | EDENHOLM, BETTY J | | | $0.00 | 73368 | 97015922 |
| 5 | 05/01/1996 | WD | Warranty Deed | MARCZEWSKI, STANLEY W | VERHEYDEN, BETTY | | | $33,210.00 | 61836 | 96009236 |
| 6 | 09/01/1978 | OTHER | Other - Misc. Documents | Unknown | MARCZEWSKI, STANLEY W | | | $8,000.00 | 84497 | 339652 |
Payout Agreement
| No payout information available.. |