Property
Account |
| Property ID: | 431358 | Abbreviated Legal Description: | WILDWOOD PK LOT 2 TGW 1/29TH INT IN WELL & IN N25' OF LOT 20 |
| Geographic ID: | S8450-00-00002-0 | Agent Code: | |
| Type: | Real | | |
| Tax Area: | 760 - APPRAISER-S Whid Schl Dist, Special District, improved & less than 1 acre | Land Use Code | 11 |
| Open Space: | N | DFL | N |
| Historic Property: | N | Remodel Property: | N |
| Multi-Family Redevelopment: | N | | |
| Township: | | Section: | |
| Range: | |
Location |
| Address: | | Mapsco: | |
| Neighborhood: | Cycle 3 | Map ID: | 332 |
| Neighborhood CD: | 3 |
Owner |
| Name: | KERMGARD JTWROS, AMY ANN | Owner ID: | 306122 |
| Mailing Address: | BEATRICE LEIGH JONES JTWROS 5701 SYLVAN DR FREELAND, WA 98249-9721 | % Ownership: | 100.0000000000% |
| | | Exemptions: | |
Taxes and Assessment Details
Values
| (+) Improvement Homesite Value: | + | $0 | |
| (+) Improvement Non-Homesite Value: | + | $174,808 | |
| (+) Land Homesite Value: | + | $0 | |
| (+) Land Non-Homesite Value: | + | $240,000 | |
| (+) Curr Use (HS): | + | $0 | $0 |
| (+) Curr Use (NHS): | + | $0 | $0 |
| | | -------------------------- | |
| (=) Market Value: | = | $414,808 | |
| (–) Productivity Loss: | – | $0 | |
| | | -------------------------- | |
| (=) Subtotal: | = | $414,808 | |
| (+) Senior Appraised Value: | + | $0 | |
| (+) Non-Senior Appraised Value: | + | $414,808 | |
| | | -------------------------- | |
| (=) Total Appraised Value: | = | $414,808 | |
| (–) Senior Exemption Loss: | – | $0 | |
| (–) Exemption Loss: | – | $0 | |
| | | -------------------------- | |
| (=) Taxable Value: | = | $414,808 | |
Taxing Jurisdiction
| Owner: | KERMGARD JTWROS, AMY ANN | | |
| % Ownership: | 100.0000000000% | | |
| Total Value: | $414,808 | | |
| Tax Area: | 760 - APPRAISER-S Whid Schl Dist, Special District, improved & less than 1 acre |
| CF | Conservation Futures | 0.0316035091 | $414,808 | $414,808 | $13.11 | | |
| FIRE3 | Fire & Rescue Dist #3 S Whidbey GEN | 1.2004855531 | $414,808 | $414,808 | $497.97 | | |
| HOBOND | Hospital BOND | 0.1910887512 | $414,808 | $414,808 | $79.27 | | |
| HOGEN | Hospital GEN | 0.3902502903 | $414,808 | $414,808 | $161.88 | | |
| CE | County Current Expense | 0.3708482477 | $414,808 | $414,808 | $153.83 | | |
| CR | County Roads | 0.4584763726 | $414,808 | $414,808 | $190.18 | | |
| ISLANDEMS | Hospital GEN (EMS) | 0.5000000000 | $414,808 | $414,808 | $207.40 | | |
| LIB | Library Sno-Isle GEN | 0.3153421757 | $414,808 | $414,808 | $130.81 | | |
| PORTWHID | Port of S Whidbey GEN | 0.1094540357 | $414,808 | $414,808 | $45.40 | | |
| SCH206BOND | School 206 BOND | 0.3161759235 | $414,808 | $414,808 | $131.15 | | |
| SCH206MO | School 206 Enrichment | 0.4547169547 | $414,808 | $414,808 | $188.62 | | |
| ST | State School | 1.3035497053 | $414,808 | $414,808 | $540.72 | | |
| ST2 | State School Part 2 | 0.8169543533 | $414,808 | $414,808 | $338.88 | | |
| SWHIDPRBD | P & R S Whidbey BOND | 0.0152817568 | $414,808 | $414,808 | $6.34 | | |
| SWHIDPRBD2 | P & R S Whidbey BOND2 | 0.0138911264 | $414,808 | $414,808 | $5.76 | | |
| SWHIDPRMT | P & R S Whidbey GEN | 0.2053334452 | $414,808 | $414,808 | $85.17 | | |
| | Total Tax Rate: | 6.6934522006 | | | | | |
| | | | | Taxes w/Current Exemptions: | $2,776.49 | | |
| | | | | Taxes w/o Exemptions: | $2,776.49 | | |
Improvement / Building
| Improvement #1: | MANUFACTURED HOME | State Code: | Y | 1680.0 sqft | Value: | $174,808 |
| Bathrooms: | 2 | Bedrooms: | 3 | | Ceiling: | PLASTER PAINTED | Cooling: | EVAP NO DUCT | | Exterior Wall/Cover: | VINYL | Floor Covering: | CARPET 100% | | Floor Structure: | SLAB ON GRADE | Foundation: | SLAB | | Heating: | FHA ELECTRIC | Interior Finish: | PLASTER | | Plumbing Fixture Cnt: | 1 | Roof Slope: | FLAT | | Roof Structure/Cover: | CJ ALUMINIUM HEAVY |   |   |
|
Sketch
Property Image
Land
| 1 | 15 | SQ (12001-21780) | 0.0000 | 0.00 | 0.00 | 0.00 | 1.00 | $240,000 | $0 |
Roll Value History
| 2026 | N/A | N/A | N/A | N/A | N/A |
| 2025 | $174,808 | $240,000 | $0 | $414,808 | $414,808 |
| 2024 | $176,610 | $230,000 | $0 | $406,610 | $406,610 |
| 2023 | $155,143 | $230,000 | $0 | $385,143 | $385,143 |
| 2022 | $0 | $40,000 | $0 | $40,000 | $40,000 |
| 2021 | $0 | $35,000 | $0 | $35,000 | $35,000 |
| 2020 | $0 | $35,000 | $0 | $35,000 | $35,000 |
| 2019 | $0 | $70,000 | $0 | $70,000 | $70,000 |
| 2018 | $0 | $70,000 | $0 | $70,000 | $70,000 |
| 2017 | $0 | $70,000 | $0 | $70,000 | $70,000 |
| 2016 | $0 | $70,000 | $0 | $70,000 | $70,000 |
| 2015 | $0 | $70,000 | $0 | $70,000 | $70,000 |
| 2014 | $0 | $70,000 | $0 | $70,000 | $70,000 |
| 2013 | $0 | $70,000 | $0 | $70,000 | $70,000 |
| 2012 | $0 | $67,000 | $0 | $67,000 | $67,000 |
| 2011 | $0 | $67,000 | $0 | $67,000 | $67,000 |
| 2010 | $0 | $67,000 | $0 | $67,000 | $67,000 |
| 2009 | $0 | $70,800 | $0 | $70,800 | $70,800 |
| 2008 | $0 | $75,800 | $0 | $75,800 | $75,800 |
| 2007 | $0 | $28,550 | $0 | $28,550 | $28,550 |
Deed and Sales History
| 1 | 08/29/2022 | QCD | Quit Claim Deed | JONES, JEFFREY LYNN | JONES, BEATRICE LEIGH | | | $0.00 | 54382 | 4550552 |
| 2 | 08/29/2022 | QCD | Quit Claim Deed | KERMGARD JTWROS, AMY ANN | JONES, BEATRICE LEIGH | | | $0.00 | 54382 | 4550552 |
| 3 | 08/30/2022 | QCD | Quit Claim Deed | KERMGARD, DAVID JOHN | KERMGARD, AMY ANN | | | $0.00 | 54381 | 4550551 |
| 4 | 08/25/2022 | WD | Warranty Deed | HENLEY, LLC | KERMGARD JTWROS, AMY ANN | | | $419,000.00 | 54380 | 4550550 |
| 5 | 06/28/2021 | WD | Warranty Deed | KNIGHT, SHARON JAMIE | HENLEY, LLC | | | $63,000.00 | 49013 | 4523527 |
| 6 | 06/25/2021 | QCD | Quit Claim Deed | VOLKOV, KOREEN | KNIGHT, SHARON JAMIE | | | $0.00 | 49012 | 4523526 |
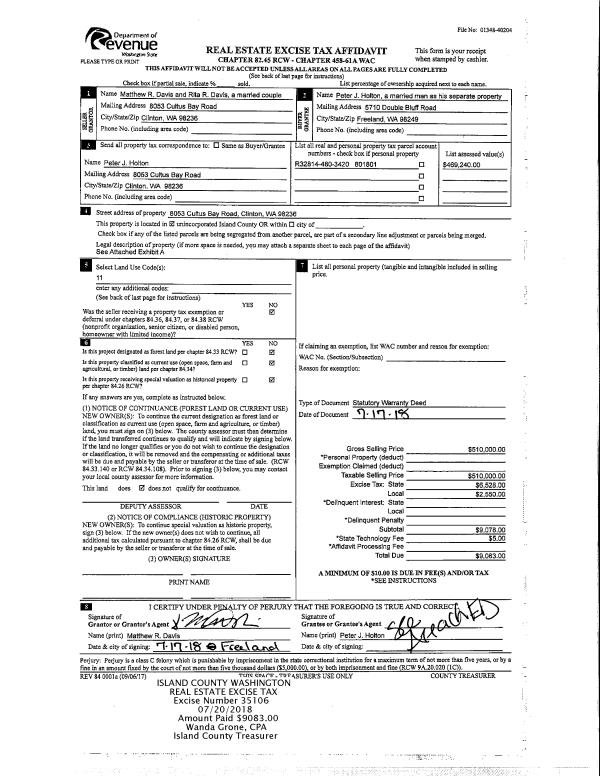
| 7 | 04/17/2018 | QCD | Quit Claim Deed | VOLKOV III, JAMES D | KNIGHT, SHARON JAMIE | | | $0.00 | 34719 | 4446951 |
| 8 | 06/21/2012 | QCD | Quit Claim Deed | KNIGHT, SHARON J & BRUCE E | VOLKOV III, JAMES D | | | $0.00 | 8166 | 4318818 |
| 9 | 07/07/2005 | WD | Warranty Deed | GRADDON, H RICHARD | KNIGHT, SHARON J & BRUCE E | | | $31,000.00 | 53337 | 4140453 |
| 10 | 01/01/1900 | OTHER | Other - Misc. Documents | Unknown | GRADDON, H RICHARD | | | $0.00 | 0 | 0 |
Payout Agreement
| No payout information available.. |