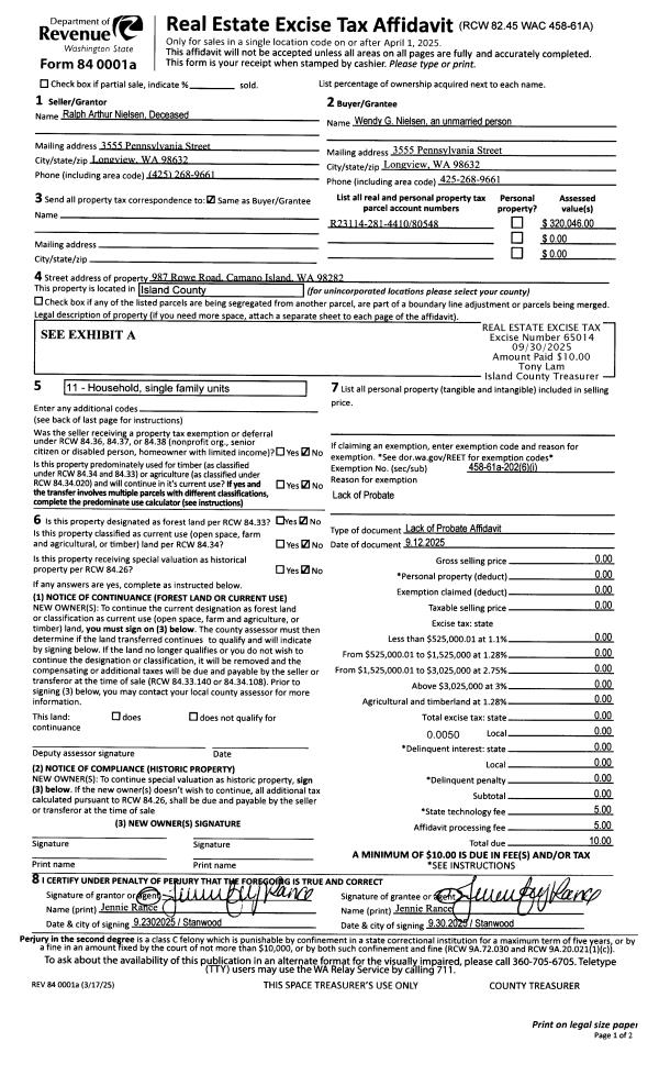
Property
Account |
| Property ID: | 431615 | Abbreviated Legal Description: | WILDWOOD VW AC LOT 1 EX PT TO ST HWY AF#99014128 & AF#20034796 |
| Geographic ID: | S8455-00-00001-0 | Agent Code: | |
| Type: | Real | | |
| Tax Area: | 312 - APPRAISER-Cpvl Schl Dist, outside Cpvl, improved, greater than 1 acre | Land Use Code | 11 |
| Open Space: | N | DFL | N |
| Historic Property: | N | Remodel Property: | N |
| Multi-Family Redevelopment: | N | | |
| Township: | | Section: | |
| Range: | |
Location |
| Address: | 521 ELLWOOD DR COUPEVILLE, WA 98239 | Mapsco: | |
| Neighborhood: | Cycle 3 | Map ID: | 357 |
| Neighborhood CD: | 3 |
Owner |
| Name: | ROBERTSON, KAY | Owner ID: | 280343 |
| Mailing Address: | PO BOX 500 CLINTON, WA 98236 | % Ownership: | 100.0000000000% |
| | | Exemptions: | |
Taxes and Assessment Details
Values
| (+) Improvement Homesite Value: | + | $0 | |
| (+) Improvement Non-Homesite Value: | + | $201,713 | |
| (+) Land Homesite Value: | + | $0 | |
| (+) Land Non-Homesite Value: | + | $310,000 | |
| (+) Curr Use (HS): | + | $0 | $0 |
| (+) Curr Use (NHS): | + | $0 | $0 |
| | | -------------------------- | |
| (=) Market Value: | = | $511,713 | |
| (–) Productivity Loss: | – | $0 | |
| | | -------------------------- | |
| (=) Subtotal: | = | $511,713 | |
| (+) Senior Appraised Value: | + | $0 | |
| (+) Non-Senior Appraised Value: | + | $511,713 | |
| | | -------------------------- | |
| (=) Total Appraised Value: | = | $511,713 | |
| (–) Senior Exemption Loss: | – | $0 | |
| (–) Exemption Loss: | – | $0 | |
| | | -------------------------- | |
| (=) Taxable Value: | = | $511,713 | |
Taxing Jurisdiction
| Owner: | ROBERTSON, KAY | | |
| % Ownership: | 100.0000000000% | | |
| Total Value: | $511,713 | | |
| Tax Area: | 312 - APPRAISER-Cpvl Schl Dist, outside Cpvl, improved, greater than 1 acre |
| CF | Conservation Futures | 0.0316035091 | $511,713 | $511,713 | $16.17 | | |
| CEM2 | Cemetery #2 | 0.0095056933 | $511,713 | $511,713 | $4.86 | | |
| FIRE5 | Fire & Rescue Dist #5 C Whidbey GEN | 1.2008080668 | $511,713 | $511,713 | $614.47 | | |
| FIRE5BOND | Fire & Rescue Dist #5 C Whidbey BOND | 0.1400090713 | $511,713 | $511,713 | $71.64 | | |
| HOBOND | Hospital BOND | 0.1910887512 | $511,713 | $511,713 | $97.78 | | |
| HOGEN | Hospital GEN | 0.3902502903 | $511,713 | $511,713 | $199.70 | | |
| CE | County Current Expense | 0.3708482477 | $511,713 | $511,713 | $189.77 | | |
| CR | County Roads | 0.4584763726 | $511,713 | $511,713 | $234.61 | | |
| ISLANDEMS | Hospital GEN (EMS) | 0.5000000000 | $511,713 | $511,713 | $255.86 | | |
| LIB | Library Sno-Isle GEN | 0.3153421757 | $511,713 | $511,713 | $161.36 | | |
| LIBCAP | Library Sno-Isle BOND (Cap Fac Imp Area) | 0.0543427938 | $511,713 | $511,713 | $27.81 | | |
| POCOUP | Port of Coupeville GEN | 0.1093371703 | $511,713 | $511,713 | $55.95 | | |
| POCOUPIDD | Port of Coupeville IDD | 0.3409740022 | $511,713 | $511,713 | $174.48 | | |
| COUPSDTECH | School 204 CP (TECH) | 0.7545480007 | $511,713 | $511,713 | $386.11 | | |
| SCH204MO | School 204 Enrichment | 0.6716186034 | $511,713 | $511,713 | $343.68 | | |
| ST | State School | 1.3035497053 | $511,713 | $511,713 | $667.04 | | |
| ST2 | State School Part 2 | 0.8169543533 | $511,713 | $511,713 | $418.05 | | |
| | Total Tax Rate: | 7.6592568070 | | | | | |
| | | | | Taxes w/Current Exemptions: | $3,919.34 | | |
| | | | | Taxes w/o Exemptions: | $3,919.34 | | |
Improvement / Building
| Improvement #1: | MANUFACTURED HOME | State Code: | Y | 1296.0 sqft | Value: | $201,713 |
| Bathrooms: | 1 | Bedrooms: | 2 | | Ceiling: | PLASTER PAINTED | Cooling: | EVAP NO DUCT | | Exterior Wall/Cover: | VINYL | Floor Covering: | CARPET 100% | | Floor Structure: | SLAB ON GRADE | Foundation: | SLAB | | Heating: | FHA ELECTRIC | Interior Finish: | PLASTER | | Roof Slope: | FLAT | Roof Structure/Cover: | CJ ALUMINIUM HEAVY |
|
| | Type | Description | Class CD | Sub Class CD | Year Built | Area |
| | BAS | BASE/MAIN FLOOR | 4 | 0 | 2020 | 1296.0 |
| | OWP | OPEN WOOD PORCH W/STEPS | 4 | 0 | 2020 | 77.0 |
| | UTY | STORAGE/UTILITY | 4 | 0 | 2020 | 2080.0 |
| | CPD | OPEN CARPORT DIRT FLOOR | 4 | 0 | 2020 | 468.0 |
Sketch
Property Image
Land
| 1 | 18 | AC (02.01-03.00) | 2.6300 | 114562.80 | 0.00 | 0.00 | 1.00 | $310,000 | $0 |
Roll Value History
| 2026 | N/A | N/A | N/A | N/A | N/A |
| 2025 | $201,713 | $310,000 | $0 | $511,713 | $511,713 |
| 2024 | $206,005 | $270,000 | $0 | $476,005 | $476,005 |
| 2023 | $183,249 | $250,000 | $0 | $433,249 | $433,249 |
| 2022 | $153,647 | $240,000 | $0 | $393,647 | $393,647 |
| 2021 | $135,355 | $170,000 | $0 | $305,355 | $305,355 |
| 2020 | $129,776 | $130,000 | $0 | $259,776 | $259,776 |
| 2019 | $76,595 | $200,000 | $0 | $276,595 | $276,595 |
| 2018 | $77,004 | $155,000 | $0 | $232,004 | $232,004 |
| 2017 | $77,413 | $115,000 | $0 | $192,413 | $192,413 |
| 2016 | $77,822 | $120,000 | $0 | $197,822 | $197,822 |
| 2015 | $78,231 | $100,000 | $0 | $178,231 | $178,231 |
| 2014 | $78,640 | $95,000 | $0 | $173,640 | $173,640 |
| 2013 | $96,337 | $95,000 | $0 | $191,337 | $191,337 |
| 2012 | $96,796 | $103,700 | $0 | $200,496 | $200,496 |
| 2011 | $97,256 | $122,000 | $0 | $219,256 | $219,256 |
| 2010 | $95,680 | $122,000 | $0 | $217,680 | $217,680 |
| 2009 | $98,239 | $131,750 | $0 | $229,989 | $229,989 |
| 2008 | $99,815 | $127,000 | $0 | $226,815 | $226,815 |
| 2007 | $101,443 | $118,000 | $0 | $219,443 | $219,443 |
Deed and Sales History
| 1 | 06/07/2017 | SPWARDEED | Special Warranty Deed | ROBERTSON CO TRUSTEE, BRADLEY E | ROBERTSON, KAY | | | $0.00 | 29692 | 4424077 |
| 2 | 03/06/2014 | WD | Warranty Deed | JURKOVICH, MARK | ROBERTSON CO TRUSTEE, BRADLEY E | | | $158,300.00 | 14521 | 4356335 |
| 3 | 02/24/2014 | QCD | Quit Claim Deed | JURKOVICH, MARK | JURKOVICH, MARK | | | $0.00 | 14520 | 4356334 |
| 4 | 12/10/2006 | WD | Warranty Deed | C M BAILE LLC, | JURKOVICH, MARK | | | $220,000.00 | 70080 | 4191283 |
| 5 | 06/29/2006 | QCD | Quit Claim Deed | BAILIE, CHARLOTTE M | C M BAILE LLC, | | | $0.00 | 63131 | 4176510 |
| 6 | 05/18/2001 | WD | Warranty Deed | BAILIE, CHARLOTTE M | BAILIE, CHARLOTTE M | | | $800.00 | 12199 | 20034796 |
| 7 | 05/17/1999 | WD | Warranty Deed | BAILIE, CHARLOTTE M | BAILIE, CHARLOTTE M | | | $4,000.00 | 92281 | 99014128 |
| 8 | 05/01/1996 | OTHER | Other - Misc. Documents | CONVERSE, IVAN T | BAILIE, CHARLOTTE M | | | $0.00 | 66908 | 0 |
| 9 | 09/01/1995 | QCD | Quit Claim Deed | BAILIE, CHARLOTTE M | CONVERSE, IVAN T | | | $0.00 | 53105 | 95014310 |
| 10 | 02/01/1995 | OTHER | Other - Misc. Documents | CONVERSE, IVAN | BAILIE, CHARLOTTE M | | | $21,000.00 | 11111111 | 0 |
| 11 | 01/01/1995 | DECREE | Divorce Decree/Legal Separation | CONVERSE, IVAN | CONVERSE, IVAN | | | $0.00 | 50047 | 95000241 |
| 12 | 01/01/1900 | OTHER | Other - Misc. Documents | Unknown | CONVERSE, IVAN | | | $0.00 | 0 | 0 |
Payout Agreement
| No payout information available.. |