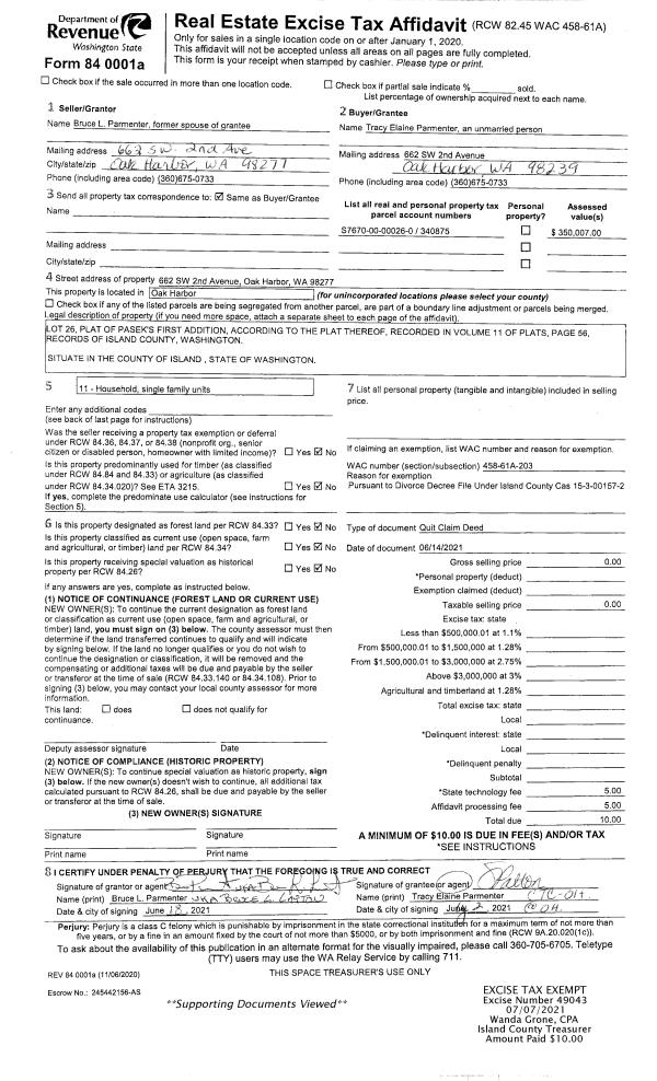
Property
Account |
| Property ID: | 431642 | Abbreviated Legal Description: | WILDWOOD VW AC LOT 4 EXTINGUISH DRAINFIELD EZ AF#4209690 |
| Geographic ID: | S8455-00-00004-0 | Agent Code: | |
| Type: | Real | | |
| Tax Area: | 312 - APPRAISER-Cpvl Schl Dist, outside Cpvl, improved, greater than 1 acre | Land Use Code | 11 |
| Open Space: | N | DFL | N |
| Historic Property: | N | Remodel Property: | N |
| Multi-Family Redevelopment: | N | | |
| Township: | | Section: | |
| Range: | |
Location |
| Address: | 581 ELLWOOD DR COUPEVILLE, WA 98239 | Mapsco: | |
| Neighborhood: | Cycle 3 | Map ID: | 357 |
| Neighborhood CD: | 3 |
Owner |
| Name: | FOSS, MELISSA LOUISE | Owner ID: | 316773 |
| Mailing Address: | JULIE HOMUNG 9825 180TH SJT SE SNOHOMISH, WA 98296 | % Ownership: | 100.0000000000% |
| | | Exemptions: | |
Taxes and Assessment Details
Values
| (+) Improvement Homesite Value: | + | $0 | |
| (+) Improvement Non-Homesite Value: | + | $461,115 | |
| (+) Land Homesite Value: | + | $0 | |
| (+) Land Non-Homesite Value: | + | $350,000 | |
| (+) Curr Use (HS): | + | $0 | $0 |
| (+) Curr Use (NHS): | + | $0 | $0 |
| | | -------------------------- | |
| (=) Market Value: | = | $811,115 | |
| (–) Productivity Loss: | – | $0 | |
| | | -------------------------- | |
| (=) Subtotal: | = | $811,115 | |
| (+) Senior Appraised Value: | + | $0 | |
| (+) Non-Senior Appraised Value: | + | $811,115 | |
| | | -------------------------- | |
| (=) Total Appraised Value: | = | $811,115 | |
| (–) Senior Exemption Loss: | – | $0 | |
| (–) Exemption Loss: | – | $0 | |
| | | -------------------------- | |
| (=) Taxable Value: | = | $811,115 | |
Taxing Jurisdiction
| Owner: | FOSS, MELISSA LOUISE | | |
| % Ownership: | 100.0000000000% | | |
| Total Value: | $811,115 | | |
| Tax Area: | 312 - APPRAISER-Cpvl Schl Dist, outside Cpvl, improved, greater than 1 acre |
| CF | Conservation Futures | 0.0316035091 | $811,115 | $811,115 | $25.63 | | |
| CEM2 | Cemetery #2 | 0.0095056933 | $811,115 | $811,115 | $7.71 | | |
| FIRE5 | Fire & Rescue Dist #5 C Whidbey GEN | 1.2008080668 | $811,115 | $811,115 | $973.99 | | |
| FIRE5BOND | Fire & Rescue Dist #5 C Whidbey BOND | 0.1400090713 | $811,115 | $811,115 | $113.56 | | |
| HOBOND | Hospital BOND | 0.1910887512 | $811,115 | $811,115 | $154.99 | | |
| HOGEN | Hospital GEN | 0.3902502903 | $811,115 | $811,115 | $316.54 | | |
| CE | County Current Expense | 0.3708482477 | $811,115 | $811,115 | $300.80 | | |
| CR | County Roads | 0.4584763726 | $811,115 | $811,115 | $371.88 | | |
| ISLANDEMS | Hospital GEN (EMS) | 0.5000000000 | $811,115 | $811,115 | $405.56 | | |
| LIB | Library Sno-Isle GEN | 0.3153421757 | $811,115 | $811,115 | $255.78 | | |
| LIBCAP | Library Sno-Isle BOND (Cap Fac Imp Area) | 0.0543427938 | $811,115 | $811,115 | $44.08 | | |
| POCOUP | Port of Coupeville GEN | 0.1093371703 | $811,115 | $811,115 | $88.69 | | |
| POCOUPIDD | Port of Coupeville IDD | 0.3409740022 | $811,115 | $811,115 | $276.57 | | |
| COUPSDTECH | School 204 CP (TECH) | 0.7545480007 | $811,115 | $811,115 | $612.03 | | |
| SCH204MO | School 204 Enrichment | 0.6716186034 | $811,115 | $811,115 | $544.76 | | |
| ST | State School | 1.3035497053 | $811,115 | $811,115 | $1,057.33 | | |
| ST2 | State School Part 2 | 0.8169543533 | $811,115 | $811,115 | $662.64 | | |
| | Total Tax Rate: | 7.6592568070 | | | | | |
| | | | | Taxes w/Current Exemptions: | $6,212.54 | | |
| | | | | Taxes w/o Exemptions: | $6,212.54 | | |
Improvement / Building
| Improvement #1: | RESIDENTIAL | State Code: | Y | 2461.1 sqft | Value: | $461,115 |
| Bathrooms: | 4 | Bedrooms: | 3 | | Ceiling: | BEAM PAINTED | Exterior Wall/Cover: | VINYL | | Floor Covering: | CERAMIC TILE/CPT 40-60 | Floor Structure: | SLAB ABOVE GRADE | | Foundation: | SLAB | Heating: | WALL HEAT ELECTRIC | | Interior Finish: | DRYWALL PAINT | Plumbing Fixture Cnt: | 13 | | Roof Slope: | 5" IN 12" | Roof Structure/Cover: | BEAM ASPHALT |
|
| | Type | Description | Class CD | Sub Class CD | Year Built | Area |
| | BAS | BASE/MAIN FLOOR | 4 | 0 | 1998 | 1283.4 |
| | OP1 | OPEN PORCH SLAB | 4 | 0 | 1998 | 108.3 |
| | OP1 | OPEN PORCH SLAB | 4 | 0 | 1998 | 195.8 |
| | OP4 | OPEN PORCH W/CEILING-ROOF | 4 | 0 | 1998 | 60.4 |
| | UPS | UPPER STORY | 4 | 0 | 1998 | 1177.7 |
| | OWP | OPEN WOOD PORCH W/STEPS | 4 | 0 | 1998 | 268.0 |
| | OWP | OPEN WOOD PORCH W/STEPS | 4 | 0 | 1998 | 208.8 |
| | CPD | OPEN CARPORT DIRT FLOOR | 4 | 0 | 1998 | 180.0 |
Sketch
Property Image
Land
| 1 | 32 | AC (03.01-09.99) | 5.0800 | 221284.80 | 0.00 | 0.00 | 1.00 | $350,000 | $0 |
Roll Value History
| 2026 | N/A | N/A | N/A | N/A | N/A |
| 2025 | $461,115 | $350,000 | $0 | $811,115 | $811,115 |
| 2024 | $459,194 | $340,000 | $0 | $799,194 | $799,194 |
| 2023 | $464,517 | $320,000 | $0 | $784,517 | $784,517 |
| 2022 | $425,451 | $260,000 | $0 | $685,451 | $685,451 |
| 2021 | $374,162 | $230,000 | $0 | $604,162 | $604,162 |
| 2020 | $284,851 | $180,000 | $0 | $464,851 | $464,851 |
| 2019 | $202,192 | $230,000 | $0 | $432,192 | $432,192 |
| 2018 | $202,788 | $220,000 | $0 | $422,788 | $422,788 |
| 2017 | $203,977 | $200,000 | $0 | $403,977 | $403,977 |
| 2016 | $206,355 | $120,000 | $0 | $326,355 | $326,355 |
| 2015 | $208,733 | $100,000 | $0 | $308,733 | $308,733 |
| 2014 | $211,109 | $125,000 | $0 | $336,109 | $336,109 |
| 2013 | $208,067 | $123,444 | $0 | $331,511 | $331,511 |
| 2012 | $210,522 | $123,444 | $0 | $333,966 | $333,966 |
| 2011 | $212,977 | $137,160 | $0 | $350,137 | $350,137 |
| 2010 | $217,081 | $122,000 | $0 | $339,081 | $339,081 |
| 2009 | $226,496 | $131,750 | $0 | $358,246 | $358,246 |
| 2008 | $229,348 | $126,900 | $0 | $356,248 | $356,248 |
| 2007 | $240,023 | $118,000 | $0 | $358,023 | $358,023 |
Deed and Sales History
| 1 | 02/07/2025 | WD | Warranty Deed | SMITH, ERIC RYAN | FOSS, MELISSA LOUISE | | | $715,000.00 | 62564 | 4582232 |
| 2 | 10/30/2020 | WD | Warranty Deed | DODGE, RICHARD J / JANICE L | SMITH, ERIC RYAN | | | $650,000.00 | 45515 | 4501208 |
| 3 | 06/01/1997 | WD | Warranty Deed | MEDLEY, DAVID L | DODGE, RICHARD J | | | $86,300.00 | 72167 | 97010167 |
| 4 | 03/01/1985 | REC | Real Estate Contract | BAYLINSON, ARNOLD | MEDLEY, DAVID L | | | $35,000.00 | 50722 | 85003043 |
| 5 | 04/01/1979 | OTHER | Other - Misc. Documents | Unknown | BAYLINSON, ARNOLD | | | $18,250.00 | 91651 | 350705 |
Payout Agreement
| No payout information available.. |