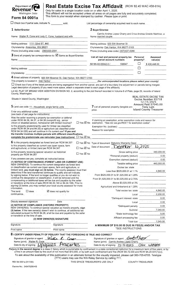
Property
Account |
| Property ID: | 431768 | Abbreviated Legal Description: | WILDWOOD VW AC N300' OF LOT 11 TGW EZ AF#96018138 |
| Geographic ID: | S8455-00-00011-2 | Agent Code: | |
| Type: | Real | | |
| Tax Area: | 312 - APPRAISER-Cpvl Schl Dist, outside Cpvl, improved, greater than 1 acre | Land Use Code | 11 |
| Open Space: | N | DFL | N |
| Historic Property: | N | Remodel Property: | N |
| Multi-Family Redevelopment: | N | | |
| Township: | | Section: | |
| Range: | |
Location |
| Address: | 775 ELLWOOD DR COUPEVILLE, WA 98239 | Mapsco: | |
| Neighborhood: | Cycle 3 | Map ID: | 358 |
| Neighborhood CD: | 3 |
Owner |
| Name: | LAPINSKI, JAMES W | Owner ID: | 252958 |
| Mailing Address: | 775 ELLWOOD DR COUPEVILLE, WA 98239 | % Ownership: | 100.0000000000% |
| | | Exemptions: | SNR/DSBL |
Taxes and Assessment Details
Values
| (+) Improvement Homesite Value: | + | $236,376 | |
| (+) Improvement Non-Homesite Value: | + | $0 | |
| (+) Land Homesite Value: | + | $310,000 | |
| (+) Land Non-Homesite Value: | + | $0 | |
| (+) Curr Use (HS): | + | $0 | $0 |
| (+) Curr Use (NHS): | + | $0 | $0 |
| | | -------------------------- | |
| (=) Market Value: | = | $546,376 | |
| (–) Productivity Loss: | – | $0 | |
| | | -------------------------- | |
| (=) Subtotal: | = | $546,376 | |
| (+) Senior Appraised Value: | + | $252,118 | |
| (+) Non-Senior Appraised Value: | + | $0 | |
| | | -------------------------- | |
| (=) Total Appraised Value: | = | $252,118 | |
| (–) Senior Exemption Loss: | – | $151,271 | |
| (–) Exemption Loss: | – | $0 | |
| | | -------------------------- | |
| (=) Taxable Value: | = | $100,847 | |
Taxing Jurisdiction
| Owner: | LAPINSKI, JAMES W | | |
| % Ownership: | 100.0000000000% | | |
| Total Value: | $546,376 | | |
| Tax Area: | 312 - APPRAISER-Cpvl Schl Dist, outside Cpvl, improved, greater than 1 acre |
| CF | Conservation Futures | 0.0316035091 | $546,376 | $100,847 | $3.19 | | |
| CEM2 | Cemetery #2 | 0.0095056933 | $546,376 | $100,847 | $0.96 | | |
| FIRE5 | Fire & Rescue Dist #5 C Whidbey GEN | 1.2008080668 | $546,376 | $100,847 | $121.10 | | |
| FIRE5BOND | Fire & Rescue Dist #5 C Whidbey BOND | 0.0000000000 | $546,376 | $0 | $0.00 | | |
| HOBOND | Hospital BOND | 0.0000000000 | $546,376 | $0 | $0.00 | | |
| HOGEN | Hospital GEN | 0.3902502903 | $546,376 | $100,847 | $39.36 | | |
| CE | County Current Expense | 0.3708482477 | $546,376 | $100,847 | $37.40 | | |
| CR | County Roads | 0.4584763726 | $546,376 | $100,847 | $46.24 | | |
| ISLANDEMS | Hospital GEN (EMS) | 0.5000000000 | $546,376 | $100,847 | $50.42 | | |
| LIB | Library Sno-Isle GEN | 0.3153421757 | $546,376 | $100,847 | $31.80 | | |
| LIBCAP | Library Sno-Isle BOND (Cap Fac Imp Area) | 0.0000000000 | $546,376 | $0 | $0.00 | | |
| POCOUP | Port of Coupeville GEN | 0.1093371703 | $546,376 | $100,847 | $11.03 | | |
| POCOUPIDD | Port of Coupeville IDD | 0.3409740022 | $546,376 | $100,847 | $34.39 | | |
| COUPSDTECH | School 204 CP (TECH) | 0.0000000000 | $546,376 | $0 | $0.00 | | |
| SCH204MO | School 204 Enrichment | 0.0000000000 | $546,376 | $0 | $0.00 | | |
| ST | State School | 1.3035497053 | $546,376 | $100,847 | $131.46 | | |
| ST2 | State School Part 2 | 0.0000000000 | $546,376 | $0 | $0.00 | | |
| | Total Tax Rate: | 5.0306952333 | | | | | |
| | | | | Taxes w/Current Exemptions: | $507.35 | | |
| | | | | Taxes w/o Exemptions: | $4,184.84 | | |
Improvement / Building
| Improvement #1: | RESIDENTIAL | State Code: | Y | 1292.1 sqft | Value: | $236,376 |
| Bathrooms: | 2 | Bedrooms: | 2 | | Ceiling: | DRYWALL PAINTED | Exterior Wall/Cover: | SHINGLE | | Floor Covering: | CARPET/VINYL 80-20 | Floor Structure: | WOOD W/SUBFLOOR | | Foundation: | CONCRETE | Heating: | WALL HEAT ELECTRIC | | Interior Finish: | DRYWALL PAINT | Plumbing Fixture Cnt: | 9 | | Roof Slope: | 12" IN 12" | Roof Structure/Cover: | CJ ASPHALT |
|
| | Type | Description | Class CD | Sub Class CD | Year Built | Area |
| | BAS | BASE/MAIN FLOOR | 3 | 0 | 1998 | 665.5 |
| | UPS | UPPER STORY | 3 | 0 | 1998 | 626.6 |
| | OWC | OPEN WOOD PORCH W/STEPS/ROOF/C | 3 | 0 | 1998 | 44.5 |
| | ENP | ENCLOSED PORCH | 3 | 0 | 1998 | 100.0 |
| | UTY | STORAGE/UTILITY | 3 | 0 | 1998 | 360.0 |
Sketch
Property Image
Land
| 1 | 18 | AC (02.01-03.00) | 2.8900 | 125888.40 | 0.00 | 0.00 | 1.00 | $310,000 | $0 |
Roll Value History
| 2026 | N/A | N/A | N/A | N/A | N/A |
| 2025 | $236,376 | $310,000 | $0 | $546,376 | $100,847 |
| 2024 | $239,397 | $270,000 | $0 | $509,397 | $100,847 |
| 2023 | $242,239 | $250,000 | $0 | $492,239 | $100,847 |
| 2022 | $222,088 | $240,000 | $0 | $462,088 | $100,847 |
| 2021 | $195,497 | $170,000 | $0 | $365,497 | $100,847 |
| 2020 | $190,325 | $130,000 | $0 | $320,325 | $100,847 |
| 2019 | $114,559 | $200,000 | $0 | $314,559 | $100,847 |
| 2018 | $114,920 | $155,000 | $0 | $269,920 | $100,847 |
| 2017 | $115,550 | $115,000 | $0 | $230,550 | $92,220 |
| 2016 | $116,994 | $120,000 | $0 | $236,994 | $94,798 |
| 2015 | $118,440 | $100,000 | $0 | $218,440 | $87,376 |
| 2014 | $119,883 | $95,000 | $0 | $214,883 | $85,953 |
| 2013 | $121,328 | $95,000 | $0 | $216,328 | $86,531 |
| 2012 | $122,773 | $103,700 | $0 | $226,473 | $90,589 |
| 2011 | $124,517 | $122,000 | $0 | $246,517 | $98,607 |
| 2010 | $130,118 | $122,000 | $0 | $252,118 | $182,118 |
| 2009 | $135,669 | $131,750 | $0 | $267,419 | $267,419 |
| 2008 | $137,252 | $127,000 | $0 | $264,252 | $264,252 |
| 2007 | $134,278 | $118,000 | $0 | $252,278 | $252,278 |
Deed and Sales History
| 1 | 12/01/2010 | QCD | Quit Claim Deed | KLASSEN JTWROS, JANE | LAPINSKI, JAMES W | | | $0.00 | 3232 | 4287565 |
| 2 | 05/05/2003 | QCD | Quit Claim Deed | KLASSEN, JANE | KLASSEN JTWROS, JANE | | | $0.00 | 31891 | 4057847 |
| 3 | 03/01/1997 | WD | Warranty Deed | ALOHA, LUMBER C | KLASSEN, JANE | | | $29,900.00 | 70871 | 97004011 |
| 4 | 10/01/1996 | QCD | Quit Claim Deed | ALOHA, LUMBER C | ALOHA, LUMBER C | | | $0.00 | 63772 | 96018138 |
| 5 | 04/01/1993 | WD | Warranty Deed | CHRISTENSEN, JAMES A | ALOHA, LUMBER C | | | $28,000.00 | 31770 | 93009265 |
| 6 | 08/01/1985 | WD | Warranty Deed | OLSON, STEPHEN W | CHRISTENSEN, JAMES A | | | $20,625.00 | 52441 | 85009630 |
| 7 | 01/01/1900 | OTHER | Other - Misc. Documents | Unknown | OLSON, STEPHEN W | | | $0.00 | 0 | 0 |
Payout Agreement
| No payout information available.. |