Property
Account |
| Property ID: | 432044 | Abbreviated Legal Description: | WILKES GARY HTS PT LOT 3 BLK 1: BG NW CR L1 BLK 1 S72*E419.01' S72*E104 .75' (PT X) N72*W104.75' S298.14'TPB S63*E67.56' ALG CUR/L 41.49' TP S FR PT X S420' TO HI TIDE W ALG TIDE LN TO SD WLN N430'TPB TGW & SUB TO EZ (TR L SP 77-47.3) |
| Geographic ID: | S8460-00-01003-4 | Agent Code: | |
| Type: | Real | | |
| Tax Area: | 540 - APPRAISER-Stan/Cam Schl Dist, Special Dist, improved & less than 1 acre | Land Use Code | 11 |
| Open Space: | N | DFL | N |
| Historic Property: | N | Remodel Property: | N |
| Multi-Family Redevelopment: | N | | |
| Township: | | Section: | |
| Range: | |
Location |
| Address: | 2130 GULL WAY CAMANO ISLAND, WA 98282 | Mapsco: | |
| Neighborhood: | 58RscamWF-South Cam | Map ID: | 888 |
| Neighborhood CD: | 58RscamWF |
Owner |
| Name: | THOMAS, ROBERT G | Owner ID: | 312308 |
| Mailing Address: | PATRICIA K THOMAS 12567 CORLISS AVE NORTH #B SEATTLE, WA 98133 | % Ownership: | 100.0000000000% |
| | | Exemptions: | |
Taxes and Assessment Details
Values
| (+) Improvement Homesite Value: | + | $0 | |
| (+) Improvement Non-Homesite Value: | + | $11,743 | |
| (+) Land Homesite Value: | + | $0 | |
| (+) Land Non-Homesite Value: | + | $300,000 | |
| (+) Curr Use (HS): | + | $0 | $0 |
| (+) Curr Use (NHS): | + | $0 | $0 |
| | | -------------------------- | |
| (=) Market Value: | = | $311,743 | |
| (–) Productivity Loss: | – | $0 | |
| | | -------------------------- | |
| (=) Subtotal: | = | $311,743 | |
| (+) Senior Appraised Value: | + | $0 | |
| (+) Non-Senior Appraised Value: | + | $311,743 | |
| | | -------------------------- | |
| (=) Total Appraised Value: | = | $311,743 | |
| (–) Senior Exemption Loss: | – | $0 | |
| (–) Exemption Loss: | – | $0 | |
| | | -------------------------- | |
| (=) Taxable Value: | = | $311,743 | |
Taxing Jurisdiction
| Owner: | THOMAS, ROBERT G | | |
| % Ownership: | 100.0000000000% | | |
| Total Value: | $311,743 | | |
| Tax Area: | 540 - APPRAISER-Stan/Cam Schl Dist, Special Dist, improved & less than 1 acre |
| CF | Conservation Futures | 0.0316035091 | $311,743 | $311,743 | $9.85 | | |
| EMS1 | Fire & Rescue Dist #1 Camano GEN (EMS) | 0.3677864386 | $311,743 | $311,743 | $114.65 | | |
| FIRE1 | Fire & Rescue Dist #1 Camano GEN | 1.2502910536 | $311,743 | $311,743 | $389.77 | | |
| FIRE1BOND | Fire & Rescue Dist #1 Camano BOND | 0.1570001679 | $311,743 | $311,743 | $48.94 | | |
| CE | County Current Expense | 0.3708482477 | $311,743 | $311,743 | $115.61 | | |
| CR | County Roads | 0.4584763726 | $311,743 | $311,743 | $142.93 | | |
| LCIB | Library Sno-Isle BOND (Camano Island) | 0.0396325772 | $311,743 | $311,743 | $12.36 | | |
| LIB | Library Sno-Isle GEN | 0.3153421757 | $311,743 | $311,743 | $98.31 | | |
| SCH205_401 | School 205-401 Enrichment | 1.2698420524 | $311,743 | $311,743 | $395.86 | | |
| SCH205BOND | School 205-401 BOND | 0.9396497583 | $311,743 | $311,743 | $292.93 | | |
| ST | State School | 1.3035497053 | $311,743 | $311,743 | $406.37 | | |
| ST2 | State School Part 2 | 0.8169543533 | $311,743 | $311,743 | $254.68 | | |
| | Total Tax Rate: | 7.3209764117 | | | | | |
| | | | | Taxes w/Current Exemptions: | $2,282.26 | | |
| | | | | Taxes w/o Exemptions: | $2,282.26 | | |
Improvement / Building
| Improvement #1: | MISC | State Code: | Y | 0.0 sqft | Value: | $11,743 |
| | Type | Description | Class CD | Sub Class CD | Year Built | Area |
| | UTY | STORAGE/UTILITY | 3 | 0 | 2012 | 0.0 |
| | OWP | OPEN WOOD PORCH W/STEPS | 3 | 0 | 2012 | 0.0 |
| | oSEP | SEPTIC | 3 | 0 | 2012 | 0.0 |
Sketch
Property Image
Land
| 1 | HB | HIGH BLUFF | 0.9800 | 42688.80 | 100.00 | 0.00 | 1.00 | $300,000 | $0 |
Roll Value History
| 2026 | N/A | N/A | N/A | N/A | N/A |
| 2025 | $11,743 | $300,000 | $0 | $311,743 | $311,743 |
| 2024 | $11,743 | $275,000 | $0 | $286,743 | $286,743 |
| 2023 | $11,743 | $275,000 | $0 | $286,743 | $286,743 |
| 2022 | $11,743 | $200,000 | $0 | $211,743 | $211,743 |
| 2021 | $11,743 | $175,000 | $0 | $186,743 | $186,743 |
| 2020 | $11,743 | $150,000 | $0 | $161,743 | $161,743 |
| 2019 | $11,743 | $150,000 | $0 | $161,743 | $161,743 |
| 2018 | $11,743 | $150,000 | $0 | $161,743 | $161,743 |
| 2017 | $11,743 | $150,000 | $0 | $161,743 | $161,743 |
| 2016 | $11,743 | $150,000 | $0 | $161,743 | $161,743 |
| 2015 | $7,743 | $200,000 | $0 | $207,743 | $207,743 |
| 2014 | $7,743 | $200,000 | $0 | $207,743 | $207,743 |
| 2013 | $7,743 | $183,905 | $0 | $191,648 | $191,648 |
| 2012 | $7,743 | $183,905 | $0 | $191,648 | $191,648 |
| 2011 | $7,743 | $229,881 | $0 | $237,624 | $237,624 |
| 2010 | $7,743 | $255,423 | $0 | $263,166 | $263,166 |
| 2009 | $0 | $274,622 | $0 | $274,622 | $274,622 |
| 2008 | $0 | $274,535 | $0 | $274,535 | $274,535 |
| 2007 | $0 | $274,535 | $0 | $274,535 | $274,535 |
Deed and Sales History
| 1 | 05/10/2024 | WD | Warranty Deed | DUNCAN, CANDICE L | THOMAS, ROBERT G | | | $300,000.00 | 59926 | 4572235 |
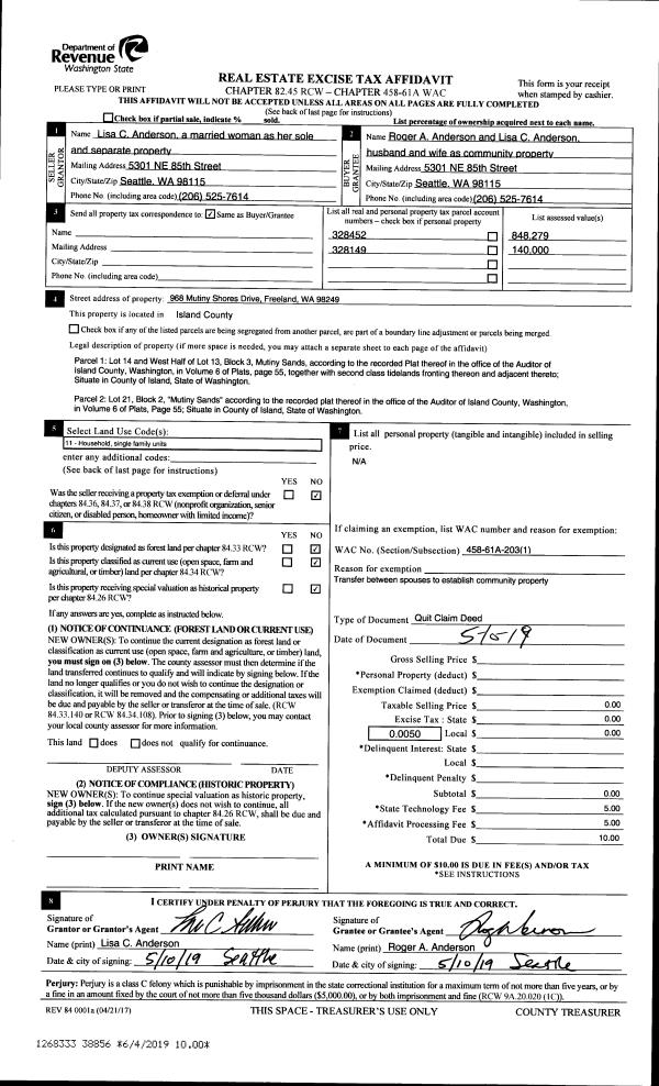
| 2 | 08/28/2023 | QCD | Quit Claim Deed | DUNCAN-GJERTSEN, CANDICE | DUNCAN, CANDICE L | | | $0.00 | 58933 | 4568281 |
| 3 | 05/01/2019 | WD | Warranty Deed | DENNY, RICHARD A | DUNCAN-GJERTSEN, CANDICE | | | $215,000.00 | 38487 | 4463270 |
| 4 | 08/01/1987 | WD | Warranty Deed | DENNY, RICHARD A | DENNY, RICHARD A | | | $47,233.00 | 73898 | 87016944 |
| 5 | 08/01/1987 | QCD | Quit Claim Deed | DENNY, RICHARD A | DENNY, RICHARD A | | | $0.00 | 74064 | 87017668 |
| 6 | 08/01/1987 | QCD | Quit Claim Deed | GARRISON, J B | DENNY, RICHARD A | | | $0.00 | 74065 | 87017669 |
| 7 | 07/01/1979 | CD | DNU - Correction Deed | O'CONNELL, DANIEL A | GARRISON, J B | | | $0.00 | 93514 | 355826 |
| 8 | 01/01/1900 | OTHER | Other - Misc. Documents | O'CONNELL, DANIEL A | O'CONNELL, DANIEL A | | | $0.00 | 0 | 0 |
| 9 | 01/01/1900 | OTHER | Other - Misc. Documents | Unknown | O'CONNELL, DANIEL A | | | $0.00 | 0 | 0 |
Payout Agreement
| No payout information available.. |