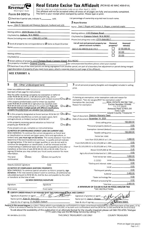
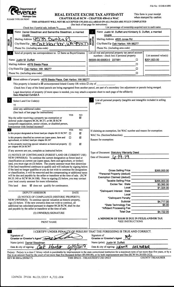
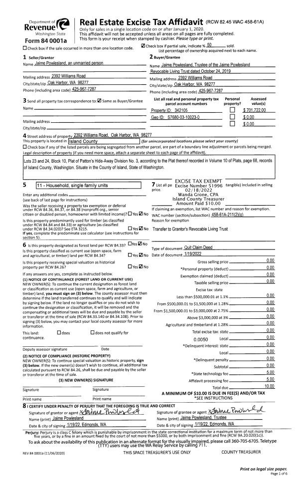
Property
Account |
| Property ID: | 432179 | Abbreviated Legal Description: | WILKES GARY HTS LOT 13 BLK 1 INCL ADJ TIDES |
| Geographic ID: | S8460-00-01013-0 | Agent Code: | |
| Type: | Real | | |
| Tax Area: | 549 - APPRAISER-Stan/Cam Schl Dist, Special Dist, vacant & 50 acres or less | Land Use Code | 99 |
| Open Space: | N | DFL | N |
| Historic Property: | N | Remodel Property: | N |
| Multi-Family Redevelopment: | N | | |
| Township: | | Section: | |
| Range: | |
Location |
| Address: | 5148 SOUTH CAMANO DR CAMANO ISLAND, wa 98282 | Mapsco: | |
| Neighborhood: | 58RscamWF-South Cam | Map ID: | 888 |
| Neighborhood CD: | 58RscamWF |
Owner |
| Name: | HUBER, MARK | Owner ID: | 302437 |
| Mailing Address: | NIRANJAN BOSE & HARISH THEKETHIL 7069 NE 161ST ST KENMORE, WA 98028 | % Ownership: | 100.0000000000% |
| | | Exemptions: | |
Taxes and Assessment Details
Values
| (+) Improvement Homesite Value: | + | $0 | |
| (+) Improvement Non-Homesite Value: | + | $0 | |
| (+) Land Homesite Value: | + | $0 | |
| (+) Land Non-Homesite Value: | + | $477,590 | |
| (+) Curr Use (HS): | + | $0 | $0 |
| (+) Curr Use (NHS): | + | $0 | $0 |
| | | -------------------------- | |
| (=) Market Value: | = | $477,590 | |
| (–) Productivity Loss: | – | $0 | |
| | | -------------------------- | |
| (=) Subtotal: | = | $477,590 | |
| (+) Senior Appraised Value: | + | $0 | |
| (+) Non-Senior Appraised Value: | + | $477,590 | |
| | | -------------------------- | |
| (=) Total Appraised Value: | = | $477,590 | |
| (–) Senior Exemption Loss: | – | $0 | |
| (–) Exemption Loss: | – | $0 | |
| | | -------------------------- | |
| (=) Taxable Value: | = | $477,590 | |
Taxing Jurisdiction
| Owner: | HUBER, MARK | | |
| % Ownership: | 100.0000000000% | | |
| Total Value: | $477,590 | | |
| Tax Area: | 549 - APPRAISER-Stan/Cam Schl Dist, Special Dist, vacant & 50 acres or less |
| CF | Conservation Futures | 0.0316035091 | $477,590 | $477,590 | $15.09 | | |
| EMS1 | Fire & Rescue Dist #1 Camano GEN (EMS) | 0.3677864386 | $477,590 | $477,590 | $175.65 | | |
| CE | County Current Expense | 0.3708482477 | $477,590 | $477,590 | $177.11 | | |
| CR | County Roads | 0.4584763726 | $477,590 | $477,590 | $218.96 | | |
| LCIB | Library Sno-Isle BOND (Camano Island) | 0.0396325772 | $477,590 | $477,590 | $18.93 | | |
| LIB | Library Sno-Isle GEN | 0.3153421757 | $477,590 | $477,590 | $150.60 | | |
| SCH205_401 | School 205-401 Enrichment | 1.2698420524 | $477,590 | $477,590 | $606.46 | | |
| SCH205BOND | School 205-401 BOND | 0.9396497583 | $477,590 | $477,590 | $448.77 | | |
| ST | State School | 1.3035497053 | $477,590 | $477,590 | $622.56 | | |
| ST2 | State School Part 2 | 0.8169543533 | $477,590 | $477,590 | $390.17 | | |
| | Total Tax Rate: | 5.9136851902 | | | | | |
| | | | | Taxes w/Current Exemptions: | $2,824.30 | | |
| | | | | Taxes w/o Exemptions: | $2,824.30 | | |
Improvement / Building
| Improvement #1: | RESIDENTIAL | State Code: | Y | 3672.8 sqft | Value: | $0 |
| Bathrooms: | 4.5 | Bedrooms: | 3 | | Ceiling: | TONGUE & GROOVE | Exterior Wall/Cover: | CEMENT FIBER | | Floor Covering: | COLORED CONCRETE | Floor Structure: | WOOD W/SUBFLOOR | | Foundation: | CONCRETE | Heating: | HEAT PUMP | | Interior Finish: | DRYWALL PAINT | Plumbing Fixture Cnt: | 21 | | Roof Slope: | 1" IN 12" | Roof Structure/Cover: | TPO/MEMBRANE |
|
| | Type | Description | Class CD | Sub Class CD | Year Built | Area |
| | BAS | BASE/MAIN FLOOR | 6 | 0 | 2025 | 3253.3 |
| | LOF | LOFT | 6 | 0 | 2025 | 419.5 |
| | DGR | DETACHED GARAGE | 6 | 0 | 2025 | 585.1 |
| | UTY | STORAGE/UTILITY | 6 | 0 | 2025 | 45.0 |
| | OWP | OPEN WOOD PORCH W/STEPS | 6 | 0 | 2025 | 336.0 |
| | OWC | OPEN WOOD PORCH W/STEPS/ROOF/C | 6 | 0 | 2025 | 1004.6 |
| | OP4 | OPEN PORCH W/CEILING-ROOF | 6 | 0 | 2025 | 319.9 |
| | OP4 | OPEN PORCH W/CEILING-ROOF | 6 | 0 | 2025 | 436.9 |
Sketch
| No sketches available for this property. |
Property Image
Land
| 1 | 55 | TIDES | 0.0000 | 0.00 | 259.00 | 0.00 | 1.00 | $2,590 | $0 |
| 2 | HB | HIGH BLUFF | 3.3200 | 144619.20 | 259.00 | 0.00 | 1.00 | $475,000 | $0 |
Roll Value History
| 2026 | N/A | N/A | N/A | N/A | N/A |
| 2025 | $0 | $477,590 | $0 | $477,590 | $477,590 |
| 2024 | $0 | $452,590 | $0 | $452,590 | $452,590 |
| 2023 | $0 | $452,590 | $0 | $452,590 | $452,590 |
| 2022 | $0 | $402,590 | $0 | $402,590 | $402,590 |
| 2021 | $0 | $202,590 | $0 | $202,590 | $202,590 |
| 2020 | $0 | $177,590 | $0 | $177,590 | $177,590 |
| 2019 | $0 | $202,590 | $0 | $202,590 | $202,590 |
| 2018 | $0 | $152,590 | $0 | $152,590 | $152,590 |
| 2017 | $0 | $152,590 | $0 | $152,590 | $152,590 |
| 2016 | $0 | $152,590 | $0 | $152,590 | $152,590 |
| 2015 | $0 | $212,590 | $0 | $212,590 | $212,590 |
| 2014 | $0 | $212,590 | $0 | $212,590 | $212,590 |
| 2013 | $0 | $267,364 | $0 | $267,364 | $267,364 |
| 2012 | $0 | $267,364 | $0 | $267,364 | $267,364 |
| 2011 | $0 | $333,558 | $0 | $333,558 | $333,558 |
| 2010 | $0 | $475,402 | $0 | $475,402 | $475,402 |
| 2009 | $0 | $588,845 | $0 | $588,845 | $588,845 |
| 2008 | $0 | $575,241 | $0 | $575,241 | $575,241 |
| 2007 | $0 | $573,428 | $0 | $573,428 | $573,428 |
Deed and Sales History
| 1 | 12/15/2021 | WD | Warranty Deed | WINESTOCK, DENISE J | HUBER, MARK | | | $429,000.00 | 51428 | 4536435 |
| 2 | 10/12/2021 | QCD | Quit Claim Deed | WINESTOCK, MICHAEL J | WINESTOCK, DENISE J | | | $0.00 | 51427 | 4536434 |
| 3 | 07/15/2019 | WD | Warranty Deed | NEGLER CO TRUSTEE, ERIC J | WINESTOCK, MICHAEL J | | | $250,000.00 | 39474 | 4467536 |
| 4 | 11/11/2013 | SPWARDEED | Special Warranty Deed | NEGLER, ERIC J | NEGLER CO TRUSTEE, ERIC J | | | $0.00 | 13599 | 4352147 |
| 5 | 08/01/1997 | WD | Warranty Deed | GARRISON, FIRST F | NEGLER, ERIC & | | | $280,000.00 | 73491 | 97016425 |
| 6 | 08/01/1994 | QCD | Quit Claim Deed | GARRISON, J B | GARRISON, FIRST F | | | $0.00 | 43711 | 94019511 |
| 7 | 09/01/1992 | OTHER | Other - Misc. Documents | GARRISON, J B | GARRISON, J B | | | $0.00 | 65067 | 0 |
| 8 | 01/01/1900 | OTHER | Other - Misc. Documents | Unknown | GARRISON, J B | | | $0.00 | 0 | 0 |
Payout Agreement
| No payout information available.. |