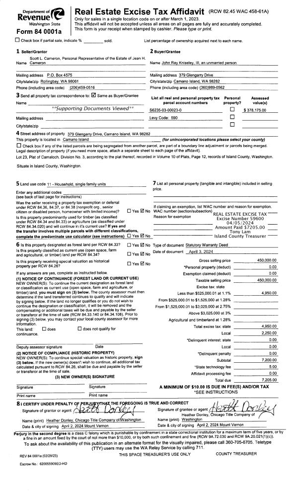
Property
Account |
| Property ID: | 43223 | Abbreviated Legal Description: | 14 - GL 10 E OF CO RD |
| Geographic ID: | R13335-516-0890 | Agent Code: | |
| Type: | Real | | |
| Tax Area: | 112 - APPRAISER-OH Schl Dist, outside OH, improved, greater than 1 acre | Land Use Code | 83 |
| Open Space: | Y | DFL | N |
| Historic Property: | N | Remodel Property: | N |
| Multi-Family Redevelopment: | N | | |
| Township: | 33 | Section: | 35 |
| Range: | R1 |
Location |
| Address: | 1550 N OAK HARBOR RD OAK HARBOR, WA 98277 | Mapsco: | |
| Neighborhood: | Cycle 1 | Map ID: | 258 |
| Neighborhood CD: | 1 |
Owner |
| Name: | HILBERDINK, HENRY A | Owner ID: | 104712 |
| Mailing Address: | 1550 N OAK HARBOR ST OAK HARBOR, WA 98277-3570 | % Ownership: | 100.0000000000% |
| | | Exemptions: | |
Taxes and Assessment Details
Values
| (+) Improvement Homesite Value: | + | $0 | |
| (+) Improvement Non-Homesite Value: | + | $328,644 | |
| (+) Land Homesite Value: | + | $0 | |
| (+) Land Non-Homesite Value: | + | $0 | |
| (+) Curr Use (HS): | + | $0 | $0 |
| (+) Curr Use (NHS): | + | $290,000 | $3,122 |
| | | -------------------------- | |
| (=) Market Value: | = | $618,644 | |
| (–) Productivity Loss: | – | $286,878 | |
| | | -------------------------- | |
| (=) Subtotal: | = | $331,766 | |
| (+) Senior Appraised Value: | + | $0 | |
| (+) Non-Senior Appraised Value: | + | $331,766 | |
| | | -------------------------- | |
| (=) Total Appraised Value: | = | $331,766 | |
| (–) Senior Exemption Loss: | – | $0 | |
| (–) Exemption Loss: | – | $0 | |
| | | -------------------------- | |
| (=) Taxable Value: | = | $331,766 | |
Taxing Jurisdiction
| Owner: | HILBERDINK, HENRY A | | |
| % Ownership: | 100.0000000000% | | |
| Total Value: | $618,644 | | |
| Tax Area: | 112 - APPRAISER-OH Schl Dist, outside OH, improved, greater than 1 acre |
| CF | Conservation Futures | 0.0316035091 | $331,766 | $331,766 | $10.48 | | |
| CEM1 | Cemetery #1 | 0.0040320932 | $331,766 | $331,766 | $1.34 | | |
| FIRE2 | Fire & Rescue Dist #2 N Whidbey GEN | 0.5475949600 | $331,766 | $331,766 | $181.67 | | |
| HOBOND | Hospital BOND | 0.1910887512 | $331,766 | $331,766 | $63.40 | | |
| HOGEN | Hospital GEN | 0.3902502903 | $331,766 | $331,766 | $129.47 | | |
| CE | County Current Expense | 0.3708482477 | $331,766 | $331,766 | $123.03 | | |
| CR | County Roads | 0.4584763726 | $331,766 | $331,766 | $152.11 | | |
| ISLANDEMS | Hospital GEN (EMS) | 0.5000000000 | $331,766 | $331,766 | $165.88 | | |
| LIB | Library Sno-Isle GEN | 0.3153421757 | $331,766 | $331,766 | $104.62 | | |
| NWHIDPRMT | P & R N Whidbey GEN | 0.2004466701 | $331,766 | $331,766 | $66.50 | | |
| SCH201MO | School 201 Enrichment | 1.8559231640 | $331,766 | $331,766 | $615.73 | | |
| ST | State School | 1.3035497053 | $331,766 | $331,766 | $432.47 | | |
| ST2 | State School Part 2 | 0.8169543533 | $331,766 | $331,766 | $271.04 | | |
| | Total Tax Rate: | 6.9861102925 | | | | | |
| | | | | Taxes w/Current Exemptions: | $2,317.74 | | |
| | | | | Taxes w/o Exemptions: | $2,317.74 | | |
Improvement / Building
| Improvement #1: | RESIDENTIAL | State Code: | Y | 1649.2 sqft | Value: | $328,644 |
| Bathrooms: | 2 | Bedrooms: | 3 | | Ceiling: | DRYWALL PAINTED | Cooling: | HEAT PUMP/CONV/V | | Exterior Wall/Cover: | WOOD SIDING | Floor Covering: | CARPET/VINYL 80-20 | | Floor Structure: | WOOD W/SUBFLOOR | Foundation: | CONCRETE | | Interior Finish: | DRYWALL PAINT | Plumbing Fixture Cnt: | 9 | | Roof Slope: | 12" IN 12" | Roof Structure/Cover: | CJ ASPHALT |
|
| | Type | Description | Class CD | Sub Class CD | Year Built | Area |
| | BAS | BASE/MAIN FLOOR | 3 | 0 | 1947 | 1649.2 |
| | ATF | ATTIC FINISHED | 3 | 0 | 1947 | 960.0 |
| | UB6 | BASEMENT UNFINISHED 6" | 3 | 0 | 1947 | 180.0 |
| | OP4 | OPEN PORCH W/CEILING-ROOF | 3 | 0 | 1947 | 67.2 |
| | oBAR | BARN | 3 | 0 | 1947 | 1120.0 |
| | CPD | OPEN CARPORT DIRT FLOOR | 3 | 0 | 1947 | 600.0 |
| | CPD | OPEN CARPORT DIRT FLOOR | 3 | 0 | 1947 | 800.0 |
Sketch
Property Image
Land
| 1 | 32 | AC (03.01-09.99) | 5.1100 | 222591.60 | 0.00 | 0.00 | 1.00 | $290,000 | $3,122 |
Roll Value History
| 2026 | N/A | N/A | N/A | N/A | N/A |
| 2025 | $328,644 | $290,000 | $3,122 | $331,766 | $331,766 |
| 2024 | $313,440 | $260,000 | $3,122 | $316,562 | $316,562 |
| 2023 | $301,641 | $250,000 | $3,122 | $304,763 | $304,763 |
| 2022 | $280,671 | $210,000 | $3,122 | $283,793 | $283,793 |
| 2021 | $252,748 | $190,000 | $3,122 | $255,870 | $255,870 |
| 2020 | $247,993 | $140,000 | $3,122 | $251,115 | $251,115 |
| 2019 | $194,353 | $220,000 | $3,122 | $197,475 | $197,475 |
| 2018 | $201,051 | $170,000 | $3,122 | $204,173 | $204,173 |
| 2017 | $169,369 | $160,000 | $3,122 | $172,491 | $172,491 |
| 2016 | $171,603 | $135,000 | $3,122 | $174,725 | $174,725 |
| 2015 | $173,640 | $117,275 | $3,122 | $176,762 | $176,762 |
| 2014 | $175,874 | $117,275 | $3,122 | $178,996 | $178,996 |
| 2013 | $178,109 | $117,275 | $3,122 | $181,231 | $181,231 |
| 2012 | $180,545 | $117,275 | $3,122 | $183,667 | $183,667 |
| 2011 | $177,421 | $137,970 | $2,886 | $180,307 | $180,307 |
| 2010 | $185,749 | $137,970 | $2,886 | $188,635 | $188,635 |
| 2009 | $103,846 | $91,347 | $2,886 | $192,307 | $192,307 |
| 2008 | $97,581 | $100,467 | $2,886 | $195,162 | $195,162 |
| 2007 | $99,008 | $101,894 | $2,886 | $198,016 | $198,016 |
Deed and Sales History
| 1 | 02/01/1981 | OTHER | Other - Misc. Documents | Unknown | HILBERDINK, HENRY A | | | $11,500.00 | 10438 | 0 |
Payout Agreement
| No payout information available.. |