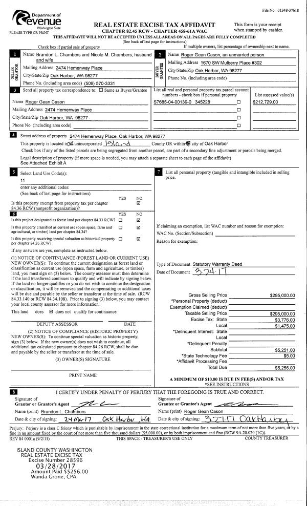
Property
Account |
| Property ID: | 432311 | Abbreviated Legal Description: | WILKES GARY 1ST LOT 9 INCL ADJ TIDES |
| Geographic ID: | S8460-01-00009-0 | Agent Code: | |
| Type: | Real | | |
| Tax Area: | 540 - APPRAISER-Stan/Cam Schl Dist, Special Dist, improved & less than 1 acre | Land Use Code | 11 |
| Open Space: | N | DFL | N |
| Historic Property: | N | Remodel Property: | N |
| Multi-Family Redevelopment: | N | | |
| Township: | | Section: | |
| Range: | |
Location |
| Address: | 4141 WATSON WALK CAMANO ISLAND, WA 98282 | Mapsco: | |
| Neighborhood: | 58RscamWF-South Cam | Map ID: | 892 |
| Neighborhood CD: | 58RscamWF |
Owner |
| Name: | CLARK, LEO | Owner ID: | 278438 |
| Mailing Address: | 8387 CLARK RD MARBLEMOUNT, WA 98267-9731 | % Ownership: | 100.0000000000% |
| | | Exemptions: | |
Taxes and Assessment Details
Values
| (+) Improvement Homesite Value: | + | $0 | |
| (+) Improvement Non-Homesite Value: | + | $66,965 | |
| (+) Land Homesite Value: | + | $0 | |
| (+) Land Non-Homesite Value: | + | $400,900 | |
| (+) Curr Use (HS): | + | $0 | $0 |
| (+) Curr Use (NHS): | + | $0 | $0 |
| | | -------------------------- | |
| (=) Market Value: | = | $467,865 | |
| (–) Productivity Loss: | – | $0 | |
| | | -------------------------- | |
| (=) Subtotal: | = | $467,865 | |
| (+) Senior Appraised Value: | + | $0 | |
| (+) Non-Senior Appraised Value: | + | $467,865 | |
| | | -------------------------- | |
| (=) Total Appraised Value: | = | $467,865 | |
| (–) Senior Exemption Loss: | – | $0 | |
| (–) Exemption Loss: | – | $0 | |
| | | -------------------------- | |
| (=) Taxable Value: | = | $467,865 | |
Taxing Jurisdiction
| Owner: | CLARK, LEO | | |
| % Ownership: | 100.0000000000% | | |
| Total Value: | $467,865 | | |
| Tax Area: | 540 - APPRAISER-Stan/Cam Schl Dist, Special Dist, improved & less than 1 acre |
| CF | Conservation Futures | 0.0316035091 | $467,865 | $467,865 | $14.79 | | |
| EMS1 | Fire & Rescue Dist #1 Camano GEN (EMS) | 0.3677864386 | $467,865 | $467,865 | $172.07 | | |
| FIRE1 | Fire & Rescue Dist #1 Camano GEN | 1.2502910536 | $467,865 | $467,865 | $584.97 | | |
| FIRE1BOND | Fire & Rescue Dist #1 Camano BOND | 0.1570001679 | $467,865 | $467,865 | $73.45 | | |
| CE | County Current Expense | 0.3708482477 | $467,865 | $467,865 | $173.51 | | |
| CR | County Roads | 0.4584763726 | $467,865 | $467,865 | $214.51 | | |
| LCIB | Library Sno-Isle BOND (Camano Island) | 0.0396325772 | $467,865 | $467,865 | $18.54 | | |
| LIB | Library Sno-Isle GEN | 0.3153421757 | $467,865 | $467,865 | $147.54 | | |
| SCH205_401 | School 205-401 Enrichment | 1.2698420524 | $467,865 | $467,865 | $594.11 | | |
| SCH205BOND | School 205-401 BOND | 0.9396497583 | $467,865 | $467,865 | $439.63 | | |
| ST | State School | 1.3035497053 | $467,865 | $467,865 | $609.89 | | |
| ST2 | State School Part 2 | 0.8169543533 | $467,865 | $467,865 | $382.22 | | |
| | Total Tax Rate: | 7.3209764117 | | | | | |
| | | | | Taxes w/Current Exemptions: | $3,425.23 | | |
| | | | | Taxes w/o Exemptions: | $3,425.23 | | |
Improvement / Building
| Improvement #1: | RESIDENTIAL | State Code: | Y | 600.0 sqft | Value: | $66,965 |
| Bathrooms: | 1 | Bedrooms: | 2 | | Ceiling: | TONGUE & GROOVE | Exterior Wall/Cover: | WOOD SIDING | | Floor Covering: | VINYL 100% | Floor Structure: | WOOD W/SUBFLOOR | | Foundation: | WOOD BLOCKS | Heating: | (NONE) | | Interior Finish: | DRYWALL PAINT | Plumbing Fixture Cnt: | 5 | | Roof Slope: | 5" IN 12" | Roof Structure/Cover: | BEAM ASPHALT |
|
| | Type | Description | Class CD | Sub Class CD | Year Built | Area |
| | BAS | BASE/MAIN FLOOR | 2 | 0 | 1956 | 600.0 |
| | UTY | STORAGE/UTILITY | 2 | 0 | 1956 | 99.0 |
| | OWR | OPEN WOOD PORCH W/STEPS/ROOF | 2 | 0 | 1956 | 270.0 |
| | DGR | DETACHED GARAGE | 2 | 0 | 1956 | 160.0 |
Sketch
Property Image
Land
| 1 | LB | LOW BANK | 0.7113 | 30984.23 | 90.00 | 0.00 | 1.00 | $400,000 | $0 |
| 2 | 55 | TIDES | 0.0000 | 0.00 | 90.00 | 0.00 | 1.00 | $900 | $0 |
Roll Value History
| 2026 | N/A | N/A | N/A | N/A | N/A |
| 2025 | $66,965 | $400,900 | $0 | $467,865 | $467,865 |
| 2024 | $70,939 | $400,900 | $0 | $471,839 | $471,839 |
| 2023 | $72,410 | $400,900 | $0 | $473,310 | $473,310 |
| 2022 | $66,899 | $400,900 | $0 | $467,799 | $467,799 |
| 2021 | $59,329 | $275,900 | $0 | $335,229 | $335,229 |
| 2020 | $58,115 | $250,900 | $0 | $309,015 | $309,015 |
| 2019 | $42,094 | $300,900 | $0 | $342,994 | $342,994 |
| 2018 | $42,291 | $300,900 | $0 | $343,191 | $343,191 |
| 2017 | $42,686 | $250,900 | $0 | $293,586 | $293,586 |
| 2016 | $40,784 | $250,900 | $0 | $291,684 | $291,684 |
| 2015 | $26,697 | $250,900 | $0 | $277,597 | $277,597 |
| 2014 | $27,256 | $250,900 | $0 | $278,156 | $278,156 |
| 2013 | $27,815 | $196,646 | $0 | $224,461 | $224,461 |
| 2012 | $28,376 | $196,646 | $0 | $225,022 | $225,022 |
| 2011 | $28,934 | $245,583 | $0 | $274,517 | $274,517 |
| 2010 | $36,560 | $245,583 | $0 | $282,143 | $282,143 |
| 2009 | $37,660 | $299,958 | $0 | $337,618 | $337,618 |
| 2008 | $38,298 | $245,583 | $0 | $283,881 | $283,881 |
| 2007 | $38,983 | $242,815 | $0 | $281,798 | $281,798 |
Deed and Sales History
| 1 | 02/03/2017 | WD | Warranty Deed | CORLISS, CRAIG | CLARK, LEO | | | $300,000.00 | 27975 | 4416535 |
| 2 | 11/05/2003 | QCD | Quit Claim Deed | CORLISS, VIOLET | CORLISS, CRAIG | | | $0.00 | 35095 | 4082433 |
| 3 | 02/06/2003 | QCD | Quit Claim Deed | CORLISS, VIOLET | CORLISS, VIOLET | | | $0.00 | 30563 | 4047577 |
| 4 | 03/01/1990 | QCD | Quit Claim Deed | CORLISS, VIOLET L | CORLISS, VIOLET | | | $0.00 | 1464 | 90004741 |
| 5 | 09/01/1975 | PACD | Purchaser's Assignment | CORLISS, VERNON W | CORLISS, VIOLET L | | | $0.00 | 59096 | 0 |
Payout Agreement
| No payout information available.. |