Property
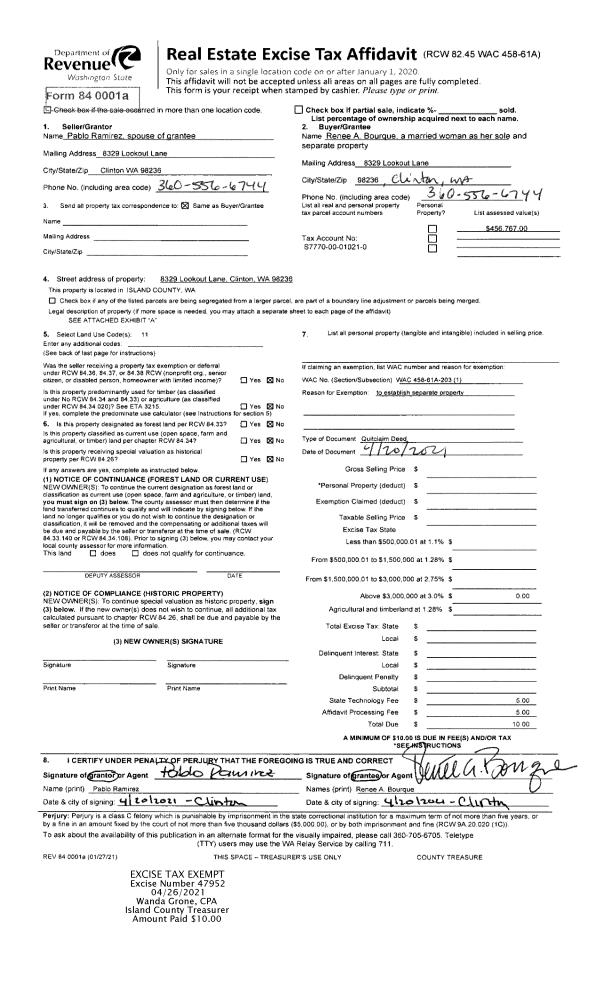
Account |
| Property ID: | 432339 | Abbreviated Legal Description: | WILKES GARY 1ST SE 1/2 LOT 10 INCL ADJ TIDES |
| Geographic ID: | S8460-01-00010-2 | Agent Code: | |
| Type: | Real | | |
| Tax Area: | 540 - APPRAISER-Stan/Cam Schl Dist, Special Dist, improved & less than 1 acre | Land Use Code | 11 |
| Open Space: | N | DFL | N |
| Historic Property: | N | Remodel Property: | N |
| Multi-Family Redevelopment: | N | | |
| Township: | | Section: | |
| Range: | |
Location |
| Address: | 4149 WATSON WALK CAMANO ISLAND, WA 98282 | Mapsco: | |
| Neighborhood: | 58RscamWF-South Cam | Map ID: | 892 |
| Neighborhood CD: | 58RscamWF |
Owner |
| Name: | OBERLOH, KIMBERLY ANN | Owner ID: | 297323 |
| Mailing Address: | SANDRA J PALMER 10044 1ST AVE S SEATTLE, WA 98168 | % Ownership: | 100.0000000000% |
| | | Exemptions: | |
Taxes and Assessment Details
Values
| (+) Improvement Homesite Value: | + | $0 | |
| (+) Improvement Non-Homesite Value: | + | $76,888 | |
| (+) Land Homesite Value: | + | $0 | |
| (+) Land Non-Homesite Value: | + | $400,700 | |
| (+) Curr Use (HS): | + | $0 | $0 |
| (+) Curr Use (NHS): | + | $0 | $0 |
| | | -------------------------- | |
| (=) Market Value: | = | $477,588 | |
| (–) Productivity Loss: | – | $0 | |
| | | -------------------------- | |
| (=) Subtotal: | = | $477,588 | |
| (+) Senior Appraised Value: | + | $0 | |
| (+) Non-Senior Appraised Value: | + | $477,588 | |
| | | -------------------------- | |
| (=) Total Appraised Value: | = | $477,588 | |
| (–) Senior Exemption Loss: | – | $0 | |
| (–) Exemption Loss: | – | $0 | |
| | | -------------------------- | |
| (=) Taxable Value: | = | $477,588 | |
Taxing Jurisdiction
| Owner: | OBERLOH, KIMBERLY ANN | | |
| % Ownership: | 100.0000000000% | | |
| Total Value: | $477,588 | | |
| Tax Area: | 540 - APPRAISER-Stan/Cam Schl Dist, Special Dist, improved & less than 1 acre |
| CF | Conservation Futures | 0.0316035091 | $477,588 | $477,588 | $15.09 | | |
| EMS1 | Fire & Rescue Dist #1 Camano GEN (EMS) | 0.3677864386 | $477,588 | $477,588 | $175.65 | | |
| FIRE1 | Fire & Rescue Dist #1 Camano GEN | 1.2502910536 | $477,588 | $477,588 | $597.12 | | |
| FIRE1BOND | Fire & Rescue Dist #1 Camano BOND | 0.1570001679 | $477,588 | $477,588 | $74.98 | | |
| CE | County Current Expense | 0.3708482477 | $477,588 | $477,588 | $177.11 | | |
| CR | County Roads | 0.4584763726 | $477,588 | $477,588 | $218.96 | | |
| LCIB | Library Sno-Isle BOND (Camano Island) | 0.0396325772 | $477,588 | $477,588 | $18.93 | | |
| LIB | Library Sno-Isle GEN | 0.3153421757 | $477,588 | $477,588 | $150.60 | | |
| SCH205_401 | School 205-401 Enrichment | 1.2698420524 | $477,588 | $477,588 | $606.46 | | |
| SCH205BOND | School 205-401 BOND | 0.9396497583 | $477,588 | $477,588 | $448.77 | | |
| ST | State School | 1.3035497053 | $477,588 | $477,588 | $622.56 | | |
| ST2 | State School Part 2 | 0.8169543533 | $477,588 | $477,588 | $390.17 | | |
| | Total Tax Rate: | 7.3209764117 | | | | | |
| | | | | Taxes w/Current Exemptions: | $3,496.40 | | |
| | | | | Taxes w/o Exemptions: | $3,496.40 | | |
Improvement / Building
| Improvement #1: | RESIDENTIAL | State Code: | Y | 488.0 sqft | Value: | $76,888 |
| Bathrooms: | 1 | Bedrooms: | 1 | | Ceiling: | ACOUSTIC FURRED | Exterior Wall/Cover: | PLY/HARDBOARD T-111 | | Floor Covering: | VINYL 100% | Floor Structure: | WOOD W/SUBFLOOR | | Foundation: | PEIRS | Heating: | BASEBOARD ELECTRIC | | Interior Finish: | DRYWALL PAINT | Plumbing Fixture Cnt: | 5 | | Roof Slope: | 4" IN 12" | Roof Structure/Cover: | CJ ASPHALT |
|
| | Type | Description | Class CD | Sub Class CD | Year Built | Area |
| | BAS | BASE/MAIN FLOOR | 2 | 0 | 1956 | 488.0 |
| | OWR | OPEN WOOD PORCH W/STEPS/ROOF | 2 | 0 | 1956 | 144.0 |
| | UTY | STORAGE/UTILITY | 2 | 0 | 1956 | 160.0 |
Sketch
Property Image
Land
| 1 | LB | LOW BANK | 0.5177 | 22551.01 | 70.00 | 0.00 | 1.00 | $400,000 | $0 |
| 2 | 55 | TIDES | 0.0000 | 0.00 | 70.00 | 0.00 | 1.00 | $700 | $0 |
Roll Value History
| 2026 | N/A | N/A | N/A | N/A | N/A |
| 2025 | $76,888 | $400,700 | $0 | $477,588 | $477,588 |
| 2024 | $79,822 | $400,700 | $0 | $480,522 | $480,522 |
| 2023 | $81,046 | $400,700 | $0 | $481,746 | $481,746 |
| 2022 | $74,496 | $400,700 | $0 | $475,196 | $475,196 |
| 2021 | $53,511 | $275,700 | $0 | $329,211 | $329,211 |
| 2020 | $52,127 | $250,700 | $0 | $302,827 | $302,827 |
| 2019 | $37,383 | $300,700 | $0 | $338,083 | $338,083 |
| 2018 | $37,524 | $300,700 | $0 | $338,224 | $338,224 |
| 2017 | $37,806 | $250,700 | $0 | $288,506 | $288,506 |
| 2016 | $36,025 | $250,700 | $0 | $286,725 | $286,725 |
| 2015 | $26,634 | $200,700 | $0 | $227,334 | $227,334 |
| 2014 | $27,091 | $200,700 | $0 | $227,791 | $227,791 |
| 2013 | $27,548 | $161,046 | $0 | $188,594 | $188,594 |
| 2012 | $28,006 | $161,046 | $0 | $189,052 | $189,052 |
| 2011 | $28,463 | $201,133 | $0 | $229,596 | $229,596 |
| 2010 | $31,417 | $201,133 | $0 | $232,550 | $232,550 |
| 2009 | $28,823 | $273,162 | $0 | $301,985 | $301,985 |
| 2008 | $29,290 | $273,162 | $0 | $302,452 | $302,452 |
| 2007 | $29,758 | $272,672 | $0 | $302,430 | $302,430 |
Deed and Sales History
| 1 | 12/14/2020 | QCD | Quit Claim Deed | ESTES, GERALD H | OBERLOH, KIMBERLY ANN | | | $175,000.00 | 46135 | 4505351 |
| 2 | 04/01/1977 | CD | DNU - Correction Deed | ESTES, GERALD H | ESTES, GERALD H | | | $0.00 | 71214 | 311597 |
| 3 | 01/01/1900 | OTHER | Other - Misc. Documents | ESTES, GERALD H | ESTES, GERALD H | | | $0.00 | 0 | 0 |
| 4 | 01/01/1900 | OTHER | Other - Misc. Documents | Unknown | ESTES, GERALD H | | | $0.00 | 0 | 0 |
Payout Agreement
| No payout information available.. |