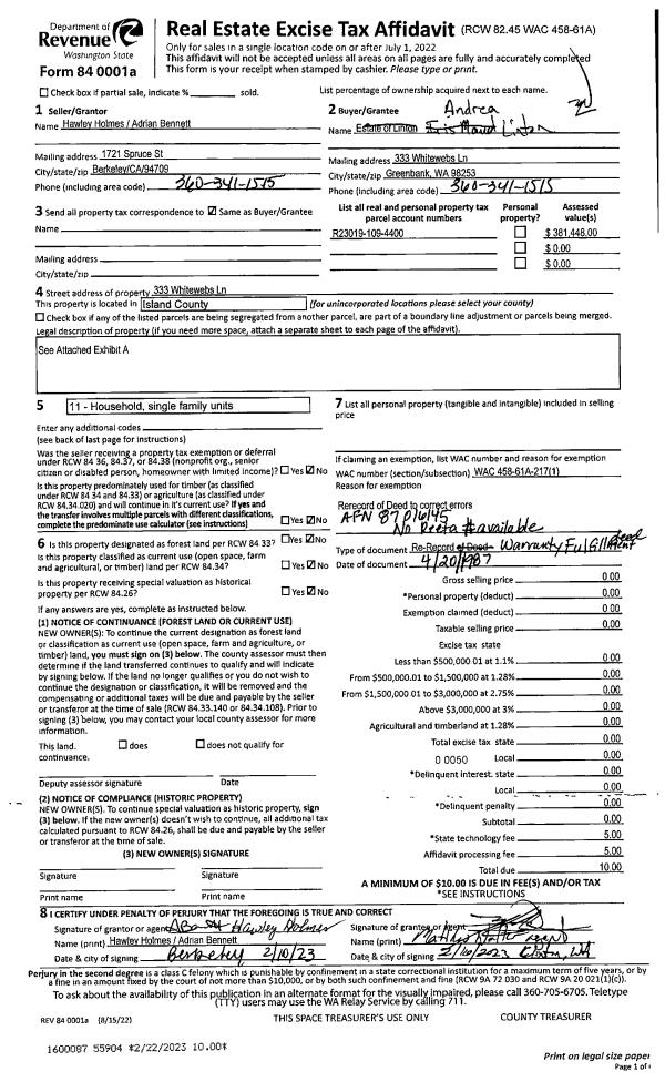
Property
Account |
| Property ID: | 432375 | Abbreviated Legal Description: | WILKES GARY 1ST NWLY 1/2 OF LOT 14 INCL ADJ TIDES |
| Geographic ID: | S8460-01-00014-1 | Agent Code: | |
| Type: | Real | | |
| Tax Area: | 540 - APPRAISER-Stan/Cam Schl Dist, Special Dist, improved & less than 1 acre | Land Use Code | 11 |
| Open Space: | N | DFL | N |
| Historic Property: | N | Remodel Property: | N |
| Multi-Family Redevelopment: | N | | |
| Township: | | Section: | |
| Range: | |
Location |
| Address: | 4816 SOUTH CAMANO DR CAMANO ISLAND, WA 98282 | Mapsco: | |
| Neighborhood: | 58RscamWF-South Cam | Map ID: | 892 |
| Neighborhood CD: | 58RscamWF |
Owner |
| Name: | CHINA GIRL HOUSE, LLC | Owner ID: | 303174 |
| Mailing Address: | CHINA GIRL HOUSE, LLC 8825 34TH AVE NE ST L-120 TULALIP, WA 98271 | % Ownership: | 100.0000000000% |
| | | Exemptions: | |
Taxes and Assessment Details
Values
| (+) Improvement Homesite Value: | + | $0 | |
| (+) Improvement Non-Homesite Value: | + | $209,341 | |
| (+) Land Homesite Value: | + | $0 | |
| (+) Land Non-Homesite Value: | + | $400,500 | |
| (+) Curr Use (HS): | + | $0 | $0 |
| (+) Curr Use (NHS): | + | $0 | $0 |
| | | -------------------------- | |
| (=) Market Value: | = | $609,841 | |
| (–) Productivity Loss: | – | $0 | |
| | | -------------------------- | |
| (=) Subtotal: | = | $609,841 | |
| (+) Senior Appraised Value: | + | $0 | |
| (+) Non-Senior Appraised Value: | + | $609,841 | |
| | | -------------------------- | |
| (=) Total Appraised Value: | = | $609,841 | |
| (–) Senior Exemption Loss: | – | $0 | |
| (–) Exemption Loss: | – | $0 | |
| | | -------------------------- | |
| (=) Taxable Value: | = | $609,841 | |
Taxing Jurisdiction
| Owner: | CHINA GIRL HOUSE, LLC | | |
| % Ownership: | 100.0000000000% | | |
| Total Value: | $609,841 | | |
| Tax Area: | 540 - APPRAISER-Stan/Cam Schl Dist, Special Dist, improved & less than 1 acre |
| CF | Conservation Futures | 0.0316035091 | $609,841 | $609,841 | $19.27 | | |
| EMS1 | Fire & Rescue Dist #1 Camano GEN (EMS) | 0.3677864386 | $609,841 | $609,841 | $224.29 | | |
| FIRE1 | Fire & Rescue Dist #1 Camano GEN | 1.2502910536 | $609,841 | $609,841 | $762.48 | | |
| FIRE1BOND | Fire & Rescue Dist #1 Camano BOND | 0.1570001679 | $609,841 | $609,841 | $95.75 | | |
| CE | County Current Expense | 0.3708482477 | $609,841 | $609,841 | $226.16 | | |
| CR | County Roads | 0.4584763726 | $609,841 | $609,841 | $279.60 | | |
| LCIB | Library Sno-Isle BOND (Camano Island) | 0.0396325772 | $609,841 | $609,841 | $24.17 | | |
| LIB | Library Sno-Isle GEN | 0.3153421757 | $609,841 | $609,841 | $192.31 | | |
| SCH205_401 | School 205-401 Enrichment | 1.2698420524 | $609,841 | $609,841 | $774.40 | | |
| SCH205BOND | School 205-401 BOND | 0.9396497583 | $609,841 | $609,841 | $573.04 | | |
| ST | State School | 1.3035497053 | $609,841 | $609,841 | $794.96 | | |
| ST2 | State School Part 2 | 0.8169543533 | $609,841 | $609,841 | $498.21 | | |
| | Total Tax Rate: | 7.3209764117 | | | | | |
| | | | | Taxes w/Current Exemptions: | $4,464.64 | | |
| | | | | Taxes w/o Exemptions: | $4,464.64 | | |
Improvement / Building
| Improvement #1: | MANUFACTURED HOME | State Code: | Y | 1616.0 sqft | Value: | $209,341 |
| Bathrooms: | 0 | Bedrooms: | 0 | | Ceiling: | PLASTER PAINTED | Cooling: | EVAP NO DUCT | | Exterior Wall/Cover: | VINYL | Floor Covering: | CARPET 100% | | Floor Structure: | SLAB ON GRADE | Foundation: | SLAB | | Heating: | FHA ELECTRIC | Interior Finish: | PLASTER | | Plumbing Fixture Cnt: | 1 | Roof Slope: | FLAT | | Roof Structure/Cover: | CJ ALUMINIUM HEAVY |   |   |
|
| | Type | Description | Class CD | Sub Class CD | Year Built | Area |
| | BAS | BASE/MAIN FLOOR | 4 | 0 | 2008 | 1616.0 |
| | DGR | DETACHED GARAGE | 4 | 0 | 2008 | 1080.0 |
| | OWP | OPEN WOOD PORCH W/STEPS | 4 | 0 | 2008 | 146.0 |
| | OWC | OPEN WOOD PORCH W/STEPS/ROOF/C | 4 | 0 | 2008 | 162.0 |
| | OWP | OPEN WOOD PORCH W/STEPS | 4 | 0 | 2008 | 49.0 |
| | OWP | OPEN WOOD PORCH W/STEPS | 4 | 0 | 2008 | 170.0 |
| | UTY | STORAGE/UTILITY | 4 | 0 | 2008 | 160.0 |
| | OWP | OPEN WOOD PORCH W/STEPS | 4 | 0 | 2008 | 520.7 |
Sketch
Property Image
Land
| 1 | HB | HIGH BLUFF | 0.4615 | 20102.94 | 50.00 | 0.00 | 1.00 | $400,000 | $0 |
| 2 | 55 | TIDES | 0.0000 | 0.00 | 50.00 | 0.00 | 1.00 | $500 | $0 |
Roll Value History
| 2026 | N/A | N/A | N/A | N/A | N/A |
| 2025 | $209,341 | $400,500 | $0 | $609,841 | $609,841 |
| 2024 | $211,775 | $375,500 | $0 | $587,275 | $587,275 |
| 2023 | $188,380 | $375,500 | $0 | $563,880 | $563,880 |
| 2022 | $172,503 | $325,500 | $0 | $498,003 | $498,003 |
| 2021 | $153,339 | $325,500 | $0 | $478,839 | $478,839 |
| 2020 | $139,449 | $300,500 | $0 | $439,949 | $439,949 |
| 2019 | $112,287 | $300,500 | $0 | $412,787 | $412,787 |
| 2018 | $181,612 | $300,500 | $0 | $482,112 | $482,112 |
| 2017 | $117,682 | $250,500 | $0 | $368,182 | $368,182 |
| 2016 | $120,186 | $200,500 | $0 | $320,686 | $320,686 |
| 2015 | $113,337 | $150,500 | $0 | $263,837 | $263,837 |
| 2014 | $114,157 | $150,500 | $0 | $264,657 | $264,657 |
| 2013 | $121,719 | $121,614 | $0 | $243,333 | $243,333 |
| 2012 | $123,310 | $121,614 | $0 | $244,924 | $244,924 |
| 2011 | $124,106 | $151,893 | $0 | $275,999 | $275,999 |
| 2010 | $134,916 | $168,714 | $0 | $303,630 | $303,630 |
| 2009 | $128,752 | $218,554 | $0 | $347,306 | $347,306 |
| 2008 | $1,368 | $198,554 | $0 | $199,922 | $199,922 |
| 2007 | $1,422 | $198,204 | $0 | $199,626 | $199,626 |
Deed and Sales History
| 1 | 02/11/2022 | QCD | Quit Claim Deed | MOK, SIU KIT | CHINA GIRL HOUSE, LLC | | | $0.00 | 51995 | 4539927 |
| 2 | 05/28/2020 | QCD | Quit Claim Deed | FOJTIK, LACY JIM | MOK, SIU KIT | | | $0.00 | 48813 | 4522531 |
| 3 | 05/28/2020 | WD | Warranty Deed | SARATOGA COTTAGE LLC | MOK, SIU KIT | | | $0.00 | 48812 | 4522530 |
| 4 | 05/28/2020 | QCD | Quit Claim Deed | FOJTIK, LACY JIM | MOK, SIU KIT | | | $0.00 | 43166 | 4487679 |
| 5 | 05/28/2020 | WD | Warranty Deed | SARATOGA COTTAGE LLC | MOK, SIU KIT | | | $599,900.00 | 43165 | 4487678 |
| 6 | 04/03/2017 | WD | Warranty Deed | GREENHECK, MARY P | SARATOGA COTTAGE LLC | | | $369,000.00 | 28770 | 4420274 |
| 7 | 12/04/2013 | WD | Warranty Deed | PECK SR, MICHAEL W | GREENHECK, MARY P | | | $250,000.00 | 13662 | 4352430 |
| 8 | 11/01/1987 | WD | Warranty Deed | PECK, MICHAEL W | PECK, MICHAEL W | | | $35,000.00 | 73731 | 87016274 |
| 9 | 11/01/1987 | WD | Warranty Deed | HAGENAU, WALTER P | PECK, MICHAEL W | | | $0.00 | 73962 | 87017238 |
| 10 | 01/01/1900 | OTHER | Other - Misc. Documents | Unknown | HAGENAU, WALTER P | | | $0.00 | 0 | 0 |
Payout Agreement
| No payout information available.. |