Property
Account |
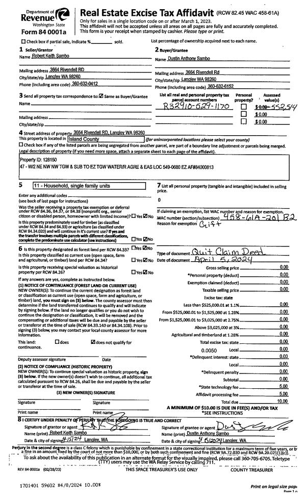
| Property ID: | 43241 | Abbreviated Legal Description: | 11 - IN GL 9 |
| Geographic ID: | R13335-516-1970 | Agent Code: | |
| Type: | Real | | |
| Tax Area: | 119 - APPRAISER-OH Schl Dist, outside OH, vacant & 50 acres or less | Land Use Code | 83 |
| Open Space: | Y | DFL | N |
| Historic Property: | N | Remodel Property: | N |
| Multi-Family Redevelopment: | N | | |
| Township: | 33 | Section: | 35 |
| Range: | R1 |
Location |
| Address: | | Mapsco: | |
| Neighborhood: | Cycle 1 | Map ID: | 258 |
| Neighborhood CD: | 1 |
Owner |
| Name: | HILBERDINK, HENRY A | Owner ID: | 25251 |
| Mailing Address: | RUTH D HILBERDINK 1550 N OAK HARBOR ST OAK HARBOR, WA 98277-3570 | % Ownership: | 100.0000000000% |
| | | Exemptions: | |
Taxes and Assessment Details
Values
| (+) Improvement Homesite Value: | + | $0 | |
| (+) Improvement Non-Homesite Value: | + | $0 | |
| (+) Land Homesite Value: | + | $0 | |
| (+) Land Non-Homesite Value: | + | $0 | |
| (+) Curr Use (HS): | + | $0 | $0 |
| (+) Curr Use (NHS): | + | $250,000 | $4,692 |
| | | -------------------------- | |
| (=) Market Value: | = | $250,000 | |
| (–) Productivity Loss: | – | $245,308 | |
| | | -------------------------- | |
| (=) Subtotal: | = | $4,692 | |
| (+) Senior Appraised Value: | + | $0 | |
| (+) Non-Senior Appraised Value: | + | $4,692 | |
| | | -------------------------- | |
| (=) Total Appraised Value: | = | $4,692 | |
| (–) Senior Exemption Loss: | – | $0 | |
| (–) Exemption Loss: | – | $0 | |
| | | -------------------------- | |
| (=) Taxable Value: | = | $4,692 | |
Taxing Jurisdiction
| Owner: | HILBERDINK, HENRY A | | |
| % Ownership: | 100.0000000000% | | |
| Total Value: | $250,000 | | |
| Tax Area: | 119 - APPRAISER-OH Schl Dist, outside OH, vacant & 50 acres or less |
| CF | Conservation Futures | 0.0316035091 | $4,692 | $4,692 | $0.15 | | |
| CEM1 | Cemetery #1 | 0.0040320932 | $4,692 | $4,692 | $0.02 | | |
| HOBOND | Hospital BOND | 0.1910887512 | $4,692 | $4,692 | $0.90 | | |
| HOGEN | Hospital GEN | 0.3902502903 | $4,692 | $4,692 | $1.83 | | |
| CE | County Current Expense | 0.3708482477 | $4,692 | $4,692 | $1.74 | | |
| CR | County Roads | 0.4584763726 | $4,692 | $4,692 | $2.15 | | |
| ISLANDEMS | Hospital GEN (EMS) | 0.5000000000 | $4,692 | $4,692 | $2.35 | | |
| LIB | Library Sno-Isle GEN | 0.3153421757 | $4,692 | $4,692 | $1.48 | | |
| NWHIDPRMT | P & R N Whidbey GEN | 0.2004466701 | $4,692 | $4,692 | $0.94 | | |
| SCH201MO | School 201 Enrichment | 1.8559231640 | $4,692 | $4,692 | $8.71 | | |
| ST | State School | 1.3035497053 | $4,692 | $4,692 | $6.12 | | |
| ST2 | State School Part 2 | 0.8169543533 | $4,692 | $4,692 | $3.83 | | |
| | Total Tax Rate: | 6.4385153325 | | | | | |
| | | | | Taxes w/Current Exemptions: | $30.22 | | |
| | | | | Taxes w/o Exemptions: | $30.22 | | |
Improvement / Building
Sketch
| No sketches available for this property. |
Property Image
Land
| 1 | 32 | AC (03.01-09.99) | 7.6800 | 334540.80 | 0.00 | 0.00 | 1.00 | $250,000 | $4,692 |
Roll Value History
| 2026 | N/A | N/A | N/A | N/A | N/A |
| 2025 | $0 | $250,000 | $4,692 | $4,692 | $4,692 |
| 2024 | $0 | $250,000 | $4,692 | $4,692 | $4,692 |
| 2023 | $0 | $250,000 | $4,692 | $4,692 | $4,692 |
| 2022 | $0 | $210,000 | $4,692 | $4,692 | $4,692 |
| 2021 | $0 | $170,000 | $4,692 | $4,692 | $4,692 |
| 2020 | $0 | $150,000 | $4,692 | $4,692 | $4,692 |
| 2019 | $0 | $150,000 | $4,692 | $4,692 | $4,692 |
| 2018 | $0 | $105,000 | $4,692 | $4,692 | $4,692 |
| 2017 | $0 | $105,000 | $4,692 | $4,692 | $4,692 |
| 2016 | $0 | $105,000 | $4,692 | $4,692 | $4,692 |
| 2015 | $0 | $130,560 | $4,692 | $4,692 | $4,692 |
| 2014 | $0 | $130,560 | $4,692 | $4,692 | $4,692 |
| 2013 | $0 | $130,560 | $4,692 | $4,692 | $4,692 |
| 2012 | $0 | $130,560 | $4,692 | $4,692 | $4,692 |
| 2011 | $0 | $153,600 | $4,692 | $4,692 | $4,692 |
| 2010 | $0 | $153,600 | $4,692 | $4,692 | $4,692 |
| 2009 | $0 | $207,360 | $4,692 | $4,692 | $4,692 |
| 2008 | $0 | $249,600 | $4,692 | $4,692 | $4,692 |
| 2007 | $0 | $249,600 | $4,692 | $4,692 | $4,692 |
Deed and Sales History
Payout Agreement
| No payout information available.. |