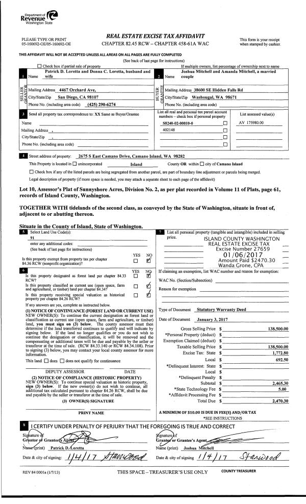
Property
Account |
| Property ID: | 432455 | Abbreviated Legal Description: | WILKES GARY 1ST LOT 23 INCL ADJ TIDES |
| Geographic ID: | S8460-01-00023-0 | Agent Code: | |
| Type: | Real | | |
| Tax Area: | 540 - APPRAISER-Stan/Cam Schl Dist, Special Dist, improved & less than 1 acre | Land Use Code | 11 |
| Open Space: | N | DFL | N |
| Historic Property: | N | Remodel Property: | N |
| Multi-Family Redevelopment: | N | | |
| Township: | | Section: | |
| Range: | |
Location |
| Address: | 4874 SOUTH CAMANO DR CAMANO ISLAND, WA 98282 | Mapsco: | |
| Neighborhood: | 58RscamWF-South Cam | Map ID: | 888 |
| Neighborhood CD: | 58RscamWF |
Owner |
| Name: | SIIRICA, LLC | Owner ID: | 306741 |
| Mailing Address: | SIIRI ANA VANAJA 2124 NW 99TH ST SEATTLE, WA 98117 | % Ownership: | 100.0000000000% |
| | | Exemptions: | |
Taxes and Assessment Details
Values
| (+) Improvement Homesite Value: | + | $0 | |
| (+) Improvement Non-Homesite Value: | + | $21,233 | |
| (+) Land Homesite Value: | + | $0 | |
| (+) Land Non-Homesite Value: | + | $426,100 | |
| (+) Curr Use (HS): | + | $0 | $0 |
| (+) Curr Use (NHS): | + | $0 | $0 |
| | | -------------------------- | |
| (=) Market Value: | = | $447,333 | |
| (–) Productivity Loss: | – | $0 | |
| | | -------------------------- | |
| (=) Subtotal: | = | $447,333 | |
| (+) Senior Appraised Value: | + | $0 | |
| (+) Non-Senior Appraised Value: | + | $447,333 | |
| | | -------------------------- | |
| (=) Total Appraised Value: | = | $447,333 | |
| (–) Senior Exemption Loss: | – | $0 | |
| (–) Exemption Loss: | – | $0 | |
| | | -------------------------- | |
| (=) Taxable Value: | = | $447,333 | |
Taxing Jurisdiction
| Owner: | SIIRICA, LLC | | |
| % Ownership: | 100.0000000000% | | |
| Total Value: | $447,333 | | |
| Tax Area: | 540 - APPRAISER-Stan/Cam Schl Dist, Special Dist, improved & less than 1 acre |
| CF | Conservation Futures | 0.0316035091 | $447,333 | $447,333 | $14.14 | | |
| EMS1 | Fire & Rescue Dist #1 Camano GEN (EMS) | 0.3677864386 | $447,333 | $447,333 | $164.52 | | |
| FIRE1 | Fire & Rescue Dist #1 Camano GEN | 1.2502910536 | $447,333 | $447,333 | $559.30 | | |
| FIRE1BOND | Fire & Rescue Dist #1 Camano BOND | 0.1570001679 | $447,333 | $447,333 | $70.23 | | |
| CE | County Current Expense | 0.3708482477 | $447,333 | $447,333 | $165.89 | | |
| CR | County Roads | 0.4584763726 | $447,333 | $447,333 | $205.09 | | |
| LCIB | Library Sno-Isle BOND (Camano Island) | 0.0396325772 | $447,333 | $447,333 | $17.73 | | |
| LIB | Library Sno-Isle GEN | 0.3153421757 | $447,333 | $447,333 | $141.06 | | |
| SCH205_401 | School 205-401 Enrichment | 1.2698420524 | $447,333 | $447,333 | $568.04 | | |
| SCH205BOND | School 205-401 BOND | 0.9396497583 | $447,333 | $447,333 | $420.34 | | |
| ST | State School | 1.3035497053 | $447,333 | $447,333 | $583.12 | | |
| ST2 | State School Part 2 | 0.8169543533 | $447,333 | $447,333 | $365.45 | | |
| | Total Tax Rate: | 7.3209764117 | | | | | |
| | | | | Taxes w/Current Exemptions: | $3,274.91 | | |
| | | | | Taxes w/o Exemptions: | $3,274.91 | | |
Improvement / Building
| Improvement #1: | RESIDENTIAL | State Code: | Y | 414.0 sqft | Value: | $21,233 |
| Bathrooms: | 1 | Bedrooms: | 2 | | Ceiling: | DRYWALL PAINTED | Exterior Wall/Cover: | WOOD SIDING | | Floor Covering: | SOFTWOOD/VINYL 60-40 | Floor Structure: | WOOD W/SUBFLOOR | | Foundation: | PEIRS | Heating: | BASEBOARD ELECTRIC | | Plumbing Fixture Cnt: | 3 | Roof Slope: | 6" IN 12" | | Roof Structure/Cover: | CJ COMP ROLL |   |   |
|
| | Type | Description | Class CD | Sub Class CD | Year Built | Area |
| | BAS | BASE/MAIN FLOOR | 2 | 0 | 1988 | 414.0 |
| | OWP | OPEN WOOD PORCH W/STEPS | 2 | 0 | 1988 | 231.0 |
| | UTY | STORAGE/UTILITY | 2 | 0 | 1988 | 120.0 |
Sketch
Property Image
Land
| 1 | LB | LOW BANK | 0.8077 | 35183.41 | 98.00 | 0.00 | 1.00 | $425,000 | $0 |
| 2 | 55 | TIDES | 0.0000 | 0.00 | 110.00 | 0.00 | 1.00 | $1,100 | $0 |
Roll Value History
| 2026 | N/A | N/A | N/A | N/A | N/A |
| 2025 | $21,233 | $426,100 | $0 | $447,333 | $447,333 |
| 2024 | $22,243 | $426,100 | $0 | $448,343 | $448,343 |
| 2023 | $22,569 | $426,100 | $0 | $448,669 | $448,669 |
| 2022 | $20,731 | $426,100 | $0 | $446,831 | $446,831 |
| 2021 | $17,771 | $326,100 | $0 | $343,871 | $343,871 |
| 2020 | $17,318 | $301,100 | $0 | $318,418 | $318,418 |
| 2019 | $12,469 | $351,100 | $0 | $363,569 | $363,569 |
| 2018 | $12,514 | $301,100 | $0 | $313,614 | $313,614 |
| 2017 | $12,601 | $251,100 | $0 | $263,701 | $263,701 |
| 2016 | $12,776 | $201,100 | $0 | $213,876 | $213,876 |
| 2015 | $2,009 | $141,100 | $0 | $143,109 | $143,109 |
| 2014 | $2,009 | $141,100 | $0 | $143,109 | $143,109 |
| 2013 | $2,009 | $151,135 | $0 | $153,144 | $153,144 |
| 2012 | $2,009 | $151,135 | $0 | $153,144 | $153,144 |
| 2011 | $2,009 | $188,644 | $0 | $190,653 | $190,653 |
| 2010 | $2,009 | $209,482 | $0 | $211,491 | $211,491 |
| 2009 | $2,009 | $273,155 | $0 | $275,164 | $275,164 |
| 2008 | $2,009 | $270,144 | $0 | $272,153 | $272,153 |
| 2007 | $2,009 | $269,374 | $0 | $271,383 | $271,383 |
Deed and Sales History
| 1 | 08/23/2022 | QCD | Quit Claim Deed | VANAJA, ERICA | SIIRICA, LLC | | | $0.00 | 55232 | 4554245 |
| 2 | 07/13/2022 | EADMINDEED | Estate Administrator's Deed | VANAJA, VIRGINIA M | VANAJA, ERICA | | | $0.00 | 54615 | 4551546 |
| 3 | 08/01/1988 | DECREE | Divorce Decree/Legal Separation | VANAJA, REINO F | VANAJA, VIRGINIA | | | $0.00 | 82900 | 88010816 |
| 4 | 01/01/1900 | OTHER | Other - Misc. Documents | Unknown | VANAJA, REINO F | | | $0.00 | 0 | 0 |
Payout Agreement
| No payout information available.. |