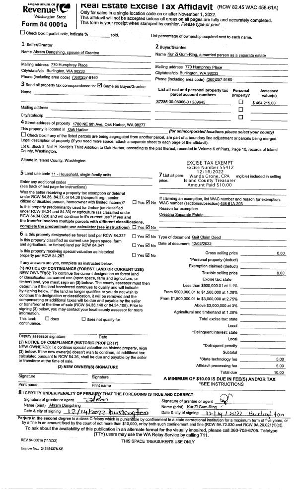
Property
Account |
| Property ID: | 432507 | Abbreviated Legal Description: | WILKES GARY 1ST LOT 28 INCL ADJ TIDES EX: BG NECR LOT 28 S4*W ALG ELN LOT 28 154.04' TO NLN 60' EZ SHOWN ON SP 76-94 AF#309944 N63*W ALG SD EZ LN 15.32' TO ANG PT SD EZ N7*E ALG ELN SD EZ 147.39' TO NLN LOT 28 N84*E ALG SD LN 6.53' TPB TGW & SUB ACCE |
| Geographic ID: | S8460-01-00028-0 | Agent Code: | |
| Type: | Real | | |
| Tax Area: | 540 - APPRAISER-Stan/Cam Schl Dist, Special Dist, improved & less than 1 acre | Land Use Code | 11 |
| Open Space: | N | DFL | N |
| Historic Property: | N | Remodel Property: | N |
| Multi-Family Redevelopment: | N | | |
| Township: | | Section: | |
| Range: | |
Location |
| Address: | 2076 GULL WAY CAMANO ISLAND, WA 98282 | Mapsco: | |
| Neighborhood: | 58RscamWF-South Cam | Map ID: | 888 |
| Neighborhood CD: | 58RscamWF |
Owner |
| Name: | EVENSTA, KARIN L | Owner ID: | 298760 |
| Mailing Address: | 1805 134TH AVE SE #25 BELLEVUE, WA 98005 | % Ownership: | 100.0000000000% |
| | | Exemptions: | |
Taxes and Assessment Details
Values
| (+) Improvement Homesite Value: | + | $0 | |
| (+) Improvement Non-Homesite Value: | + | $130,638 | |
| (+) Land Homesite Value: | + | $0 | |
| (+) Land Non-Homesite Value: | + | $400,930 | |
| (+) Curr Use (HS): | + | $0 | $0 |
| (+) Curr Use (NHS): | + | $0 | $0 |
| | | -------------------------- | |
| (=) Market Value: | = | $531,568 | |
| (–) Productivity Loss: | – | $0 | |
| | | -------------------------- | |
| (=) Subtotal: | = | $531,568 | |
| (+) Senior Appraised Value: | + | $0 | |
| (+) Non-Senior Appraised Value: | + | $531,568 | |
| | | -------------------------- | |
| (=) Total Appraised Value: | = | $531,568 | |
| (–) Senior Exemption Loss: | – | $0 | |
| (–) Exemption Loss: | – | $0 | |
| | | -------------------------- | |
| (=) Taxable Value: | = | $531,568 | |
Taxing Jurisdiction
| Owner: | EVENSTA, KARIN L | | |
| % Ownership: | 100.0000000000% | | |
| Total Value: | $531,568 | | |
| Tax Area: | 540 - APPRAISER-Stan/Cam Schl Dist, Special Dist, improved & less than 1 acre |
| CF | Conservation Futures | 0.0316035091 | $531,568 | $531,568 | $16.80 | | |
| EMS1 | Fire & Rescue Dist #1 Camano GEN (EMS) | 0.3677864386 | $531,568 | $531,568 | $195.50 | | |
| FIRE1 | Fire & Rescue Dist #1 Camano GEN | 1.2502910536 | $531,568 | $531,568 | $664.61 | | |
| FIRE1BOND | Fire & Rescue Dist #1 Camano BOND | 0.1570001679 | $531,568 | $531,568 | $83.46 | | |
| CE | County Current Expense | 0.3708482477 | $531,568 | $531,568 | $197.13 | | |
| CR | County Roads | 0.4584763726 | $531,568 | $531,568 | $243.71 | | |
| LCIB | Library Sno-Isle BOND (Camano Island) | 0.0396325772 | $531,568 | $531,568 | $21.07 | | |
| LIB | Library Sno-Isle GEN | 0.3153421757 | $531,568 | $531,568 | $167.63 | | |
| SCH205_401 | School 205-401 Enrichment | 1.2698420524 | $531,568 | $531,568 | $675.01 | | |
| SCH205BOND | School 205-401 BOND | 0.9396497583 | $531,568 | $531,568 | $499.49 | | |
| ST | State School | 1.3035497053 | $531,568 | $531,568 | $692.93 | | |
| ST2 | State School Part 2 | 0.8169543533 | $531,568 | $531,568 | $434.27 | | |
| | Total Tax Rate: | 7.3209764117 | | | | | |
| | | | | Taxes w/Current Exemptions: | $3,891.61 | | |
| | | | | Taxes w/o Exemptions: | $3,891.61 | | |
Improvement / Building
| Improvement #1: | MANUFACTURED HOME | State Code: | Y | 1404.0 sqft | Value: | $130,638 |
| Bathrooms: | 2 | Bedrooms: | 2 | | Ceiling: | PLASTER PAINTED | Cooling: | EVAP NO DUCT | | Exterior Wall/Cover: | VINYL | Floor Covering: | CARPET 100% | | Floor Structure: | SLAB ON GRADE | Foundation: | SLAB | | Heating: | FHA ELECTRIC | Interior Finish: | PLASTER | | Plumbing Fixture Cnt: | 1 | Roof Slope: | FLAT | | Roof Structure/Cover: | CJ ALUMINIUM HEAVY |   |   |
|
| | Type | Description | Class CD | Sub Class CD | Year Built | Area |
| | BAS | BASE/MAIN FLOOR | 4 | 0 | 2002 | 1404.0 |
| | OWP | OPEN WOOD PORCH W/STEPS | 4 | 0 | 2002 | 368.0 |
Sketch
Property Image
Land
| 1 | HB | HIGH BLUFF | 0.8700 | 37897.20 | 83.00 | 0.00 | 1.00 | $400,000 | $0 |
| 2 | 55 | TIDES | 0.0000 | 0.00 | 93.00 | 0.00 | 1.00 | $930 | $0 |
Roll Value History
| 2026 | N/A | N/A | N/A | N/A | N/A |
| 2025 | $130,638 | $400,930 | $0 | $531,568 | $531,568 |
| 2024 | $133,946 | $375,930 | $0 | $509,876 | $509,876 |
| 2023 | $119,342 | $375,930 | $0 | $495,272 | $495,272 |
| 2022 | $110,674 | $325,930 | $0 | $436,604 | $436,604 |
| 2021 | $84,385 | $275,930 | $0 | $360,315 | $360,315 |
| 2020 | $83,997 | $250,930 | $0 | $334,927 | $334,927 |
| 2019 | $67,804 | $300,930 | $0 | $368,734 | $368,734 |
| 2018 | $69,437 | $200,930 | $0 | $270,367 | $270,367 |
| 2017 | $70,254 | $185,930 | $0 | $256,184 | $256,184 |
| 2016 | $71,071 | $200,930 | $0 | $272,001 | $272,001 |
| 2015 | $71,323 | $200,930 | $0 | $272,253 | $272,253 |
| 2014 | $72,877 | $200,930 | $0 | $273,807 | $273,807 |
| 2013 | $79,836 | $188,315 | $0 | $268,151 | $268,151 |
| 2012 | $80,612 | $188,315 | $0 | $268,927 | $268,927 |
| 2011 | $82,166 | $235,161 | $0 | $317,327 | $317,327 |
| 2010 | $81,563 | $261,187 | $0 | $342,750 | $342,750 |
| 2009 | $85,193 | $338,301 | $0 | $423,494 | $423,494 |
| 2008 | $87,146 | $334,787 | $0 | $421,933 | $421,933 |
| 2007 | $89,942 | $334,136 | $0 | $424,078 | $424,078 |
Deed and Sales History
| 1 | 03/26/2021 | QCD | Quit Claim Deed | MOBARLY, MICHAEL | EVENSTA, KARIN L | | | $0.00 | 47616 | 4515374 |
| 2 | 03/30/2021 | WD | Warranty Deed | ALGER, CHRISTINE MARIE MONTANA | EVENSTA, KARIN L | | | $500,000.00 | 47615 | 4515373 |
| 3 | 04/04/2008 | QCD | Quit Claim Deed | ALGER, MARY C | ALGER, CHRISTINE MARIE MONT | | | $0.00 | 81343 | 4229538 |
| 4 | 04/05/2002 | WD | Warranty Deed | ATKINS, FLORENCE E | ALGER, MARY C | | | $59,000.00 | 21326 | 4016520 |
| 5 | 09/18/1999 | QCD | Quit Claim Deed | ATKINS, FLORENCE E | ATKINS, FLORENCE E | | | $0.00 | 93997 | 99022136 |
| 6 | 04/05/1999 | BLA | DNU - Boundary Line Adjustment | ATKINS, FLORENCE E | ATKINS, FLORENCE E | | | $0.00 | 68222 | 98021513 |
| 7 | 10/01/1997 | OTHER | Other - Misc. Documents | ATKINS, GEORGE T | ATKINS, FLORENCE E | | | $0.00 | 67631 | 94020174 |
| 8 | 06/01/1994 | EZ | Easement | ATKINS, GEORGE T | ATKINS, GEORGE T | | | $0.00 | 65928 | 385051 |
| 9 | 07/01/1987 | WD | Warranty Deed | GARRISON, J B | ATKINS, GEORGE T | | | $25,000.00 | 72456 | 87011246 |
| 10 | 01/01/1900 | OTHER | Other - Misc. Documents | Unknown | GARRISON, J B | | | $0.00 | 0 | 0 |
Payout Agreement
| No payout information available.. |