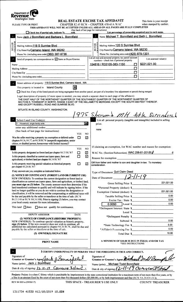
Property
Account |
| Property ID: | 432749 | Abbreviated Legal Description: | WINDMILL HTS LOT 2 BLK 2 |
| Geographic ID: | S8465-00-02002-0 | Agent Code: | |
| Type: | Real | | |
| Tax Area: | 710 - APPRAISER-S Whid Schl Dist, outside Langley, improved & 1 acre or less | Land Use Code | 11 |
| Open Space: | N | DFL | N |
| Historic Property: | N | Remodel Property: | N |
| Multi-Family Redevelopment: | N | | |
| Township: | | Section: | |
| Range: | |
Location |
| Address: | 617 WINDMILL DR FREELAND, WA 98249 | Mapsco: | |
| Neighborhood: | Cycle 3 | Map ID: | 301 |
| Neighborhood CD: | 3 |
Owner |
| Name: | PHILIO, PHILIP | Owner ID: | 102536 |
| Mailing Address: | 617 WINDMILL DR FREELAND, WA 98249-9626 | % Ownership: | 100.0000000000% |
| | | Exemptions: | |
Taxes and Assessment Details
Values
| (+) Improvement Homesite Value: | + | $0 | |
| (+) Improvement Non-Homesite Value: | + | $327,830 | |
| (+) Land Homesite Value: | + | $0 | |
| (+) Land Non-Homesite Value: | + | $440,000 | |
| (+) Curr Use (HS): | + | $0 | $0 |
| (+) Curr Use (NHS): | + | $0 | $0 |
| | | -------------------------- | |
| (=) Market Value: | = | $767,830 | |
| (–) Productivity Loss: | – | $0 | |
| | | -------------------------- | |
| (=) Subtotal: | = | $767,830 | |
| (+) Senior Appraised Value: | + | $0 | |
| (+) Non-Senior Appraised Value: | + | $767,830 | |
| | | -------------------------- | |
| (=) Total Appraised Value: | = | $767,830 | |
| (–) Senior Exemption Loss: | – | $0 | |
| (–) Exemption Loss: | – | $0 | |
| | | -------------------------- | |
| (=) Taxable Value: | = | $767,830 | |
Taxing Jurisdiction
| Owner: | PHILIO, PHILIP | | |
| % Ownership: | 100.0000000000% | | |
| Total Value: | $767,830 | | |
| Tax Area: | 710 - APPRAISER-S Whid Schl Dist, outside Langley, improved & 1 acre or less |
| CF | Conservation Futures | 0.0316035091 | $767,830 | $767,830 | $24.27 | | |
| FIRE3 | Fire & Rescue Dist #3 S Whidbey GEN | 1.2004855531 | $767,830 | $767,830 | $921.77 | | |
| HOBOND | Hospital BOND | 0.1910887512 | $767,830 | $767,830 | $146.72 | | |
| HOGEN | Hospital GEN | 0.3902502903 | $767,830 | $767,830 | $299.65 | | |
| CE | County Current Expense | 0.3708482477 | $767,830 | $767,830 | $284.75 | | |
| CR | County Roads | 0.4584763726 | $767,830 | $767,830 | $352.03 | | |
| ISLANDEMS | Hospital GEN (EMS) | 0.5000000000 | $767,830 | $767,830 | $383.92 | | |
| LIB | Library Sno-Isle GEN | 0.3153421757 | $767,830 | $767,830 | $242.13 | | |
| PORTWHID | Port of S Whidbey GEN | 0.1094540357 | $767,830 | $767,830 | $84.04 | | |
| SCH206BOND | School 206 BOND | 0.3161759235 | $767,830 | $767,830 | $242.77 | | |
| SCH206MO | School 206 Enrichment | 0.4547169547 | $767,830 | $767,830 | $349.15 | | |
| ST | State School | 1.3035497053 | $767,830 | $767,830 | $1,000.90 | | |
| ST2 | State School Part 2 | 0.8169543533 | $767,830 | $767,830 | $627.28 | | |
| SWHIDPRBD | P & R S Whidbey BOND | 0.0152817568 | $767,830 | $767,830 | $11.73 | | |
| SWHIDPRBD2 | P & R S Whidbey BOND2 | 0.0138911264 | $767,830 | $767,830 | $10.67 | | |
| SWHIDPRMT | P & R S Whidbey GEN | 0.2053334452 | $767,830 | $767,830 | $157.66 | | |
| | Total Tax Rate: | 6.6934522006 | | | | | |
| | | | | Taxes w/Current Exemptions: | $5,139.44 | | |
| | | | | Taxes w/o Exemptions: | $5,139.44 | | |
Improvement / Building
| Improvement #1: | RESIDENTIAL | State Code: | Y | 2363.0 sqft | Value: | $327,830 |
| Bathrooms: | 2.5 | Bedrooms: | 3 | | Ceiling: | DRYWALL PAINTED | Exterior Wall/Cover: | PLY/HARDBOARD T-111 | | Floor Covering: | CARPET/VINYL 80-20 | Floor Structure: | WOOD W/SUBFLOOR | | Foundation: | CONCRETE | Heating: | FHA GAS | | Interior Finish: | DRYWALL PAINT | Plumbing Fixture Cnt: | 13 | | Roof Slope: | 4" IN 12" | Roof Structure/Cover: | CJ CONCRETE TILE |
|
| | Type | Description | Class CD | Sub Class CD | Year Built | Area |
| | BAS | BASE/MAIN FLOOR | 3 | 0 | 1992 | 1487.3 |
| | BIG | BUILT IN GARAGE | 3 | 0 | 1992 | 576.0 |
| | OWP | OPEN WOOD PORCH W/STEPS | 3 | 0 | 1992 | 354.3 |
| | DWN | DOWNSTAIRS LIVING AREA | 3 | 0 | 1992 | 875.7 |
| | OWP | OPEN WOOD PORCH W/STEPS | 3 | 0 | 1992 | 25.2 |
Sketch
Property Image
Land
| 1 | 14 | SQ (08001-12000) | 0.0000 | 0.00 | 0.00 | 0.00 | 1.00 | $440,000 | $0 |
Roll Value History
| 2026 | N/A | N/A | N/A | N/A | N/A |
| 2025 | $327,830 | $440,000 | $0 | $767,830 | $767,830 |
| 2024 | $332,186 | $440,000 | $0 | $772,186 | $772,186 |
| 2023 | $336,542 | $440,000 | $0 | $776,542 | $776,542 |
| 2022 | $308,695 | $420,000 | $0 | $728,695 | $728,695 |
| 2021 | $271,864 | $300,000 | $0 | $571,864 | $571,864 |
| 2020 | $265,223 | $300,000 | $0 | $565,223 | $565,223 |
| 2019 | $211,867 | $350,000 | $0 | $561,867 | $561,867 |
| 2018 | $212,571 | $250,000 | $0 | $462,571 | $462,571 |
| 2017 | $213,170 | $240,000 | $0 | $453,170 | $453,170 |
| 2016 | $215,976 | $240,000 | $0 | $455,976 | $455,976 |
| 2015 | $218,781 | $200,000 | $0 | $418,781 | $418,781 |
| 2014 | $221,584 | $200,000 | $0 | $421,584 | $421,584 |
| 2013 | $223,916 | $187,000 | $0 | $410,916 | $410,916 |
| 2012 | $226,780 | $187,000 | $0 | $413,780 | $413,780 |
| 2011 | $229,644 | $220,000 | $0 | $449,644 | $449,644 |
| 2010 | $243,403 | $220,000 | $0 | $463,403 | $463,403 |
| 2009 | $253,673 | $265,000 | $0 | $518,673 | $518,673 |
| 2008 | $256,636 | $280,000 | $0 | $536,636 | $536,636 |
| 2007 | $266,980 | $135,000 | $0 | $401,980 | $401,980 |
Deed and Sales History
| 1 | 08/01/1986 | WD | Warranty Deed | CRUMP, MARIE E | PHILIO, PHILIP | | | $22,500.00 | 62213 | 86010227 |
| 2 | 04/01/1986 | DECREE | Divorce Decree/Legal Separation | CRUMP, ROLLIN A | CRUMP, MARIE E | | | $0.00 | 60987 | 86004607 |
| 3 | 01/01/1900 | OTHER | Other - Misc. Documents | Unknown | CRUMP, ROLLIN A | | | $0.00 | 0 | 0 |
Payout Agreement
| No payout information available.. |