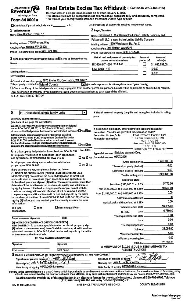
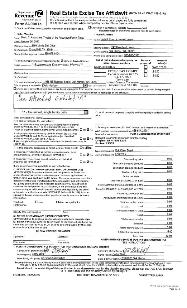
Property
Account |
| Property ID: | 432785 | Abbreviated Legal Description: | WINDMILL HTS LOT 6 BLK 2 |
| Geographic ID: | S8465-00-02006-0 | Agent Code: | |
| Type: | Real | | |
| Tax Area: | 710 - APPRAISER-S Whid Schl Dist, outside Langley, improved & 1 acre or less | Land Use Code | 11 |
| Open Space: | N | DFL | N |
| Historic Property: | N | Remodel Property: | N |
| Multi-Family Redevelopment: | N | | |
| Township: | | Section: | |
| Range: | |
Location |
| Address: | 5496 WINDMILL LN FREELAND, WA 98249 | Mapsco: | |
| Neighborhood: | Cycle 3 | Map ID: | 301 |
| Neighborhood CD: | 3 |
Owner |
| Name: | SULLIVAN, SHAWN THOMAS | Owner ID: | 314246 |
| Mailing Address: | ALESSANDRA SULLIVAN 943 NW 64TH ST SEATTLE, WA 98107 | % Ownership: | 100.0000000000% |
| | | Exemptions: | |
Taxes and Assessment Details
Values
| (+) Improvement Homesite Value: | + | $0 | |
| (+) Improvement Non-Homesite Value: | + | $460,069 | |
| (+) Land Homesite Value: | + | $0 | |
| (+) Land Non-Homesite Value: | + | $440,000 | |
| (+) Curr Use (HS): | + | $0 | $0 |
| (+) Curr Use (NHS): | + | $0 | $0 |
| | | -------------------------- | |
| (=) Market Value: | = | $900,069 | |
| (–) Productivity Loss: | – | $0 | |
| | | -------------------------- | |
| (=) Subtotal: | = | $900,069 | |
| (+) Senior Appraised Value: | + | $0 | |
| (+) Non-Senior Appraised Value: | + | $900,069 | |
| | | -------------------------- | |
| (=) Total Appraised Value: | = | $900,069 | |
| (–) Senior Exemption Loss: | – | $0 | |
| (–) Exemption Loss: | – | $0 | |
| | | -------------------------- | |
| (=) Taxable Value: | = | $900,069 | |
Taxing Jurisdiction
| Owner: | SULLIVAN, SHAWN THOMAS | | |
| % Ownership: | 100.0000000000% | | |
| Total Value: | $900,069 | | |
| Tax Area: | 710 - APPRAISER-S Whid Schl Dist, outside Langley, improved & 1 acre or less |
| CF | Conservation Futures | 0.0316035091 | $900,069 | $900,069 | $28.45 | | |
| FIRE3 | Fire & Rescue Dist #3 S Whidbey GEN | 1.2004855531 | $900,069 | $900,069 | $1,080.52 | | |
| HOBOND | Hospital BOND | 0.1910887512 | $900,069 | $900,069 | $171.99 | | |
| HOGEN | Hospital GEN | 0.3902502903 | $900,069 | $900,069 | $351.25 | | |
| CE | County Current Expense | 0.3708482477 | $900,069 | $900,069 | $333.79 | | |
| CR | County Roads | 0.4584763726 | $900,069 | $900,069 | $412.66 | | |
| ISLANDEMS | Hospital GEN (EMS) | 0.5000000000 | $900,069 | $900,069 | $450.03 | | |
| LIB | Library Sno-Isle GEN | 0.3153421757 | $900,069 | $900,069 | $283.83 | | |
| PORTWHID | Port of S Whidbey GEN | 0.1094540357 | $900,069 | $900,069 | $98.52 | | |
| SCH206BOND | School 206 BOND | 0.3161759235 | $900,069 | $900,069 | $284.58 | | |
| SCH206MO | School 206 Enrichment | 0.4547169547 | $900,069 | $900,069 | $409.28 | | |
| ST | State School | 1.3035497053 | $900,069 | $900,069 | $1,173.28 | | |
| ST2 | State School Part 2 | 0.8169543533 | $900,069 | $900,069 | $735.32 | | |
| SWHIDPRBD | P & R S Whidbey BOND | 0.0152817568 | $900,069 | $900,069 | $13.75 | | |
| SWHIDPRBD2 | P & R S Whidbey BOND2 | 0.0138911264 | $900,069 | $900,069 | $12.50 | | |
| SWHIDPRMT | P & R S Whidbey GEN | 0.2053334452 | $900,069 | $900,069 | $184.81 | | |
| | Total Tax Rate: | 6.6934522006 | | | | | |
| | | | | Taxes w/Current Exemptions: | $6,024.56 | | |
| | | | | Taxes w/o Exemptions: | $6,024.56 | | |
Improvement / Building
| Improvement #1: | RESIDENTIAL | State Code: | Y | 2462.4 sqft | Value: | $460,069 |
| Bathrooms: | 3 | Bedrooms: | 3 | | Ceiling: | BEAM PAINTED | Cooling: | HEAT PUMP/CONV/V | | Exterior Wall/Cover: | WOOD SIDING | Floor Covering: | VINYL/HARDWOOD 20-80 | | Floor Structure: | WOOD W/SUBFLOOR | Foundation: | CONCRETE | | Interior Finish: | DRYWALL PAINT | Plumbing Fixture Cnt: | 14 | | Roof Slope: | 4" IN 12" | Roof Structure/Cover: | CJ ASPHALT |
|
| | Type | Description | Class CD | Sub Class CD | Year Built | Area |
| | BAS | BASE/MAIN FLOOR | 4 | 0 | 1978 | 1742.4 |
| | AGR | ATTACHED GARAGE | 4 | 0 | 1978 | 456.0 |
| | OWP | OPEN WOOD PORCH W/STEPS | 4 | 0 | 1978 | 327.8 |
| | ENP | ENCLOSED PORCH | 4 | 0 | 1978 | 360.0 |
| | DWN | DOWNSTAIRS LIVING AREA | 4 | 0 | 1978 | 720.0 |
Sketch
Property Image
Land
| 1 | 14 | SQ (08001-12000) | 0.0000 | 0.00 | 0.00 | 0.00 | 1.00 | $440,000 | $0 |
Roll Value History
| 2026 | N/A | N/A | N/A | N/A | N/A |
| 2025 | $460,069 | $440,000 | $0 | $900,069 | $900,069 |
| 2024 | $359,071 | $440,000 | $0 | $799,071 | $799,071 |
| 2023 | $363,780 | $440,000 | $0 | $803,780 | $803,780 |
| 2022 | $333,686 | $420,000 | $0 | $753,686 | $753,686 |
| 2021 | $293,857 | $300,000 | $0 | $593,857 | $593,857 |
| 2020 | $287,015 | $300,000 | $0 | $587,015 | $587,015 |
| 2019 | $213,756 | $350,000 | $0 | $563,756 | $563,756 |
| 2018 | $214,430 | $250,000 | $0 | $464,430 | $464,430 |
| 2017 | $215,718 | $240,000 | $0 | $455,718 | $455,718 |
| 2016 | $218,415 | $240,000 | $0 | $458,415 | $458,415 |
| 2015 | $188,755 | $200,000 | $0 | $388,755 | $388,755 |
| 2014 | $191,450 | $200,000 | $0 | $391,450 | $391,450 |
| 2013 | $177,656 | $187,000 | $0 | $364,656 | $364,656 |
| 2012 | $180,413 | $187,000 | $0 | $367,413 | $367,413 |
| 2011 | $183,173 | $220,000 | $0 | $403,173 | $403,173 |
| 2010 | $195,899 | $220,000 | $0 | $415,899 | $415,899 |
| 2009 | $204,585 | $265,000 | $0 | $469,585 | $469,585 |
| 2008 | $207,397 | $280,000 | $0 | $487,397 | $487,397 |
| 2007 | $206,657 | $135,000 | $0 | $341,657 | $341,657 |
Deed and Sales History
| 1 | 10/11/2024 | WD | Warranty Deed | FORREST, ROBERT B | SULLIVAN, SHAWN THOMAS | | | $895,000.00 | 61589 | 4578308 |
| 2 | 05/13/2015 | WD | Warranty Deed | TODD COTRUSTEE, NORMA L | FORREST, ROBERT B | | | $426,133.00 | 19615 | 4378704 |
| 3 | 11/16/2011 | OTHER | Other - Misc. Documents | TODD CO TRUSTEE, NORMA L | TODD COTRUSTEE, NORMA L | | | | 82223 | |
| 4 | 11/16/2011 | TOD | Transfer On Death Deed | TODD, WILLIAM E | TODD CO TRUSTEE, NORMA L | | | | 82221 | |
| 5 | 04/01/1994 | QCD | Quit Claim Deed | TODD, WILLIAM E | TODD, WILLIAM E | | | $0.00 | 41761 | 94010406 |
| 6 | 09/01/1986 | WD | Warranty Deed | WOMACK, REX E | TODD, WILLIAM E | | | $125,000.00 | 62740 | 86012397 |
| 7 | 01/01/1900 | OTHER | Other - Misc. Documents | Unknown | WOMACK, REX E | | | $0.00 | 0 | 0 |
Payout Agreement
| No payout information available.. |