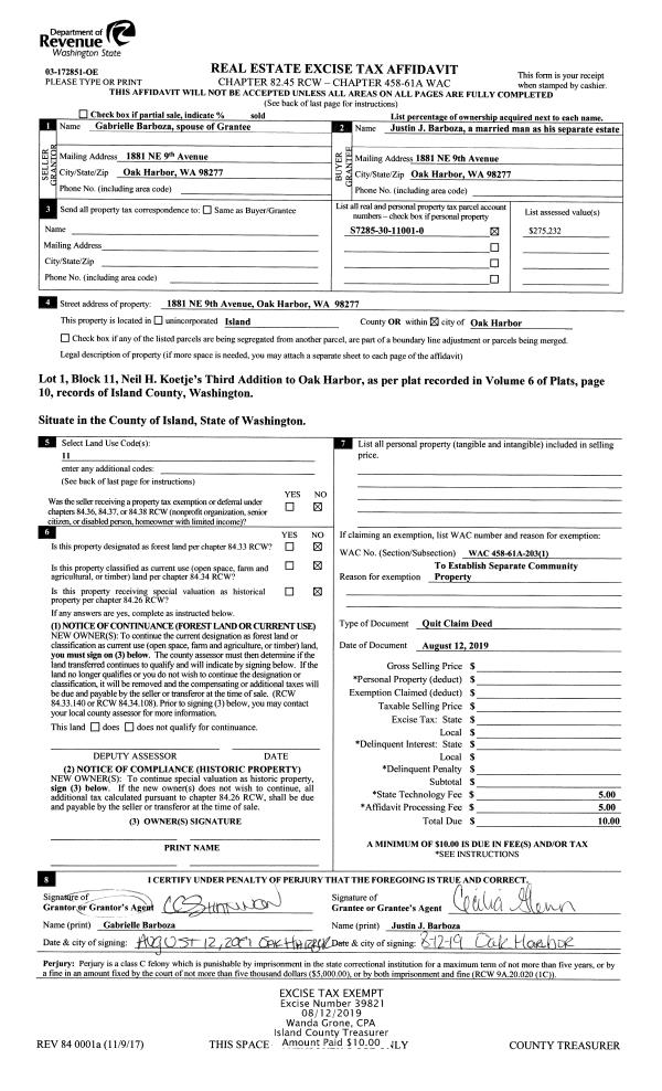
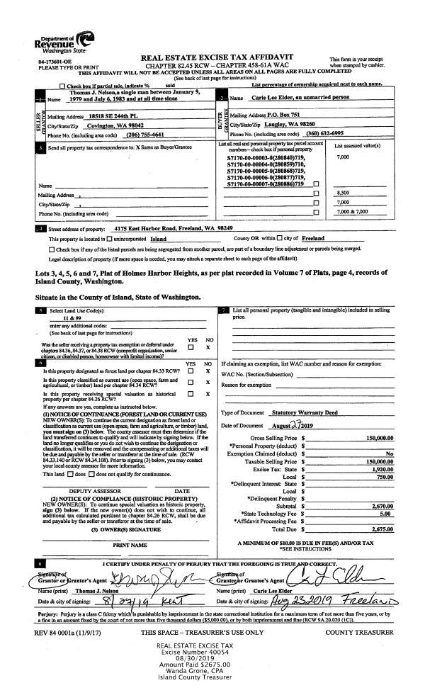
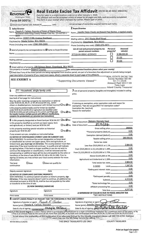
Property
Account |
| Property ID: | 432874 | Abbreviated Legal Description: | WINDMILL HTS LOT 5 BLK 3 |
| Geographic ID: | S8465-00-03005-0 | Agent Code: | |
| Type: | Real | | |
| Tax Area: | 710 - APPRAISER-S Whid Schl Dist, outside Langley, improved & 1 acre or less | Land Use Code | 11 |
| Open Space: | N | DFL | N |
| Historic Property: | N | Remodel Property: | N |
| Multi-Family Redevelopment: | N | | |
| Township: | | Section: | |
| Range: | |
Location |
| Address: | 5495 WINDMILL LN FREELAND, WA 98249 | Mapsco: | |
| Neighborhood: | Cycle 3 | Map ID: | 301 |
| Neighborhood CD: | 3 |
Owner |
| Name: | CARLSON JTWROS, LAURENCE | Owner ID: | 292403 |
| Mailing Address: | SHARON CARLSON, JTWROS 5495 WINDMILL LN FREELAND, WA 98249 | % Ownership: | 100.0000000000% |
| | | Exemptions: | |
Taxes and Assessment Details
Values
| (+) Improvement Homesite Value: | + | $0 | |
| (+) Improvement Non-Homesite Value: | + | $312,106 | |
| (+) Land Homesite Value: | + | $0 | |
| (+) Land Non-Homesite Value: | + | $410,000 | |
| (+) Curr Use (HS): | + | $0 | $0 |
| (+) Curr Use (NHS): | + | $0 | $0 |
| | | -------------------------- | |
| (=) Market Value: | = | $722,106 | |
| (–) Productivity Loss: | – | $0 | |
| | | -------------------------- | |
| (=) Subtotal: | = | $722,106 | |
| (+) Senior Appraised Value: | + | $0 | |
| (+) Non-Senior Appraised Value: | + | $722,106 | |
| | | -------------------------- | |
| (=) Total Appraised Value: | = | $722,106 | |
| (–) Senior Exemption Loss: | – | $0 | |
| (–) Exemption Loss: | – | $0 | |
| | | -------------------------- | |
| (=) Taxable Value: | = | $722,106 | |
Taxing Jurisdiction
| Owner: | CARLSON JTWROS, LAURENCE | | |
| % Ownership: | 100.0000000000% | | |
| Total Value: | $722,106 | | |
| Tax Area: | 710 - APPRAISER-S Whid Schl Dist, outside Langley, improved & 1 acre or less |
| CF | Conservation Futures | 0.0316035091 | $722,106 | $722,106 | $22.82 | | |
| FIRE3 | Fire & Rescue Dist #3 S Whidbey GEN | 1.2004855531 | $722,106 | $722,106 | $866.88 | | |
| HOBOND | Hospital BOND | 0.1910887512 | $722,106 | $722,106 | $137.99 | | |
| HOGEN | Hospital GEN | 0.3902502903 | $722,106 | $722,106 | $281.80 | | |
| CE | County Current Expense | 0.3708482477 | $722,106 | $722,106 | $267.79 | | |
| CR | County Roads | 0.4584763726 | $722,106 | $722,106 | $331.07 | | |
| ISLANDEMS | Hospital GEN (EMS) | 0.5000000000 | $722,106 | $722,106 | $361.05 | | |
| LIB | Library Sno-Isle GEN | 0.3153421757 | $722,106 | $722,106 | $227.71 | | |
| PORTWHID | Port of S Whidbey GEN | 0.1094540357 | $722,106 | $722,106 | $79.04 | | |
| SCH206BOND | School 206 BOND | 0.3161759235 | $722,106 | $722,106 | $228.31 | | |
| SCH206MO | School 206 Enrichment | 0.4547169547 | $722,106 | $722,106 | $328.35 | | |
| ST | State School | 1.3035497053 | $722,106 | $722,106 | $941.30 | | |
| ST2 | State School Part 2 | 0.8169543533 | $722,106 | $722,106 | $589.93 | | |
| SWHIDPRBD | P & R S Whidbey BOND | 0.0152817568 | $722,106 | $722,106 | $11.04 | | |
| SWHIDPRBD2 | P & R S Whidbey BOND2 | 0.0138911264 | $722,106 | $722,106 | $10.03 | | |
| SWHIDPRMT | P & R S Whidbey GEN | 0.2053334452 | $722,106 | $722,106 | $148.27 | | |
| | Total Tax Rate: | 6.6934522006 | | | | | |
| | | | | Taxes w/Current Exemptions: | $4,833.38 | | |
| | | | | Taxes w/o Exemptions: | $4,833.38 | | |
Improvement / Building
| Improvement #1: | RESIDENTIAL | State Code: | Y | 1929.0 sqft | Value: | $312,106 |
| Bathrooms: | 2 | Bedrooms: | 2 | | Ceiling: | DRYWALL PAINTED | Exterior Wall/Cover: | WOOD SIDING | | Floor Covering: | CARPET/VINYL 80-20 | Floor Structure: | WOOD W/SUBFLOOR | | Foundation: | CONCRETE | Heating: | WALL HEAT ELECTRIC | | Interior Finish: | DRYWALL PAINT | Plumbing Fixture Cnt: | 10 | | Roof Slope: | 4" IN 12" | Roof Structure/Cover: | CJ WOOD SHAKES |
|
| | Type | Description | Class CD | Sub Class CD | Year Built | Area |
| | BAS | BASE/MAIN FLOOR | 3 | 0 | 1988 | 1929.0 |
| | OP4 | OPEN PORCH W/CEILING-ROOF | 3 | 0 | 1988 | 81.0 |
| | BIG | BUILT IN GARAGE | 3 | 0 | 1988 | 484.0 |
| | OWP | OPEN WOOD PORCH W/STEPS | 3 | 0 | 1988 | 286.2 |
| | OWC | OPEN WOOD PORCH W/STEPS/ROOF/C | 3 | 0 | 1988 | 48.1 |
| | ENP | ENCLOSED PORCH | 3 | 0 | 1988 | 140.4 |
Sketch
Property Image
Land
| 1 | 13 | SQ (06001-08000) | 0.0000 | 0.00 | 0.00 | 0.00 | 1.00 | $410,000 | $0 |
Roll Value History
| 2026 | N/A | N/A | N/A | N/A | N/A |
| 2025 | $312,106 | $410,000 | $0 | $722,106 | $722,106 |
| 2024 | $316,255 | $410,000 | $0 | $726,255 | $726,255 |
| 2023 | $320,402 | $410,000 | $0 | $730,402 | $730,402 |
| 2022 | $293,884 | $350,000 | $0 | $643,884 | $643,884 |
| 2021 | $258,819 | $300,000 | $0 | $558,819 | $558,819 |
| 2020 | $252,518 | $300,000 | $0 | $552,518 | $552,518 |
| 2019 | $162,320 | $350,000 | $0 | $512,320 | $512,320 |
| 2018 | $162,874 | $250,000 | $0 | $412,874 | $412,874 |
| 2017 | $163,955 | $240,000 | $0 | $403,955 | $403,955 |
| 2016 | $166,173 | $240,000 | $0 | $406,173 | $406,173 |
| 2015 | $168,388 | $200,000 | $0 | $368,388 | $368,388 |
| 2014 | $170,603 | $200,000 | $0 | $370,603 | $370,603 |
| 2013 | $182,691 | $187,000 | $0 | $369,691 | $369,691 |
| 2012 | $184,937 | $187,000 | $0 | $371,937 | $371,937 |
| 2011 | $187,183 | $220,000 | $0 | $407,183 | $407,183 |
| 2010 | $194,268 | $220,000 | $0 | $414,268 | $414,268 |
| 2009 | $202,542 | $265,000 | $0 | $467,542 | $467,542 |
| 2008 | $205,012 | $280,000 | $0 | $485,012 | $485,012 |
| 2007 | $200,331 | $135,000 | $0 | $335,331 | $335,331 |
Deed and Sales History
| 1 | 10/17/2019 | QCD | Quit Claim Deed | CARLSON, LAURENCE | CARLSON JTWROS, LAURENCE | | | $0.00 | 40898 | 4474462 |
| 2 | 08/19/2019 | WD | Warranty Deed | HAWKINS, TERI LYN | CARLSON, LAURENCE | | | $560,000.00 | 39974 | 4469990 |
| 3 | 07/02/2019 | TOD | Transfer On Death Deed | HAWKINS, JOAN F | HAWKINS, TERI LYN | | | $0.00 | 39314 | 4465075 |
| 4 | 07/12/1999 | WD | Warranty Deed | Unknown | HAWKINS, JOAN F | | | $243,000.00 | 93089 | 99017927 |
| 5 | 12/01/1987 | WD | Warranty Deed | , | SHERIDAN, ROGER | | | $112,950.00 | 74043 | 87017595 |
| 6 | 05/01/1987 | WD | Warranty Deed | Unknown | TARA, PROPERTIES, I | | | $28,000.00 | 71726 | 87008086 |
| 7 | 01/01/1900 | OTHER | Other - Misc. Documents | Unknown | , | | | $0.00 | 0 | 0 |
| 8 | 01/01/1900 | OTHER | Other - Misc. Documents | Unknown | DYSON, DONALD E | | | $0.00 | 0 | 0 |
Payout Agreement
| No payout information available.. |