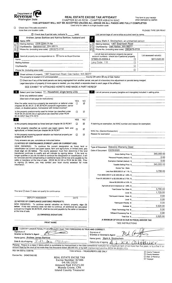
Property
Account |
| Property ID: | 432918 | Abbreviated Legal Description: | WINDMILL HTS LOTS 10 & 11 BLK 3 |
| Geographic ID: | S8465-00-03010-0 | Agent Code: | |
| Type: | Real | | |
| Tax Area: | 710 - APPRAISER-S Whid Schl Dist, outside Langley, improved & 1 acre or less | Land Use Code | 11 |
| Open Space: | N | DFL | N |
| Historic Property: | N | Remodel Property: | N |
| Multi-Family Redevelopment: | N | | |
| Township: | | Section: | |
| Range: | |
Location |
| Address: | 677 WINDMILL DR FREELAND, WA 98249 | Mapsco: | |
| Neighborhood: | Cycle 3 | Map ID: | 301 |
| Neighborhood CD: | 3 |
Owner |
| Name: | BROWN, F ROBERTSON | Owner ID: | 102552 |
| Mailing Address: | 23004 7TH AVE SE BOTHELL, WA 98021-9303 | % Ownership: | 100.0000000000% |
| | | Exemptions: | |
Taxes and Assessment Details
Values
| (+) Improvement Homesite Value: | + | $0 | |
| (+) Improvement Non-Homesite Value: | + | $85,169 | |
| (+) Land Homesite Value: | + | $0 | |
| (+) Land Non-Homesite Value: | + | $410,000 | |
| (+) Curr Use (HS): | + | $0 | $0 |
| (+) Curr Use (NHS): | + | $0 | $0 |
| | | -------------------------- | |
| (=) Market Value: | = | $495,169 | |
| (–) Productivity Loss: | – | $0 | |
| | | -------------------------- | |
| (=) Subtotal: | = | $495,169 | |
| (+) Senior Appraised Value: | + | $0 | |
| (+) Non-Senior Appraised Value: | + | $495,169 | |
| | | -------------------------- | |
| (=) Total Appraised Value: | = | $495,169 | |
| (–) Senior Exemption Loss: | – | $0 | |
| (–) Exemption Loss: | – | $0 | |
| | | -------------------------- | |
| (=) Taxable Value: | = | $495,169 | |
Taxing Jurisdiction
| Owner: | BROWN, F ROBERTSON | | |
| % Ownership: | 100.0000000000% | | |
| Total Value: | $495,169 | | |
| Tax Area: | 710 - APPRAISER-S Whid Schl Dist, outside Langley, improved & 1 acre or less |
| CF | Conservation Futures | 0.0316035091 | $495,169 | $495,169 | $15.65 | | |
| FIRE3 | Fire & Rescue Dist #3 S Whidbey GEN | 1.2004855531 | $495,169 | $495,169 | $594.44 | | |
| HOBOND | Hospital BOND | 0.1910887512 | $495,169 | $495,169 | $94.62 | | |
| HOGEN | Hospital GEN | 0.3902502903 | $495,169 | $495,169 | $193.24 | | |
| CE | County Current Expense | 0.3708482477 | $495,169 | $495,169 | $183.63 | | |
| CR | County Roads | 0.4584763726 | $495,169 | $495,169 | $227.02 | | |
| ISLANDEMS | Hospital GEN (EMS) | 0.5000000000 | $495,169 | $495,169 | $247.58 | | |
| LIB | Library Sno-Isle GEN | 0.3153421757 | $495,169 | $495,169 | $156.15 | | |
| PORTWHID | Port of S Whidbey GEN | 0.1094540357 | $495,169 | $495,169 | $54.20 | | |
| SCH206BOND | School 206 BOND | 0.3161759235 | $495,169 | $495,169 | $156.56 | | |
| SCH206MO | School 206 Enrichment | 0.4547169547 | $495,169 | $495,169 | $225.16 | | |
| ST | State School | 1.3035497053 | $495,169 | $495,169 | $645.48 | | |
| ST2 | State School Part 2 | 0.8169543533 | $495,169 | $495,169 | $404.53 | | |
| SWHIDPRBD | P & R S Whidbey BOND | 0.0152817568 | $495,169 | $495,169 | $7.57 | | |
| SWHIDPRBD2 | P & R S Whidbey BOND2 | 0.0138911264 | $495,169 | $495,169 | $6.88 | | |
| SWHIDPRMT | P & R S Whidbey GEN | 0.2053334452 | $495,169 | $495,169 | $101.67 | | |
| | Total Tax Rate: | 6.6934522006 | | | | | |
| | | | | Taxes w/Current Exemptions: | $3,314.38 | | |
| | | | | Taxes w/o Exemptions: | $3,314.38 | | |
Improvement / Building
| Improvement #1: | RESIDENTIAL | State Code: | Y | 768.0 sqft | Value: | $85,169 |
| Bathrooms: | 1 | Bedrooms: | 2 | | Ceiling: | DRYWALL PAINTED | Exterior Wall/Cover: | WOOD SIDING | | Floor Covering: | CARPET/VINYL 80-20 | Floor Structure: | WOOD W/SUBFLOOR | | Foundation: | CONCRETE | Heating: | BASEBOARD ELECTRIC | | Interior Finish: | DRYWALL PAINT | Plumbing Fixture Cnt: | 6 | | Roof Slope: | 4" IN 12" | Roof Structure/Cover: | CJ ASPHALT |
|
| | Type | Description | Class CD | Sub Class CD | Year Built | Area |
| | BAS | BASE/MAIN FLOOR | 3 | 0 | 1958 | 768.0 |
| | UB6 | BASEMENT UNFINISHED 6" | 3 | 0 | 1958 | 768.0 |
| | OWR | OPEN WOOD PORCH W/STEPS/ROOF | 3 | 0 | 1958 | 120.0 |
| | OWR | OPEN WOOD PORCH W/STEPS/ROOF | 3 | 0 | 1958 | 192.0 |
| | DGR | DETACHED GARAGE | 3 | 0 | 1958 | 480.0 |
Sketch
Property Image
Land
| 1 | 15 | SQ (12001-21780) | 0.0000 | 0.00 | 0.00 | 0.00 | 1.00 | $410,000 | $0 |
Roll Value History
| 2026 | N/A | N/A | N/A | N/A | N/A |
| 2025 | $85,169 | $410,000 | $0 | $495,169 | $495,169 |
| 2024 | $89,230 | $410,000 | $0 | $499,230 | $499,230 |
| 2023 | $91,561 | $410,000 | $0 | $501,561 | $501,561 |
| 2022 | $85,026 | $350,000 | $0 | $435,026 | $435,026 |
| 2021 | $75,772 | $300,000 | $0 | $375,772 | $375,772 |
| 2020 | $74,556 | $300,000 | $0 | $374,556 | $374,556 |
| 2019 | $59,500 | $350,000 | $0 | $409,500 | $409,500 |
| 2018 | $59,784 | $250,000 | $0 | $309,784 | $309,784 |
| 2017 | $60,352 | $240,000 | $0 | $300,352 | $300,352 |
| 2016 | $61,488 | $240,000 | $0 | $301,488 | $301,488 |
| 2015 | $62,624 | $200,000 | $0 | $262,624 | $262,624 |
| 2014 | $63,760 | $200,000 | $0 | $263,760 | $263,760 |
| 2013 | $65,838 | $187,000 | $0 | $252,838 | $252,838 |
| 2012 | $66,985 | $187,000 | $0 | $253,985 | $253,985 |
| 2011 | $68,132 | $220,000 | $0 | $288,132 | $288,132 |
| 2010 | $69,741 | $220,000 | $0 | $289,741 | $289,741 |
| 2009 | $72,868 | $265,000 | $0 | $337,868 | $337,868 |
| 2008 | $74,196 | $280,000 | $0 | $354,196 | $354,196 |
| 2007 | $72,979 | $163,000 | $0 | $235,979 | $235,979 |
Deed and Sales History
| 1 | 07/01/1987 | WD | Warranty Deed | KURTZ, ROBERT L | BROWN, F R | | | $75,000.00 | 72247 | 87010229 |
| 2 | 01/01/1900 | OTHER | Other - Misc. Documents | Unknown | KURTZ, ROBERT L | | | $0.00 | 0 | 0 |
Payout Agreement
| No payout information available.. |