Property
Account |
| Property ID: | 433230 | Abbreviated Legal Description: | WOODLAND BCH LOT 36 & 10'STRIP TR A N OF & ADJ TO L36 EX RD |
| Geographic ID: | S8470-00-00036-0 | Agent Code: | |
| Type: | Real | | |
| Tax Area: | 510 - APPRAISER-Stan/Cam Schl Dist, improved & 1 acre or less | Land Use Code | 11 |
| Open Space: | N | DFL | N |
| Historic Property: | N | Remodel Property: | N |
| Multi-Family Redevelopment: | N | | |
| Township: | | Section: | |
| Range: | |
Location |
| Address: | 211 WOODLAND BEACH RD CAMANO ISLAND, WA 98282 | Mapsco: | |
| Neighborhood: | Cycle 5 | Map ID: | 457 |
| Neighborhood CD: | 5 |
Owner |
| Name: | PERRY JR, ROBERT G | Owner ID: | 282361 |
| Mailing Address: | SHERRY A PERRY ROBERT G PERRY III JAIME L PERRY 6505 159TH PL SE SNOHOMISH, WA 98296 | % Ownership: | 100.0000000000% |
| | | Exemptions: | |
Taxes and Assessment Details
Values
| (+) Improvement Homesite Value: | + | $0 | |
| (+) Improvement Non-Homesite Value: | + | $67,461 | |
| (+) Land Homesite Value: | + | $0 | |
| (+) Land Non-Homesite Value: | + | $200,000 | |
| (+) Curr Use (HS): | + | $0 | $0 |
| (+) Curr Use (NHS): | + | $0 | $0 |
| | | -------------------------- | |
| (=) Market Value: | = | $267,461 | |
| (–) Productivity Loss: | – | $0 | |
| | | -------------------------- | |
| (=) Subtotal: | = | $267,461 | |
| (+) Senior Appraised Value: | + | $0 | |
| (+) Non-Senior Appraised Value: | + | $267,461 | |
| | | -------------------------- | |
| (=) Total Appraised Value: | = | $267,461 | |
| (–) Senior Exemption Loss: | – | $0 | |
| (–) Exemption Loss: | – | $0 | |
| | | -------------------------- | |
| (=) Taxable Value: | = | $267,461 | |
Taxing Jurisdiction
| Owner: | PERRY JR, ROBERT G | | |
| % Ownership: | 100.0000000000% | | |
| Total Value: | $267,461 | | |
| Tax Area: | 510 - APPRAISER-Stan/Cam Schl Dist, improved & 1 acre or less |
| CF | Conservation Futures | 0.0316035091 | $267,461 | $267,461 | $8.45 | | |
| EMS1 | Fire & Rescue Dist #1 Camano GEN (EMS) | 0.3677864386 | $267,461 | $267,461 | $98.37 | | |
| FIRE1 | Fire & Rescue Dist #1 Camano GEN | 1.2502910536 | $267,461 | $267,461 | $334.40 | | |
| FIRE1BOND | Fire & Rescue Dist #1 Camano BOND | 0.1570001679 | $267,461 | $267,461 | $41.99 | | |
| CE | County Current Expense | 0.3708482477 | $267,461 | $267,461 | $99.19 | | |
| CR | County Roads | 0.4584763726 | $267,461 | $267,461 | $122.62 | | |
| LCIB | Library Sno-Isle BOND (Camano Island) | 0.0396325772 | $267,461 | $267,461 | $10.60 | | |
| LIB | Library Sno-Isle GEN | 0.3153421757 | $267,461 | $267,461 | $84.34 | | |
| SCH205_401 | School 205-401 Enrichment | 1.2698420524 | $267,461 | $267,461 | $339.63 | | |
| SCH205BOND | School 205-401 BOND | 0.9396497583 | $267,461 | $267,461 | $251.32 | | |
| ST | State School | 1.3035497053 | $267,461 | $267,461 | $348.65 | | |
| ST2 | State School Part 2 | 0.8169543533 | $267,461 | $267,461 | $218.50 | | |
| | Total Tax Rate: | 7.3209764117 | | | | | |
| | | | | Taxes w/Current Exemptions: | $1,958.06 | | |
| | | | | Taxes w/o Exemptions: | $1,958.06 | | |
Improvement / Building
| Improvement #1: | RESIDENTIAL | State Code: | Y | 512.0 sqft | Value: | $67,461 |
| Bathrooms: | 1 | Bedrooms: | 1 | | Ceiling: | DRYWALL PAINTED | Exterior Wall/Cover: | WOOD SIDING | | Floor Covering: | (NONE) | Floor Structure: | WOOD W/SUBFLOOR | | Foundation: | CONCRETE BLOCKS | Heating: | FHA ELECTRIC | | Interior Finish: | DRYWALL PAINT | Plumbing Fixture Cnt: | 6 | | Roof Slope: | 3" IN 12" | Roof Structure/Cover: | CJ ASPHALT |
|
| | Type | Description | Class CD | Sub Class CD | Year Built | Area |
| | BAS | BASE/MAIN FLOOR | 3 | 0 | 1938 | 512.0 |
| | UB6 | BASEMENT UNFINISHED 6" | 3 | 0 | 1938 | 512.0 |
Sketch
Property Image
Land
| 1 | 14 | SQ (08001-12000) | 0.0000 | 0.00 | 0.00 | 0.00 | 1.00 | $200,000 | $0 |
Roll Value History
| 2026 | N/A | N/A | N/A | N/A | N/A |
| 2025 | $67,461 | $200,000 | $0 | $267,461 | $267,461 |
| 2024 | $33,259 | $200,000 | $0 | $233,259 | $233,259 |
| 2023 | $25,577 | $200,000 | $0 | $225,577 | $225,577 |
| 2022 | $48,523 | $200,000 | $0 | $248,523 | $248,523 |
| 2021 | $5,000 | $150,000 | $0 | $155,000 | $155,000 |
| 2020 | $5,000 | $150,000 | $0 | $155,000 | $155,000 |
| 2019 | $5,000 | $180,000 | $0 | $185,000 | $185,000 |
| 2018 | $5,000 | $100,000 | $0 | $105,000 | $105,000 |
| 2017 | $5,000 | $100,000 | $0 | $105,000 | $105,000 |
| 2016 | $5,000 | $85,000 | $0 | $90,000 | $90,000 |
| 2015 | $19,552 | $84,000 | $0 | $103,552 | $103,552 |
| 2014 | $20,127 | $84,000 | $0 | $104,127 | $104,127 |
| 2013 | $20,702 | $84,000 | $0 | $104,702 | $104,702 |
| 2012 | $21,277 | $84,000 | $0 | $105,277 | $105,277 |
| 2011 | $21,852 | $105,000 | $0 | $126,852 | $126,852 |
| 2010 | $19,710 | $105,000 | $0 | $124,710 | $124,710 |
| 2009 | $20,243 | $113,000 | $0 | $133,243 | $133,243 |
| 2008 | $20,243 | $113,000 | $0 | $133,243 | $133,243 |
| 2007 | $20,243 | $88,000 | $0 | $108,243 | $108,243 |
Deed and Sales History
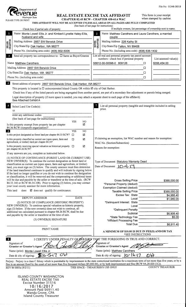
| 1 | 10/04/2017 | BARGSLD | Bargain And Sale Deed | PETERSON, SHEILA M | PERRY JR, ROBERT G | | | $25,000.00 | 31452 | 4431786 |
Payout Agreement
| No payout information available.. |