Property
Account |
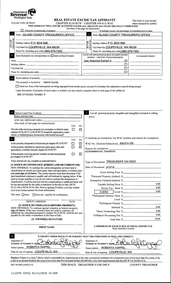
| Property ID: | 433294 | Abbreviated Legal Description: | WOODLAND EST LOT 8 |
| Geographic ID: | S8475-00-00008-0 | Agent Code: | |
| Type: | Real | | |
| Tax Area: | 110 - APPRAISER-OH Schl Dist, outside OH, improved & 1 acre or less | Land Use Code | 11 |
| Open Space: | N | DFL | N |
| Historic Property: | N | Remodel Property: | N |
| Multi-Family Redevelopment: | N | | |
| Township: | | Section: | |
| Range: | |
Location |
| Address: | 4483 WOODLAND CIR OAK HARBOR, WA 98277 | Mapsco: | |
| Neighborhood: | Cycle 6 | Map ID: | 189 |
| Neighborhood CD: | 6 |
Owner |
| Name: | CLARK, AARON | Owner ID: | 316296 |
| Mailing Address: | 4483 WOODLAND CIRCLE OAK HARBOR, WA 98277 | % Ownership: | 100.0000000000% |
| | | Exemptions: | |
Taxes and Assessment Details
Values
| (+) Improvement Homesite Value: | + | $0 | |
| (+) Improvement Non-Homesite Value: | + | $221,571 | |
| (+) Land Homesite Value: | + | $0 | |
| (+) Land Non-Homesite Value: | + | $190,000 | |
| (+) Curr Use (HS): | + | $0 | $0 |
| (+) Curr Use (NHS): | + | $0 | $0 |
| | | -------------------------- | |
| (=) Market Value: | = | $411,571 | |
| (–) Productivity Loss: | – | $0 | |
| | | -------------------------- | |
| (=) Subtotal: | = | $411,571 | |
| (+) Senior Appraised Value: | + | $0 | |
| (+) Non-Senior Appraised Value: | + | $411,571 | |
| | | -------------------------- | |
| (=) Total Appraised Value: | = | $411,571 | |
| (–) Senior Exemption Loss: | – | $0 | |
| (–) Exemption Loss: | – | $0 | |
| | | -------------------------- | |
| (=) Taxable Value: | = | $411,571 | |
Taxing Jurisdiction
| Owner: | CLARK, AARON | | |
| % Ownership: | 100.0000000000% | | |
| Total Value: | $411,571 | | |
| Tax Area: | 110 - APPRAISER-OH Schl Dist, outside OH, improved & 1 acre or less |
| CF | Conservation Futures | 0.0316035091 | $411,571 | $411,571 | $13.01 | | |
| CEM1 | Cemetery #1 | 0.0040320932 | $411,571 | $411,571 | $1.66 | | |
| FIRE2 | Fire & Rescue Dist #2 N Whidbey GEN | 0.5475949600 | $411,571 | $411,571 | $225.37 | | |
| HOBOND | Hospital BOND | 0.1910887512 | $411,571 | $411,571 | $78.65 | | |
| HOGEN | Hospital GEN | 0.3902502903 | $411,571 | $411,571 | $160.62 | | |
| CE | County Current Expense | 0.3708482477 | $411,571 | $411,571 | $152.63 | | |
| CR | County Roads | 0.4584763726 | $411,571 | $411,571 | $188.70 | | |
| ISLANDEMS | Hospital GEN (EMS) | 0.5000000000 | $411,571 | $411,571 | $205.79 | | |
| LIB | Library Sno-Isle GEN | 0.3153421757 | $411,571 | $411,571 | $129.79 | | |
| NWHIDPRMT | P & R N Whidbey GEN | 0.2004466701 | $411,571 | $411,571 | $82.50 | | |
| SCH201MO | School 201 Enrichment | 1.8559231640 | $411,571 | $411,571 | $763.84 | | |
| ST | State School | 1.3035497053 | $411,571 | $411,571 | $536.50 | | |
| ST2 | State School Part 2 | 0.8169543533 | $411,571 | $411,571 | $336.23 | | |
| | Total Tax Rate: | 6.9861102925 | | | | | |
| | | | | Taxes w/Current Exemptions: | $2,875.29 | | |
| | | | | Taxes w/o Exemptions: | $2,875.29 | | |
Improvement / Building
| Improvement #1: | RESIDENTIAL | State Code: | Y | 1336.0 sqft | Value: | $221,571 |
| Bathrooms: | 2 | Bedrooms: | 3 | | Ceiling: | DRY WALL SPRAYED | Exterior Wall/Cover: | PLY/HARDBOARD T-111 | | Floor Covering: | CERAMIC TILE/VINYL 50/50 | Floor Structure: | WOOD W/SUBFLOOR | | Foundation: | CONCRETE | Heating: | WALL HEAT ELECTRIC | | Interior Finish: | DRYWALL PAINT | Plumbing Fixture Cnt: | 9 | | Roof Slope: | 4" IN 12" | Roof Structure/Cover: | CJ ASPHALT |
|
| | Type | Description | Class CD | Sub Class CD | Year Built | Area |
| | BAS | BASE/MAIN FLOOR | 3 | 0 | 1977 | 1336.0 |
| | OWR | OPEN WOOD PORCH W/STEPS/ROOF | 3 | 0 | 1977 | 128.0 |
Sketch
Property Image
Land
| 1 | 14 | SQ (08001-12000) | 0.0000 | 0.00 | 0.00 | 0.00 | 1.00 | $190,000 | $0 |
Roll Value History
| 2026 | N/A | N/A | N/A | N/A | N/A |
| 2025 | $221,571 | $190,000 | $0 | $411,571 | $411,571 |
| 2024 | $202,549 | $180,000 | $0 | $382,549 | $382,549 |
| 2023 | $205,105 | $180,000 | $0 | $385,105 | $385,105 |
| 2022 | $183,407 | $170,000 | $0 | $353,407 | $353,407 |
| 2021 | $161,505 | $120,000 | $0 | $281,505 | $281,505 |
| 2020 | $157,195 | $110,000 | $0 | $267,195 | $267,195 |
| 2019 | $111,476 | $140,000 | $0 | $251,476 | $251,476 |
| 2018 | $111,815 | $120,000 | $0 | $231,815 | $231,815 |
| 2017 | $112,492 | $110,000 | $0 | $222,492 | $222,492 |
| 2016 | $93,447 | $85,000 | $0 | $178,447 | $178,447 |
| 2015 | $94,822 | $65,000 | $0 | $159,822 | $159,822 |
| 2014 | $96,196 | $50,000 | $0 | $146,196 | $146,196 |
| 2013 | $97,570 | $63,750 | $0 | $161,320 | $161,320 |
| 2012 | $98,944 | $63,750 | $0 | $162,694 | $162,694 |
| 2011 | $100,317 | $75,000 | $0 | $175,317 | $175,317 |
| 2010 | $104,517 | $75,000 | $0 | $179,517 | $179,517 |
| 2009 | $109,204 | $85,000 | $0 | $194,204 | $194,204 |
| 2008 | $110,847 | $85,000 | $0 | $195,847 | $195,847 |
| 2007 | $114,905 | $70,000 | $0 | $184,905 | $184,905 |
Deed and Sales History
| 1 | 04/28/2025 | WD | Warranty Deed | ERICKSON, CLIFFORD D | CLARK, AARON | | | $441,000.00 | 63296 | 4585109 |
| 2 | 04/05/2018 | QCD | Quit Claim Deed | ERICKSON, CLIFFORD D | ERICKSON, CLIFFORD D | | | $0.00 | 33802 | 4443133 |
| 3 | 03/04/2008 | WD | Warranty Deed | SMITH, RYAN | ERICKSON, CLIFFORD D | | | $203,500.00 | 80540 | 4223362 |
| 4 | 04/29/2002 | WD | Warranty Deed | GARRIS, ROGER K | SMITH, RYAN | | | $115,000.00 | 21661 | 4018704 |
| 5 | 02/14/2001 | WD | Warranty Deed | LYLES, JOHN D | GARRIS, ROGER K | | | $100,000.00 | 10549 | 20025894 |
| 6 | 02/01/1993 | WD | Warranty Deed | TUCKER, WILLIAM L | LYLES, JOHN D | | | $90,000.00 | 30641 | 93003423 |
| 7 | 02/01/1991 | WD | Warranty Deed | BRITTENHAM, DOUGLAS L | TUCKER, WILLIAM L | | | $84,000.00 | 10639 | 91002908 |
| 8 | 10/01/1989 | WD | Warranty Deed | LISITZKY, CHARLES L | BRITTENHAM, DOUGLAS L | | | $64,900.00 | 94927 | 89015939 |
| 9 | 06/01/1983 | WD | Warranty Deed | BERG, KENNETH D | LISITZKY, CHARLES L | | | $55,000.00 | 31529 | 410567 |
| 10 | 01/01/1900 | OTHER | Other - Misc. Documents | Unknown | BERG, KENNETH D | | | $0.00 | 0 | 0 |
Payout Agreement
| No payout information available.. |