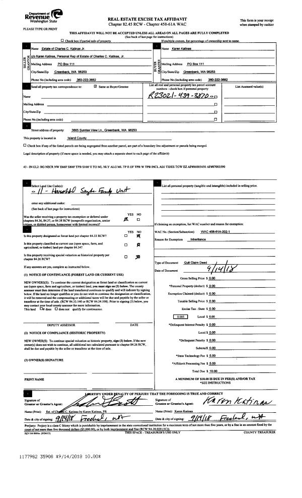
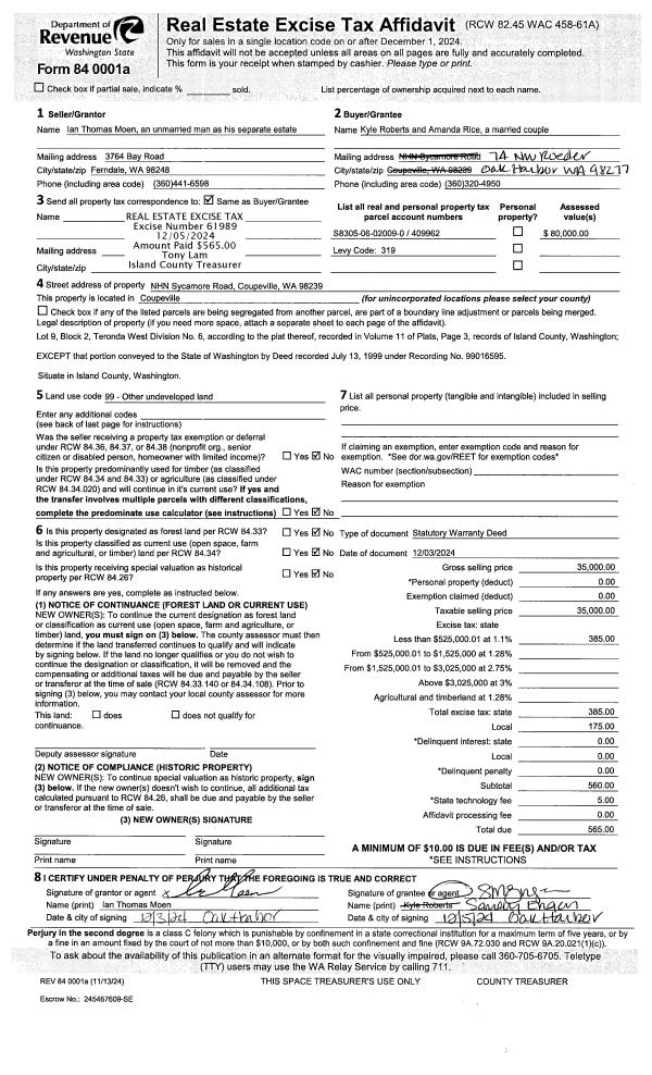
Property
Account |
| Property ID: | 433524 | Abbreviated Legal Description: | WOODRIDGE AC LOT 6 |
| Geographic ID: | S8480-00-00006-0 | Agent Code: | |
| Type: | Real | | |
| Tax Area: | 112 - APPRAISER-OH Schl Dist, outside OH, improved, greater than 1 acre | Land Use Code | 11 |
| Open Space: | N | DFL | N |
| Historic Property: | N | Remodel Property: | N |
| Multi-Family Redevelopment: | N | | |
| Township: | | Section: | |
| Range: | |
Location |
| Address: | 1526 MCKINNON DR OAK HARBOR, WA 98277 | Mapsco: | |
| Neighborhood: | Cycle 1 | Map ID: | 248 |
| Neighborhood CD: | 1 |
Owner |
| Name: | VILLEGAS, MICHAEL | Owner ID: | 286061 |
| Mailing Address: | CHARLEY VILLEGAS 1526 MCKINNON DR OAK HARBOR, WA 98277 | % Ownership: | 100.0000000000% |
| | | Exemptions: | |
Taxes and Assessment Details
Values
| (+) Improvement Homesite Value: | + | $0 | |
| (+) Improvement Non-Homesite Value: | + | $458,275 | |
| (+) Land Homesite Value: | + | $0 | |
| (+) Land Non-Homesite Value: | + | $200,000 | |
| (+) Curr Use (HS): | + | $0 | $0 |
| (+) Curr Use (NHS): | + | $0 | $0 |
| | | -------------------------- | |
| (=) Market Value: | = | $658,275 | |
| (–) Productivity Loss: | – | $0 | |
| | | -------------------------- | |
| (=) Subtotal: | = | $658,275 | |
| (+) Senior Appraised Value: | + | $0 | |
| (+) Non-Senior Appraised Value: | + | $658,275 | |
| | | -------------------------- | |
| (=) Total Appraised Value: | = | $658,275 | |
| (–) Senior Exemption Loss: | – | $0 | |
| (–) Exemption Loss: | – | $0 | |
| | | -------------------------- | |
| (=) Taxable Value: | = | $658,275 | |
Taxing Jurisdiction
| Owner: | VILLEGAS, MICHAEL | | |
| % Ownership: | 100.0000000000% | | |
| Total Value: | $658,275 | | |
| Tax Area: | 112 - APPRAISER-OH Schl Dist, outside OH, improved, greater than 1 acre |
| CF | Conservation Futures | 0.0316035091 | $658,275 | $658,275 | $20.80 | | |
| CEM1 | Cemetery #1 | 0.0040320932 | $658,275 | $658,275 | $2.65 | | |
| FIRE2 | Fire & Rescue Dist #2 N Whidbey GEN | 0.5475949600 | $658,275 | $658,275 | $360.47 | | |
| HOBOND | Hospital BOND | 0.1910887512 | $658,275 | $658,275 | $125.79 | | |
| HOGEN | Hospital GEN | 0.3902502903 | $658,275 | $658,275 | $256.89 | | |
| CE | County Current Expense | 0.3708482477 | $658,275 | $658,275 | $244.12 | | |
| CR | County Roads | 0.4584763726 | $658,275 | $658,275 | $301.80 | | |
| ISLANDEMS | Hospital GEN (EMS) | 0.5000000000 | $658,275 | $658,275 | $329.14 | | |
| LIB | Library Sno-Isle GEN | 0.3153421757 | $658,275 | $658,275 | $207.58 | | |
| NWHIDPRMT | P & R N Whidbey GEN | 0.2004466701 | $658,275 | $658,275 | $131.95 | | |
| SCH201MO | School 201 Enrichment | 1.8559231640 | $658,275 | $658,275 | $1,221.71 | | |
| ST | State School | 1.3035497053 | $658,275 | $658,275 | $858.09 | | |
| ST2 | State School Part 2 | 0.8169543533 | $658,275 | $658,275 | $537.78 | | |
| | Total Tax Rate: | 6.9861102925 | | | | | |
| | | | | Taxes w/Current Exemptions: | $4,598.77 | | |
| | | | | Taxes w/o Exemptions: | $4,598.77 | | |
Improvement / Building
| Improvement #1: | RESIDENTIAL | State Code: | Y | 2238.0 sqft | Value: | $458,275 |
| Bathrooms: | 3 | Bedrooms: | 4 | | Ceiling: | DRYWALL PAINTED | Exterior Wall/Cover: | WOOD SIDING | | Floor Covering: | HARDWOOD/CARP 20-80 | Floor Structure: | WOOD W/SUBFLOOR | | Foundation: | CONCRETE | Heating: | BASEBOARD ELECTRIC | | Interior Finish: | DRYWALL PAINT | Plumbing Fixture Cnt: | 14 | | Roof Slope: | 5" IN 12" | Roof Structure/Cover: | BEAM ALUMINUM HEAVY |
|
| | Type | Description | Class CD | Sub Class CD | Year Built | Area |
| | BAS | BASE/MAIN FLOOR | 4 | 0 | 1976 | 1782.0 |
| | OWP | OPEN WOOD PORCH W/STEPS | 4 | 0 | 1976 | 208.0 |
| | OP4 | OPEN PORCH W/CEILING-ROOF | 4 | 0 | 1976 | 96.0 |
| | DGR | DETACHED GARAGE | 4 | 0 | 1976 | 432.0 |
| | AGR | ATTACHED GARAGE | 4 | 0 | 1976 | 504.0 |
| | UTY | STORAGE/UTILITY | 4 | 0 | 1976 | 240.0 |
| | ENP | ENCLOSED PORCH | 4 | 0 | 1976 | 270.0 |
| | UPH | HALF STORY | 4 | 0 | 1976 | 456.0 |
Sketch
Property Image
Land
| 1 | 17 | AC (01.01-02.00) | 0.0000 | 0.00 | 0.00 | 0.00 | 1.00 | $200,000 | $0 |
Roll Value History
| 2026 | N/A | N/A | N/A | N/A | N/A |
| 2025 | $458,275 | $200,000 | $0 | $658,275 | $658,275 |
| 2024 | $472,834 | $200,000 | $0 | $672,834 | $672,834 |
| 2023 | $460,901 | $200,000 | $0 | $660,901 | $660,901 |
| 2022 | $422,757 | $190,000 | $0 | $612,757 | $612,757 |
| 2021 | $372,322 | $130,000 | $0 | $502,322 | $502,322 |
| 2020 | $362,780 | $130,000 | $0 | $492,780 | $492,780 |
| 2019 | $268,214 | $190,000 | $0 | $458,214 | $458,214 |
| 2018 | $246,808 | $150,000 | $0 | $396,808 | $396,808 |
| 2017 | $231,487 | $140,000 | $0 | $371,487 | $371,487 |
| 2016 | $234,704 | $100,000 | $0 | $334,704 | $334,704 |
| 2015 | $202,218 | $85,000 | $0 | $287,218 | $287,218 |
| 2014 | $205,149 | $70,000 | $0 | $275,149 | $275,149 |
| 2013 | $208,078 | $70,000 | $0 | $278,078 | $278,078 |
| 2012 | $211,011 | $96,000 | $0 | $307,011 | $307,011 |
| 2011 | $204,036 | $96,000 | $0 | $300,036 | $300,036 |
| 2010 | $104,789 | $96,000 | $0 | $200,789 | $200,789 |
| 2009 | $109,392 | $112,000 | $0 | $221,392 | $221,392 |
| 2008 | $110,870 | $120,000 | $0 | $230,870 | $230,870 |
| 2007 | $112,346 | $120,000 | $0 | $232,346 | $232,346 |
Deed and Sales History
| 1 | 07/16/2018 | WD | Warranty Deed | PALMER, GRANT H | VILLEGAS, MICHAEL | | | $460,000.00 | 35061 | 4448271 |
| 2 | 11/18/2013 | MARRCERT | DNU - Marriage Certificate | PALMER, GRANT H | PALMER, GRANT H | | | | 83823 | |
| 3 | 10/30/2012 | QCD | Quit Claim Deed | BECK, KATHLEEN ANN | PALMER, GRANT H | | | $0.00 | 9474 | 4327292 |
| 4 | 01/27/2008 | DECREE | Divorce Decree/Legal Separation | BECK, DOUGLAS L | BECK, KATHLEEN ANN | | | $0.00 | 80588 | 4223774 |
| 5 | 10/21/1998 | WD | Warranty Deed | MEGLEMRE, GEORGE W | BECK, DOUGLAS L | | | $170,600.00 | 84315 | 98023561 |
| 6 | 12/01/1994 | PRD | Personal Representatives Deed | MEGLEMRE, GEORGE E | MEGLEMRE, GEORGE W | | | $0.00 | 50090 | 95000424 |
| 7 | 01/01/1986 | WD | Warranty Deed | WOOLMAN, VERNON L | MEGLEMRE, GEORGE E | | | $110,000.00 | 60132 | 86000640 |
| 8 | 01/01/1980 | WD | Warranty Deed | HAUCK, SAMUEL M | WOOLMAN, VERNON L | | | $114,450.00 | 358 | 364678 |
| 9 | 01/01/1900 | OTHER | Other - Misc. Documents | Unknown | HAUCK, SAMUEL M | | | $0.00 | 0 | 0 |
Payout Agreement
| No payout information available.. |