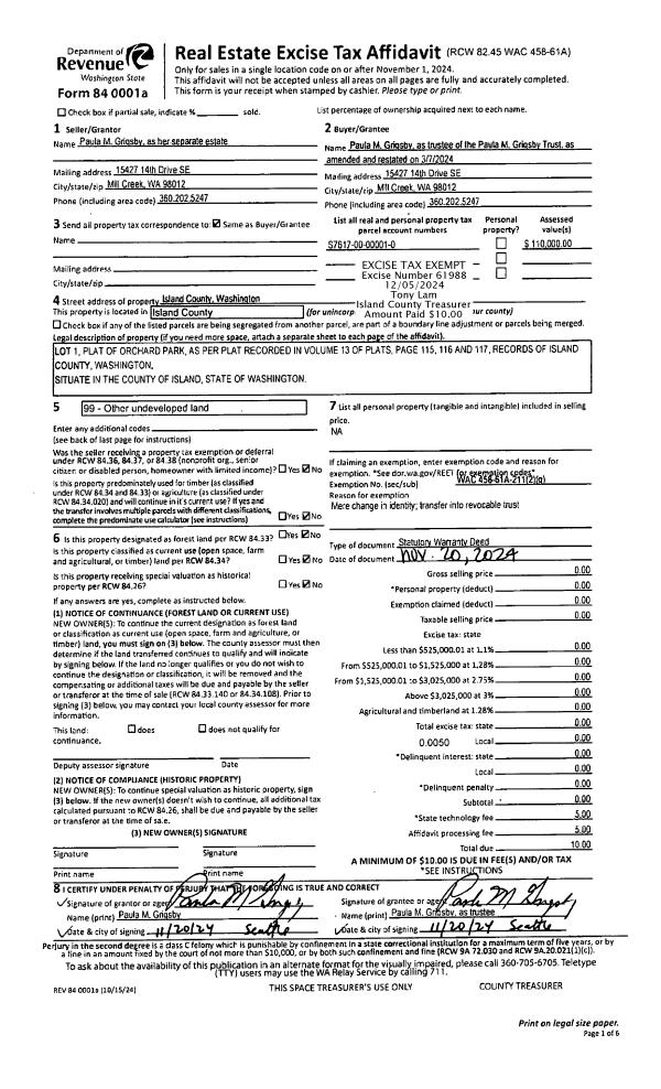
Property
Account |
| Property ID: | 433533 | Abbreviated Legal Description: | WOODRIDGE AC LOT 7 |
| Geographic ID: | S8480-00-00007-0 | Agent Code: | |
| Type: | Real | | |
| Tax Area: | 112 - APPRAISER-OH Schl Dist, outside OH, improved, greater than 1 acre | Land Use Code | 11 |
| Open Space: | N | DFL | N |
| Historic Property: | N | Remodel Property: | N |
| Multi-Family Redevelopment: | N | | |
| Township: | | Section: | |
| Range: | |
Location |
| Address: | 1509 MCKINNON DR OAK HARBOR, WA 98277 | Mapsco: | |
| Neighborhood: | Cycle 1 | Map ID: | 248 |
| Neighborhood CD: | 1 |
Owner |
| Name: | ENRIQUEZ TTEE, ALFONSO | Owner ID: | 284390 |
| Mailing Address: | LUCILLE T ENRIQUEZ TTEE 1509 MCKINNON DR OAK HARBOR, WA 98277 | % Ownership: | 100.0000000000% |
| | | Exemptions: | |
Taxes and Assessment Details
Values
| (+) Improvement Homesite Value: | + | $0 | |
| (+) Improvement Non-Homesite Value: | + | $251,378 | |
| (+) Land Homesite Value: | + | $0 | |
| (+) Land Non-Homesite Value: | + | $200,000 | |
| (+) Curr Use (HS): | + | $0 | $0 |
| (+) Curr Use (NHS): | + | $0 | $0 |
| | | -------------------------- | |
| (=) Market Value: | = | $451,378 | |
| (–) Productivity Loss: | – | $0 | |
| | | -------------------------- | |
| (=) Subtotal: | = | $451,378 | |
| (+) Senior Appraised Value: | + | $0 | |
| (+) Non-Senior Appraised Value: | + | $451,378 | |
| | | -------------------------- | |
| (=) Total Appraised Value: | = | $451,378 | |
| (–) Senior Exemption Loss: | – | $0 | |
| (–) Exemption Loss: | – | $0 | |
| | | -------------------------- | |
| (=) Taxable Value: | = | $451,378 | |
Taxing Jurisdiction
| Owner: | ENRIQUEZ TTEE, ALFONSO | | |
| % Ownership: | 100.0000000000% | | |
| Total Value: | $451,378 | | |
| Tax Area: | 112 - APPRAISER-OH Schl Dist, outside OH, improved, greater than 1 acre |
| CF | Conservation Futures | 0.0316035091 | $451,378 | $451,378 | $14.27 | | |
| CEM1 | Cemetery #1 | 0.0040320932 | $451,378 | $451,378 | $1.82 | | |
| FIRE2 | Fire & Rescue Dist #2 N Whidbey GEN | 0.5475949600 | $451,378 | $451,378 | $247.17 | | |
| HOBOND | Hospital BOND | 0.1910887512 | $451,378 | $451,378 | $86.25 | | |
| HOGEN | Hospital GEN | 0.3902502903 | $451,378 | $451,378 | $176.15 | | |
| CE | County Current Expense | 0.3708482477 | $451,378 | $451,378 | $167.39 | | |
| CR | County Roads | 0.4584763726 | $451,378 | $451,378 | $206.95 | | |
| ISLANDEMS | Hospital GEN (EMS) | 0.5000000000 | $451,378 | $451,378 | $225.69 | | |
| LIB | Library Sno-Isle GEN | 0.3153421757 | $451,378 | $451,378 | $142.34 | | |
| NWHIDPRMT | P & R N Whidbey GEN | 0.2004466701 | $451,378 | $451,378 | $90.48 | | |
| SCH201MO | School 201 Enrichment | 1.8559231640 | $451,378 | $451,378 | $837.72 | | |
| ST | State School | 1.3035497053 | $451,378 | $451,378 | $588.39 | | |
| ST2 | State School Part 2 | 0.8169543533 | $451,378 | $451,378 | $368.76 | | |
| | Total Tax Rate: | 6.9861102925 | | | | | |
| | | | | Taxes w/Current Exemptions: | $3,153.38 | | |
| | | | | Taxes w/o Exemptions: | $3,153.38 | | |
Improvement / Building
| Improvement #1: | RESIDENTIAL | State Code: | Y | 2654.0 sqft | Value: | $251,378 |
| Bathrooms: | 3 | Bedrooms: | 3 | | Ceiling: | DRYWALL PAINTED | Exterior Wall/Cover: | WOOD SIDING | | Floor Covering: | CARPET/VINYL 80-20 | Floor Structure: | WOOD W/SUBFLOOR | | Foundation: | CONCRETE BLOCKS | Heating: | BASEBOARD ELECTRIC | | Interior Finish: | DRYWALL PAINT | Plumbing Fixture Cnt: | 11 | | Roof Slope: | 4" IN 12" | Roof Structure/Cover: | CJ ASPHALT |
|
| | Type | Description | Class CD | Sub Class CD | Year Built | Area |
| | BAS | BASE/MAIN FLOOR | 3 | 0 | 1977 | 1646.0 |
| | DWN | DOWNSTAIRS LIVING AREA | 3 | 0 | 1977 | 1008.0 |
| | BGR | BASEMENT GARAGE | 3 | 0 | 1977 | 616.0 |
| | OWP | OPEN WOOD PORCH W/STEPS | 3 | 0 | 1977 | 200.0 |
| | OP4 | OPEN PORCH W/CEILING-ROOF | 3 | 0 | 1977 | 60.0 |
Sketch
Property Image
Land
| 1 | 17 | AC (01.01-02.00) | 0.0000 | 0.00 | 0.00 | 0.00 | 1.00 | $200,000 | $0 |
Roll Value History
| 2026 | N/A | N/A | N/A | N/A | N/A |
| 2025 | $251,378 | $200,000 | $0 | $451,378 | $451,378 |
| 2024 | $261,070 | $200,000 | $0 | $461,070 | $461,070 |
| 2023 | $257,007 | $200,000 | $0 | $457,007 | $457,007 |
| 2022 | $236,414 | $190,000 | $0 | $426,414 | $426,414 |
| 2021 | $208,775 | $130,000 | $0 | $338,775 | $338,775 |
| 2020 | $204,532 | $130,000 | $0 | $334,532 | $334,532 |
| 2019 | $161,162 | $190,000 | $0 | $351,162 | $351,162 |
| 2018 | $161,761 | $150,000 | $0 | $311,761 | $311,761 |
| 2017 | $140,891 | $140,000 | $0 | $280,891 | $280,891 |
| 2016 | $143,201 | $100,000 | $0 | $243,201 | $243,201 |
| 2015 | $145,511 | $85,000 | $0 | $230,511 | $230,511 |
| 2014 | $147,822 | $70,000 | $0 | $217,822 | $217,822 |
| 2013 | $150,132 | $70,000 | $0 | $220,132 | $220,132 |
| 2012 | $152,440 | $96,000 | $0 | $248,440 | $248,440 |
| 2011 | $150,237 | $96,000 | $0 | $246,237 | $246,237 |
| 2010 | $164,361 | $96,000 | $0 | $260,361 | $260,361 |
| 2009 | $171,682 | $112,000 | $0 | $283,682 | $283,682 |
| 2008 | $174,050 | $120,000 | $0 | $294,050 | $294,050 |
| 2007 | $176,417 | $120,000 | $0 | $296,417 | $296,417 |
Deed and Sales History
| 1 | 03/27/2018 | QCD | Quit Claim Deed | ENRIQUEZ, AL | ENRIQUEZ TTEE, ALFONSO | | | $0.00 | 33456 | 4441566 |
Payout Agreement
| No payout information available.. |