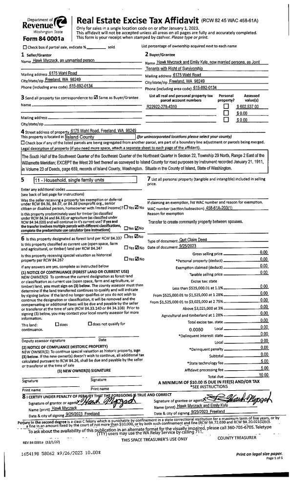
Property
Account |
| Property ID: | 43492 | Abbreviated Legal Description: | 35 - IN GL 2:BG NE CR LOT 3 EVERGREEN ADD S89*E80.6' TO TPB S144' TO NLN 875TH AVE E TO SW CR TR DESC 107D318 N ALG WLN OF TR DESC 107D 318 TO NW CR W ALG SLN RUDDICK ADD TO TPB |
| Geographic ID: | R13336-238-0620 | Agent Code: | |
| Type: | Real | | |
| Tax Area: | 100 - APPRAISER-OH Schl Dist, in OH | Land Use Code | 11 |
| Open Space: | N | DFL | N |
| Historic Property: | N | Remodel Property: | N |
| Multi-Family Redevelopment: | N | | |
| Township: | 33 | Section: | 36 |
| Range: | R1 |
Location |
| Address: | 1946 NE 6TH AVE OAK HARBOR, WA 98277 | Mapsco: | |
| Neighborhood: | Cycle 1 | Map ID: | 260 |
| Neighborhood CD: | 1 |
Owner |
| Name: | DELAP-LIDRAL, MARIA THERESA | Owner ID: | 310478 |
| Mailing Address: | 1946 NE 6TH AVE OAK HARBOR, WA 98277 | % Ownership: | 100.0000000000% |
| | | Exemptions: | SNR/DSBL |
Taxes and Assessment Details
Values
| (+) Improvement Homesite Value: | + | $229,334 | |
| (+) Improvement Non-Homesite Value: | + | $0 | |
| (+) Land Homesite Value: | + | $180,000 | |
| (+) Land Non-Homesite Value: | + | $0 | |
| (+) Curr Use (HS): | + | $0 | $0 |
| (+) Curr Use (NHS): | + | $0 | $0 |
| | | -------------------------- | |
| (=) Market Value: | = | $409,334 | |
| (–) Productivity Loss: | – | $0 | |
| | | -------------------------- | |
| (=) Subtotal: | = | $409,334 | |
| (+) Senior Appraised Value: | + | $402,598 | |
| (+) Non-Senior Appraised Value: | + | $0 | |
| | | -------------------------- | |
| (=) Total Appraised Value: | = | $402,598 | |
| (–) Senior Exemption Loss: | – | $241,559 | |
| (–) Exemption Loss: | – | $0 | |
| | | -------------------------- | |
| (=) Taxable Value: | = | $161,039 | |
Taxing Jurisdiction
| Owner: | DELAP-LIDRAL, MARIA THERESA | | |
| % Ownership: | 100.0000000000% | | |
| Total Value: | $409,334 | | |
| Tax Area: | 100 - APPRAISER-OH Schl Dist, in OH |
| CF | Conservation Futures | 0.0316035091 | $409,334 | $161,039 | $5.09 | | |
| CEM1 | Cemetery #1 | 0.0040320932 | $409,334 | $161,039 | $0.65 | | |
| COH | City of Oak Harbor | 2.3001546061 | $409,334 | $161,039 | $370.41 | | |
| OAKBOND | City of Oak Harbor BOND | 0.1926904192 | $409,334 | $161,039 | $31.03 | | |
| HOBOND | Hospital BOND | 0.0000000000 | $409,334 | $0 | $0.00 | | |
| HOGEN | Hospital GEN | 0.3902502903 | $409,334 | $161,039 | $62.85 | | |
| CE | County Current Expense | 0.3708482477 | $409,334 | $161,039 | $59.72 | | |
| ISLANDEMS | Hospital GEN (EMS) | 0.5000000000 | $409,334 | $161,039 | $80.52 | | |
| LIB | Library Sno-Isle GEN | 0.3153421757 | $409,334 | $161,039 | $50.78 | | |
| NWHIDPRMT | P & R N Whidbey GEN | 0.2004466701 | $409,334 | $161,039 | $32.28 | | |
| SCH201MO | School 201 Enrichment | 0.0000000000 | $409,334 | $0 | $0.00 | | |
| ST | State School | 1.3035497053 | $409,334 | $161,039 | $209.92 | | |
| ST2 | State School Part 2 | 0.0000000000 | $409,334 | $0 | $0.00 | | |
| | Total Tax Rate: | 5.6089177167 | | | | | |
| | | | | Taxes w/Current Exemptions: | $903.25 | | |
| | | | | Taxes w/o Exemptions: | $3,468.24 | | |
Improvement / Building
| Improvement #1: | RESIDENTIAL | State Code: | Y | 1228.0 sqft | Value: | $229,334 |
| Bathrooms: | 2 | Bedrooms: | 3 | | Ceiling: | TONGUE & GROOVE | Exterior Wall/Cover: | VINYL | | Floor Covering: | CERAMIC TILE/HWD 40/60 | Floor Structure: | WOOD W/SUBFLOOR | | Foundation: | CONCRETE | Heating: | FHA GAS | | Interior Finish: | DRYWALL PAINT | Plumbing Fixture Cnt: | 9 | | Roof Slope: | 3" IN 12" | Roof Structure/Cover: | CJ ASPHALT |
|
| | Type | Description | Class CD | Sub Class CD | Year Built | Area |
| | BAS | BASE/MAIN FLOOR | 3 | 0 | 1963 | 1228.0 |
| | OP4 | OPEN PORCH W/CEILING-ROOF | 3 | 0 | 1963 | 46.0 |
| | AGR | ATTACHED GARAGE | 3 | 0 | 1963 | 546.0 |
| | OWP | OPEN WOOD PORCH W/STEPS | 3 | 0 | 1963 | 324.0 |
| | OP1 | OPEN PORCH SLAB | 3 | 0 | 1963 | 190.0 |
Sketch
Property Image
Land
| 1 | 14 | SQ (08001-12000) | 0.3500 | 15246.00 | 0.00 | 0.00 | 1.00 | $180,000 | $0 |
Roll Value History
| 2026 | N/A | N/A | N/A | N/A | N/A |
| 2025 | $229,334 | $180,000 | $0 | $409,334 | $161,039 |
| 2024 | $232,598 | $170,000 | $0 | $402,598 | $161,039 |
| 2023 | $219,540 | $170,000 | $0 | $389,540 | $389,540 |
| 2022 | $190,581 | $160,000 | $0 | $350,581 | $350,581 |
| 2021 | $168,142 | $120,000 | $0 | $288,142 | $288,142 |
| 2020 | $164,036 | $100,000 | $0 | $264,036 | $264,036 |
| 2019 | $117,287 | $160,000 | $0 | $277,287 | $277,287 |
| 2018 | $117,699 | $125,000 | $0 | $242,699 | $242,699 |
| 2017 | $82,888 | $110,000 | $0 | $192,888 | $192,888 |
| 2016 | $84,581 | $90,000 | $0 | $174,581 | $174,581 |
| 2015 | $86,272 | $80,000 | $0 | $166,272 | $166,272 |
| 2014 | $87,963 | $80,000 | $0 | $167,963 | $167,963 |
| 2013 | $89,655 | $80,000 | $0 | $169,655 | $169,655 |
| 2012 | $91,346 | $80,000 | $0 | $171,346 | $171,346 |
| 2011 | $93,037 | $80,000 | $0 | $173,037 | $173,037 |
| 2010 | $102,554 | $80,000 | $0 | $182,554 | $182,554 |
| 2009 | $107,456 | $97,000 | $0 | $204,456 | $204,456 |
| 2008 | $109,254 | $97,000 | $0 | $206,254 | $206,254 |
| 2007 | $111,051 | $97,000 | $0 | $208,051 | $208,051 |
Deed and Sales History
| 1 | 10/10/2023 | QCD | Quit Claim Deed | DELAP, DAVID KEITH | DELAP-LIDRAL, MARIA THERESA | | | $0.00 | 58322 | 4566044 |
| 2 | 10/17/2023 | WD | Warranty Deed | NEUMANN, ELIZABETH CANDY | DELAP-LIDRAL, MARIA THERESA | | | $406,500.00 | 58321 | 4566043 |
| 3 | 02/22/2023 | PRD | Personal Representatives Deed | NEUMANN, ELIZABETH CANDY | NEUMANN, ELIZABETH CANDY | | | $0.00 | 55925 | 4557047 |
| 4 | 01/26/2023 | PRD | Personal Representatives Deed | ALLEN, EDWARD GERALD | NEUMANN, ELIZABETH CANDY | | | $0.00 | 55783 | 4556454 |
| 5 | 10/02/2018 | QCD | Quit Claim Deed | ALLEN TRUSTEE, EDWARD G | ALLEN, EDWARD GERALD | | | $0.00 | 36299 | 4453443 |
| 6 | 05/09/2002 | WD | Warranty Deed | ALLEN, EDWARD G | ALLEN TRUSTEE, EDWARD G | | | $0.00 | 21820 | 4019955 |
| 7 | 10/01/1979 | WD | Warranty Deed | DUZAN, W O | ALLEN, EDWARD G | | | $56,500.00 | 95158 | 360705 |
| 8 | 01/01/1900 | OTHER | Other - Misc. Documents | Unknown | DUZAN, W O | | | $0.00 | 0 | 0 |
Payout Agreement
| No payout information available.. |