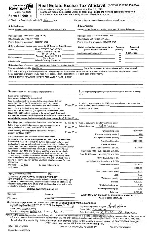
Property
Account |
| Property ID: | 43633 | Abbreviated Legal Description: | 29 - IN GL6:BG PT 1435.5'E & 1009.14'S OF NW CR SEC 36 S89*E143.88' N306.24' N89* W143.88' S306.24' TPB EX RD |
| Geographic ID: | R13336-443-1500 | Agent Code: | |
| Type: | Real | | |
| Tax Area: | 112 - APPRAISER-OH Schl Dist, outside OH, improved, greater than 1 acre | Land Use Code | 11 |
| Open Space: | N | DFL | N |
| Historic Property: | N | Remodel Property: | N |
| Multi-Family Redevelopment: | N | | |
| Township: | 33 | Section: | 36 |
| Range: | R1 |
Location |
| Address: | 286 W CRESCENT HARBOR RD OAK HARBOR, WA 98277 | Mapsco: | |
| Neighborhood: | Cycle 1 | Map ID: | 262 |
| Neighborhood CD: | 1 |
Owner |
| Name: | WOJCIECHOWSKI, ROBERT J | Owner ID: | 43149 |
| Mailing Address: | 286 W CRESCENT HARBOR RD OAK HARBOR, WA 98277-9540 | % Ownership: | 100.0000000000% |
| | | Exemptions: | |
Taxes and Assessment Details
Values
| (+) Improvement Homesite Value: | + | $0 | |
| (+) Improvement Non-Homesite Value: | + | $156,176 | |
| (+) Land Homesite Value: | + | $0 | |
| (+) Land Non-Homesite Value: | + | $240,000 | |
| (+) Curr Use (HS): | + | $0 | $0 |
| (+) Curr Use (NHS): | + | $0 | $0 |
| | | -------------------------- | |
| (=) Market Value: | = | $396,176 | |
| (–) Productivity Loss: | – | $0 | |
| | | -------------------------- | |
| (=) Subtotal: | = | $396,176 | |
| (+) Senior Appraised Value: | + | $0 | |
| (+) Non-Senior Appraised Value: | + | $396,176 | |
| | | -------------------------- | |
| (=) Total Appraised Value: | = | $396,176 | |
| (–) Senior Exemption Loss: | – | $0 | |
| (–) Exemption Loss: | – | $0 | |
| | | -------------------------- | |
| (=) Taxable Value: | = | $396,176 | |
Taxing Jurisdiction
| Owner: | WOJCIECHOWSKI, ROBERT J | | |
| % Ownership: | 100.0000000000% | | |
| Total Value: | $396,176 | | |
| Tax Area: | 112 - APPRAISER-OH Schl Dist, outside OH, improved, greater than 1 acre |
| CF | Conservation Futures | 0.0316035091 | $396,176 | $396,176 | $12.52 | | |
| CEM1 | Cemetery #1 | 0.0040320932 | $396,176 | $396,176 | $1.60 | | |
| FIRE2 | Fire & Rescue Dist #2 N Whidbey GEN | 0.5475949600 | $396,176 | $396,176 | $216.94 | | |
| HOBOND | Hospital BOND | 0.1910887512 | $396,176 | $396,176 | $75.70 | | |
| HOGEN | Hospital GEN | 0.3902502903 | $396,176 | $396,176 | $154.61 | | |
| CE | County Current Expense | 0.3708482477 | $396,176 | $396,176 | $146.92 | | |
| CR | County Roads | 0.4584763726 | $396,176 | $396,176 | $181.64 | | |
| ISLANDEMS | Hospital GEN (EMS) | 0.5000000000 | $396,176 | $396,176 | $198.09 | | |
| LIB | Library Sno-Isle GEN | 0.3153421757 | $396,176 | $396,176 | $124.93 | | |
| NWHIDPRMT | P & R N Whidbey GEN | 0.2004466701 | $396,176 | $396,176 | $79.41 | | |
| SCH201MO | School 201 Enrichment | 1.8559231640 | $396,176 | $396,176 | $735.27 | | |
| ST | State School | 1.3035497053 | $396,176 | $396,176 | $516.44 | | |
| ST2 | State School Part 2 | 0.8169543533 | $396,176 | $396,176 | $323.66 | | |
| | Total Tax Rate: | 6.9861102925 | | | | | |
| | | | | Taxes w/Current Exemptions: | $2,767.73 | | |
| | | | | Taxes w/o Exemptions: | $2,767.73 | | |
Improvement / Building
| Improvement #1: | RESIDENTIAL | State Code: | Y | 1128.0 sqft | Value: | $156,176 |
| Bathrooms: | 1 | Bedrooms: | 4 | | Ceiling: | DRYWALL PAINTED | Exterior Wall/Cover: | VINYL | | Floor Covering: | CARPET/VINYL 20-80 | Floor Structure: | WOOD W/SUBFLOOR | | Foundation: | WOOD BLOCKS | Heating: | FHA GAS | | Interior Finish: | DRYWALL PAINT | Plumbing Fixture Cnt: | 6 | | Roof Slope: | 12" IN 12" | Roof Structure/Cover: | CJ ASPHALT |
|
| | Type | Description | Class CD | Sub Class CD | Year Built | Area |
| | BAS | BASE/MAIN FLOOR | 3 | 0 | 1913 | 1128.0 |
| | ATF | ATTIC FINISHED | 3 | 0 | 1913 | 728.0 |
| | OWC | OPEN WOOD PORCH W/STEPS/ROOF/C | 3 | 0 | 1913 | 48.0 |
| | ENP | ENCLOSED PORCH | 3 | 0 | 1913 | 117.0 |
Sketch
Property Image
Land
| 1 | 17 | AC (01.01-02.00) | 1.0100 | 43995.60 | 0.00 | 0.00 | 1.00 | $240,000 | $0 |
Roll Value History
| 2026 | N/A | N/A | N/A | N/A | N/A |
| 2025 | $156,176 | $240,000 | $0 | $396,176 | $396,176 |
| 2024 | $158,726 | $220,000 | $0 | $378,726 | $378,726 |
| 2023 | $161,226 | $220,000 | $0 | $381,226 | $381,226 |
| 2022 | $148,536 | $200,000 | $0 | $348,536 | $348,536 |
| 2021 | $131,496 | $170,000 | $0 | $301,496 | $301,496 |
| 2020 | $128,686 | $130,000 | $0 | $258,686 | $258,686 |
| 2019 | $93,662 | $200,000 | $0 | $293,662 | $293,662 |
| 2018 | $94,006 | $135,000 | $0 | $229,006 | $229,006 |
| 2017 | $44,153 | $120,000 | $0 | $164,153 | $164,153 |
| 2016 | $44,153 | $90,000 | $0 | $134,153 | $134,153 |
| 2015 | $44,153 | $80,000 | $0 | $124,153 | $124,153 |
| 2014 | $44,153 | $80,000 | $0 | $124,153 | $124,153 |
| 2013 | $45,542 | $80,000 | $0 | $125,542 | $125,542 |
| 2012 | $46,930 | $85,000 | $0 | $131,930 | $131,930 |
| 2011 | $49,278 | $100,000 | $0 | $149,278 | $149,278 |
| 2010 | $57,323 | $100,000 | $0 | $157,323 | $157,323 |
| 2009 | $60,494 | $132,000 | $0 | $192,494 | $192,494 |
| 2008 | $62,111 | $132,000 | $0 | $194,111 | $194,111 |
| 2007 | $63,744 | $132,000 | $0 | $195,744 | $195,744 |
Deed and Sales History
| 1 | 02/01/1975 | EXECUTORD | Executor Deed | WOJCIECHOWSKI, ROBERT J | WOJCIECHOWSKI, ROBERT J | | | $12,500.00 | 54507 | 0 |
| 2 | 01/01/1900 | OTHER | Other - Misc. Documents | Unknown | WOJCIECHOWSKI, ROBERT J | | | $0.00 | 0 | 0 |
Payout Agreement
| No payout information available.. |