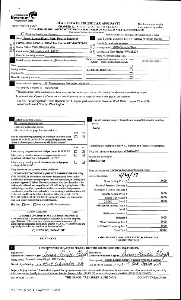
Property
Account |
| Property ID: | 43768 | Abbreviated Legal Description: | 28 - NE NW NW & PT GL6 LY W OF RD EX N20' FOR RD & N15' OF SE NW NW N OF PLAT & W OF 70TH NE ST EX PT TO IS CO FOR RD AF#4432355 |
| Geographic ID: | R13336-496-1040 | Agent Code: | |
| Type: | Real | | |
| Tax Area: | 112 - APPRAISER-OH Schl Dist, outside OH, improved, greater than 1 acre | Land Use Code | 69 |
| Open Space: | N | DFL | N |
| Historic Property: | N | Remodel Property: | N |
| Multi-Family Redevelopment: | N | | |
| Township: | 33 | Section: | 36 |
| Range: | R1 |
Location |
| Address: | 1961 NE 16TH AVE OAK HARBOR, WA 98277 | Mapsco: | |
| Neighborhood: | 15cOH-ne regatta | Map ID: | 262 |
| Neighborhood CD: | 15cOHnergt |
Owner |
| Name: | MAPLE LEAF CEMETERY DIST #1 | Owner ID: | 197742 |
| Mailing Address: | C/O MIKE DOUGLISS 1961 NE 16TH AVE OAK HARBOR, WA 98277 | % Ownership: | 100.0000000000% |
| | | Exemptions: | EX |
Taxes and Assessment Details
Values
| (+) Improvement Homesite Value: | + | $0 | |
| (+) Improvement Non-Homesite Value: | + | $95,555 | |
| (+) Land Homesite Value: | + | $0 | |
| (+) Land Non-Homesite Value: | + | $1,094,445 | |
| (+) Curr Use (HS): | + | $0 | $0 |
| (+) Curr Use (NHS): | + | $0 | $0 |
| | | -------------------------- | |
| (=) Market Value: | = | $1,190,000 | |
| (–) Productivity Loss: | – | $0 | |
| | | -------------------------- | |
| (=) Subtotal: | = | $1,190,000 | |
| (+) Senior Appraised Value: | + | $0 | |
| (+) Non-Senior Appraised Value: | + | $1,190,000 | |
| | | -------------------------- | |
| (=) Total Appraised Value: | = | $1,190,000 | |
| (–) Senior Exemption Loss: | – | $0 | |
| (–) Exemption Loss: | – | $1,190,000 | |
| | | -------------------------- | |
| (=) Taxable Value: | = | $0 | |
Taxing Jurisdiction
| Owner: | MAPLE LEAF CEMETERY DIST #1 | | |
| % Ownership: | 100.0000000000% | | |
| Total Value: | $1,190,000 | | |
| Tax Area: | 112 - APPRAISER-OH Schl Dist, outside OH, improved, greater than 1 acre |
| CF | Conservation Futures | 0.0316035091 | $1,190,000 | $0 | $0.00 | | |
| CEM1 | Cemetery #1 | 0.0040320932 | $1,190,000 | $0 | $0.00 | | |
| FIRE2 | Fire & Rescue Dist #2 N Whidbey GEN | 0.5475949600 | $1,190,000 | $0 | $0.00 | | |
| HOBOND | Hospital BOND | 0.1910887512 | $1,190,000 | $0 | $0.00 | | |
| HOGEN | Hospital GEN | 0.3902502903 | $1,190,000 | $0 | $0.00 | | |
| CE | County Current Expense | 0.3708482477 | $1,190,000 | $0 | $0.00 | | |
| CR | County Roads | 0.4584763726 | $1,190,000 | $0 | $0.00 | | |
| ISLANDEMS | Hospital GEN (EMS) | 0.5000000000 | $1,190,000 | $0 | $0.00 | | |
| LIB | Library Sno-Isle GEN | 0.3153421757 | $1,190,000 | $0 | $0.00 | | |
| NWHIDPRMT | P & R N Whidbey GEN | 0.2004466701 | $1,190,000 | $0 | $0.00 | | |
| SCH201MO | School 201 Enrichment | 1.8559231640 | $1,190,000 | $0 | $0.00 | | |
| ST | State School | 1.3035497053 | $1,190,000 | $0 | $0.00 | | |
| ST2 | State School Part 2 | 0.8169543533 | $1,190,000 | $0 | $0.00 | | |
| | Total Tax Rate: | 6.9861102925 | | | | | |
| | | | | Taxes w/Current Exemptions: | $0.00 | | |
| | | | | Taxes w/o Exemptions: | $8,313.49 | | |
Improvement / Building
| Improvement #1: | MANUFACTURED HOME | State Code: | Y | 1248.0 sqft | Value: | $95,555 |
| Bathrooms: | 0 | Bedrooms: | 0 | | Ceiling: | PLASTER PAINTED | Cooling: | EVAP NO DUCT | | Exterior Wall/Cover: | VINYL | Floor Covering: | CARPET 100% | | Floor Structure: | SLAB ON GRADE | Foundation: | SLAB | | Heating: | FHA ELECTRIC | Interior Finish: | PLASTER | | Plumbing Fixture Cnt: | 1 | Roof Slope: | FLAT | | Roof Structure/Cover: | CJ ALUMINIUM HEAVY |   |   |
|
| | Type | Description | Class CD | Sub Class CD | Year Built | Area |
| | BAS | BASE/MAIN FLOOR | 3 | 0 | 1968 | 1248.0 |
| | OP3 | OPEN PORCH W/ROOF | 3 | 0 | 1968 | 60.0 |
| | OP1 | OPEN PORCH SLAB | 3 | 0 | 1968 | 192.0 |
| | oPOL | POLE BARN | 3 | 0 | 1968 | 864.0 |
| | oGRC | GAR/CONBLK | 3 | 0 | 1968 | 462.0 |
| | oLIT | LITE POLE | 3 | 0 | 1968 | 0.0 |
| | oSTR | STRUCTURE/OTHER FEAT | 3 | 0 | 1968 | 60.0 |
Sketch
Property Image
Land
| 1 | 35 | AC (10.00-30.99) | 10.0500 | 437778.00 | 0.00 | 0.00 | 1.00 | $1,094,445 | $0 |
Roll Value History
| 2026 | N/A | N/A | N/A | N/A | N/A |
| 2025 | $95,555 | $1,094,445 | $0 | $1,190,000 | $0 |
| 2024 | $86,835 | $1,094,445 | $0 | $1,181,280 | $0 |
| 2023 | $74,924 | $1,094,445 | $0 | $1,169,369 | $0 |
| 2022 | $72,589 | $1,094,445 | $0 | $1,167,034 | $0 |
| 2021 | $68,666 | $1,094,445 | $0 | $1,163,111 | $0 |
| 2020 | $69,177 | $1,094,445 | $0 | $1,163,622 | $0 |
| 2019 | $62,696 | $1,094,445 | $0 | $1,157,141 | $1,157,141 |
| 2018 | $64,000 | $875,556 | $0 | $939,556 | $939,556 |
| 2017 | $21,599 | $1,313,334 | $0 | $1,334,933 | $0 |
| 2016 | $21,599 | $1,313,334 | $0 | $1,334,933 | $0 |
| 2015 | $21,599 | $1,313,334 | $0 | $1,334,933 | $0 |
| 2014 | $21,599 | $1,313,334 | $0 | $1,334,933 | $0 |
| 2013 | $21,599 | $1,313,334 | $0 | $1,334,933 | $0 |
| 2012 | $21,599 | $1,374,777 | $0 | $1,396,376 | $0 |
| 2011 | $21,599 | $1,374,777 | $0 | $1,396,376 | $0 |
| 2010 | $21,599 | $1,374,777 | $0 | $1,396,376 | $0 |
| 2009 | $22,247 | $1,374,777 | $0 | $1,397,024 | $0 |
| 2008 | $22,679 | $1,447,134 | $0 | $1,469,813 | $0 |
| 2007 | $23,327 | $1,447,134 | $0 | $1,470,461 | $0 |
Deed and Sales History
| 1 | 10/06/2017 | WD | Warranty Deed | MAPLE LEAF CEMETERY DIST #1 | MAPLE LEAF CEMETERY DIST #1 | | | $0.00 | 31564 | 4432355 |
Payout Agreement
| No payout information available.. |