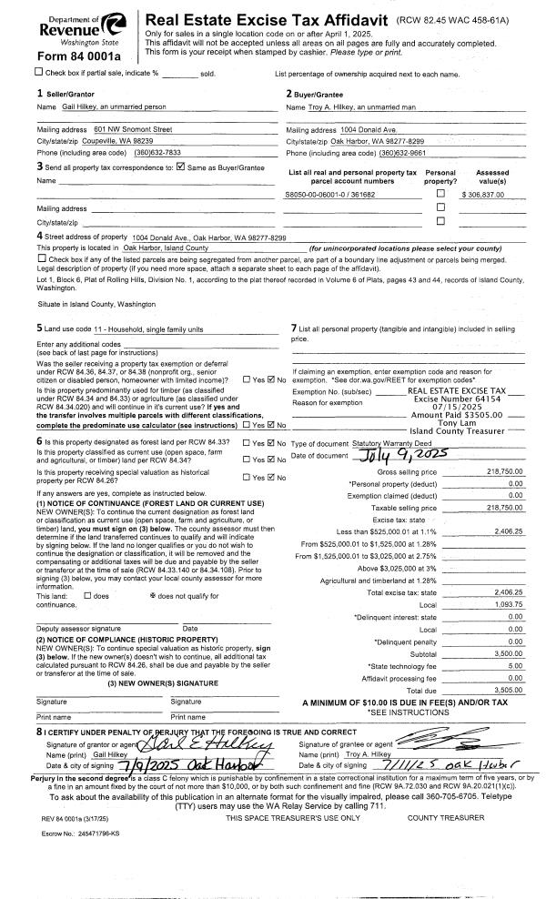
Property
Account |
| Property ID: | 4382 | Abbreviated Legal Description: | 12 T S DAVIS DC - BG182.7'N &N89*E994.5' FR SWCR SD DC N89*E559.8' S182.7' S89*E 401' S0*W948' S23*W430' TO CTR CO RD N52*W TP S OF TPB N934'TPB EX STRIP 1 ROD WIDE SW BDRY SD TR TGW SCENIC/FARM EZ AF#20017535 |
| Geographic ID: | R13104-381-1380 | Agent Code: | |
| Type: | Real | | |
| Tax Area: | 319 - APPRAISER-Cpvl Schl Dist, outside Cpvl, vacant & 50 acres or less | Land Use Code | 83 |
| Open Space: | Y | DFL | N |
| Historic Property: | N | Remodel Property: | N |
| Multi-Family Redevelopment: | N | | |
| Township: | 31 | Section: | 04 |
| Range: | R1 |
Location |
| Address: | | Mapsco: | |
| Neighborhood: | Cycle 2 | Map ID: | 31 |
| Neighborhood CD: | 2 |
Owner |
| Name: | ENGLE TRUSTEE, ROBERT A | Owner ID: | 196225 |
| Mailing Address: | CHERYL JUNE ENGLE TRUSTEE 750 CATHEDRAL DR COUPEVILLE, WA 98239-9747 | % Ownership: | 100.0000000000% |
| | | Exemptions: | |
Taxes and Assessment Details
Values
| (+) Improvement Homesite Value: | + | $0 | |
| (+) Improvement Non-Homesite Value: | + | $0 | |
| (+) Land Homesite Value: | + | $0 | |
| (+) Land Non-Homesite Value: | + | $0 | |
| (+) Curr Use (HS): | + | $0 | $0 |
| (+) Curr Use (NHS): | + | $75,000 | $18,400 |
| | | -------------------------- | |
| (=) Market Value: | = | $75,000 | |
| (–) Productivity Loss: | – | $56,600 | |
| | | -------------------------- | |
| (=) Subtotal: | = | $18,400 | |
| (+) Senior Appraised Value: | + | $0 | |
| (+) Non-Senior Appraised Value: | + | $18,400 | |
| | | -------------------------- | |
| (=) Total Appraised Value: | = | $18,400 | |
| (–) Senior Exemption Loss: | – | $0 | |
| (–) Exemption Loss: | – | $0 | |
| | | -------------------------- | |
| (=) Taxable Value: | = | $18,400 | |
Taxing Jurisdiction
| Owner: | ENGLE TRUSTEE, ROBERT A | | |
| % Ownership: | 100.0000000000% | | |
| Total Value: | $75,000 | | |
| Tax Area: | 319 - APPRAISER-Cpvl Schl Dist, outside Cpvl, vacant & 50 acres or less |
| CF | Conservation Futures | 0.0316035091 | $18,400 | $18,400 | $0.58 | | |
| CEM2 | Cemetery #2 | 0.0095056933 | $18,400 | $18,400 | $0.17 | | |
| HOBOND | Hospital BOND | 0.1910887512 | $18,400 | $18,400 | $3.52 | | |
| HOGEN | Hospital GEN | 0.3902502903 | $18,400 | $18,400 | $7.18 | | |
| CE | County Current Expense | 0.3708482477 | $18,400 | $18,400 | $6.82 | | |
| CR | County Roads | 0.4584763726 | $18,400 | $18,400 | $8.44 | | |
| ISLANDEMS | Hospital GEN (EMS) | 0.5000000000 | $18,400 | $18,400 | $9.20 | | |
| LIB | Library Sno-Isle GEN | 0.3153421757 | $18,400 | $18,400 | $5.80 | | |
| LIBCAP | Library Sno-Isle BOND (Cap Fac Imp Area) | 0.0543427938 | $18,400 | $18,400 | $1.00 | | |
| POCOUP | Port of Coupeville GEN | 0.1093371703 | $18,400 | $18,400 | $2.01 | | |
| POCOUPIDD | Port of Coupeville IDD | 0.3409740022 | $18,400 | $18,400 | $6.27 | | |
| COUPSDTECH | School 204 CP (TECH) | 0.7545480007 | $18,400 | $18,400 | $13.88 | | |
| SCH204MO | School 204 Enrichment | 0.6716186034 | $18,400 | $18,400 | $12.36 | | |
| ST | State School | 1.3035497053 | $18,400 | $18,400 | $23.99 | | |
| ST2 | State School Part 2 | 0.8169543533 | $18,400 | $18,400 | $15.03 | | |
| | Total Tax Rate: | 6.3184396689 | | | | | |
| | | | | Taxes w/Current Exemptions: | $116.25 | | |
| | | | | Taxes w/o Exemptions: | $116.25 | | |
Improvement / Building
Sketch
| No sketches available for this property. |
Property Image
Land
| 1 | 35 | AC (10.00-30.99) | 25.0000 | 1089000.00 | 0.00 | 0.00 | 1.00 | $75,000 | $18,400 |
Roll Value History
| 2026 | N/A | N/A | N/A | N/A | N/A |
| 2025 | $0 | $75,000 | $18,400 | $18,400 | $18,400 |
| 2024 | $0 | $75,000 | $18,400 | $18,400 | $18,400 |
| 2023 | $0 | $75,000 | $18,400 | $18,400 | $18,400 |
| 2022 | $0 | $75,000 | $18,400 | $18,400 | $18,400 |
| 2021 | $0 | $75,000 | $18,400 | $18,400 | $18,400 |
| 2020 | $0 | $75,000 | $18,400 | $18,400 | $18,400 |
| 2019 | $0 | $75,000 | $18,400 | $18,400 | $18,400 |
| 2018 | $0 | $75,000 | $18,400 | $18,400 | $18,400 |
| 2017 | $0 | $125,000 | $18,400 | $18,400 | $18,400 |
| 2016 | $0 | $125,000 | $18,400 | $18,400 | $18,400 |
| 2015 | $0 | $87,500 | $18,400 | $18,400 | $18,400 |
| 2014 | $0 | $87,500 | $18,400 | $18,400 | $18,400 |
| 2013 | $0 | $87,500 | $18,400 | $18,400 | $18,400 |
| 2012 | $0 | $106,250 | $18,400 | $18,400 | $18,400 |
| 2011 | $0 | $125,000 | $18,400 | $18,400 | $18,400 |
| 2010 | $0 | $125,000 | $18,400 | $18,400 | $18,400 |
| 2009 | $0 | $143,750 | $18,400 | $18,400 | $18,400 |
| 2008 | $0 | $450,000 | $18,400 | $18,400 | $18,400 |
| 2007 | $0 | $340,544 | $18,400 | $18,400 | $18,400 |
Deed and Sales History
| 1 | 12/03/2005 | 5 | DNU - Marriage License/Name Change | ENGLE, ROBERT A | ENGLE TRUSTEE, ROBERT A | | | $0.00 | 30658 | 4160989 |
| 2 | 12/01/1971 | EXECUTORD | Executor Deed | KINETH, ARTHUR L | ENGLE, ROBERT A | | | $0.00 | 43061 | 0 |
| 3 | 01/01/1900 | OTHER | Other - Misc. Documents | Unknown | KINETH, ARTHUR L | | | $0.00 | 0 | 0 |
Payout Agreement
| No payout information available.. |