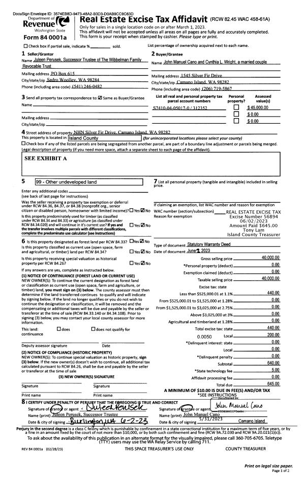
Property
Account |
| Property ID: | 43875 | Abbreviated Legal Description: | 19 - IN GL4:BG ON WLN RD 3200'N OF SLN GL2 N TP 3340'N OF SD SLN W TO ML SWLY ALG ML TP W OF POB E TPB INCL ADJ TIDES |
| Geographic ID: | R13434-075-4050 | Agent Code: | |
| Type: | Real | | |
| Tax Area: | 119 - APPRAISER-OH Schl Dist, outside OH, vacant & 50 acres or less | Land Use Code | 91 |
| Open Space: | N | DFL | N |
| Historic Property: | N | Remodel Property: | N |
| Multi-Family Redevelopment: | N | | |
| Township: | 34 | Section: | 34 |
| Range: | R1 |
Location |
| Address: | | Mapsco: | |
| Neighborhood: | Cycle 6 | Map ID: | 271 |
| Neighborhood CD: | 6 |
Owner |
| Name: | ERNST TRUSTEE, SHERELYN D | Owner ID: | 255320 |
| Mailing Address: | SHERELYN D ERNST REVOCABLE TRUST 7805 TAKOMA AVE TAKOMA PARK, MD 20912 | % Ownership: | 100.0000000000% |
| | | Exemptions: | |
Taxes and Assessment Details
Values
| (+) Improvement Homesite Value: | + | $0 | |
| (+) Improvement Non-Homesite Value: | + | $0 | |
| (+) Land Homesite Value: | + | $0 | |
| (+) Land Non-Homesite Value: | + | $532,020 | |
| (+) Curr Use (HS): | + | $0 | $0 |
| (+) Curr Use (NHS): | + | $0 | $0 |
| | | -------------------------- | |
| (=) Market Value: | = | $532,020 | |
| (–) Productivity Loss: | – | $0 | |
| | | -------------------------- | |
| (=) Subtotal: | = | $532,020 | |
| (+) Senior Appraised Value: | + | $0 | |
| (+) Non-Senior Appraised Value: | + | $532,020 | |
| | | -------------------------- | |
| (=) Total Appraised Value: | = | $532,020 | |
| (–) Senior Exemption Loss: | – | $0 | |
| (–) Exemption Loss: | – | $0 | |
| | | -------------------------- | |
| (=) Taxable Value: | = | $532,020 | |
Taxing Jurisdiction
| Owner: | ERNST TRUSTEE, SHERELYN D | | |
| % Ownership: | 100.0000000000% | | |
| Total Value: | $532,020 | | |
| Tax Area: | 119 - APPRAISER-OH Schl Dist, outside OH, vacant & 50 acres or less |
| CF | Conservation Futures | 0.0316035091 | $532,020 | $532,020 | $16.81 | | |
| CEM1 | Cemetery #1 | 0.0040320932 | $532,020 | $532,020 | $2.15 | | |
| HOBOND | Hospital BOND | 0.1910887512 | $532,020 | $532,020 | $101.66 | | |
| HOGEN | Hospital GEN | 0.3902502903 | $532,020 | $532,020 | $207.62 | | |
| CE | County Current Expense | 0.3708482477 | $532,020 | $532,020 | $197.30 | | |
| CR | County Roads | 0.4584763726 | $532,020 | $532,020 | $243.92 | | |
| ISLANDEMS | Hospital GEN (EMS) | 0.5000000000 | $532,020 | $532,020 | $266.01 | | |
| LIB | Library Sno-Isle GEN | 0.3153421757 | $532,020 | $532,020 | $167.77 | | |
| NWHIDPRMT | P & R N Whidbey GEN | 0.2004466701 | $532,020 | $532,020 | $106.64 | | |
| SCH201MO | School 201 Enrichment | 1.8559231640 | $532,020 | $532,020 | $987.39 | | |
| ST | State School | 1.3035497053 | $532,020 | $532,020 | $693.51 | | |
| ST2 | State School Part 2 | 0.8169543533 | $532,020 | $532,020 | $434.64 | | |
| | Total Tax Rate: | 6.4385153325 | | | | | |
| | | | | Taxes w/Current Exemptions: | $3,425.42 | | |
| | | | | Taxes w/o Exemptions: | $3,425.42 | | |
Improvement / Building
Sketch
| No sketches available for this property. |
Property Image
Land
| 1 | LB | LOW BANK | 1.1000 | 47916.00 | 140.00 | 0.00 | 1.00 | $530,000 | $0 |
| 2 | 55 | TIDES | 0.0000 | 0.00 | 202.00 | 0.00 | 1.00 | $2,020 | $0 |
Roll Value History
| 2026 | N/A | N/A | N/A | N/A | N/A |
| 2025 | $0 | $532,020 | $0 | $532,020 | $532,020 |
| 2024 | $0 | $507,020 | $0 | $507,020 | $507,020 |
| 2023 | $0 | $492,020 | $0 | $492,020 | $492,020 |
| 2022 | $0 | $492,020 | $0 | $492,020 | $492,020 |
| 2021 | $0 | $352,020 | $0 | $352,020 | $352,020 |
| 2020 | $0 | $352,020 | $0 | $352,020 | $352,020 |
| 2019 | $0 | $352,020 | $0 | $352,020 | $352,020 |
| 2018 | $0 | $352,020 | $0 | $352,020 | $352,020 |
| 2017 | $0 | $352,020 | $0 | $352,020 | $352,020 |
| 2016 | $0 | $352,020 | $0 | $352,020 | $352,020 |
| 2015 | $0 | $402,020 | $0 | $402,020 | $402,020 |
| 2014 | $0 | $402,020 | $0 | $402,020 | $402,020 |
| 2013 | $0 | $420,777 | $0 | $420,777 | $420,777 |
| 2012 | $0 | $420,777 | $0 | $420,777 | $420,777 |
| 2011 | $0 | $420,777 | $0 | $420,777 | $420,777 |
| 2010 | $0 | $420,777 | $0 | $420,777 | $420,777 |
| 2009 | $0 | $430,294 | $0 | $430,294 | $430,294 |
| 2008 | $0 | $430,294 | $0 | $430,294 | $430,294 |
| 2007 | $0 | $428,880 | $0 | $428,880 | $428,880 |
Deed and Sales History
| 1 | 08/18/2011 | QCD | Quit Claim Deed | ERNST, SHERELYN D | ERNST TRUSTEE, SHERELYN D | | | $0.00 | 5311 | 4299899 |
| 2 | 02/01/1995 | OTHER | Other - Misc. Documents | GALLAGHER, SHERELYN D | ERNST, SHERELYN D | | | $0.00 | 66225 | 0 |
| 3 | 01/01/1900 | OTHER | Other - Misc. Documents | Unknown | GALLAGHER, SHERELYN D | | | $0.00 | 0 | 0 |
Payout Agreement
| No payout information available.. |