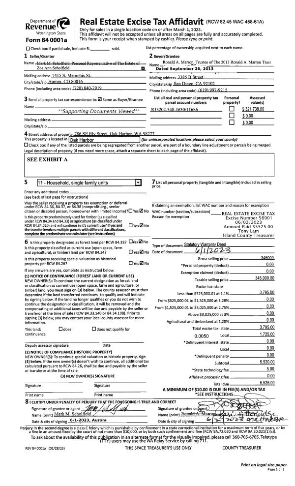
Property
Account |
| Property ID: | 43946 | Abbreviated Legal Description: | 16 - IN GL3: BG WLN RD 3970'N OF SLN GL2 SEC 3-33-1E N TP 4070'N OF SD SLN W TO ML S TP W OF TPB E TPB INCL ADJ TIDES |
| Geographic ID: | R13434-149-4050 | Agent Code: | |
| Type: | Real | | |
| Tax Area: | 110 - APPRAISER-OH Schl Dist, outside OH, improved & 1 acre or less | Land Use Code | 11 |
| Open Space: | N | DFL | N |
| Historic Property: | N | Remodel Property: | N |
| Multi-Family Redevelopment: | N | | |
| Township: | 34 | Section: | 34 |
| Range: | R1 |
Location |
| Address: | 4911 SURFCREST DR OAK HARBOR, WA 98277 | Mapsco: | |
| Neighborhood: | Cycle 6 | Map ID: | 271 |
| Neighborhood CD: | 6 |
Owner |
| Name: | VALENTA TRUSTEE, SUSAN L | Owner ID: | 24797 |
| Mailing Address: | KEESLING FAMILY TRUST 15710 158TH AVE NE WOODINVILLE, WA 98072 | % Ownership: | 100.0000000000% |
| | | Exemptions: | |
Taxes and Assessment Details
Values
| (+) Improvement Homesite Value: | + | $0 | |
| (+) Improvement Non-Homesite Value: | + | $613,905 | |
| (+) Land Homesite Value: | + | $0 | |
| (+) Land Non-Homesite Value: | + | $771,000 | |
| (+) Curr Use (HS): | + | $0 | $0 |
| (+) Curr Use (NHS): | + | $0 | $0 |
| | | -------------------------- | |
| (=) Market Value: | = | $1,384,905 | |
| (–) Productivity Loss: | – | $0 | |
| | | -------------------------- | |
| (=) Subtotal: | = | $1,384,905 | |
| (+) Senior Appraised Value: | + | $0 | |
| (+) Non-Senior Appraised Value: | + | $1,384,905 | |
| | | -------------------------- | |
| (=) Total Appraised Value: | = | $1,384,905 | |
| (–) Senior Exemption Loss: | – | $0 | |
| (–) Exemption Loss: | – | $0 | |
| | | -------------------------- | |
| (=) Taxable Value: | = | $1,384,905 | |
Taxing Jurisdiction
| Owner: | VALENTA TRUSTEE, SUSAN L | | |
| % Ownership: | 100.0000000000% | | |
| Total Value: | $1,384,905 | | |
| Tax Area: | 110 - APPRAISER-OH Schl Dist, outside OH, improved & 1 acre or less |
| CF | Conservation Futures | 0.0316035091 | $1,384,905 | $1,384,905 | $43.77 | | |
| CEM1 | Cemetery #1 | 0.0040320932 | $1,384,905 | $1,384,905 | $5.58 | | |
| FIRE2 | Fire & Rescue Dist #2 N Whidbey GEN | 0.5475949600 | $1,384,905 | $1,384,905 | $758.37 | | |
| HOBOND | Hospital BOND | 0.1910887512 | $1,384,905 | $1,384,905 | $264.64 | | |
| HOGEN | Hospital GEN | 0.3902502903 | $1,384,905 | $1,384,905 | $540.46 | | |
| CE | County Current Expense | 0.3708482477 | $1,384,905 | $1,384,905 | $513.59 | | |
| CR | County Roads | 0.4584763726 | $1,384,905 | $1,384,905 | $634.95 | | |
| ISLANDEMS | Hospital GEN (EMS) | 0.5000000000 | $1,384,905 | $1,384,905 | $692.45 | | |
| LIB | Library Sno-Isle GEN | 0.3153421757 | $1,384,905 | $1,384,905 | $436.72 | | |
| NWHIDPRMT | P & R N Whidbey GEN | 0.2004466701 | $1,384,905 | $1,384,905 | $277.60 | | |
| SCH201MO | School 201 Enrichment | 1.8559231640 | $1,384,905 | $1,384,905 | $2,570.28 | | |
| ST | State School | 1.3035497053 | $1,384,905 | $1,384,905 | $1,805.29 | | |
| ST2 | State School Part 2 | 0.8169543533 | $1,384,905 | $1,384,905 | $1,131.40 | | |
| | Total Tax Rate: | 6.9861102925 | | | | | |
| | | | | Taxes w/Current Exemptions: | $9,675.10 | | |
| | | | | Taxes w/o Exemptions: | $9,675.10 | | |
Improvement / Building
| Improvement #1: | RESIDENTIAL | State Code: | Y | 3260.0 sqft | Value: | $613,905 |
| Bathrooms: | 3 | Bedrooms: | 4 | | Ceiling: | DRYWALL PAINTED | Exterior Wall/Cover: | SHINGLE | | Floor Covering: | CARPET/VINYL 80-20 | Floor Structure: | WOOD W/SUBFLOOR | | Foundation: | CONCRETE | Heating: | FHA GAS | | Interior Finish: | DRYWALL PAINT | Plumbing Fixture Cnt: | 14 | | Roof Slope: | 12" IN 12" | Roof Structure/Cover: | BEAM ALUMINUM HEAVY |
|
| | Type | Description | Class CD | Sub Class CD | Year Built | Area |
| | BAS | BASE/MAIN FLOOR | 5 | 0 | 1991 | 1582.0 |
| | OP4 | OPEN PORCH W/CEILING-ROOF | 5 | 0 | 1991 | 72.0 |
| | BIG | BUILT IN GARAGE | 5 | 0 | 1991 | 900.0 |
| | UTY | STORAGE/UTILITY | 5 | 0 | 1991 | 121.0 |
| | UTY | STORAGE/UTILITY | 5 | 0 | 1991 | 358.5 |
| | UPS | UPPER STORY | 5 | 0 | 1991 | 566.5 |
| | OWR | OPEN WOOD PORCH W/STEPS/ROOF | 5 | 0 | 1991 | 176.0 |
| | DWN | DOWNSTAIRS LIVING AREA | 5 | 0 | 1991 | 1111.5 |
Sketch
Property Image
Land
| 1 | LB | LOW BANK | 0.8500 | 37026.00 | 100.00 | 0.00 | 1.00 | $770,000 | $0 |
| 2 | 55 | TIDES | 0.0000 | 0.00 | 100.00 | 0.00 | 1.00 | $1,000 | $0 |
Roll Value History
| 2026 | N/A | N/A | N/A | N/A | N/A |
| 2025 | $613,905 | $771,000 | $0 | $1,384,905 | $1,384,905 |
| 2024 | $621,750 | $721,000 | $0 | $1,342,750 | $1,342,750 |
| 2023 | $642,788 | $706,000 | $0 | $1,348,788 | $1,348,788 |
| 2022 | $567,547 | $701,000 | $0 | $1,268,547 | $1,268,547 |
| 2021 | $499,844 | $526,000 | $0 | $1,025,844 | $1,025,844 |
| 2020 | $487,795 | $481,000 | $0 | $968,795 | $968,795 |
| 2019 | $412,485 | $551,000 | $0 | $963,485 | $963,485 |
| 2018 | $413,751 | $501,000 | $0 | $914,751 | $914,751 |
| 2017 | $416,041 | $501,000 | $0 | $917,041 | $917,041 |
| 2016 | $324,238 | $501,000 | $0 | $825,238 | $825,238 |
| 2015 | $328,620 | $451,000 | $0 | $779,620 | $779,620 |
| 2014 | $333,000 | $451,000 | $0 | $784,000 | $784,000 |
| 2013 | $337,380 | $506,951 | $0 | $844,331 | $844,331 |
| 2012 | $341,764 | $506,951 | $0 | $848,715 | $848,715 |
| 2011 | $346,146 | $549,945 | $0 | $896,091 | $896,091 |
| 2010 | $361,445 | $549,945 | $0 | $911,390 | $911,390 |
| 2009 | $376,893 | $620,730 | $0 | $997,623 | $997,623 |
| 2008 | $381,324 | $690,379 | $0 | $1,071,703 | $1,071,703 |
| 2007 | $385,808 | $689,679 | $0 | $1,075,487 | $1,075,487 |
Deed and Sales History
| 1 | 01/01/1993 | QCD | Quit Claim Deed | KEESLING, JAMES J | VALENTA, SUSAN L | | | $0.00 | 30073 | 93000369 |
| 2 | 12/01/1992 | QCD | Quit Claim Deed | KEESLING, JAMES J | KEESLING, JAMES J | | | $0.00 | 25168 | 92025349 |
| 3 | 06/01/1990 | QCD | Quit Claim Deed | KEESLING, SCOTT J | KEESLING, JAMES J | | | $0.00 | 3503 | 90011353 |
| 4 | 08/01/1969 | OTHER | Other - Misc. Documents | KEESLING, JAMES J | KEESLING, SCOTT J | | | $0.00 | 36534 | 0 |
| 5 | 01/01/1900 | OTHER | Other - Misc. Documents | Unknown | KEESLING, JAMES J | | | $0.00 | 0 | 0 |
Payout Agreement
| No payout information available.. |