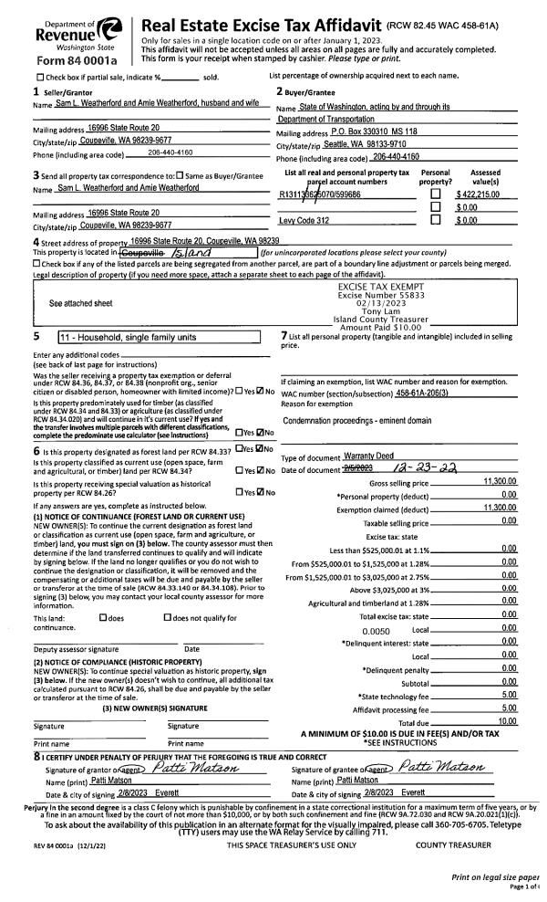
Property
Account |
| Property ID: | 44179 | Abbreviated Legal Description: | 10 - E/2 SW SE EX RD |
| Geographic ID: | R13435-064-3640 | Agent Code: | |
| Type: | Real | | |
| Tax Area: | 112 - APPRAISER-OH Schl Dist, outside OH, improved, greater than 1 acre | Land Use Code | 11 |
| Open Space: | N | DFL | N |
| Historic Property: | N | Remodel Property: | N |
| Multi-Family Redevelopment: | N | | |
| Township: | 34 | Section: | 35 |
| Range: | R1 |
Location |
| Address: | 515 DUCKEN RD OAK HARBOR, WA 98277 | Mapsco: | |
| Neighborhood: | Cycle 6 | Map ID: | 274 |
| Neighborhood CD: | 6 |
Owner |
| Name: | FAKKEMA, RICHARD M / CONNIE L | Owner ID: | 150699 |
| Mailing Address: | 515 DUCKEN RD OAK HARBOR, WA 98277-7933 | % Ownership: | 100.0000000000% |
| | | Exemptions: | |
Taxes and Assessment Details
Values
| (+) Improvement Homesite Value: | + | $0 | |
| (+) Improvement Non-Homesite Value: | + | $337,226 | |
| (+) Land Homesite Value: | + | $0 | |
| (+) Land Non-Homesite Value: | + | $400,000 | |
| (+) Curr Use (HS): | + | $0 | $0 |
| (+) Curr Use (NHS): | + | $0 | $0 |
| | | -------------------------- | |
| (=) Market Value: | = | $737,226 | |
| (–) Productivity Loss: | – | $0 | |
| | | -------------------------- | |
| (=) Subtotal: | = | $737,226 | |
| (+) Senior Appraised Value: | + | $0 | |
| (+) Non-Senior Appraised Value: | + | $737,226 | |
| | | -------------------------- | |
| (=) Total Appraised Value: | = | $737,226 | |
| (–) Senior Exemption Loss: | – | $0 | |
| (–) Exemption Loss: | – | $0 | |
| | | -------------------------- | |
| (=) Taxable Value: | = | $737,226 | |
Taxing Jurisdiction
| Owner: | FAKKEMA, RICHARD M / CONNIE L | | |
| % Ownership: | 100.0000000000% | | |
| Total Value: | $737,226 | | |
| Tax Area: | 112 - APPRAISER-OH Schl Dist, outside OH, improved, greater than 1 acre |
| CF | Conservation Futures | 0.0316035091 | $737,226 | $737,226 | $23.30 | | |
| CEM1 | Cemetery #1 | 0.0040320932 | $737,226 | $737,226 | $2.97 | | |
| FIRE2 | Fire & Rescue Dist #2 N Whidbey GEN | 0.5475949600 | $737,226 | $737,226 | $403.70 | | |
| HOBOND | Hospital BOND | 0.1910887512 | $737,226 | $737,226 | $140.88 | | |
| HOGEN | Hospital GEN | 0.3902502903 | $737,226 | $737,226 | $287.70 | | |
| CE | County Current Expense | 0.3708482477 | $737,226 | $737,226 | $273.40 | | |
| CR | County Roads | 0.4584763726 | $737,226 | $737,226 | $338.00 | | |
| ISLANDEMS | Hospital GEN (EMS) | 0.5000000000 | $737,226 | $737,226 | $368.61 | | |
| LIB | Library Sno-Isle GEN | 0.3153421757 | $737,226 | $737,226 | $232.48 | | |
| NWHIDPRMT | P & R N Whidbey GEN | 0.2004466701 | $737,226 | $737,226 | $147.77 | | |
| SCH201MO | School 201 Enrichment | 1.8559231640 | $737,226 | $737,226 | $1,368.23 | | |
| ST | State School | 1.3035497053 | $737,226 | $737,226 | $961.01 | | |
| ST2 | State School Part 2 | 0.8169543533 | $737,226 | $737,226 | $602.28 | | |
| | Total Tax Rate: | 6.9861102925 | | | | | |
| | | | | Taxes w/Current Exemptions: | $5,150.33 | | |
| | | | | Taxes w/o Exemptions: | $5,150.33 | | |
Improvement / Building
| Improvement #1: | RESIDENTIAL | State Code: | Y | 2268.6 sqft | Value: | $335,623 |
| Bathrooms: | 2.5 | Bedrooms: | 3 | | Ceiling: | DRYWALL PAINTED | Exterior Wall/Cover: | CEMENT FIBER | | Floor Covering: | SOFTWOOD/VINYL 80-20 | Floor Structure: | WOOD W/SUBFLOOR | | Foundation: | CONCRETE | Heating: | FHA GAS | | Interior Finish: | DRYWALL PAINT | Plumbing Fixture Cnt: | 13 | | Roof Slope: | 8" IN 12" | Roof Structure/Cover: | CJ ASPHALT |
|
| | Type | Description | Class CD | Sub Class CD | Year Built | Area |
| | BAS | BASE/MAIN FLOOR | 3 | 0 | 1924 | 1668.6 |
| | UB8 | BASEMENT UNFINISHED 8" | 3 | 0 | 1924 | 280.0 |
| | UPS | UPPER STORY | 3 | 0 | 1924 | 600.0 |
| | BAW | BALCONY WOOD RAIL | 3 | 0 | 1924 | 48.0 |
| | ATU | ATTIC UNFINISHED | 3 | 0 | 1924 | 400.0 |
| | OWP | OPEN WOOD PORCH W/STEPS | 3 | 0 | 1924 | 18.0 |
| | OWP | OPEN WOOD PORCH W/STEPS | 3 | 0 | 1924 | 17.5 |
| | OWP | OPEN WOOD PORCH W/STEPS | 3 | 0 | 1924 | 59.2 |
| | OWC | OPEN WOOD PORCH W/STEPS/ROOF/C | 3 | 0 | 1924 | 350.6 |
| | oBAR | BARN | 3 | 0 | 1924 | 0.0 |
| | oPOL | POLE BARN | 3 | 0 | 1924 | 0.0 |
| | CPD | OPEN CARPORT DIRT FLOOR | 3 | 0 | 1924 | 324.0 |
| Improvement #2: | MANUFACTURED HOME | State Code: | Y | 856.0 sqft | Value: | $1,603 |
| Bathrooms: | 0 | Bedrooms: | 0 | | Ceiling: | PLASTER PAINTED | Cooling: | EVAP NO DUCT | | Exterior Wall/Cover: | VINYL | Floor Covering: | CARPET 100% | | Floor Structure: | SLAB ON GRADE | Foundation: | SLAB | | Heating: | FHA ELECTRIC | Interior Finish: | PLASTER | | Plumbing Fixture Cnt: | 1 | Roof Slope: | FLAT | | Roof Structure/Cover: | CJ ALUMINIUM HEAVY |   |   |
|
Sketch
Property Image
Land
| 1 | 35 | AC (10.00-30.99) | 19.7000 | 858132.00 | 0.00 | 0.00 | 1.00 | $400,000 | $0 |
Roll Value History
| 2026 | N/A | N/A | N/A | N/A | N/A |
| 2025 | $337,226 | $400,000 | $0 | $737,226 | $737,226 |
| 2024 | $341,648 | $400,000 | $0 | $741,648 | $741,648 |
| 2023 | $346,072 | $400,000 | $0 | $746,072 | $746,072 |
| 2022 | $305,937 | $400,000 | $0 | $705,937 | $705,937 |
| 2021 | $271,559 | $250,000 | $0 | $521,559 | $521,559 |
| 2020 | $265,476 | $230,000 | $0 | $495,476 | $495,476 |
| 2019 | $207,317 | $270,000 | $0 | $477,317 | $477,317 |
| 2018 | $207,947 | $245,000 | $0 | $452,947 | $452,947 |
| 2017 | $209,199 | $220,000 | $0 | $429,199 | $429,199 |
| 2016 | $164,901 | $220,000 | $4,785 | $169,686 | $169,686 |
| 2015 | $167,268 | $220,000 | $4,785 | $172,053 | $172,053 |
| 2014 | $169,635 | $167,450 | $4,785 | $174,420 | $174,420 |
| 2013 | $171,803 | $167,450 | $4,785 | $176,588 | $176,588 |
| 2012 | $174,171 | $167,450 | $4,785 | $178,956 | $178,956 |
| 2011 | $176,536 | $197,000 | $4,917 | $181,453 | $181,453 |
| 2010 | $196,668 | $197,000 | $4,917 | $201,585 | $201,585 |
| 2009 | $205,675 | $300,417 | $4,917 | $506,092 | $506,092 |
| 2008 | $99,014 | $121,151 | $4,917 | $215,248 | $215,248 |
| 2007 | $103,350 | $121,460 | $4,917 | $219,893 | $219,893 |
Deed and Sales History
| 1 | 12/05/2022 | MANHOME | Manufactured Home | VANDYK, ROBERT M | FAKKEMA, CONNIE L | | | $0.00 | 55308 | |
| 2 | 01/05/1999 | QCD | Quit Claim Deed | FAKKEMA, RICHARD M | FAKKEMA, RICHARD M/CONNIE L | | | $0.00 | 90186 | 99001152 |
| 3 | 01/01/1998 | QCD | Quit Claim Deed | VAN, DYK, R | FAKKEMA, RICHARD M | | | $0.00 | 80241 | 98001056 |
| 4 | 01/01/1997 | QCD | Quit Claim Deed | VAN, DYK, R | VAN, DYK, R | | | $0.00 | 70427 | 97001964 |
| 5 | 06/01/1996 | QCD | Quit Claim Deed | VAN, DYK, R | VAN, DYK, R | | | $0.00 | 62226 | 96011030 |
| 6 | 10/01/1995 | QCD | Quit Claim Deed | VAN, DYK, R | VAN, DYK, R | | | $0.00 | 53871 | 95017714 |
| 7 | 01/01/1900 | OTHER | Other - Misc. Documents | Unknown | VAN, DYK, R | | | $0.00 | 0 | 0 |
Payout Agreement
| No payout information available.. |