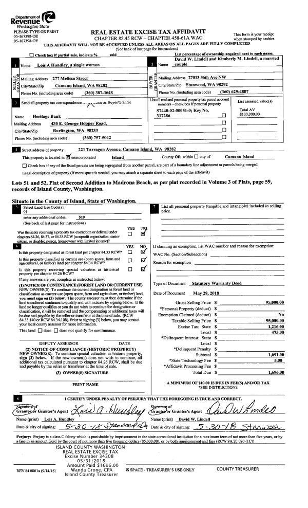
Property
Account |
| Property ID: | 44339 | Abbreviated Legal Description: | 36 - SE NE SE EX S20' FOR DUCKEN RD |
| Geographic ID: | R13435-165-4960 | Agent Code: | |
| Type: | Real | | |
| Tax Area: | 112 - APPRAISER-OH Schl Dist, outside OH, improved, greater than 1 acre | Land Use Code | 11 |
| Open Space: | N | DFL | N |
| Historic Property: | N | Remodel Property: | N |
| Multi-Family Redevelopment: | N | | |
| Township: | 34 | Section: | 35 |
| Range: | R1 |
Location |
| Address: | 448 DUCKEN RD OAK HARBOR, WA 98277 | Mapsco: | |
| Neighborhood: | Cycle 6 | Map ID: | 274 |
| Neighborhood CD: | 6 |
Owner |
| Name: | GILMORE TTEE, RODNEY W | Owner ID: | 286402 |
| Mailing Address: | BARBARA S GILMORE TTEE 444 DUCKEN RD OAK HARBOR, WA 98277 | % Ownership: | 100.0000000000% |
| | | Exemptions: | |
Taxes and Assessment Details
Values
| (+) Improvement Homesite Value: | + | $0 | |
| (+) Improvement Non-Homesite Value: | + | $528,337 | |
| (+) Land Homesite Value: | + | $0 | |
| (+) Land Non-Homesite Value: | + | $300,000 | |
| (+) Curr Use (HS): | + | $0 | $0 |
| (+) Curr Use (NHS): | + | $0 | $0 |
| | | -------------------------- | |
| (=) Market Value: | = | $828,337 | |
| (–) Productivity Loss: | – | $0 | |
| | | -------------------------- | |
| (=) Subtotal: | = | $828,337 | |
| (+) Senior Appraised Value: | + | $0 | |
| (+) Non-Senior Appraised Value: | + | $828,337 | |
| | | -------------------------- | |
| (=) Total Appraised Value: | = | $828,337 | |
| (–) Senior Exemption Loss: | – | $0 | |
| (–) Exemption Loss: | – | $0 | |
| | | -------------------------- | |
| (=) Taxable Value: | = | $828,337 | |
Taxing Jurisdiction
| Owner: | GILMORE TTEE, RODNEY W | | |
| % Ownership: | 100.0000000000% | | |
| Total Value: | $828,337 | | |
| Tax Area: | 112 - APPRAISER-OH Schl Dist, outside OH, improved, greater than 1 acre |
| CF | Conservation Futures | 0.0316035091 | $828,337 | $828,337 | $26.18 | | |
| CEM1 | Cemetery #1 | 0.0040320932 | $828,337 | $828,337 | $3.34 | | |
| FIRE2 | Fire & Rescue Dist #2 N Whidbey GEN | 0.5475949600 | $828,337 | $828,337 | $453.59 | | |
| HOBOND | Hospital BOND | 0.1910887512 | $828,337 | $828,337 | $158.29 | | |
| HOGEN | Hospital GEN | 0.3902502903 | $828,337 | $828,337 | $323.26 | | |
| CE | County Current Expense | 0.3708482477 | $828,337 | $828,337 | $307.19 | | |
| CR | County Roads | 0.4584763726 | $828,337 | $828,337 | $379.77 | | |
| ISLANDEMS | Hospital GEN (EMS) | 0.5000000000 | $828,337 | $828,337 | $414.17 | | |
| LIB | Library Sno-Isle GEN | 0.3153421757 | $828,337 | $828,337 | $261.21 | | |
| NWHIDPRMT | P & R N Whidbey GEN | 0.2004466701 | $828,337 | $828,337 | $166.04 | | |
| SCH201MO | School 201 Enrichment | 1.8559231640 | $828,337 | $828,337 | $1,537.33 | | |
| ST | State School | 1.3035497053 | $828,337 | $828,337 | $1,079.78 | | |
| ST2 | State School Part 2 | 0.8169543533 | $828,337 | $828,337 | $676.71 | | |
| | Total Tax Rate: | 6.9861102925 | | | | | |
| | | | | Taxes w/Current Exemptions: | $5,786.86 | | |
| | | | | Taxes w/o Exemptions: | $5,786.86 | | |
Improvement / Building
| Improvement #1: | RESIDENTIAL | State Code: | Y | 2538.9 sqft | Value: | $430,444 |
| Bathrooms: | 3 | Bedrooms: | 4 | | Ceiling: | DRYWALL PAINTED | Exterior Wall/Cover: | PLY/HARDBOARD T-111 | | Floor Covering: | VINYL TILE/HARWD 20-80 | Floor Structure: | WOOD W/SUBFLOOR | | Foundation: | CONCRETE BLOCKS | Heating: | WALL HEAT ELECTRIC | | Interior Finish: | DRYWALL PAINT | Plumbing Fixture Cnt: | 12 | | Roof Slope: | 8" IN 12" | Roof Structure/Cover: | CJ ASPHALT |
|
| | Type | Description | Class CD | Sub Class CD | Year Built | Area |
| | BAS | BASE/MAIN FLOOR | 3 | 0 | 1905 | 1271.0 |
| | OP3 | OPEN PORCH W/ROOF | 3 | 0 | 1905 | 1128.0 |
| | OP2 | OPEN PORCH W/STEPS | 3 | 0 | 1905 | 54.0 |
| | UPS | UPPER STORY | 3 | 0 | 1905 | 1267.9 |
| | ENP | ENCLOSED PORCH | 3 | 0 | 1905 | 132.0 |
| | oBAR | BARN | 3 | 0 | 1905 | 0.0 |
| | oUTI | UTILITY | 3 | 0 | 1905 | 0.0 |
| | oPOL | POLE BARN | 3 | 0 | 1905 | 0.0 |
| | DGR | DETACHED GARAGE | 3 | 0 | 1905 | 1008.0 |
| Improvement #2: | MANUFACTURED HOME | State Code: | Y | 1674.0 sqft | Value: | $97,893 |
| Bathrooms: | 2 | Bedrooms: | 2 | | Ceiling: | PLASTER PAINTED | Cooling: | EVAP NO DUCT | | Exterior Wall/Cover: | VINYL | Floor Covering: | CARPET 100% | | Heating: | FHA ELECTRIC | Interior Finish: | PLASTER | | Plumbing Fixture Cnt: | 1 | Roof Slope: | FLAT | | Roof Structure/Cover: | CJ ALUMINIUM HEAVY |   |   |
|
| | Type | Description | Class CD | Sub Class CD | Year Built | Area |
| | BAS | BASE/MAIN FLOOR | 3 | 0 | 2001 | 1674.0 |
| | OWC | OPEN WOOD PORCH W/STEPS/ROOF/C | 3 | 0 | 2001 | 216.0 |
| | DGR | DETACHED GARAGE | 3 | 0 | 2001 | 1024.0 |
Sketch
Property Image
Land
| 1 | 32 | AC (03.01-09.99) | 9.4300 | 410770.80 | 0.00 | 0.00 | 1.00 | $300,000 | $0 |
Roll Value History
| 2026 | N/A | N/A | N/A | N/A | N/A |
| 2025 | $528,337 | $300,000 | $0 | $828,337 | $828,337 |
| 2024 | $536,088 | $280,000 | $0 | $816,088 | $816,088 |
| 2023 | $543,842 | $270,000 | $0 | $813,842 | $813,842 |
| 2022 | $473,188 | $240,000 | $0 | $713,188 | $713,188 |
| 2021 | $423,251 | $175,000 | $0 | $598,251 | $598,251 |
| 2020 | $416,135 | $140,000 | $0 | $556,135 | $556,135 |
| 2019 | $336,133 | $200,000 | $0 | $536,133 | $536,133 |
| 2018 | $338,455 | $175,000 | $0 | $513,455 | $513,455 |
| 2017 | $341,528 | $165,000 | $0 | $506,528 | $506,528 |
| 2016 | $320,298 | $165,000 | $0 | $485,298 | $485,298 |
| 2015 | $324,810 | $155,000 | $0 | $479,810 | $479,810 |
| 2014 | $329,324 | $127,305 | $0 | $456,629 | $456,629 |
| 2013 | $333,835 | $127,305 | $0 | $461,140 | $461,140 |
| 2012 | $337,562 | $127,305 | $0 | $464,867 | $464,867 |
| 2011 | $341,289 | $141,450 | $0 | $482,739 | $482,739 |
| 2010 | $355,599 | $141,450 | $0 | $497,049 | $497,049 |
| 2009 | $369,179 | $207,663 | $0 | $576,842 | $576,842 |
| 2008 | $380,912 | $218,380 | $0 | $599,292 | $599,292 |
| 2007 | $387,525 | $218,380 | $0 | $605,905 | $605,905 |
Deed and Sales History
| 1 | 08/08/2018 | QCD | Quit Claim Deed | GILMORE, RODNEY W | GILMORE TTEE, RODNEY W | | | $0.00 | 35418 | 4449762 |
| 2 | 08/01/1989 | OTHER | Other - Misc. Documents | GILMORE, RODNEY W | CRANE, ARCHIBALD W | | | $233.00 | 93442 | 0 |
| 3 | 08/01/1989 | OTHER | Other - Misc. Documents | CRANE, ARCHIBALD W | GILMORE, RODNEY W | | | $12,000.00 | 93443 | 0 |
| 4 | 08/01/1989 | WD | Warranty Deed | CRANE, ARCHIBALD W | GILMORE, RODNEY W | | | $62,000.00 | 93441 | 89011521 |
| 5 | 03/01/1978 | OTHER | Other - Misc. Documents | MCVEY, EDWARD A | CRANE, ARCHIBALD W | | | $57,000.00 | 81321 | 0 |
| 6 | 01/01/1900 | OTHER | Other - Misc. Documents | Unknown | MCVEY, EDWARD A | | | $0.00 | 0 | 0 |
Payout Agreement
| No payout information available.. |