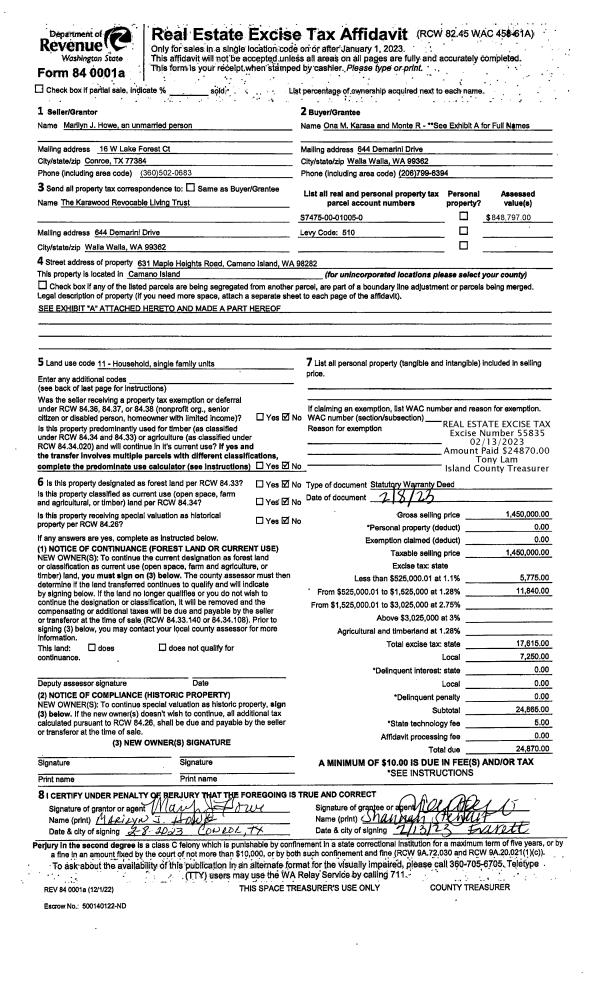
Property
Account |
| Property ID: | 44455 | Abbreviated Legal Description: | 1 - N/2 SEC 35 EX PT SENE SLY OF CORNET BAY RD & EX PT SW NE ELY OF ST HWY |
| Geographic ID: | R13435-400-2820 | Agent Code: | |
| Type: | Real | | |
| Tax Area: | 112 - APPRAISER-OH Schl Dist, outside OH, improved, greater than 1 acre | Land Use Code | 76 |
| Open Space: | N | DFL | N |
| Historic Property: | N | Remodel Property: | N |
| Multi-Family Redevelopment: | N | | |
| Township: | 34 | Section: | 35 |
| Range: | R1 |
Location |
| Address: | 41229 SR20 OAK HARBOR, WA 98277 | Mapsco: | |
| Neighborhood: | 61cRR-highway 20 | Map ID: | 276 |
| Neighborhood CD: | 61cRRhwy20 |
Owner |
| Name: | WASHINGTON STATE PARKS AND RECREATION | Owner ID: | 72719 |
| Mailing Address: | COMMISSION NORTHWEST REGION 220 N WALNUT ST BURLINGTON, WA 98233 | % Ownership: | 100.0000000000% |
| | | Exemptions: | EX |
Taxes and Assessment Details
Values
| (+) Improvement Homesite Value: | + | $0 | |
| (+) Improvement Non-Homesite Value: | + | $1,711,878 | |
| (+) Land Homesite Value: | + | $0 | |
| (+) Land Non-Homesite Value: | + | $4,344,900 | |
| (+) Curr Use (HS): | + | $0 | $0 |
| (+) Curr Use (NHS): | + | $0 | $0 |
| | | -------------------------- | |
| (=) Market Value: | = | $6,056,778 | |
| (–) Productivity Loss: | – | $0 | |
| | | -------------------------- | |
| (=) Subtotal: | = | $6,056,778 | |
| (+) Senior Appraised Value: | + | $0 | |
| (+) Non-Senior Appraised Value: | + | $6,056,778 | |
| | | -------------------------- | |
| (=) Total Appraised Value: | = | $6,056,778 | |
| (–) Senior Exemption Loss: | – | $0 | |
| (–) Exemption Loss: | – | $6,056,778 | |
| | | -------------------------- | |
| (=) Taxable Value: | = | $0 | |
Taxing Jurisdiction
| Owner: | WASHINGTON STATE PARKS AND RECREATION | | |
| % Ownership: | 100.0000000000% | | |
| Total Value: | $6,056,778 | | |
| Tax Area: | 112 - APPRAISER-OH Schl Dist, outside OH, improved, greater than 1 acre |
| CF | Conservation Futures | 0.0316035091 | $6,056,778 | $0 | $0.00 | | |
| CEM1 | Cemetery #1 | 0.0040320932 | $6,056,778 | $0 | $0.00 | | |
| FIRE2 | Fire & Rescue Dist #2 N Whidbey GEN | 0.5475949600 | $6,056,778 | $0 | $0.00 | | |
| HOBOND | Hospital BOND | 0.1910887512 | $6,056,778 | $0 | $0.00 | | |
| HOGEN | Hospital GEN | 0.3902502903 | $6,056,778 | $0 | $0.00 | | |
| CE | County Current Expense | 0.3708482477 | $6,056,778 | $0 | $0.00 | | |
| CR | County Roads | 0.4584763726 | $6,056,778 | $0 | $0.00 | | |
| ISLANDEMS | Hospital GEN (EMS) | 0.5000000000 | $6,056,778 | $0 | $0.00 | | |
| LIB | Library Sno-Isle GEN | 0.3153421757 | $6,056,778 | $0 | $0.00 | | |
| NWHIDPRMT | P & R N Whidbey GEN | 0.2004466701 | $6,056,778 | $0 | $0.00 | | |
| SCH201MO | School 201 Enrichment | 1.8559231640 | $6,056,778 | $0 | $0.00 | | |
| ST | State School | 1.3035497053 | $6,056,778 | $0 | $0.00 | | |
| ST2 | State School Part 2 | 0.8169543533 | $6,056,778 | $0 | $0.00 | | |
| | Total Tax Rate: | 6.9861102925 | | | | | |
| | | | | Taxes w/Current Exemptions: | $0.00 | | |
| | | | | Taxes w/o Exemptions: | $42,313.32 | | |
Improvement / Building
| Improvement #1: | COMMERCIAL | State Code: | F1 | 1147.0 sqft | Value: | $274,766 |
| Bathrooms: | 0 | Bedrooms: | 0 | | Ceiling: | PAINT OPEN FLOOR BAS | Exterior Wall/Cover: | WD/WD OR STEEL STUDS | | Floor Covering: | FLAG STONE | Floor Structure: | CONCRETE ON GROUND | | Foundation: | CONCRETE | Heating: | FHA ELECTRIC | | Interior Finish: | OFFICE | Plumbing Fixture Cnt: | 1 | | Roof Structure/Cover: | TILE OPEN WOOD |   |   |
|
| | Type | Description | Class CD | Sub Class CD | Year Built | Area |
| | BAS | BASE/MAIN FLOOR | 3 | 0 | 1998 | 522.0 |
| | BAS | BASE/MAIN FLOOR | 3 | 0 | 1998 | 60.0 |
| | BAS | BASE/MAIN FLOOR | 3 | 0 | 1998 | 325.0 |
| | OP4 | OPEN PORCH W/CEILING-ROOF | 3 | 0 | 1998 | 1200.0 |
| | BAS | BASE/MAIN FLOOR | 3 | 0 | 1998 | 240.0 |
| | OCP | OPEN CARPORT | 3 | 0 | 1998 | 960.0 |
| | UTY | STORAGE/UTILITY | 3 | 0 | 1998 | 400.0 |
| Improvement #2: | COMMERCIAL | State Code: | F1 | 1894.0 sqft | Value: | $245,552 |
| Bathrooms: | 0 | Bedrooms: | 0 | | Ceiling: | DRYWALL PAINTED | Exterior Wall/Cover: | WD SIDING/WOOD FRAME | | Floor Covering: | CONCRETE SEALER | Floor Structure: | CONCRETE ON GROUND | | Foundation: | SLAB | Heating: | SPACE HEATERS | | Interior Finish: | SERVICE GARAGE | Plumbing Fixture Cnt: | 1 | | Roof Structure/Cover: | SHAKE/OPEN WOOD |   |   |
|
| | Type | Description | Class CD | Sub Class CD | Year Built | Area |
| | BAS | BASE/MAIN FLOOR | 3 | 0 | 1979 | 864.0 |
| | AGR | ATTACHED GARAGE | 3 | 0 | 1979 | 888.0 |
| | OCP | OPEN CARPORT | 3 | 0 | 1979 | 576.0 |
| | OCP | OPEN CARPORT | 3 | 0 | 1979 | 840.0 |
| | AGR | ATTACHED GARAGE | 3 | 0 | 1979 | 840.0 |
| | CPD | OPEN CARPORT DIRT FLOOR | 3 | 0 | 1979 | 576.0 |
| | OCP | OPEN CARPORT | 3 | 0 | 1979 | 336.0 |
| | STG | STORAGE | 3 | 0 | 1979 | 1030.0 |
| Improvement #3: | RESIDENTIAL | State Code: | F1 | 1262.0 sqft | Value: | $331,407 |
| Bathrooms: | 1 | Bedrooms: | 2 | | Ceiling: | BEAM PAINTED | Exterior Wall/Cover: | LOG TO 10" | | Floor Covering: | CARPET/VINYL 80-20 | Floor Structure: | WOOD W/SUBFLOOR | | Foundation: | CONCRETE | Heating: | FHA OIL | | Interior Finish: | DRYWALL PAINT | Plumbing Fixture Cnt: | 6 | | Roof Slope: | 8" IN 12" | Roof Structure/Cover: | CJ WOOD SHINGLE |
|
| | Type | Description | Class CD | Sub Class CD | Year Built | Area |
| | BAS | BASE/MAIN FLOOR | 3 | 0 | 1935 | 1262.0 |
| | UB8 | BASEMENT UNFINISHED 8" | 3 | 0 | 1935 | 1305.0 |
| | OP3 | OPEN PORCH W/ROOF | 3 | 0 | 1935 | 192.0 |
| | DGR | DETACHED GARAGE | 3 | 0 | 1935 | 704.0 |
| | UTY | STORAGE/UTILITY | 3 | 0 | 1935 | 1120.0 |
| | OP4 | OPEN PORCH W/CEILING-ROOF | 3 | 0 | 1935 | 102.0 |
| Improvement #4: | COMMERCIAL | State Code: | F1 | 12295.0 sqft | Value: | $788,894 |
| Bathrooms: | 0 | Bedrooms: | 0 | | Ceiling: | DRYWALL PAINTED | Exterior Wall/Cover: | WD SIDING/WOOD FRAME | | Floor Covering: | CARPET 100% | Floor Structure: | WOOD ON WOOD JOIST | | Foundation: | CONCRETE | Heating: | WALL HEAT ELECTRIC | | Interior Finish: | AUDITORIUM | Plumbing Fixture Cnt: | 1 | | Roof Structure/Cover: | CJ ALUMINIUM HEAVY |   |   |
|
| | Type | Description | Class CD | Sub Class CD | Year Built | Area |
| | BAS | BASE/MAIN FLOOR | 3 | 0 | 1978 | 2100.0 |
| | OWC | OPEN WOOD PORCH W/STEPS/ROOF/C | 3 | 0 | 1978 | 544.0 |
| | STG | STORAGE | 3 | 0 | 1978 | 772.0 |
| | OP4 | OPEN PORCH W/CEILING-ROOF | 3 | 0 | 1978 | 252.0 |
| | STG | STORAGE | 3 | 0 | 1978 | 128.0 |
| | OWC | OPEN WOOD PORCH W/STEPS/ROOF/C | 3 | 0 | 1978 | 270.0 |
| | OWP | OPEN WOOD PORCH W/STEPS | 3 | 0 | 1978 | 192.0 |
| | OWR | OPEN WOOD PORCH W/STEPS/ROOF | 3 | 0 | 1978 | 240.0 |
| | BAS | BASE/MAIN FLOOR | 3 | 0 | 1978 | 320.0 |
| | BAS | BASE/MAIN FLOOR | 3 | 0 | 1978 | 551.0 |
| | BAS | BASE/MAIN FLOOR | 3 | 0 | 1978 | 2323.0 |
| | BAS | BASE/MAIN FLOOR | 3 | 0 | 1978 | 1387.0 |
| | BAS | BASE/MAIN FLOOR | 3 | 0 | 1978 | 624.0 |
| | BAS | BASE/MAIN FLOOR | 3 | 0 | 1978 | 3048.0 |
| | BAS | BASE/MAIN FLOOR | 3 | 0 | 1978 | 442.0 |
| | BAS | BASE/MAIN FLOOR | 3 | 0 | 1978 | 600.0 |
| | OWP | OPEN WOOD PORCH W/STEPS | 3 | 0 | 1978 | 580.0 |
| | OCP | OPEN CARPORT | 3 | 0 | 1978 | 220.0 |
| | OWC | OPEN WOOD PORCH W/STEPS/ROOF/C | 3 | 0 | 1978 | 170.0 |
| Improvement #5: | COMMERCIAL | State Code: | F1 | 1172.0 sqft | Value: | $71,259 |
| Ceiling: | DRYWALL PAINTED | Exterior Wall/Cover: | WOOD SIDING | | Floor Structure: | WOOD W/SUBFLOOR | Foundation: | CONCRETE | | Heating: | (NONE) | Interior Finish: | DRYWALL PAINT | | Plumbing Fixture Cnt: | 1 | Roof Structure/Cover: | CJ ASPHALT |
|
| | Type | Description | Class CD | Sub Class CD | Year Built | Area |
| | OWC | OPEN WOOD PORCH W/STEPS/ROOF/C | 3 | 0 | 1978 | 80.0 |
| | OWP | OPEN WOOD PORCH W/STEPS | 3 | 0 | 1978 | 200.0 |
| | BAS | BASE/MAIN FLOOR | 3 | 0 | 1978 | 220.0 |
| | BAS | BASE/MAIN FLOOR | 3 | 0 | 1978 | 952.0 |
Sketch
Property Image
Land
| 1 | 76 | PARKS | 266.4900 | 7034504.40 | 0.00 | 0.00 | 1.00 | $2,664,900 | $0 |
| 2 | MB | MEDIUM BANK | 0.0000 | 0.00 | 700.00 | 0.00 | 1.00 | $1,680,000 | $0 |
Roll Value History
| 2026 | N/A | N/A | N/A | N/A | N/A |
| 2025 | $1,711,878 | $4,344,900 | $0 | $6,056,778 | $0 |
| 2024 | $1,759,302 | $4,344,900 | $0 | $6,104,202 | $0 |
| 2023 | $1,829,139 | $4,344,900 | $0 | $6,174,039 | $0 |
| 2022 | $1,518,333 | $4,344,900 | $0 | $5,863,233 | $0 |
| 2021 | $1,373,960 | $4,344,900 | $0 | $5,718,860 | $0 |
| 2020 | $1,357,841 | $4,344,900 | $0 | $5,702,741 | $0 |
| 2019 | $1,124,675 | $4,344,900 | $0 | $5,469,575 | $0 |
| 2018 | $1,100,075 | $4,344,900 | $0 | $5,444,975 | $0 |
| 2017 | $1,106,901 | $2,886,065 | $0 | $3,992,966 | $0 |
| 2016 | $1,109,615 | $2,886,065 | $0 | $3,995,680 | $0 |
| 2015 | $1,123,087 | $2,886,065 | $0 | $4,009,152 | $0 |
| 2014 | $1,136,557 | $2,886,065 | $0 | $4,022,622 | $0 |
| 2013 | $1,150,028 | $2,886,065 | $0 | $4,036,093 | $0 |
| 2012 | $1,163,497 | $2,886,065 | $0 | $4,049,562 | $0 |
| 2011 | $1,089,219 | $2,886,065 | $0 | $3,975,284 | $0 |
| 2010 | $1,055,692 | $2,886,065 | $0 | $3,941,757 | $0 |
| 2009 | $1,084,716 | $3,434,935 | $0 | $4,519,651 | $0 |
| 2008 | $1,028,881 | $3,612,139 | $0 | $4,641,020 | $0 |
| 2007 | $1,055,640 | $3,612,139 | $0 | $4,667,779 | $0 |
Deed and Sales History
Payout Agreement
| No payout information available.. |