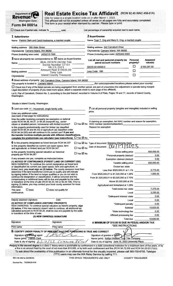
Property
Account |
| Property ID: | 44614 | Abbreviated Legal Description: | 7 - IN NW SW:S275' OF SE NW SW EX W510' & EX S30' RD (LOT D SP 72-104) |
| Geographic ID: | R13436-147-1250 | Agent Code: | |
| Type: | Real | | |
| Tax Area: | 110 - APPRAISER-OH Schl Dist, outside OH, improved & 1 acre or less | Land Use Code | 11 |
| Open Space: | N | DFL | N |
| Historic Property: | N | Remodel Property: | N |
| Multi-Family Redevelopment: | N | | |
| Township: | 34 | Section: | 36 |
| Range: | R1 |
Location |
| Address: | 308 DUCKEN RD OAK HARBOR, WA 98277 | Mapsco: | |
| Neighborhood: | Cycle 6 | Map ID: | 277 |
| Neighborhood CD: | 6 |
Owner |
| Name: | BROADHURST, CHARLES W | Owner ID: | 186169 |
| Mailing Address: | VIRGINIA H BRDHURST 308 DUCKEN RD OAK HARBOR, WA 98277-7931 | % Ownership: | 100.0000000000% |
| | | Exemptions: | SNR/DSBL |
Taxes and Assessment Details
Values
| (+) Improvement Homesite Value: | + | $339,710 | |
| (+) Improvement Non-Homesite Value: | + | $0 | |
| (+) Land Homesite Value: | + | $200,000 | |
| (+) Land Non-Homesite Value: | + | $0 | |
| (+) Curr Use (HS): | + | $0 | $0 |
| (+) Curr Use (NHS): | + | $0 | $0 |
| | | -------------------------- | |
| (=) Market Value: | = | $539,710 | |
| (–) Productivity Loss: | – | $0 | |
| | | -------------------------- | |
| (=) Subtotal: | = | $539,710 | |
| (+) Senior Appraised Value: | + | $252,919 | |
| (+) Non-Senior Appraised Value: | + | $0 | |
| | | -------------------------- | |
| (=) Total Appraised Value: | = | $252,919 | |
| (–) Senior Exemption Loss: | – | $151,751 | |
| (–) Exemption Loss: | – | $0 | |
| | | -------------------------- | |
| (=) Taxable Value: | = | $101,168 | |
Taxing Jurisdiction
| Owner: | BROADHURST, CHARLES W | | |
| % Ownership: | 100.0000000000% | | |
| Total Value: | $539,710 | | |
| Tax Area: | 110 - APPRAISER-OH Schl Dist, outside OH, improved & 1 acre or less |
| CF | Conservation Futures | 0.0316035091 | $539,710 | $101,168 | $3.20 | | |
| CEM1 | Cemetery #1 | 0.0040320932 | $539,710 | $101,168 | $0.41 | | |
| FIRE2 | Fire & Rescue Dist #2 N Whidbey GEN | 0.5475949600 | $539,710 | $101,168 | $55.40 | | |
| HOBOND | Hospital BOND | 0.0000000000 | $539,710 | $0 | $0.00 | | |
| HOGEN | Hospital GEN | 0.3902502903 | $539,710 | $101,168 | $39.48 | | |
| CE | County Current Expense | 0.3708482477 | $539,710 | $101,168 | $37.52 | | |
| CR | County Roads | 0.4584763726 | $539,710 | $101,168 | $46.38 | | |
| ISLANDEMS | Hospital GEN (EMS) | 0.5000000000 | $539,710 | $101,168 | $50.58 | | |
| LIB | Library Sno-Isle GEN | 0.3153421757 | $539,710 | $101,168 | $31.90 | | |
| NWHIDPRMT | P & R N Whidbey GEN | 0.2004466701 | $539,710 | $101,168 | $20.28 | | |
| SCH201MO | School 201 Enrichment | 0.0000000000 | $539,710 | $0 | $0.00 | | |
| ST | State School | 1.3035497053 | $539,710 | $101,168 | $131.88 | | |
| ST2 | State School Part 2 | 0.0000000000 | $539,710 | $0 | $0.00 | | |
| | Total Tax Rate: | 4.1221440240 | | | | | |
| | | | | Taxes w/Current Exemptions: | $417.03 | | |
| | | | | Taxes w/o Exemptions: | $3,770.47 | | |
Improvement / Building
| Improvement #1: | RESIDENTIAL | State Code: | Y | 2975.0 sqft | Value: | $339,710 |
| Bathrooms: | 3 | Bedrooms: | 4 | | Ceiling: | DRYWALL PAINTED | Exterior Wall/Cover: | PLY/HARDBOARD T-111 | | Floor Covering: | CARPET/VINYL 60-40 | Floor Structure: | WOOD W/SUBFLOOR | | Foundation: | CONCRETE BLOCKS | Heating: | BASEBOARD ELECTRIC | | Interior Finish: | DRYWALL PAINT | Plumbing Fixture Cnt: | 12 | | Roof Slope: | 4" IN 12" | Roof Structure/Cover: | CJ ALUMINIUM HEAVY |
|
| | Type | Description | Class CD | Sub Class CD | Year Built | Area |
| | BAS | BASE/MAIN FLOOR | 3 | 0 | 1973 | 2247.0 |
| | AGR | ATTACHED GARAGE | 3 | 0 | 1973 | 667.0 |
| | UPS | UPPER STORY | 3 | 0 | 1973 | 728.0 |
| | OWP | OPEN WOOD PORCH W/STEPS | 3 | 0 | 1973 | 200.0 |
| | OWR | OPEN WOOD PORCH W/STEPS/ROOF | 3 | 0 | 1973 | 243.0 |
| | oPOL | POLE BARN | 3 | 0 | 1973 | 0.0 |
Sketch
Property Image
Land
| 1 | 16 | AC (00.51-01.00) | 0.0000 | 0.00 | 0.00 | 0.00 | 1.00 | $200,000 | $0 |
Roll Value History
| 2026 | N/A | N/A | N/A | N/A | N/A |
| 2025 | $339,710 | $200,000 | $0 | $539,710 | $101,168 |
| 2024 | $351,553 | $190,000 | $0 | $541,553 | $101,168 |
| 2023 | $356,229 | $190,000 | $0 | $546,229 | $101,168 |
| 2022 | $319,186 | $160,000 | $0 | $479,186 | $252,919 |
| 2021 | $282,425 | $125,000 | $0 | $407,425 | $252,919 |
| 2020 | $276,450 | $110,000 | $0 | $386,450 | $252,919 |
| 2019 | $221,430 | $150,000 | $0 | $371,430 | $252,919 |
| 2018 | $222,126 | $150,000 | $0 | $372,126 | $252,919 |
| 2017 | $223,520 | $85,000 | $0 | $308,520 | $252,919 |
| 2016 | $184,985 | $85,000 | $0 | $269,985 | $182,919 |
| 2015 | $187,919 | $65,000 | $0 | $252,919 | $252,919 |
| 2014 | $190,852 | $50,000 | $0 | $240,852 | $240,852 |
| 2013 | $193,965 | $55,250 | $0 | $249,215 | $249,215 |
| 2012 | $196,898 | $55,250 | $0 | $252,148 | $252,148 |
| 2011 | $199,831 | $65,000 | $0 | $264,831 | $264,831 |
| 2010 | $230,742 | $65,000 | $0 | $295,742 | $295,742 |
| 2009 | $240,954 | $65,000 | $0 | $305,954 | $305,954 |
| 2008 | $244,622 | $65,000 | $0 | $309,622 | $309,622 |
| 2007 | $248,195 | $65,000 | $0 | $313,195 | $313,195 |
Deed and Sales History
| 1 | 09/11/2001 | QCD | Quit Claim Deed | BROADHURST, CHARLES W | BROADHURST, CHARLES W | | | $0.00 | 13576 | 20042957 |
| 2 | 09/11/2000 | DECREE | Divorce Decree/Legal Separation | BROADHURST, CHARLES W | BROADHURST, CHARLES W | | | $0.00 | 3586 | 20016482 |
| 3 | 03/01/1985 | WD | Warranty Deed | SMITH, JAMES M | BROADHURST, CHARLES W | | | $98,440.00 | 50492 | 85002209 |
| 4 | 03/01/1979 | OTHER | Other - Misc. Documents | Unknown | SMITH, JAMES M | | | $0.00 | 91318 | 349644 |
Payout Agreement
| No payout information available.. |