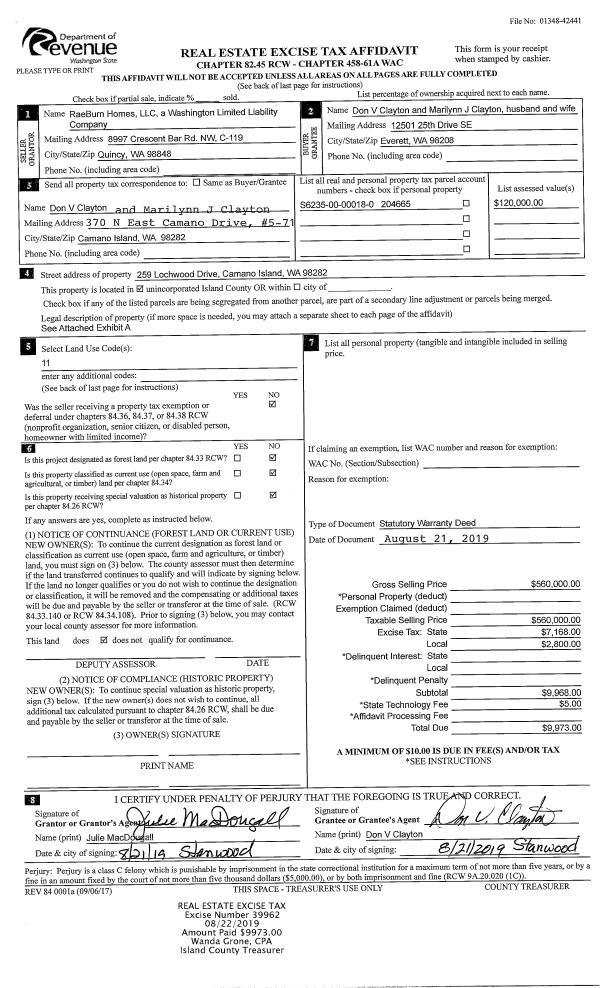
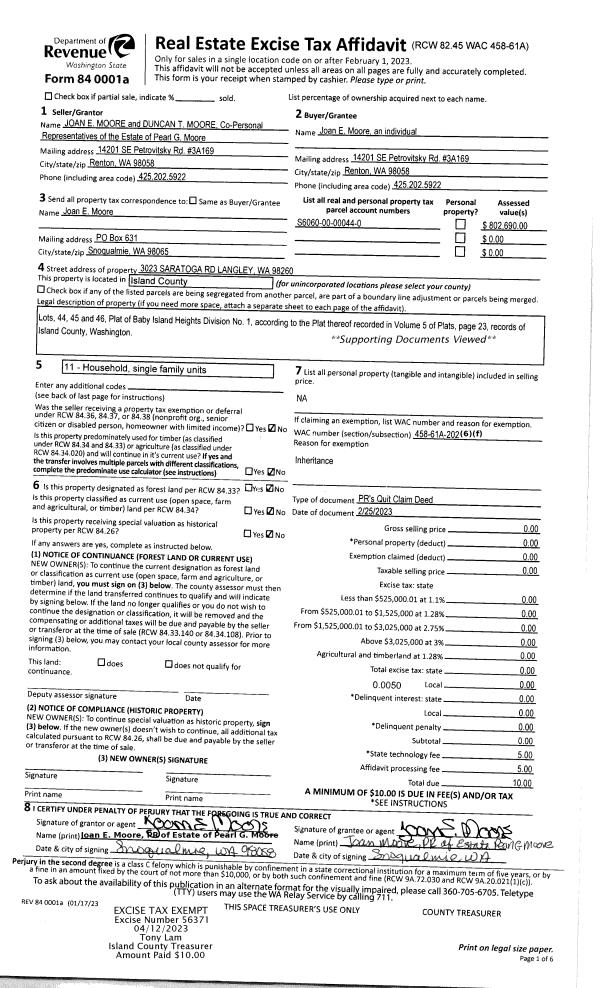
Property
Account |
| Property ID: | 44749 | Abbreviated Legal Description: | 76 - N/2 SW SW NW & W330' OF NW SW NW EX N660' OF W330' NW SW NW TGW & SUB EZ AF#262954 TGW & SUB EZ AF#88002747 AF#91002628 |
| Geographic ID: | R13436-314-0330 | Agent Code: | |
| Type: | Real | | |
| Tax Area: | 112 - APPRAISER-OH Schl Dist, outside OH, improved, greater than 1 acre | Land Use Code | 11 |
| Open Space: | N | DFL | N |
| Historic Property: | N | Remodel Property: | N |
| Multi-Family Redevelopment: | N | | |
| Township: | 34 | Section: | 36 |
| Range: | R1 |
Location |
| Address: | | Mapsco: | |
| Neighborhood: | Cycle 6 | Map ID: | 279 |
| Neighborhood CD: | 6 |
Owner |
| Name: | WIERSUM, COLTON | Owner ID: | 291180 |
| Mailing Address: | 12054 MARINE DR ANACORTES, WA 98221 | % Ownership: | 100.0000000000% |
| | | Exemptions: | |
Taxes and Assessment Details
Values
| (+) Improvement Homesite Value: | + | $0 | |
| (+) Improvement Non-Homesite Value: | + | $180,924 | |
| (+) Land Homesite Value: | + | $0 | |
| (+) Land Non-Homesite Value: | + | $300,000 | |
| (+) Curr Use (HS): | + | $0 | $0 |
| (+) Curr Use (NHS): | + | $0 | $0 |
| | | -------------------------- | |
| (=) Market Value: | = | $480,924 | |
| (–) Productivity Loss: | – | $0 | |
| | | -------------------------- | |
| (=) Subtotal: | = | $480,924 | |
| (+) Senior Appraised Value: | + | $0 | |
| (+) Non-Senior Appraised Value: | + | $480,924 | |
| | | -------------------------- | |
| (=) Total Appraised Value: | = | $480,924 | |
| (–) Senior Exemption Loss: | – | $0 | |
| (–) Exemption Loss: | – | $0 | |
| | | -------------------------- | |
| (=) Taxable Value: | = | $480,924 | |
Taxing Jurisdiction
| Owner: | WIERSUM, COLTON | | |
| % Ownership: | 100.0000000000% | | |
| Total Value: | $480,924 | | |
| Tax Area: | 112 - APPRAISER-OH Schl Dist, outside OH, improved, greater than 1 acre |
| CF | Conservation Futures | 0.0316035091 | $480,924 | $480,924 | $15.20 | | |
| CEM1 | Cemetery #1 | 0.0040320932 | $480,924 | $480,924 | $1.94 | | |
| FIRE2 | Fire & Rescue Dist #2 N Whidbey GEN | 0.5475949600 | $480,924 | $480,924 | $263.35 | | |
| HOBOND | Hospital BOND | 0.1910887512 | $480,924 | $480,924 | $91.90 | | |
| HOGEN | Hospital GEN | 0.3902502903 | $480,924 | $480,924 | $187.68 | | |
| CE | County Current Expense | 0.3708482477 | $480,924 | $480,924 | $178.35 | | |
| CR | County Roads | 0.4584763726 | $480,924 | $480,924 | $220.49 | | |
| ISLANDEMS | Hospital GEN (EMS) | 0.5000000000 | $480,924 | $480,924 | $240.46 | | |
| LIB | Library Sno-Isle GEN | 0.3153421757 | $480,924 | $480,924 | $151.66 | | |
| NWHIDPRMT | P & R N Whidbey GEN | 0.2004466701 | $480,924 | $480,924 | $96.40 | | |
| SCH201MO | School 201 Enrichment | 1.8559231640 | $480,924 | $480,924 | $892.56 | | |
| ST | State School | 1.3035497053 | $480,924 | $480,924 | $626.91 | | |
| ST2 | State School Part 2 | 0.8169543533 | $480,924 | $480,924 | $392.89 | | |
| | Total Tax Rate: | 6.9861102925 | | | | | |
| | | | | Taxes w/Current Exemptions: | $3,359.79 | | |
| | | | | Taxes w/o Exemptions: | $3,359.79 | | |
Improvement / Building
| Improvement #1: | MANUFACTURED HOME | State Code: | Y | 1680.0 sqft | Value: | $180,924 |
| Bathrooms: | 2 | Bedrooms: | 3 | | Ceiling: | PLASTER PAINTED | Cooling: | EVAP NO DUCT | | Exterior Wall/Cover: | VINYL | Floor Covering: | CARPET 100% | | Floor Structure: | SLAB ON GRADE | Foundation: | SLAB | | Heating: | FHA ELECTRIC | Interior Finish: | PLASTER | | Roof Slope: | FLAT | Roof Structure/Cover: | CJ ALUMINIUM HEAVY |
|
Sketch
Property Image
Land
| 1 | 32 | AC (03.01-09.99) | 5.0000 | 0.00 | 0.00 | 0.00 | 1.00 | $300,000 | $0 |
Roll Value History
| 2026 | N/A | N/A | N/A | N/A | N/A |
| 2025 | $180,924 | $300,000 | $0 | $480,924 | $480,924 |
| 2024 | $182,808 | $280,000 | $0 | $462,808 | $462,808 |
| 2023 | $160,606 | $270,000 | $0 | $430,606 | $430,606 |
| 2022 | $146,910 | $240,000 | $0 | $386,910 | $386,910 |
| 2021 | $127,751 | $175,000 | $0 | $302,751 | $302,751 |
| 2020 | $0 | $90,000 | $0 | $90,000 | $90,000 |
| 2019 | $0 | $90,000 | $0 | $90,000 | $90,000 |
| 2018 | $0 | $90,000 | $0 | $90,000 | $90,000 |
| 2017 | $0 | $80,000 | $0 | $80,000 | $80,000 |
| 2016 | $0 | $80,000 | $0 | $80,000 | $80,000 |
| 2015 | $0 | $70,000 | $0 | $70,000 | $70,000 |
| 2014 | $0 | $85,000 | $0 | $85,000 | $85,000 |
| 2013 | $0 | $85,000 | $0 | $85,000 | $85,000 |
| 2012 | $0 | $85,000 | $0 | $85,000 | $85,000 |
| 2011 | $0 | $85,000 | $0 | $85,000 | $85,000 |
| 2010 | $0 | $85,000 | $0 | $85,000 | $85,000 |
| 2009 | $0 | $85,000 | $0 | $85,000 | $85,000 |
| 2008 | $0 | $95,000 | $0 | $95,000 | $95,000 |
| 2007 | $0 | $90,000 | $0 | $90,000 | $90,000 |
Deed and Sales History
| 1 | 07/30/2019 | WD | Warranty Deed | WOODS, DUNDEE | WIERSUM, COLTON | | | $115,000.00 | 39689 | 4468549 |
| 2 | 03/07/2008 | QCD | Quit Claim Deed | DECEPTION PASS MARINA, INC, | WOODS, DUNDEE | | | $95,000.00 | 82036 | 4234326 |
| 3 | 03/27/2000 | QCD | Quit Claim Deed | CORNET, BAY M | DECEPTION PASS MARINA, INC, | | | $0.00 | 1222 | 20006078 |
| 4 | 10/01/1990 | QCD | Quit Claim Deed | SANDERS, MICHAEL R | CORNET, BAY M | | | $0.00 | 5684 | 90019112 |
| 5 | 04/01/1979 | REC | Real Estate Contract | , | SANDERS, MICHAEL R | | | $23,500.00 | 91782 | 351082 |
| 6 | 08/01/1978 | OTHER | Other - Misc. Documents | Unknown | , | | | $18,000.00 | 83757 | 0 |
Payout Agreement
| No payout information available.. |