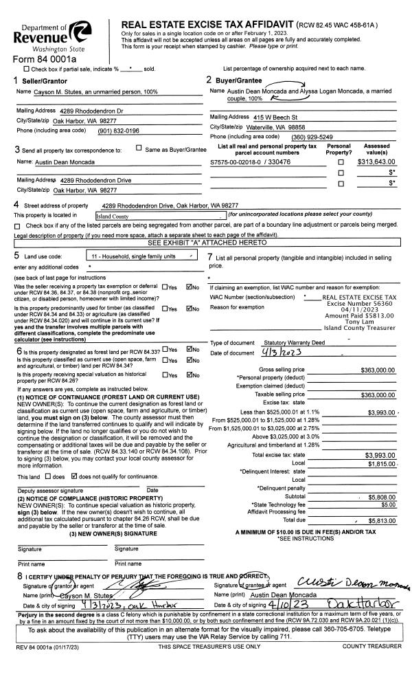
Property
Account |
| Property ID: | 44847 | Abbreviated Legal Description: | 56 - IN GL1: S250' OF FOLL DESC: BG SWCR GL1 N89*E105 .35' N695.48' TO SLN CO RD WLY TP N701.54' FR TPB S ALG WLN 701.54' TPB EX ANY PT LY E OF LN PARA/W & 1200'W OF ELN OF GL1 |
| Geographic ID: | R13436-408-1370 | Agent Code: | |
| Type: | Real | | |
| Tax Area: | 119 - APPRAISER-OH Schl Dist, outside OH, vacant & 50 acres or less | Land Use Code | 91 |
| Open Space: | N | DFL | N |
| Historic Property: | N | Remodel Property: | N |
| Multi-Family Redevelopment: | N | | |
| Township: | 34 | Section: | 36 |
| Range: | R1 |
Location |
| Address: | | Mapsco: | |
| Neighborhood: | Cycle 6 | Map ID: | 279 |
| Neighborhood CD: | 6 |
Owner |
| Name: | JOHNSON, JUDY L | Owner ID: | 72755 |
| Mailing Address: | 10622 BARNETT VALLEY RD SEBASTOPOL, CA 95472-8209 | % Ownership: | 100.0000000000% |
| | | Exemptions: | |
Taxes and Assessment Details
Values
| (+) Improvement Homesite Value: | + | $0 | |
| (+) Improvement Non-Homesite Value: | + | $0 | |
| (+) Land Homesite Value: | + | $0 | |
| (+) Land Non-Homesite Value: | + | $130,000 | |
| (+) Curr Use (HS): | + | $0 | $0 |
| (+) Curr Use (NHS): | + | $0 | $0 |
| | | -------------------------- | |
| (=) Market Value: | = | $130,000 | |
| (–) Productivity Loss: | – | $0 | |
| | | -------------------------- | |
| (=) Subtotal: | = | $130,000 | |
| (+) Senior Appraised Value: | + | $0 | |
| (+) Non-Senior Appraised Value: | + | $130,000 | |
| | | -------------------------- | |
| (=) Total Appraised Value: | = | $130,000 | |
| (–) Senior Exemption Loss: | – | $0 | |
| (–) Exemption Loss: | – | $0 | |
| | | -------------------------- | |
| (=) Taxable Value: | = | $130,000 | |
Taxing Jurisdiction
| Owner: | JOHNSON, JUDY L | | |
| % Ownership: | 100.0000000000% | | |
| Total Value: | $130,000 | | |
| Tax Area: | 119 - APPRAISER-OH Schl Dist, outside OH, vacant & 50 acres or less |
| CF | Conservation Futures | 0.0316035091 | $130,000 | $130,000 | $4.11 | | |
| CEM1 | Cemetery #1 | 0.0040320932 | $130,000 | $130,000 | $0.52 | | |
| HOBOND | Hospital BOND | 0.1910887512 | $130,000 | $130,000 | $24.84 | | |
| HOGEN | Hospital GEN | 0.3902502903 | $130,000 | $130,000 | $50.73 | | |
| CE | County Current Expense | 0.3708482477 | $130,000 | $130,000 | $48.21 | | |
| CR | County Roads | 0.4584763726 | $130,000 | $130,000 | $59.60 | | |
| ISLANDEMS | Hospital GEN (EMS) | 0.5000000000 | $130,000 | $130,000 | $65.00 | | |
| LIB | Library Sno-Isle GEN | 0.3153421757 | $130,000 | $130,000 | $40.99 | | |
| NWHIDPRMT | P & R N Whidbey GEN | 0.2004466701 | $130,000 | $130,000 | $26.06 | | |
| SCH201MO | School 201 Enrichment | 1.8559231640 | $130,000 | $130,000 | $241.27 | | |
| ST | State School | 1.3035497053 | $130,000 | $130,000 | $169.46 | | |
| ST2 | State School Part 2 | 0.8169543533 | $130,000 | $130,000 | $106.20 | | |
| | Total Tax Rate: | 6.4385153325 | | | | | |
| | | | | Taxes w/Current Exemptions: | $836.99 | | |
| | | | | Taxes w/o Exemptions: | $836.99 | | |
Improvement / Building
Sketch
| No sketches available for this property. |
Property Image
Land
| 1 | 16 | AC (00.51-01.00) | 0.0000 | 0.00 | 0.00 | 0.00 | 1.00 | $130,000 | $0 |
Roll Value History
| 2026 | N/A | N/A | N/A | N/A | N/A |
| 2025 | $0 | $130,000 | $0 | $130,000 | $130,000 |
| 2024 | $0 | $110,000 | $0 | $110,000 | $110,000 |
| 2023 | $0 | $90,000 | $0 | $90,000 | $90,000 |
| 2022 | $0 | $70,000 | $0 | $70,000 | $70,000 |
| 2021 | $0 | $70,000 | $0 | $70,000 | $70,000 |
| 2020 | $0 | $70,000 | $0 | $70,000 | $70,000 |
| 2019 | $0 | $70,000 | $0 | $70,000 | $70,000 |
| 2018 | $0 | $70,000 | $0 | $70,000 | $70,000 |
| 2017 | $0 | $70,000 | $0 | $70,000 | $70,000 |
| 2016 | $0 | $70,000 | $0 | $70,000 | $70,000 |
| 2015 | $0 | $65,000 | $0 | $65,000 | $65,000 |
| 2014 | $0 | $65,000 | $0 | $65,000 | $65,000 |
| 2013 | $0 | $50,000 | $0 | $50,000 | $50,000 |
| 2012 | $0 | $50,000 | $0 | $50,000 | $50,000 |
| 2011 | $0 | $50,000 | $0 | $50,000 | $50,000 |
| 2010 | $0 | $50,000 | $0 | $50,000 | $50,000 |
| 2009 | $0 | $60,000 | $0 | $60,000 | $60,000 |
| 2008 | $0 | $60,000 | $0 | $60,000 | $60,000 |
| 2007 | $0 | $61,665 | $0 | $61,665 | $61,665 |
Deed and Sales History
| 1 | 01/01/1997 | QCD | Quit Claim Deed | JOHNSON, JUDY L | JOHNSON, JUDY L | | | $0.00 | 70304 | 97001293 |
| 2 | 06/01/1995 | QCD | Quit Claim Deed | JOHNSON, JOHN H | JOHNSON, JUDY L | | | $0.00 | 52354 | 95010845 |
| 3 | 11/01/1982 | WD | Warranty Deed | HIGGINS, WILLIAM A | JOHNSON, JOHN H | | | $13,000.00 | 22902 | 403321 |
| 4 | 01/01/1900 | OTHER | Other - Misc. Documents | Unknown | HIGGINS, WILLIAM A | | | $0.00 | 0 | 0 |
Payout Agreement
| No payout information available.. |