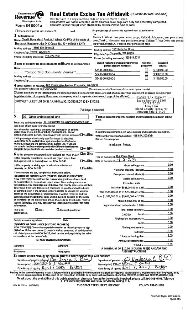
Property
Account |
| Property ID: | 44874 | Abbreviated Legal Description: | 78 - N/2 OF FOL:BG NE CR GL1 S40RDS W600'S40RDS W180'TPB W180'N 242'E180'S242'TPB |
| Geographic ID: | R13436-414-1760 | Agent Code: | |
| Type: | Real | | |
| Tax Area: | 110 - APPRAISER-OH Schl Dist, outside OH, improved & 1 acre or less | Land Use Code | 11 |
| Open Space: | N | DFL | N |
| Historic Property: | N | Remodel Property: | N |
| Multi-Family Redevelopment: | N | | |
| Township: | 34 | Section: | 36 |
| Range: | R1 |
Location |
| Address: | 5101 BAYVIEW LN OAK HARBOR, WA 98277 | Mapsco: | |
| Neighborhood: | Cycle 6 | Map ID: | 279 |
| Neighborhood CD: | 6 |
Owner |
| Name: | DESVOIGNE, MARK E | Owner ID: | 185868 |
| Mailing Address: | 5101 BAYVIEW LN OAK HARBOR, WA 98277-7916 | % Ownership: | 100.0000000000% |
| | | Exemptions: | |
Taxes and Assessment Details
Values
| (+) Improvement Homesite Value: | + | $0 | |
| (+) Improvement Non-Homesite Value: | + | $231,708 | |
| (+) Land Homesite Value: | + | $0 | |
| (+) Land Non-Homesite Value: | + | $250,000 | |
| (+) Curr Use (HS): | + | $0 | $0 |
| (+) Curr Use (NHS): | + | $0 | $0 |
| | | -------------------------- | |
| (=) Market Value: | = | $481,708 | |
| (–) Productivity Loss: | – | $0 | |
| | | -------------------------- | |
| (=) Subtotal: | = | $481,708 | |
| (+) Senior Appraised Value: | + | $0 | |
| (+) Non-Senior Appraised Value: | + | $481,708 | |
| | | -------------------------- | |
| (=) Total Appraised Value: | = | $481,708 | |
| (–) Senior Exemption Loss: | – | $0 | |
| (–) Exemption Loss: | – | $0 | |
| | | -------------------------- | |
| (=) Taxable Value: | = | $481,708 | |
Taxing Jurisdiction
| Owner: | DESVOIGNE, MARK E | | |
| % Ownership: | 100.0000000000% | | |
| Total Value: | $481,708 | | |
| Tax Area: | 110 - APPRAISER-OH Schl Dist, outside OH, improved & 1 acre or less |
| CF | Conservation Futures | 0.0316035091 | $481,708 | $481,708 | $15.22 | | |
| CEM1 | Cemetery #1 | 0.0040320932 | $481,708 | $481,708 | $1.94 | | |
| FIRE2 | Fire & Rescue Dist #2 N Whidbey GEN | 0.5475949600 | $481,708 | $481,708 | $263.78 | | |
| HOBOND | Hospital BOND | 0.1910887512 | $481,708 | $481,708 | $92.05 | | |
| HOGEN | Hospital GEN | 0.3902502903 | $481,708 | $481,708 | $187.99 | | |
| CE | County Current Expense | 0.3708482477 | $481,708 | $481,708 | $178.64 | | |
| CR | County Roads | 0.4584763726 | $481,708 | $481,708 | $220.85 | | |
| ISLANDEMS | Hospital GEN (EMS) | 0.5000000000 | $481,708 | $481,708 | $240.85 | | |
| LIB | Library Sno-Isle GEN | 0.3153421757 | $481,708 | $481,708 | $151.90 | | |
| NWHIDPRMT | P & R N Whidbey GEN | 0.2004466701 | $481,708 | $481,708 | $96.56 | | |
| SCH201MO | School 201 Enrichment | 1.8559231640 | $481,708 | $481,708 | $894.01 | | |
| ST | State School | 1.3035497053 | $481,708 | $481,708 | $627.93 | | |
| ST2 | State School Part 2 | 0.8169543533 | $481,708 | $481,708 | $393.53 | | |
| | Total Tax Rate: | 6.9861102925 | | | | | |
| | | | | Taxes w/Current Exemptions: | $3,365.25 | | |
| | | | | Taxes w/o Exemptions: | $3,365.25 | | |
Improvement / Building
| Improvement #1: | RESIDENTIAL | State Code: | Y | 1889.0 sqft | Value: | $231,708 |
| Bathrooms: | 2 | Bedrooms: | 3 | | Ceiling: | DRYWALL PAINTED | Exterior Wall/Cover: | WOOD SIDING | | Floor Covering: | CARPET 100% | Floor Structure: | WOOD W/SUBFLOOR | | Foundation: | CONCRETE | Heating: | FHA OIL | | Interior Finish: | DRYWALL PAINT | Plumbing Fixture Cnt: | 10 | | Roof Slope: | 5" IN 12" | Roof Structure/Cover: | CJ ASPHALT |
|
| | Type | Description | Class CD | Sub Class CD | Year Built | Area |
| | BAS | BASE/MAIN FLOOR | 3 | 0 | 1954 | 962.0 |
| | DGR | DETACHED GARAGE | 3 | 0 | 1954 | 450.0 |
| | OCP | OPEN CARPORT | 3 | 0 | 1954 | 344.0 |
| | DWN | DOWNSTAIRS LIVING AREA | 3 | 0 | 1954 | 927.0 |
Sketch
Property Image
Land
| 1 | 15 | SQ (12001-21780) | 0.0000 | 0.00 | 0.00 | 0.00 | 1.00 | $250,000 | $0 |
Roll Value History
| 2026 | N/A | N/A | N/A | N/A | N/A |
| 2025 | $231,708 | $250,000 | $0 | $481,708 | $481,708 |
| 2024 | $235,054 | $240,000 | $0 | $475,054 | $475,054 |
| 2023 | $238,400 | $240,000 | $0 | $478,400 | $478,400 |
| 2022 | $212,847 | $125,000 | $0 | $337,847 | $337,847 |
| 2021 | $187,714 | $95,000 | $0 | $282,714 | $282,714 |
| 2020 | $183,432 | $95,000 | $0 | $278,432 | $278,432 |
| 2019 | $138,210 | $125,000 | $0 | $263,210 | $263,210 |
| 2018 | $138,683 | $125,000 | $0 | $263,683 | $263,683 |
| 2017 | $139,626 | $125,000 | $0 | $264,626 | $264,626 |
| 2016 | $90,568 | $100,000 | $0 | $190,568 | $190,568 |
| 2015 | $92,455 | $75,000 | $0 | $167,455 | $167,455 |
| 2014 | $94,342 | $75,000 | $0 | $169,342 | $169,342 |
| 2013 | $96,228 | $85,000 | $0 | $181,228 | $181,228 |
| 2012 | $98,115 | $85,000 | $0 | $183,115 | $183,115 |
| 2011 | $100,002 | $100,000 | $0 | $200,002 | $200,002 |
| 2010 | $118,016 | $100,000 | $0 | $218,016 | $218,016 |
| 2009 | $121,693 | $119,000 | $0 | $240,693 | $240,693 |
| 2008 | $123,842 | $119,000 | $0 | $242,842 | $242,842 |
| 2007 | $126,007 | $119,000 | $0 | $245,007 | $245,007 |
Deed and Sales History
| 1 | 07/24/2001 | PRD | Personal Representatives Deed | DES, VOIGNE, M | DESVOIGNE, MARK E | | | $0.00 | 12811 | 20038218 |
| 2 | 01/01/1973 | OTHER | Other - Misc. Documents | Unknown | DES, VOIGNE, M | | | $0.00 | 46478 | 0 |
Payout Agreement
| No payout information available.. |