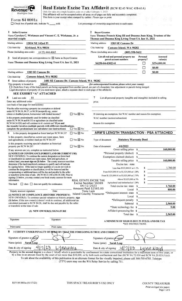
Property
Account |
| Property ID: | 45052 | Abbreviated Legal Description: | 20 - PT GL2 DESC: BG ML 1853.73'W OF ELN GL1 S TO CO RD SWLY ALG CO RD TP 96.27'W N TO ML ELY ALG ML TPB INCL TIDES ADJ TO W132' OF E1982' OF GLS 1 & 2 TGW PT SD GL2 DESC: BG W 4/CR SEC 36 N1*E ALG WLN 1215.26' TO CLN OF CORNET BAY RD N54*E ALG SD CLN 9 |
| Geographic ID: | R13436-455-0720 | Agent Code: | |
| Type: | Real | | |
| Tax Area: | 110 - APPRAISER-OH Schl Dist, outside OH, improved & 1 acre or less | Land Use Code | 11 |
| Open Space: | N | DFL | N |
| Historic Property: | N | Remodel Property: | N |
| Multi-Family Redevelopment: | N | | |
| Township: | 34 | Section: | 36 |
| Range: | R1 |
Location |
| Address: | 346 CORNET BAY RD OAK HARBOR, WA 98277 | Mapsco: | |
| Neighborhood: | Cycle 6 | Map ID: | 279 |
| Neighborhood CD: | 6 |
Owner |
| Name: | FINCH, GEORGENE M | Owner ID: | 25695 |
| Mailing Address: | 346 CORNET BAY RD OAK HARBOR, WA 98277-9748 | % Ownership: | 100.0000000000% |
| | | Exemptions: | |
Taxes and Assessment Details
Values
| (+) Improvement Homesite Value: | + | $0 | |
| (+) Improvement Non-Homesite Value: | + | $235,294 | |
| (+) Land Homesite Value: | + | $0 | |
| (+) Land Non-Homesite Value: | + | $316,283 | |
| (+) Curr Use (HS): | + | $0 | $0 |
| (+) Curr Use (NHS): | + | $0 | $0 |
| | | -------------------------- | |
| (=) Market Value: | = | $551,577 | |
| (–) Productivity Loss: | – | $0 | |
| | | -------------------------- | |
| (=) Subtotal: | = | $551,577 | |
| (+) Senior Appraised Value: | + | $0 | |
| (+) Non-Senior Appraised Value: | + | $551,577 | |
| | | -------------------------- | |
| (=) Total Appraised Value: | = | $551,577 | |
| (–) Senior Exemption Loss: | – | $0 | |
| (–) Exemption Loss: | – | $0 | |
| | | -------------------------- | |
| (=) Taxable Value: | = | $551,577 | |
Taxing Jurisdiction
| Owner: | FINCH, GEORGENE M | | |
| % Ownership: | 100.0000000000% | | |
| Total Value: | $551,577 | | |
| Tax Area: | 110 - APPRAISER-OH Schl Dist, outside OH, improved & 1 acre or less |
| CF | Conservation Futures | 0.0316035091 | $551,577 | $551,577 | $17.43 | | |
| CEM1 | Cemetery #1 | 0.0040320932 | $551,577 | $551,577 | $2.22 | | |
| FIRE2 | Fire & Rescue Dist #2 N Whidbey GEN | 0.5475949600 | $551,577 | $551,577 | $302.04 | | |
| HOBOND | Hospital BOND | 0.1910887512 | $551,577 | $551,577 | $105.40 | | |
| HOGEN | Hospital GEN | 0.3902502903 | $551,577 | $551,577 | $215.25 | | |
| CE | County Current Expense | 0.3708482477 | $551,577 | $551,577 | $204.55 | | |
| CR | County Roads | 0.4584763726 | $551,577 | $551,577 | $252.89 | | |
| ISLANDEMS | Hospital GEN (EMS) | 0.5000000000 | $551,577 | $551,577 | $275.79 | | |
| LIB | Library Sno-Isle GEN | 0.3153421757 | $551,577 | $551,577 | $173.94 | | |
| NWHIDPRMT | P & R N Whidbey GEN | 0.2004466701 | $551,577 | $551,577 | $110.56 | | |
| SCH201MO | School 201 Enrichment | 1.8559231640 | $551,577 | $551,577 | $1,023.68 | | |
| ST | State School | 1.3035497053 | $551,577 | $551,577 | $719.01 | | |
| ST2 | State School Part 2 | 0.8169543533 | $551,577 | $551,577 | $450.61 | | |
| | Total Tax Rate: | 6.9861102925 | | | | | |
| | | | | Taxes w/Current Exemptions: | $3,853.37 | | |
| | | | | Taxes w/o Exemptions: | $3,853.37 | | |
Improvement / Building
| Improvement #1: | RESIDENTIAL | State Code: | Y | 1464.0 sqft | Value: | $235,294 |
| Bathrooms: | 1.5 | Bedrooms: | 2 | | Ceiling: | DRYWALL PAINTED | Exterior Wall/Cover: | WOOD SIDING | | Floor Covering: | HARDWOOD/CARP 20-80 | Floor Structure: | WOOD W/SUBFLOOR | | Foundation: | CONCRETE | Heating: | BASEBOARD ELECTRIC | | Interior Finish: | DRYWALL PAINT | Plumbing Fixture Cnt: | 8 | | Roof Slope: | 8" IN 12" | Roof Structure/Cover: | CJ ASPHALT |
|
| | Type | Description | Class CD | Sub Class CD | Year Built | Area |
| | BAS | BASE/MAIN FLOOR | 3 | 0 | 1950 | 968.0 |
| | AGR | ATTACHED GARAGE | 3 | 0 | 1950 | 512.0 |
| | OWP | OPEN WOOD PORCH W/STEPS | 3 | 0 | 1950 | 739.6 |
| | OWP | OPEN WOOD PORCH W/STEPS | 3 | 0 | 1950 | 168.0 |
| | OWC | OPEN WOOD PORCH W/STEPS/ROOF/C | 3 | 0 | 1950 | 16.0 |
| | UPH | HALF STORY | 3 | 0 | 1950 | 496.0 |
| | DGR | DETACHED GARAGE | 3 | 0 | 1950 | 575.0 |
| | OWR | OPEN WOOD PORCH W/STEPS/ROOF | 3 | 0 | 1950 | 96.0 |
| | oDOC | MARINA | 3 | | 1950 | 0.0 |
Sketch
Property Image
Land
| 1 | LB | LOW BANK | 0.8300 | 36154.80 | 96.27 | 0.00 | 1.00 | $315,000 | $0 |
| 2 | 55 | TIDES | 0.0000 | 0.00 | 128.27 | 0.00 | 1.00 | $1,283 | $0 |
Roll Value History
| 2026 | N/A | N/A | N/A | N/A | N/A |
| 2025 | $235,294 | $316,283 | $0 | $551,577 | $551,577 |
| 2024 | $243,562 | $316,283 | $0 | $559,845 | $559,845 |
| 2023 | $247,235 | $306,283 | $0 | $553,518 | $553,518 |
| 2022 | $205,960 | $301,283 | $0 | $507,243 | $507,243 |
| 2021 | $183,809 | $156,283 | $0 | $340,092 | $340,092 |
| 2020 | $180,308 | $156,283 | $0 | $336,591 | $336,591 |
| 2019 | $134,941 | $201,283 | $0 | $336,224 | $336,224 |
| 2018 | $135,415 | $201,283 | $0 | $336,698 | $336,698 |
| 2017 | $136,362 | $201,283 | $0 | $337,645 | $337,645 |
| 2016 | $80,834 | $201,283 | $0 | $282,117 | $282,117 |
| 2015 | $82,758 | $201,283 | $0 | $284,041 | $284,041 |
| 2014 | $84,683 | $201,283 | $0 | $285,966 | $285,966 |
| 2013 | $86,608 | $80,193 | $0 | $166,801 | $166,801 |
| 2012 | $88,532 | $80,193 | $0 | $168,725 | $168,725 |
| 2011 | $90,456 | $83,287 | $0 | $173,743 | $173,743 |
| 2010 | $107,024 | $83,287 | $0 | $190,311 | $190,311 |
| 2009 | $111,643 | $82,967 | $0 | $194,610 | $194,610 |
| 2008 | $113,430 | $82,967 | $0 | $196,397 | $196,397 |
| 2007 | $115,302 | $82,267 | $0 | $197,569 | $197,569 |
Deed and Sales History
| 1 | 02/12/2010 | BLA | DNU - Boundary Line Adjustment | FINCH, GEORGENE M | FINCH, GEORGENE M | | | $0.00 | 81479 | 4172840 |
| 2 | 06/08/2006 | ESTSEPPROP | Establish Separate Property | FINCH, GEORGENE M | FINCH, GEORGENE M | | | $0.00 | 62552 | 4267447 |
| 3 | 12/01/1992 | TRUSTEED | Trustee's Deed | RODGERS, EDWIN G | FINCH, GEORGENE M | | | $0.00 | 25125 | 92025246 |
| 4 | 01/01/1900 | OTHER | Other - Misc. Documents | Unknown | RODGERS, EDWIN G | | | $0.00 | 0 | 0 |
Payout Agreement
| No payout information available.. |