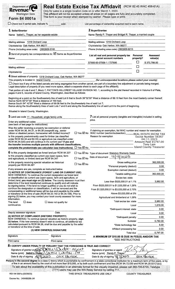
Property
Account |
| Property ID: | 45098 | Abbreviated Legal Description: | 22 -IN GL2 BG ML @ PT 1750 FT W OF ELN GL1 S TO RD SW ALG RD TP 1850' W OF ELN GL 1 MEAS R/A N TO ML ELY ALG ML TPB TGW ADJ TIDES |
| Geographic ID: | R13436-463-0820 | Agent Code: | |
| Type: | Real | | |
| Tax Area: | 110 - APPRAISER-OH Schl Dist, outside OH, improved & 1 acre or less | Land Use Code | 11 |
| Open Space: | N | DFL | N |
| Historic Property: | N | Remodel Property: | N |
| Multi-Family Redevelopment: | N | | |
| Township: | 34 | Section: | 36 |
| Range: | R1 |
Location |
| Address: | 338 CORNET BAY RD OAK HARBOR, WA 98277 | Mapsco: | |
| Neighborhood: | Cycle 6 | Map ID: | 279 |
| Neighborhood CD: | 6 |
Owner |
| Name: | FROMME, SCOTT W | Owner ID: | 150771 |
| Mailing Address: | LAURA J FROMME 3620 DUNDEE WAY OAK HARBOR, WA 98277 | % Ownership: | 100.0000000000% |
| | | Exemptions: | |
Taxes and Assessment Details
Values
| (+) Improvement Homesite Value: | + | $0 | |
| (+) Improvement Non-Homesite Value: | + | $854,219 | |
| (+) Land Homesite Value: | + | $0 | |
| (+) Land Non-Homesite Value: | + | $326,020 | |
| (+) Curr Use (HS): | + | $0 | $0 |
| (+) Curr Use (NHS): | + | $0 | $0 |
| | | -------------------------- | |
| (=) Market Value: | = | $1,180,239 | |
| (–) Productivity Loss: | – | $0 | |
| | | -------------------------- | |
| (=) Subtotal: | = | $1,180,239 | |
| (+) Senior Appraised Value: | + | $0 | |
| (+) Non-Senior Appraised Value: | + | $1,180,239 | |
| | | -------------------------- | |
| (=) Total Appraised Value: | = | $1,180,239 | |
| (–) Senior Exemption Loss: | – | $0 | |
| (–) Exemption Loss: | – | $0 | |
| | | -------------------------- | |
| (=) Taxable Value: | = | $1,180,239 | |
Taxing Jurisdiction
| Owner: | FROMME, SCOTT W | | |
| % Ownership: | 100.0000000000% | | |
| Total Value: | $1,180,239 | | |
| Tax Area: | 110 - APPRAISER-OH Schl Dist, outside OH, improved & 1 acre or less |
| CF | Conservation Futures | 0.0316035091 | $1,180,239 | $1,180,239 | $37.30 | | |
| CEM1 | Cemetery #1 | 0.0040320932 | $1,180,239 | $1,180,239 | $4.76 | | |
| FIRE2 | Fire & Rescue Dist #2 N Whidbey GEN | 0.5475949600 | $1,180,239 | $1,180,239 | $646.29 | | |
| HOBOND | Hospital BOND | 0.1910887512 | $1,180,239 | $1,180,239 | $225.53 | | |
| HOGEN | Hospital GEN | 0.3902502903 | $1,180,239 | $1,180,239 | $460.59 | | |
| CE | County Current Expense | 0.3708482477 | $1,180,239 | $1,180,239 | $437.69 | | |
| CR | County Roads | 0.4584763726 | $1,180,239 | $1,180,239 | $541.11 | | |
| ISLANDEMS | Hospital GEN (EMS) | 0.5000000000 | $1,180,239 | $1,180,239 | $590.12 | | |
| LIB | Library Sno-Isle GEN | 0.3153421757 | $1,180,239 | $1,180,239 | $372.18 | | |
| NWHIDPRMT | P & R N Whidbey GEN | 0.2004466701 | $1,180,239 | $1,180,239 | $236.57 | | |
| SCH201MO | School 201 Enrichment | 1.8559231640 | $1,180,239 | $1,180,239 | $2,190.43 | | |
| ST | State School | 1.3035497053 | $1,180,239 | $1,180,239 | $1,538.50 | | |
| ST2 | State School Part 2 | 0.8169543533 | $1,180,239 | $1,180,239 | $964.20 | | |
| | Total Tax Rate: | 6.9861102925 | | | | | |
| | | | | Taxes w/Current Exemptions: | $8,245.27 | | |
| | | | | Taxes w/o Exemptions: | $8,245.27 | | |
Improvement / Building
| Improvement #1: | RESIDENTIAL | State Code: | Y | 4715.8 sqft | Value: | $854,219 |
| Bathrooms: | 2.5 | Bedrooms: | 3 | | Ceiling: | DRYWALL PAINTED | Exterior Wall/Cover: | CEMENT FIBER | | Floor Covering: | HARDWOOD/CARP 60-40 | Floor Structure: | WOOD W/SUBFLOOR | | Foundation: | CONCRETE BLOCKS | Heating: | WALL HEAT ELECTRIC | | Interior Finish: | DRYWALL PAINT | Plumbing Fixture Cnt: | 14 | | Roof Slope: | 6" IN 12" | Roof Structure/Cover: | CJ ASPHALT |
|
| | Type | Description | Class CD | Sub Class CD | Year Built | Area |
| | BAS | BASE/MAIN FLOOR | 4 | 0 | 1913 | 1891.8 |
| | UPS | UPPER STORY | 4 | 0 | 1913 | 2016.0 |
| | OP3 | OPEN PORCH W/ROOF | 4 | 0 | 1913 | 462.0 |
| | BIG | BUILT IN GARAGE | 4 | 0 | 1913 | 672.8 |
| | BIG | BUILT IN GARAGE | 4 | 0 | 1913 | 832.0 |
| | OWP | OPEN WOOD PORCH W/STEPS | 4 | 0 | 1913 | 738.5 |
| | DWN | DOWNSTAIRS LIVING AREA | 4 | 0 | 1913 | 808.0 |
| | oCB2 | CABIN FIN | 4 | 0 | 1913 | 0.0 |
| | oCB2 | CABIN FIN | 4 | 0 | 1913 | 0.0 |
| | ENP | ENCLOSED PORCH | 4 | 0 | 1913 | 534.2 |
| | OWR | OPEN WOOD PORCH W/STEPS/ROOF | 4 | 0 | 1913 | 252.0 |
| | OWP | OPEN WOOD PORCH W/STEPS | 4 | 0 | 1913 | 216.0 |
| | OWR | OPEN WOOD PORCH W/STEPS/ROOF | 4 | 0 | 1913 | 247.0 |
| | oDOC | MARINA | 4 | | 1913 | 0.0 |
Sketch
Property Image
Land
| 1 | MB | MEDIUM BANK | 0.7200 | 31363.20 | 100.00 | 0.00 | 1.00 | $325,000 | $0 |
| 2 | 55 | TIDES | 0.0000 | 0.00 | 102.00 | 0.00 | 1.00 | $1,020 | $0 |
Roll Value History
| 2026 | N/A | N/A | N/A | N/A | N/A |
| 2025 | $854,219 | $326,020 | $0 | $1,180,239 | $1,180,239 |
| 2024 | $861,638 | $326,020 | $0 | $1,187,658 | $1,187,658 |
| 2023 | $868,130 | $301,020 | $0 | $1,169,150 | $1,169,150 |
| 2022 | $769,079 | $301,020 | $0 | $1,070,099 | $1,070,099 |
| 2021 | $676,791 | $201,020 | $0 | $877,811 | $877,811 |
| 2020 | $660,317 | $201,020 | $0 | $861,337 | $861,337 |
| 2019 | $571,093 | $251,020 | $0 | $822,113 | $822,113 |
| 2018 | $572,589 | $201,020 | $0 | $773,609 | $773,609 |
| 2017 | $575,577 | $201,020 | $0 | $776,597 | $776,597 |
| 2016 | $470,737 | $201,020 | $0 | $671,757 | $671,757 |
| 2015 | $474,633 | $201,020 | $0 | $675,653 | $675,653 |
| 2014 | $479,334 | $201,020 | $0 | $680,354 | $680,354 |
| 2013 | $484,036 | $234,036 | $0 | $718,072 | $718,072 |
| 2012 | $209,598 | $234,036 | $0 | $443,634 | $443,634 |
| 2011 | $145,045 | $234,036 | $0 | $379,081 | $379,081 |
| 2010 | $61,047 | $234,036 | $0 | $295,083 | $295,083 |
| 2009 | $93,650 | $229,395 | $0 | $323,045 | $323,045 |
| 2008 | $141,649 | $229,395 | $0 | $371,044 | $371,044 |
| 2007 | $144,088 | $228,681 | $0 | $372,769 | $372,769 |
Deed and Sales History
| 1 | 05/23/2008 | WD | Warranty Deed | TERRY, VERN L | FROMME, SCOTT W | | | $747,000.00 | 81527 | 4230716 |
|   | |
| 2 | 05/01/1982 | WD | Warranty Deed | JACKSON, MILES W | TERRY, VERNON L | | | $70,000.00 | 21207 | 396567 |
| 3 | 01/01/1900 | OTHER | Other - Misc. Documents | Unknown | JACKSON, MILES W | | | $0.00 | 0 | 0 |
Payout Agreement
| No payout information available.. |