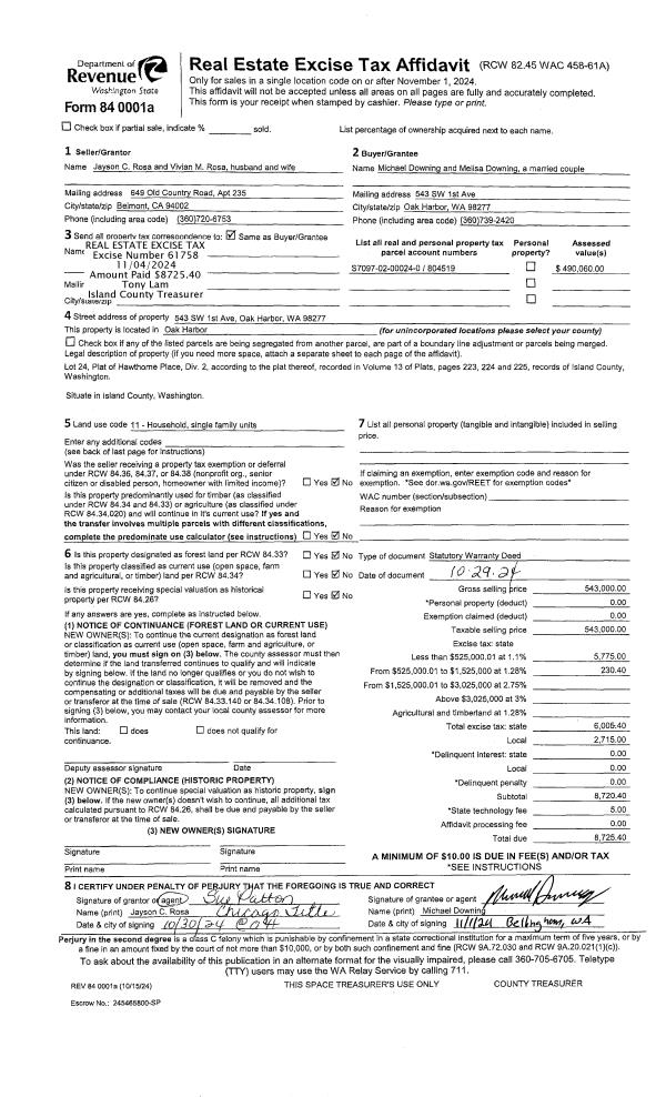
Property
Account |
| Property ID: | 452673 | Abbreviated Legal Description: | 1967 MARLETTE 10X52 VIN# H255CD60722 TPO @05600 TO K-520289 BK FR K-520289 |
| Geographic ID: | M915000000000 | Agent Code: | |
| Type: | Mobile Home | | |
| Tax Area: | 100 - APPRAISER-OH Schl Dist, in OH | Land Use Code | 11 |
| Open Space: | N | DFL | N |
| Historic Property: | N | Remodel Property: | N |
| Multi-Family Redevelopment: | N | | |
| Township: | | Section: | |
| Range: | |
Location |
| Address: | 820 N OAK HARBOR ST # 17 OAK HARBOR, WA 98277 | Mapsco: | |
| Neighborhood: | Cycle 1 | Map ID: | |
| Neighborhood CD: | 1 |
Owner |
| Name: | MCGHEE, RONALD D | Owner ID: | 184221 |
| Mailing Address: | 2768 SUN VISTA CIRCLE CLINTON, WA 98236-9118 | % Ownership: | 100.0000000000% |
| | | Exemptions: | |
Taxes and Assessment Details
Values
| (+) Improvement Homesite Value: | + | $0 | |
| (+) Improvement Non-Homesite Value: | + | $4,887 | |
| (+) Land Homesite Value: | + | $0 | |
| (+) Land Non-Homesite Value: | + | $0 | |
| (+) Curr Use (HS): | + | $0 | $0 |
| (+) Curr Use (NHS): | + | $0 | $0 |
| | | -------------------------- | |
| (=) Market Value: | = | $4,887 | |
| (–) Productivity Loss: | – | $0 | |
| | | -------------------------- | |
| (=) Subtotal: | = | $4,887 | |
| (+) Senior Appraised Value: | + | $0 | |
| (+) Non-Senior Appraised Value: | + | $4,887 | |
| | | -------------------------- | |
| (=) Total Appraised Value: | = | $4,887 | |
| (–) Senior Exemption Loss: | – | $0 | |
| (–) Exemption Loss: | – | $0 | |
| | | -------------------------- | |
| (=) Taxable Value: | = | $4,887 | |
Taxing Jurisdiction
| Owner: | MCGHEE, RONALD D | | |
| % Ownership: | 100.0000000000% | | |
| Total Value: | $4,887 | | |
| Tax Area: | 100 - APPRAISER-OH Schl Dist, in OH |
| CF | Conservation Futures | 0.0316035091 | $4,887 | $4,887 | $0.15 | | |
| CEM1 | Cemetery #1 | 0.0040320932 | $4,887 | $4,887 | $0.02 | | |
| COH | City of Oak Harbor | 2.3001546061 | $4,887 | $4,887 | $11.24 | | |
| OAKBOND | City of Oak Harbor BOND | 0.1926904192 | $4,887 | $4,887 | $0.94 | | |
| HOBOND | Hospital BOND | 0.1910887512 | $4,887 | $4,887 | $0.93 | | |
| HOGEN | Hospital GEN | 0.3902502903 | $4,887 | $4,887 | $1.91 | | |
| CE | County Current Expense | 0.3708482477 | $4,887 | $4,887 | $1.81 | | |
| ISLANDEMS | Hospital GEN (EMS) | 0.5000000000 | $4,887 | $4,887 | $2.44 | | |
| LIB | Library Sno-Isle GEN | 0.3153421757 | $4,887 | $4,887 | $1.54 | | |
| NWHIDPRMT | P & R N Whidbey GEN | 0.2004466701 | $4,887 | $4,887 | $0.98 | | |
| SCH201MO | School 201 Enrichment | 1.8559231640 | $4,887 | $4,887 | $9.07 | | |
| ST | State School | 1.3035497053 | $4,887 | $4,887 | $6.37 | | |
| ST2 | State School Part 2 | 0.8169543533 | $4,887 | $4,887 | $3.99 | | |
| | Total Tax Rate: | 8.4728839852 | | | | | |
| | | | | Taxes w/Current Exemptions: | $41.39 | | |
| | | | | Taxes w/o Exemptions: | $41.39 | | |
Improvement / Building
| Improvement #1: | MANUFACTURED HOME | State Code: | Y | 520.0 sqft | Value: | $4,887 |
| Bathrooms: | 0 | Bedrooms: | 0 | | Ceiling: | PLASTER PAINTED | Cooling: | EVAP NO DUCT | | Exterior Wall/Cover: | VINYL | Floor Covering: | CARPET 100% | | Floor Structure: | SLAB ON GRADE | Foundation: | SLAB | | Heating: | FHA ELECTRIC | Interior Finish: | PLASTER | | Plumbing Fixture Cnt: | 1 | Roof Slope: | FLAT | | Roof Structure/Cover: | CJ ALUMINIUM HEAVY |   |   |
|
Sketch
Property Image
Land
No land segments exist for this property.
Roll Value History
| 2026 | N/A | N/A | N/A | N/A | N/A |
| 2025 | $4,887 | $0 | $0 | $4,887 | $4,887 |
| 2024 | $4,887 | $0 | $0 | $4,887 | $4,887 |
| 2023 | $3,612 | $0 | $0 | $3,612 | $3,612 |
| 2022 | $3,271 | $0 | $0 | $3,271 | $3,271 |
| 2021 | $2,844 | $0 | $0 | $2,844 | $2,844 |
| 2020 | $2,761 | $0 | $0 | $2,761 | $2,761 |
| 2019 | $2,175 | $0 | $0 | $2,175 | $2,175 |
| 2018 | $2,175 | $0 | $0 | $2,175 | $2,175 |
| 2017 | $2,708 | $0 | $0 | $2,708 | $2,708 |
| 2016 | $2,708 | $0 | $0 | $2,708 | $2,708 |
| 2015 | $2,708 | $0 | $0 | $2,708 | $2,708 |
| 2014 | $2,708 | $0 | $0 | $2,708 | $2,708 |
| 2013 | $2,708 | $0 | $0 | $2,708 | $2,708 |
| 2012 | $2,708 | $0 | $0 | $2,708 | $2,708 |
| 2011 | $4,202 | $0 | $0 | $4,202 | $4,202 |
| 2010 | $7,184 | $0 | $0 | $7,184 | $7,184 |
| 2009 | $7,327 | $0 | $0 | $7,327 | $7,327 |
| 2008 | $7,327 | $0 | $0 | $7,327 | $7,327 |
| 2007 | $7,327 | $0 | $0 | $7,327 | $7,327 |
Deed and Sales History
| 1 | 10/20/2000 | OTHER | Other - Misc. Documents | Unknown | MCGHEE, RONALD D | | | $6,000.00 | 4013 | 0 |
| 2 | 10/01/1997 | REC | Real Estate Contract | REINSTRA, HELEN A | TULLER, PATTY / | | | $0.00 | 73757 | 0 |
| 3 | 01/01/1982 | OTHER | Other - Misc. Documents | HOFFELT, JOHN | REINSTRA, HELEN A | | | $4,500.00 | 20025 | 0 |
| 4 | 02/01/1980 | OTHER | Other - Misc. Documents | ADAMS, WALTER C | HOFFELT, JOHN | | | $0.00 | 68400000 | 0 |
| 5 | 02/01/1980 | OTHER | Other - Misc. Documents | HOFFELT, JOHN | HOFFELT, JOHN | | | $4,100.00 | 684 | 0 |
| 6 | 01/01/1900 | OTHER | Other - Misc. Documents | MCGHEE, RONALD D | ADAMS, WALTER C | | | $0.00 | 0 | 0 |
Payout Agreement
| No payout information available.. |