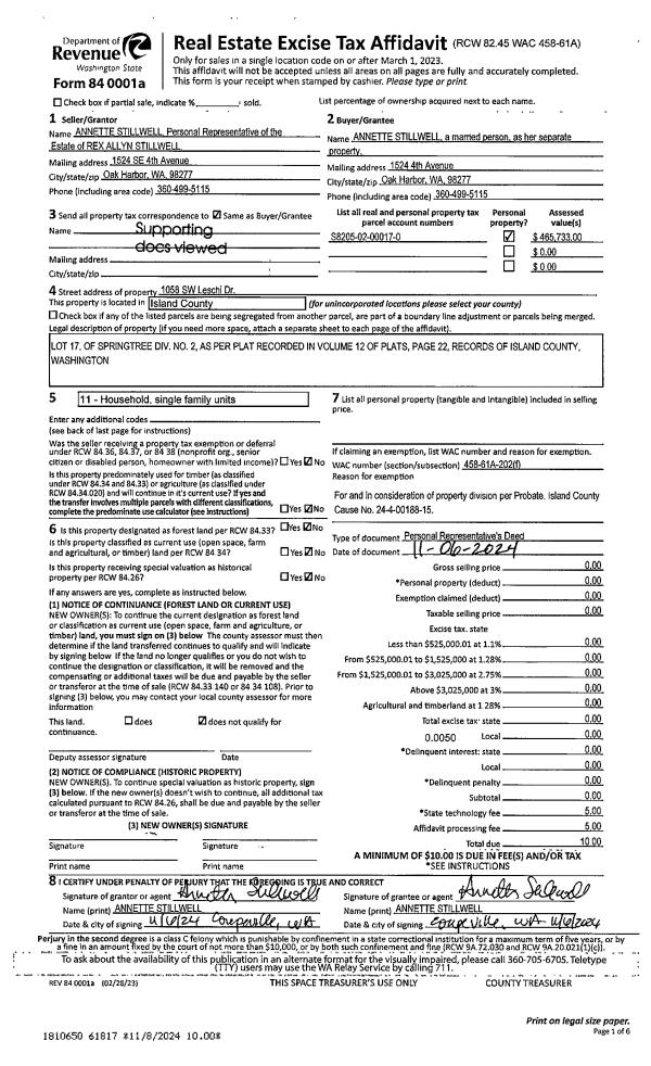
Property
Account |
| Property ID: | 45285 | Abbreviated Legal Description: | 71 - BG W CR L-6 COR BAY HTS 1 N25*E294' TPB N64*W95 N25*E45' S64*E95' S25*W45' TPB TR D 29M573 THUSEN'S PK |
| Geographic ID: | R13436-517-2820 | Agent Code: | |
| Type: | Real | | |
| Tax Area: | 110 - APPRAISER-OH Schl Dist, outside OH, improved & 1 acre or less | Land Use Code | 11 |
| Open Space: | N | DFL | N |
| Historic Property: | N | Remodel Property: | N |
| Multi-Family Redevelopment: | N | | |
| Township: | 34 | Section: | 36 |
| Range: | R1 |
Location |
| Address: | 199 CORNET BAY RD OAK HARBOR, WA 98277 | Mapsco: | |
| Neighborhood: | Cycle 6 | Map ID: | 280 |
| Neighborhood CD: | 6 |
Owner |
| Name: | COWAN, DONALD R | Owner ID: | 311089 |
| Mailing Address: | CAROLYN J COWAN 29860 MARINEM VIEW DR SW FEDERAL WAY, WA 98023 | % Ownership: | 100.0000000000% |
| | | Exemptions: | |
Taxes and Assessment Details
Values
| (+) Improvement Homesite Value: | + | $0 | |
| (+) Improvement Non-Homesite Value: | + | $49,732 | |
| (+) Land Homesite Value: | + | $0 | |
| (+) Land Non-Homesite Value: | + | $110,000 | |
| (+) Curr Use (HS): | + | $0 | $0 |
| (+) Curr Use (NHS): | + | $0 | $0 |
| | | -------------------------- | |
| (=) Market Value: | = | $159,732 | |
| (–) Productivity Loss: | – | $0 | |
| | | -------------------------- | |
| (=) Subtotal: | = | $159,732 | |
| (+) Senior Appraised Value: | + | $0 | |
| (+) Non-Senior Appraised Value: | + | $159,732 | |
| | | -------------------------- | |
| (=) Total Appraised Value: | = | $159,732 | |
| (–) Senior Exemption Loss: | – | $0 | |
| (–) Exemption Loss: | – | $0 | |
| | | -------------------------- | |
| (=) Taxable Value: | = | $159,732 | |
Taxing Jurisdiction
| Owner: | COWAN, DONALD R | | |
| % Ownership: | 100.0000000000% | | |
| Total Value: | $159,732 | | |
| Tax Area: | 110 - APPRAISER-OH Schl Dist, outside OH, improved & 1 acre or less |
| CF | Conservation Futures | 0.0316035091 | $159,732 | $159,732 | $5.05 | | |
| CEM1 | Cemetery #1 | 0.0040320932 | $159,732 | $159,732 | $0.64 | | |
| FIRE2 | Fire & Rescue Dist #2 N Whidbey GEN | 0.5475949600 | $159,732 | $159,732 | $87.47 | | |
| HOBOND | Hospital BOND | 0.1910887512 | $159,732 | $159,732 | $30.52 | | |
| HOGEN | Hospital GEN | 0.3902502903 | $159,732 | $159,732 | $62.34 | | |
| CE | County Current Expense | 0.3708482477 | $159,732 | $159,732 | $59.24 | | |
| CR | County Roads | 0.4584763726 | $159,732 | $159,732 | $73.23 | | |
| ISLANDEMS | Hospital GEN (EMS) | 0.5000000000 | $159,732 | $159,732 | $79.87 | | |
| LIB | Library Sno-Isle GEN | 0.3153421757 | $159,732 | $159,732 | $50.37 | | |
| NWHIDPRMT | P & R N Whidbey GEN | 0.2004466701 | $159,732 | $159,732 | $32.02 | | |
| SCH201MO | School 201 Enrichment | 1.8559231640 | $159,732 | $159,732 | $296.45 | | |
| ST | State School | 1.3035497053 | $159,732 | $159,732 | $208.22 | | |
| ST2 | State School Part 2 | 0.8169543533 | $159,732 | $159,732 | $130.49 | | |
| | Total Tax Rate: | 6.9861102925 | | | | | |
| | | | | Taxes w/Current Exemptions: | $1,115.91 | | |
| | | | | Taxes w/o Exemptions: | $1,115.91 | | |
Improvement / Building
| Improvement #1: | RESIDENTIAL | State Code: | Y | 396.0 sqft | Value: | $49,732 |
| Bathrooms: | 1 | Bedrooms: | 1 | | Ceiling: | DRYWALL PAINTED | Exterior Wall/Cover: | PLY/HARDBOARD T-111 | | Floor Covering: | VINYL 100% | Floor Structure: | SLAB ON GRADE | | Foundation: | SLAB | Heating: | FLOOR/WALL GAS | | Interior Finish: | DRYWALL PAINT | Plumbing Fixture Cnt: | 5 | | Roof Slope: | 3" IN 12" | Roof Structure/Cover: | CJ COMP ROLL |
|
Sketch
Property Image
Land
| 1 | 12 | SQ (00000-06000) | 0.0000 | 0.00 | 0.00 | 0.00 | 1.00 | $110,000 | $0 |
Roll Value History
| 2026 | N/A | N/A | N/A | N/A | N/A |
| 2025 | $49,732 | $110,000 | $0 | $159,732 | $159,732 |
| 2024 | $50,450 | $110,000 | $0 | $160,450 | $160,450 |
| 2023 | $51,168 | $110,000 | $0 | $161,168 | $161,168 |
| 2022 | $46,335 | $100,000 | $0 | $146,335 | $146,335 |
| 2021 | $40,864 | $70,000 | $0 | $110,864 | $110,864 |
| 2020 | $39,704 | $70,000 | $0 | $109,704 | $109,704 |
| 2019 | $28,058 | $70,000 | $0 | $98,058 | $98,058 |
| 2018 | $28,154 | $70,000 | $0 | $98,154 | $98,154 |
| 2017 | $28,346 | $70,000 | $0 | $98,346 | $98,346 |
| 2016 | $17,148 | $70,000 | $0 | $87,148 | $87,148 |
| 2015 | $17,499 | $55,000 | $0 | $72,499 | $72,499 |
| 2014 | $17,848 | $55,000 | $0 | $72,848 | $72,848 |
| 2013 | $18,198 | $15,300 | $0 | $33,498 | $33,498 |
| 2012 | $18,548 | $15,300 | $0 | $33,848 | $33,848 |
| 2011 | $18,898 | $18,000 | $0 | $36,898 | $36,898 |
| 2010 | $24,157 | $18,000 | $0 | $42,157 | $42,157 |
| 2009 | $25,323 | $18,035 | $0 | $43,358 | $43,358 |
| 2008 | $25,810 | $18,035 | $0 | $43,845 | $43,845 |
| 2007 | $26,273 | $18,035 | $0 | $44,308 | $44,308 |
Deed and Sales History
| 1 | 12/13/2023 | QCD | Quit Claim Deed | COWAN, DONALD R | COWAN, DONALD R | | | $0.00 | 58919 | 4568226 |
| 2 | 05/01/2006 | PRD | Personal Representatives Deed | COWAN, MARY K | COWAN, DONALD R | | | $0.00 | 62019 | 4169772 |
| 3 | 08/01/1994 | OTHER | Other - Misc. Documents | COWAN, EDWIN R | COWAN, MARY K | | | $0.00 | 66005 | 0 |
| 4 | 01/01/1900 | OTHER | Other - Misc. Documents | Unknown | COWAN, EDWIN R | | | $0.00 | 0 | 0 |
Payout Agreement
| No payout information available.. |