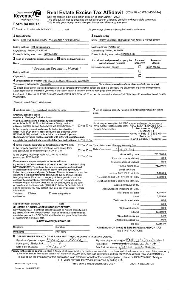
Property
Account |
| Property ID: | 453128 | Abbreviated Legal Description: | 1976 PACIFICA 24X60 VIN NO 24FCE1397 |
| Geographic ID: | M911000000770 | Agent Code: | |
| Type: | Mobile Home | | |
| Tax Area: | 100 - APPRAISER-OH Schl Dist, in OH | Land Use Code | 11 |
| Open Space: | N | DFL | N |
| Historic Property: | N | Remodel Property: | N |
| Multi-Family Redevelopment: | N | | |
| Township: | | Section: | |
| Range: | |
Location |
| Address: | 700 NW CROSBY AVE # 77 OAK HARBOR, WA 98277 | Mapsco: | |
| Neighborhood: | Cycle 1 | Map ID: | |
| Neighborhood CD: | 1 |
Owner |
| Name: | LOPEZ, ESTHER | Owner ID: | 315807 |
| Mailing Address: | 700 NW CROSBY AVE #77 OAK HARBOR, WA 98277 | % Ownership: | 100.0000000000% |
| | | Exemptions: | |
Taxes and Assessment Details
Values
| (+) Improvement Homesite Value: | + | $0 | |
| (+) Improvement Non-Homesite Value: | + | $23,420 | |
| (+) Land Homesite Value: | + | $0 | |
| (+) Land Non-Homesite Value: | + | $0 | |
| (+) Curr Use (HS): | + | $0 | $0 |
| (+) Curr Use (NHS): | + | $0 | $0 |
| | | -------------------------- | |
| (=) Market Value: | = | $23,420 | |
| (–) Productivity Loss: | – | $0 | |
| | | -------------------------- | |
| (=) Subtotal: | = | $23,420 | |
| (+) Senior Appraised Value: | + | $0 | |
| (+) Non-Senior Appraised Value: | + | $23,420 | |
| | | -------------------------- | |
| (=) Total Appraised Value: | = | $23,420 | |
| (–) Senior Exemption Loss: | – | $0 | |
| (–) Exemption Loss: | – | $0 | |
| | | -------------------------- | |
| (=) Taxable Value: | = | $23,420 | |
Taxing Jurisdiction
| Owner: | LOPEZ, ESTHER | | |
| % Ownership: | 100.0000000000% | | |
| Total Value: | $23,420 | | |
| Tax Area: | 100 - APPRAISER-OH Schl Dist, in OH |
| CF | Conservation Futures | 0.0316035091 | $23,420 | $23,420 | $0.74 | | |
| CEM1 | Cemetery #1 | 0.0040320932 | $23,420 | $23,420 | $0.09 | | |
| COH | City of Oak Harbor | 2.3001546061 | $23,420 | $23,420 | $53.87 | | |
| OAKBOND | City of Oak Harbor BOND | 0.1926904192 | $23,420 | $23,420 | $4.51 | | |
| HOBOND | Hospital BOND | 0.1910887512 | $23,420 | $23,420 | $4.48 | | |
| HOGEN | Hospital GEN | 0.3902502903 | $23,420 | $23,420 | $9.14 | | |
| CE | County Current Expense | 0.3708482477 | $23,420 | $23,420 | $8.69 | | |
| ISLANDEMS | Hospital GEN (EMS) | 0.5000000000 | $23,420 | $23,420 | $11.71 | | |
| LIB | Library Sno-Isle GEN | 0.3153421757 | $23,420 | $23,420 | $7.39 | | |
| NWHIDPRMT | P & R N Whidbey GEN | 0.2004466701 | $23,420 | $23,420 | $4.69 | | |
| SCH201MO | School 201 Enrichment | 1.8559231640 | $23,420 | $23,420 | $43.47 | | |
| ST | State School | 1.3035497053 | $23,420 | $23,420 | $30.53 | | |
| ST2 | State School Part 2 | 0.8169543533 | $23,420 | $23,420 | $19.13 | | |
| | Total Tax Rate: | 8.4728839852 | | | | | |
| | | | | Taxes w/Current Exemptions: | $198.44 | | |
| | | | | Taxes w/o Exemptions: | $198.44 | | |
Improvement / Building
| Improvement #1: | MANUFACTURED HOME | State Code: | Y | 1440.0 sqft | Value: | $23,420 |
| Bathrooms: | 0 | Bedrooms: | 0 | | Ceiling: | PLASTER PAINTED | Cooling: | EVAP NO DUCT | | Exterior Wall/Cover: | VINYL | Floor Covering: | CARPET 100% | | Floor Structure: | SLAB ON GRADE | Foundation: | SLAB | | Heating: | FHA ELECTRIC | Interior Finish: | PLASTER | | Plumbing Fixture Cnt: | 1 | Roof Slope: | FLAT | | Roof Structure/Cover: | CJ ALUMINIUM HEAVY |   |   |
|
Sketch
Property Image
Land
No land segments exist for this property.
Roll Value History
| 2026 | N/A | N/A | N/A | N/A | N/A |
| 2025 | $23,420 | $0 | $0 | $23,420 | $23,420 |
| 2024 | $25,762 | $0 | $0 | $25,762 | $25,762 |
| 2023 | $19,907 | $0 | $0 | $19,907 | $19,907 |
| 2022 | $19,827 | $0 | $0 | $19,827 | $19,827 |
| 2021 | $18,809 | $0 | $0 | $18,809 | $18,809 |
| 2020 | $19,021 | $0 | $0 | $19,021 | $19,021 |
| 2019 | $16,180 | $0 | $0 | $16,180 | $16,180 |
| 2018 | $16,779 | $0 | $0 | $16,779 | $16,779 |
| 2017 | $10,690 | $0 | $0 | $10,690 | $10,690 |
| 2016 | $11,086 | $0 | $0 | $11,086 | $11,086 |
| 2015 | $11,878 | $0 | $0 | $11,878 | $11,878 |
| 2014 | $12,274 | $0 | $0 | $12,274 | $12,274 |
| 2013 | $13,066 | $0 | $0 | $13,066 | $13,066 |
| 2012 | $13,858 | $0 | $0 | $13,858 | $13,858 |
| 2011 | $16,575 | $0 | $0 | $16,575 | $16,575 |
| 2010 | $17,932 | $0 | $0 | $17,932 | $17,932 |
| 2009 | $21,746 | $0 | $0 | $21,746 | $21,746 |
| 2008 | $21,786 | $0 | $0 | $21,786 | $21,786 |
| 2007 | $22,353 | $0 | $0 | $22,353 | $22,353 |
Deed and Sales History
| 1 | 02/28/2025 | MANHOME | Manufactured Home | BABBITT JTWROS, EDITH P | LOPEZ, ESTHER | | | $38,000.00 | 62828 | |
| 2 | 07/19/2019 | MANHOME | Manufactured Home | BABBITT, EDITH P | BABBITT JTWROS, EDITH P | | | $0.00 | 39479 | |
| 3 | 06/26/2013 | OTHER | Other - Misc. Documents | BABBITT, ROBERT E | BABBITT, EDITH P | | | $0.00 | 11776 | |
| 4 | 01/01/1900 | OTHER | Other - Misc. Documents | Unknown | BABBITT, ROBERT E | | | $0.00 | 0 | 0 |
Payout Agreement
| No payout information available.. |