Property
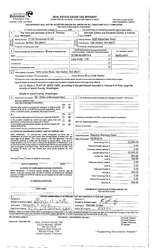
Account |
| Property ID: | 45472 | Abbreviated Legal Description: | BG SWCR SW SW N795.87' TPB N265.29' S89*E818.46' S265 .29' N89*W818.46' TPB TGW & SUBJ EZ |
| Geographic ID: | R22901-097-0410 | Agent Code: | |
| Type: | Real | | |
| Tax Area: | 712 - APPRAISER-S Whid Schl Dist, outside Langley, improved, greater than 1 acre | Land Use Code | 11 |
| Open Space: | N | DFL | N |
| Historic Property: | N | Remodel Property: | N |
| Multi-Family Redevelopment: | N | | |
| Township: | 29 | Section: | 01 |
| Range: | R2 |
Location |
| Address: | 5126 BLACKTAIL LN LANGLEY, WA 98260 | Mapsco: | |
| Neighborhood: | Cycle 3 | Map ID: | 281 |
| Neighborhood CD: | 3 |
Owner |
| Name: | VALDEZ, BILL | Owner ID: | 290203 |
| Mailing Address: | JENNIFER VALDEZ 5126 BLACKTAIL LN LANGLEY, WA 98260 | % Ownership: | 100.0000000000% |
| | | Exemptions: | |
Taxes and Assessment Details
Values
| (+) Improvement Homesite Value: | + | $0 | |
| (+) Improvement Non-Homesite Value: | + | $22,737 | |
| (+) Land Homesite Value: | + | $0 | |
| (+) Land Non-Homesite Value: | + | $370,000 | |
| (+) Curr Use (HS): | + | $0 | $0 |
| (+) Curr Use (NHS): | + | $0 | $0 |
| | | -------------------------- | |
| (=) Market Value: | = | $392,737 | |
| (–) Productivity Loss: | – | $0 | |
| | | -------------------------- | |
| (=) Subtotal: | = | $392,737 | |
| (+) Senior Appraised Value: | + | $0 | |
| (+) Non-Senior Appraised Value: | + | $392,737 | |
| | | -------------------------- | |
| (=) Total Appraised Value: | = | $392,737 | |
| (–) Senior Exemption Loss: | – | $0 | |
| (–) Exemption Loss: | – | $0 | |
| | | -------------------------- | |
| (=) Taxable Value: | = | $392,737 | |
Taxing Jurisdiction
| Owner: | VALDEZ, BILL | | |
| % Ownership: | 100.0000000000% | | |
| Total Value: | $392,737 | | |
| Tax Area: | 712 - APPRAISER-S Whid Schl Dist, outside Langley, improved, greater than 1 acre |
| CF | Conservation Futures | 0.0316035091 | $392,737 | $392,737 | $12.41 | | |
| FIRE3 | Fire & Rescue Dist #3 S Whidbey GEN | 1.2004855531 | $392,737 | $392,737 | $471.48 | | |
| HOBOND | Hospital BOND | 0.1910887512 | $392,737 | $392,737 | $75.05 | | |
| HOGEN | Hospital GEN | 0.3902502903 | $392,737 | $392,737 | $153.27 | | |
| CE | County Current Expense | 0.3708482477 | $392,737 | $392,737 | $145.65 | | |
| CR | County Roads | 0.4584763726 | $392,737 | $392,737 | $180.06 | | |
| ISLANDEMS | Hospital GEN (EMS) | 0.5000000000 | $392,737 | $392,737 | $196.37 | | |
| LIB | Library Sno-Isle GEN | 0.3153421757 | $392,737 | $392,737 | $123.85 | | |
| PORTWHID | Port of S Whidbey GEN | 0.1094540357 | $392,737 | $392,737 | $42.99 | | |
| SCH206BOND | School 206 BOND | 0.3161759235 | $392,737 | $392,737 | $124.17 | | |
| SCH206MO | School 206 Enrichment | 0.4547169547 | $392,737 | $392,737 | $178.58 | | |
| ST | State School | 1.3035497053 | $392,737 | $392,737 | $511.95 | | |
| ST2 | State School Part 2 | 0.8169543533 | $392,737 | $392,737 | $320.85 | | |
| SWHIDPRBD | P & R S Whidbey BOND | 0.0152817568 | $392,737 | $392,737 | $6.00 | | |
| SWHIDPRBD2 | P & R S Whidbey BOND2 | 0.0138911264 | $392,737 | $392,737 | $5.46 | | |
| SWHIDPRMT | P & R S Whidbey GEN | 0.2053334452 | $392,737 | $392,737 | $80.64 | | |
| | Total Tax Rate: | 6.6934522006 | | | | | |
| | | | | Taxes w/Current Exemptions: | $2,628.78 | | |
| | | | | Taxes w/o Exemptions: | $2,628.78 | | |
Improvement / Building
| Improvement #1: | MANUFACTURED HOME | State Code: | Y | 889.2 sqft | Value: | $22,737 |
| Bathrooms: | 1 | Bedrooms: | 2 | | Ceiling: | PLASTER PAINTED | Cooling: | EVAP NO DUCT | | Exterior Wall/Cover: | VINYL | Floor Covering: | CARPET 100% | | Floor Structure: | SLAB ON GRADE | Foundation: | SLAB | | Heating: | FHA ELECTRIC | Interior Finish: | PLASTER | | Plumbing Fixture Cnt: | 1 | Roof Slope: | FLAT | | Roof Structure/Cover: | CJ ALUMINIUM HEAVY |   |   |
|
| | Type | Description | Class CD | Sub Class CD | Year Built | Area |
| | BAS | BASE/MAIN FLOOR | 3 | 0 | 1984 | 889.2 |
| | oPOL | POLE BARN | 3 | 0 | 1984 | 0.0 |
Sketch
Property Image
Land
| 1 | 32 | AC (03.01-09.99) | 4.9800 | 0.00 | 0.00 | 0.00 | 1.00 | $370,000 | $0 |
Roll Value History
| 2026 | N/A | N/A | N/A | N/A | N/A |
| 2025 | $22,737 | $370,000 | $0 | $392,737 | $392,737 |
| 2024 | $23,533 | $350,000 | $0 | $373,533 | $373,533 |
| 2023 | $24,727 | $330,000 | $0 | $354,727 | $354,727 |
| 2022 | $24,019 | $280,000 | $0 | $304,019 | $304,019 |
| 2021 | $22,764 | $230,000 | $0 | $252,764 | $252,764 |
| 2020 | $22,988 | $190,000 | $0 | $212,988 | $212,988 |
| 2019 | $20,919 | $230,000 | $0 | $250,919 | $250,919 |
| 2018 | $21,288 | $210,000 | $0 | $231,288 | $231,288 |
| 2017 | $21,657 | $180,000 | $0 | $201,657 | $201,657 |
| 2016 | $22,026 | $165,000 | $0 | $187,026 | $187,026 |
| 2015 | $22,395 | $134,460 | $0 | $156,855 | $156,855 |
| 2014 | $22,764 | $134,460 | $0 | $157,224 | $157,224 |
| 2013 | $35,000 | $134,460 | $0 | $169,460 | $169,460 |
| 2012 | $35,177 | $134,460 | $0 | $169,637 | $169,637 |
| 2011 | $35,354 | $134,460 | $0 | $169,814 | $169,814 |
| 2010 | $30,633 | $134,460 | $0 | $165,093 | $165,093 |
| 2009 | $33,264 | $194,220 | $0 | $227,484 | $227,484 |
| 2008 | $34,166 | $224,100 | $0 | $258,266 | $258,266 |
| 2007 | $24,162 | $230,325 | $0 | $254,487 | $254,487 |
Deed and Sales History
| 1 | 06/03/2019 | WD | Warranty Deed | MAGEE, TRAVIS | VALDEZ, BILL | | | $245,900.00 | 38925 | 4465177 |
| 2 | 12/29/2016 | WD | Warranty Deed | HOGGARD, KEVIN | MAGEE, TRAVIS | | | $183,000.00 | 27609 | 4414559 |
| 3 | 09/19/2013 | WD | Warranty Deed | BURNS, JOHN CHRISTOPHER | HOGGARD, KEVIN | | | $150,000.00 | 13126 | 4349743 |
| 4 | 02/29/2008 | DECREE | Divorce Decree/Legal Separation | BURNS, JOHN C | BURNS, JOHN CHRISTOPHER | | | $0.00 | 80601 | 4223917 |
| 5 | 02/01/1998 | 5 | DNU - Marriage License/Name Change | BURNS, JOHN C | BURNS, JOHN C | | | $0.00 | 67777 | 0 |
| 6 | 01/01/1997 | OTHER | Other - Misc. Documents | BURNS, JOHN C | BURNS, JOHN C | | | $10,000.00 | 70243 | 0 |
| 7 | 07/01/1992 | WD | Warranty Deed | GABELEIN, GLADYS F | BURNS, JOHN C | | | $35,000.00 | 22778 | 92013585 |
| 8 | 12/01/1989 | EXECUTORD | Executor Deed | WARNOCK, ROBERT L | GABELEIN, GLADYS F | | | $0.00 | 95699 | 89018290 |
| 9 | 04/01/1984 | OTHER | Other - Misc. Documents | GABELEIN, EMIL A | WARNOCK, ROBERT L | | | $0.00 | 11111111 | 0 |
Payout Agreement
| No payout information available.. |