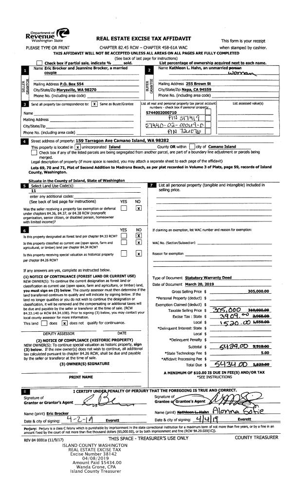
Property
Account |
| Property ID: | 455108 | Abbreviated Legal Description: | E/2 SW SE SE - FR 0754600 |
| Geographic ID: | R23019-044-4400 | Agent Code: | |
| Type: | Real | | |
| Tax Area: | 312 - APPRAISER-Cpvl Schl Dist, outside Cpvl, improved, greater than 1 acre | Land Use Code | 11 |
| Open Space: | N | DFL | N |
| Historic Property: | N | Remodel Property: | N |
| Multi-Family Redevelopment: | N | | |
| Township: | 30 | Section: | 19 |
| Range: | R2 |
Location |
| Address: | 342 WHITEWEBS LN GREENBANK, WA 98253 | Mapsco: | |
| Neighborhood: | Cycle 3 | Map ID: | 393 |
| Neighborhood CD: | 3 |
Owner |
| Name: | VORHIS JTWROS, LINDA | Owner ID: | 289321 |
| Mailing Address: | KATHY TRAVIS, JTWROS 342 WHITEWEBS LN GREENBANK, WA 98253 | % Ownership: | 100.0000000000% |
| | | Exemptions: | |
Taxes and Assessment Details
Values
| (+) Improvement Homesite Value: | + | $0 | |
| (+) Improvement Non-Homesite Value: | + | $288,074 | |
| (+) Land Homesite Value: | + | $0 | |
| (+) Land Non-Homesite Value: | + | $350,000 | |
| (+) Curr Use (HS): | + | $0 | $0 |
| (+) Curr Use (NHS): | + | $0 | $0 |
| | | -------------------------- | |
| (=) Market Value: | = | $638,074 | |
| (–) Productivity Loss: | – | $0 | |
| | | -------------------------- | |
| (=) Subtotal: | = | $638,074 | |
| (+) Senior Appraised Value: | + | $0 | |
| (+) Non-Senior Appraised Value: | + | $638,074 | |
| | | -------------------------- | |
| (=) Total Appraised Value: | = | $638,074 | |
| (–) Senior Exemption Loss: | – | $0 | |
| (–) Exemption Loss: | – | $0 | |
| | | -------------------------- | |
| (=) Taxable Value: | = | $638,074 | |
Taxing Jurisdiction
| Owner: | VORHIS JTWROS, LINDA | | |
| % Ownership: | 100.0000000000% | | |
| Total Value: | $638,074 | | |
| Tax Area: | 312 - APPRAISER-Cpvl Schl Dist, outside Cpvl, improved, greater than 1 acre |
| CF | Conservation Futures | 0.0316035091 | $638,074 | $638,074 | $20.17 | | |
| CEM2 | Cemetery #2 | 0.0095056933 | $638,074 | $638,074 | $6.07 | | |
| FIRE5 | Fire & Rescue Dist #5 C Whidbey GEN | 1.2008080668 | $638,074 | $638,074 | $766.20 | | |
| FIRE5BOND | Fire & Rescue Dist #5 C Whidbey BOND | 0.1400090713 | $638,074 | $638,074 | $89.34 | | |
| HOBOND | Hospital BOND | 0.1910887512 | $638,074 | $638,074 | $121.93 | | |
| HOGEN | Hospital GEN | 0.3902502903 | $638,074 | $638,074 | $249.01 | | |
| CE | County Current Expense | 0.3708482477 | $638,074 | $638,074 | $236.63 | | |
| CR | County Roads | 0.4584763726 | $638,074 | $638,074 | $292.54 | | |
| ISLANDEMS | Hospital GEN (EMS) | 0.5000000000 | $638,074 | $638,074 | $319.04 | | |
| LIB | Library Sno-Isle GEN | 0.3153421757 | $638,074 | $638,074 | $201.21 | | |
| LIBCAP | Library Sno-Isle BOND (Cap Fac Imp Area) | 0.0543427938 | $638,074 | $638,074 | $34.67 | | |
| POCOUP | Port of Coupeville GEN | 0.1093371703 | $638,074 | $638,074 | $69.77 | | |
| POCOUPIDD | Port of Coupeville IDD | 0.3409740022 | $638,074 | $638,074 | $217.57 | | |
| COUPSDTECH | School 204 CP (TECH) | 0.7545480007 | $638,074 | $638,074 | $481.46 | | |
| SCH204MO | School 204 Enrichment | 0.6716186034 | $638,074 | $638,074 | $428.54 | | |
| ST | State School | 1.3035497053 | $638,074 | $638,074 | $831.76 | | |
| ST2 | State School Part 2 | 0.8169543533 | $638,074 | $638,074 | $521.28 | | |
| | Total Tax Rate: | 7.6592568070 | | | | | |
| | | | | Taxes w/Current Exemptions: | $4,887.19 | | |
| | | | | Taxes w/o Exemptions: | $4,887.19 | | |
Improvement / Building
| Improvement #1: | RESIDENTIAL | State Code: | Y | 1815.0 sqft | Value: | $288,074 |
| Bathrooms: | 2 | Bedrooms: | 3 | | Ceiling: | DRY WALL SPRAYED | Cooling: | HEAT PUMP/CONV/V | | Exterior Wall/Cover: | CEMENT FIBER | Floor Covering: | COLORED CONCRETE | | Floor Structure: | SLAB ON GRADE | Foundation: | SLAB | | Interior Finish: | DRYWALL PAINT | Plumbing Fixture Cnt: | 12 | | Roof Slope: | 8" IN 12" | Roof Structure/Cover: | CJ ASPHALT |
|
| | Type | Description | Class CD | Sub Class CD | Year Built | Area |
| | BAS | BASE/MAIN FLOOR | 3 | 0 | 2015 | 1020.0 |
| | UPS | UPPER STORY | 3 | 0 | 2015 | 795.0 |
| | OP1 | OPEN PORCH SLAB | 3 | 0 | 2015 | 272.0 |
| | UTY | STORAGE/UTILITY | 3 | 0 | 2015 | 192.0 |
Sketch
Property Image
Land
| 1 | 32 | AC (03.01-09.99) | 5.0000 | 0.00 | 0.00 | 0.00 | 1.00 | $350,000 | $0 |
Roll Value History
| 2026 | N/A | N/A | N/A | N/A | N/A |
| 2025 | $288,074 | $350,000 | $0 | $638,074 | $638,074 |
| 2024 | $290,435 | $340,000 | $0 | $630,435 | $630,435 |
| 2023 | $292,797 | $320,000 | $0 | $612,797 | $612,797 |
| 2022 | $267,267 | $260,000 | $0 | $527,267 | $527,267 |
| 2021 | $234,265 | $230,000 | $0 | $464,265 | $464,265 |
| 2020 | $226,899 | $180,000 | $0 | $406,899 | $406,899 |
| 2019 | $165,923 | $220,000 | $0 | $385,923 | $385,923 |
| 2018 | $154,561 | $170,000 | $0 | $324,561 | $324,561 |
| 2017 | $146,060 | $160,000 | $0 | $306,060 | $306,060 |
| 2016 | $147,567 | $120,000 | $0 | $267,567 | $267,567 |
| 2015 | $4,000 | $130,000 | $0 | $134,000 | $134,000 |
| 2014 | $0 | $100,000 | $0 | $100,000 | $100,000 |
| 2013 | $0 | $95,000 | $0 | $95,000 | $95,000 |
| 2012 | $0 | $90,000 | $0 | $90,000 | $90,000 |
| 2011 | $0 | $90,000 | $0 | $90,000 | $90,000 |
| 2010 | $0 | $90,000 | $0 | $90,000 | $90,000 |
| 2009 | $0 | $155,000 | $0 | $155,000 | $155,000 |
| 2008 | $0 | $150,000 | $0 | $150,000 | $150,000 |
| 2007 | $0 | $130,000 | $0 | $130,000 | $130,000 |
Deed and Sales History
| 1 | 04/18/2019 | WD | Warranty Deed | MEAD, DAVID L | VORHIS JTWROS, LINDA | | | $491,600.00 | 38049 | 4461294 |
| 2 | 11/21/2014 | WD | Warranty Deed | POTTER, WILLIAM R | MEAD, DAVID L | | | $80,000.00 | 17840 | 4369925 |
| 3 | 11/01/1979 | CD | DNU - Correction Deed | SPINDLE, RAYMOND K | POTTER, WILLIAM R | | | $14,500.00 | 95677 | 362336 |
| 4 | 08/01/1979 | CD | DNU - Correction Deed | , | SPINDLE, RAYMOND K | | | $0.00 | 94152 | 357711 |
| 5 | 01/01/1900 | OTHER | Other - Misc. Documents | Unknown | , | | | $0.00 | 0 | 0 |
Payout Agreement
| No payout information available.. |