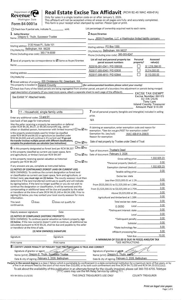
Property
Account |
| Property ID: | 456312 | Abbreviated Legal Description: | 1976 CANDLEWOOD 24X48 VIN# 4375 TPO @89352 |
| Geographic ID: | M910000000410 | Agent Code: | |
| Type: | Mobile Home | | |
| Tax Area: | 300 - APPRAISER-Cpvl Schl Dist, in Cpvl | Land Use Code | 11 |
| Open Space: | N | DFL | N |
| Historic Property: | N | Remodel Property: | N |
| Multi-Family Redevelopment: | N | | |
| Township: | | Section: | |
| Range: | |
Location |
| Address: | 701 S MAIN ST # 41 COUPEVILLE, WA 98239 | Mapsco: | |
| Neighborhood: | Cycle 2 | Map ID: | |
| Neighborhood CD: | 2 |
Owner |
| Name: | HOISETH JTWROS, JUDIE | Owner ID: | 312269 |
| Mailing Address: | PAMELA FALCONER JTWROS PO BOX 1353 LANGLEY, WA 98260 | % Ownership: | 100.0000000000% |
| | | Exemptions: | |
Taxes and Assessment Details
Values
| (+) Improvement Homesite Value: | + | $0 | |
| (+) Improvement Non-Homesite Value: | + | $79,963 | |
| (+) Land Homesite Value: | + | $0 | |
| (+) Land Non-Homesite Value: | + | $0 | |
| (+) Curr Use (HS): | + | $0 | $0 |
| (+) Curr Use (NHS): | + | $0 | $0 |
| | | -------------------------- | |
| (=) Market Value: | = | $79,963 | |
| (–) Productivity Loss: | – | $0 | |
| | | -------------------------- | |
| (=) Subtotal: | = | $79,963 | |
| (+) Senior Appraised Value: | + | $0 | |
| (+) Non-Senior Appraised Value: | + | $79,963 | |
| | | -------------------------- | |
| (=) Total Appraised Value: | = | $79,963 | |
| (–) Senior Exemption Loss: | – | $0 | |
| (–) Exemption Loss: | – | $0 | |
| | | -------------------------- | |
| (=) Taxable Value: | = | $79,963 | |
Taxing Jurisdiction
| Owner: | HOISETH JTWROS, JUDIE | | |
| % Ownership: | 100.0000000000% | | |
| Total Value: | $79,963 | | |
| Tax Area: | 300 - APPRAISER-Cpvl Schl Dist, in Cpvl |
| CF | Conservation Futures | 0.0316035091 | $79,963 | $79,963 | $2.53 | | |
| CEM2 | Cemetery #2 | 0.0095056933 | $79,963 | $79,963 | $0.76 | | |
| COUP | City: Town of Coupeville | 0.8426414490 | $79,963 | $79,963 | $67.38 | | |
| FIRE5 | Fire & Rescue Dist #5 C Whidbey GEN | 1.2008080668 | $79,963 | $79,963 | $96.02 | | |
| FIRE5BOND | Fire & Rescue Dist #5 C Whidbey BOND | 0.1400090713 | $79,963 | $79,963 | $11.20 | | |
| HOBOND | Hospital BOND | 0.1910887512 | $79,963 | $79,963 | $15.28 | | |
| HOGEN | Hospital GEN | 0.3902502903 | $79,963 | $79,963 | $31.21 | | |
| CE | County Current Expense | 0.3708482477 | $79,963 | $79,963 | $29.65 | | |
| ISLANDEMS | Hospital GEN (EMS) | 0.5000000000 | $79,963 | $79,963 | $39.98 | | |
| LIB | Library Sno-Isle GEN | 0.3153421757 | $79,963 | $79,963 | $25.22 | | |
| LIBCAP | Library Sno-Isle BOND (Cap Fac Imp Area) | 0.0543427938 | $79,963 | $79,963 | $4.35 | | |
| POCOUP | Port of Coupeville GEN | 0.1093371703 | $79,963 | $79,963 | $8.74 | | |
| POCOUPIDD | Port of Coupeville IDD | 0.3409740022 | $79,963 | $79,963 | $27.27 | | |
| COUPSDTECH | School 204 CP (TECH) | 0.7545480007 | $79,963 | $79,963 | $60.34 | | |
| SCH204MO | School 204 Enrichment | 0.6716186034 | $79,963 | $79,963 | $53.70 | | |
| ST | State School | 1.3035497053 | $79,963 | $79,963 | $104.24 | | |
| ST2 | State School Part 2 | 0.8169543533 | $79,963 | $79,963 | $65.33 | | |
| | Total Tax Rate: | 8.0434218834 | | | | | |
| | | | | Taxes w/Current Exemptions: | $643.20 | | |
| | | | | Taxes w/o Exemptions: | $643.20 | | |
Improvement / Building
| Improvement #1: | MANUFACTURED HOME | State Code: | Y | 1143.7 sqft | Value: | $79,963 |
| Bathrooms: | 0 | Bedrooms: | 0 | | Ceiling: | PLASTER PAINTED | Cooling: | EVAP NO DUCT | | Exterior Wall/Cover: | VINYL | Floor Covering: | CARPET 100% | | Floor Structure: | SLAB ON GRADE | Foundation: | SLAB | | Heating: | FHA ELECTRIC | Interior Finish: | PLASTER | | Plumbing Fixture Cnt: | 1 | Roof Slope: | FLAT | | Roof Structure/Cover: | CJ ALUMINIUM HEAVY |   |   |
|
Sketch
Property Image
Land
No land segments exist for this property.
Roll Value History
| 2026 | N/A | N/A | N/A | N/A | N/A |
| 2025 | $79,963 | $0 | $0 | $79,963 | $79,963 |
| 2024 | $95,535 | $0 | $0 | $95,535 | $95,535 |
| 2023 | $40,623 | $0 | $0 | $40,623 | $40,623 |
| 2022 | $38,721 | $0 | $0 | $38,721 | $38,721 |
| 2021 | $35,354 | $0 | $0 | $35,354 | $35,354 |
| 2020 | $35,955 | $0 | $0 | $35,955 | $35,955 |
| 2019 | $29,609 | $0 | $0 | $29,609 | $29,609 |
| 2018 | $17,568 | $0 | $0 | $17,568 | $17,568 |
| 2017 | $18,787 | $0 | $0 | $18,787 | $18,787 |
| 2016 | $19,397 | $0 | $0 | $19,397 | $19,397 |
| 2015 | $20,617 | $0 | $0 | $20,617 | $20,617 |
| 2014 | $21,226 | $0 | $0 | $21,226 | $21,226 |
| 2013 | $22,446 | $0 | $0 | $22,446 | $22,446 |
| 2012 | $26,676 | $0 | $0 | $26,676 | $26,676 |
| 2011 | $28,506 | $0 | $0 | $28,506 | $28,506 |
| 2010 | $28,607 | $0 | $0 | $28,607 | $28,607 |
| 2009 | $30,098 | $0 | $0 | $30,098 | $30,098 |
| 2008 | $30,902 | $0 | $0 | $30,902 | $30,902 |
| 2007 | $32,281 | $0 | $0 | $32,281 | $32,281 |
Deed and Sales History
| 1 | 12/09/2023 | MANHOME | Manufactured Home | HOISETH, JUDIE | HOISETH JTWROS, JUDIE | | | $0.00 | 59910 | |
| 2 | 12/04/2023 | MANHOME | Manufactured Home | GALLAGHER, JON | HOISETH, JUDIE | | | $75,000.00 | 58662 | |
| 3 | 12/04/2023 | MANHOME | Manufactured Home | GALLAGHER, WILLIAM M | GALLAGHER, JON | | | $0.00 | 58661 | |
| 4 | 07/12/2017 | MANHOME | Manufactured Home | BELLETTO, NANCY I | GALLAGHER, WILLIAM M | | | $37,000.00 | 30149 | |
| 5 | 03/01/1995 | OTHER | Other - Misc. Documents | WALKER, DOROTHY A | BELLETTO, NANCY I | | | $25,200.00 | 51022 | 0 |
| 6 | 06/01/1993 | OTHER | Other - Misc. Documents | GATES, ESTHER P | WALKER, DOROTHY A | | | $27,000.00 | 32433 | 0 |
| 7 | 09/01/1990 | OTHER | Other - Misc. Documents | CARLSON, AUSTIN E | GATES, ESTHER P | | | $28,000.00 | 5501 | 0 |
| 8 | 01/01/1900 | OTHER | Other - Misc. Documents | Unknown | CARLSON, AUSTIN E | | | $0.00 | 0 | 0 |
Payout Agreement
| No payout information available.. |