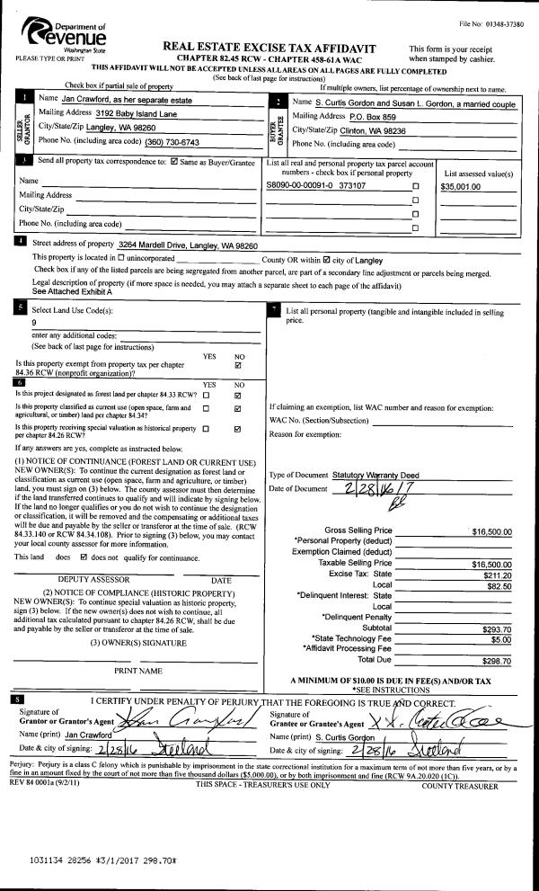
Property
Account |
| Property ID: | 456928 | Abbreviated Legal Description: | 1970 SPACEMASTER 24X57 VIN# 11250 TPO #93594 |
| Geographic ID: | M917500000690 | Agent Code: | |
| Type: | Mobile Home | | |
| Tax Area: | 100 - APPRAISER-OH Schl Dist, in OH | Land Use Code | 11 |
| Open Space: | N | DFL | N |
| Historic Property: | N | Remodel Property: | N |
| Multi-Family Redevelopment: | N | | |
| Township: | | Section: | |
| Range: | |
Location |
| Address: | 225 NE ERNST ST # 69 OAK HARBOR, WA 98277 | Mapsco: | |
| Neighborhood: | Cycle 1 | Map ID: | |
| Neighborhood CD: | 1 |
Owner |
| Name: | JONES, LELAH C | Owner ID: | 292845 |
| Mailing Address: | 225 NE ERNST ST #69 OAK HARBOR, WA 98277 | % Ownership: | 100.0000000000% |
| | | Exemptions: | SNR/DSBL |
Taxes and Assessment Details
Values
| (+) Improvement Homesite Value: | + | $33,119 | |
| (+) Improvement Non-Homesite Value: | + | $0 | |
| (+) Land Homesite Value: | + | $0 | |
| (+) Land Non-Homesite Value: | + | $0 | |
| (+) Curr Use (HS): | + | $0 | $0 |
| (+) Curr Use (NHS): | + | $0 | $0 |
| | | -------------------------- | |
| (=) Market Value: | = | $33,119 | |
| (–) Productivity Loss: | – | $0 | |
| | | -------------------------- | |
| (=) Subtotal: | = | $33,119 | |
| (+) Senior Appraised Value: | + | $21,669 | |
| (+) Non-Senior Appraised Value: | + | $0 | |
| | | -------------------------- | |
| (=) Total Appraised Value: | = | $21,669 | |
| (–) Senior Exemption Loss: | – | $21,669 | |
| (–) Exemption Loss: | – | $0 | |
| | | -------------------------- | |
| (=) Taxable Value: | = | $0 | |
Taxing Jurisdiction
| Owner: | JONES, LELAH C | | |
| % Ownership: | 100.0000000000% | | |
| Total Value: | $33,119 | | |
| Tax Area: | 100 - APPRAISER-OH Schl Dist, in OH |
| CF | Conservation Futures | 0.0316035091 | $33,119 | $0 | $0.00 | | |
| CEM1 | Cemetery #1 | 0.0040320932 | $33,119 | $0 | $0.00 | | |
| COH | City of Oak Harbor | 2.3001546061 | $33,119 | $0 | $0.00 | | |
| OAKBOND | City of Oak Harbor BOND | 0.1926904192 | $33,119 | $0 | $0.00 | | |
| HOBOND | Hospital BOND | 0.0000000000 | $33,119 | $0 | $0.00 | | |
| HOGEN | Hospital GEN | 0.3902502903 | $33,119 | $0 | $0.00 | | |
| CE | County Current Expense | 0.3708482477 | $33,119 | $0 | $0.00 | | |
| ISLANDEMS | Hospital GEN (EMS) | 0.5000000000 | $33,119 | $0 | $0.00 | | |
| LIB | Library Sno-Isle GEN | 0.3153421757 | $33,119 | $0 | $0.00 | | |
| NWHIDPRMT | P & R N Whidbey GEN | 0.2004466701 | $33,119 | $0 | $0.00 | | |
| SCH201MO | School 201 Enrichment | 0.0000000000 | $33,119 | $0 | $0.00 | | |
| ST | State School | 1.3035497053 | $33,119 | $0 | $0.00 | | |
| ST2 | State School Part 2 | 0.0000000000 | $33,119 | $0 | $0.00 | | |
| | Total Tax Rate: | 5.6089177167 | | | | | |
| | | | | Taxes w/Current Exemptions: | $0.00 | | |
| | | | | Taxes w/o Exemptions: | $280.61 | | |
Improvement / Building
| Improvement #1: | MANUFACTURED HOME | State Code: | Y | 1368.0 sqft | Value: | $33,119 |
| Bathrooms: | 0 | Bedrooms: | 0 | | Ceiling: | PLASTER PAINTED | Cooling: | EVAP NO DUCT | | Exterior Wall/Cover: | VINYL | Floor Covering: | CARPET 100% | | Floor Structure: | SLAB ON GRADE | Foundation: | SLAB | | Heating: | FHA ELECTRIC | Interior Finish: | PLASTER | | Plumbing Fixture Cnt: | 1 | Roof Slope: | FLAT | | Roof Structure/Cover: | CJ ALUMINIUM HEAVY |   |   |
|
| | Type | Description | Class CD | Sub Class CD | Year Built | Area |
| | BAS | BASE/MAIN FLOOR | 3 | 0 | 1970 | 1368.0 |
| | OWR | OPEN WOOD PORCH W/STEPS/ROOF | 3 | 0 | 1970 | 54.0 |
| | OWR | OPEN WOOD PORCH W/STEPS/ROOF | 3 | 0 | 1970 | 80.0 |
Sketch
Property Image
Land
No land segments exist for this property.
Roll Value History
| 2026 | N/A | N/A | N/A | N/A | N/A |
| 2025 | $33,119 | $0 | $0 | $33,119 | $0 |
| 2024 | $34,346 | $0 | $0 | $34,346 | $0 |
| 2023 | $28,790 | $0 | $0 | $28,790 | $0 |
| 2022 | $27,158 | $0 | $0 | $27,158 | $0 |
| 2021 | $25,504 | $0 | $0 | $25,504 | $0 |
| 2020 | $25,675 | $0 | $0 | $25,675 | $0 |
| 2019 | $21,669 | $0 | $0 | $21,669 | $0 |
| 2018 | $22,391 | $0 | $0 | $22,391 | $22,391 |
| 2017 | $13,939 | $0 | $0 | $13,939 | $13,939 |
| 2016 | $13,939 | $0 | $0 | $13,939 | $13,939 |
| 2015 | $13,628 | $0 | $0 | $13,628 | $0 |
| 2014 | $14,991 | $0 | $0 | $14,991 | $14,991 |
| 2013 | $16,354 | $0 | $0 | $16,354 | $16,354 |
| 2012 | $17,035 | $0 | $0 | $17,035 | $17,035 |
| 2011 | $20,242 | $0 | $0 | $20,242 | $0 |
| 2010 | $30,129 | $0 | $0 | $30,129 | $0 |
| 2009 | $31,017 | $0 | $0 | $31,017 | $0 |
| 2008 | $31,027 | $0 | $0 | $31,027 | $0 |
| 2007 | $31,040 | $0 | $0 | $31,040 | $31,040 |
Deed and Sales History
| 1 | 11/23/2019 | MANHOME | Manufactured Home | JONES, LELAH C | JONES, LELAH C | | | $8,000.00 | 41381 | |
| 2 | 03/28/2017 | MANHOME | Manufactured Home | KIEFER, CATHERINE | JONES, LELAH C | | | $23,000.00 | 28603 | |
| 3 | 11/09/2011 | OTHER | Other - Misc. Documents | KIEFER, JOSEPH A | KIEFER, CATHERINE | | | $0.00 | 6068 | |
| 4 | 03/23/2005 | OTHER | Other - Misc. Documents | LAMOTTE, VERNA M | KIEFER, JOSEPH A | | | $22,000.00 | 51131 | 0 |
| 5 | 03/01/1992 | OTHER | Other - Misc. Documents | DE, VRIES, N | LAMOTTE, VERNA M | | | $20,000.00 | 21096 | 0 |
| 6 | 01/01/1900 | OTHER | Other - Misc. Documents | Unknown | DE, VRIES, N | | | $0.00 | 0 | 0 |
Payout Agreement
| No payout information available.. |