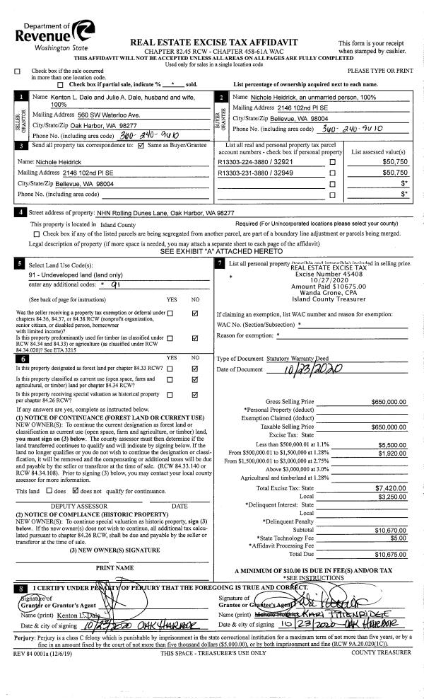
Property
Account |
| Property ID: | 45757 | Abbreviated Legal Description: | S/2 SW SE NW TGW & SUB EZ |
| Geographic ID: | R22901-289-1680 | Agent Code: | |
| Type: | Real | | |
| Tax Area: | 712 - APPRAISER-S Whid Schl Dist, outside Langley, improved, greater than 1 acre | Land Use Code | 11 |
| Open Space: | N | DFL | N |
| Historic Property: | N | Remodel Property: | N |
| Multi-Family Redevelopment: | N | | |
| Township: | 29 | Section: | 01 |
| Range: | R2 |
Location |
| Address: | 2035 GOSS RIDGE RD FREELAND, WA 98249 | Mapsco: | |
| Neighborhood: | Cycle 3 | Map ID: | 283 |
| Neighborhood CD: | 3 |
Owner |
| Name: | MOONDANCER, DIANNE D | Owner ID: | 118901 |
| Mailing Address: | MARIA L HEALY JTWRS 2035 GOSS RIDGE RD FREELAND, WA 98249-9490 | % Ownership: | 100.0000000000% |
| | | Exemptions: | |
Taxes and Assessment Details
Values
| (+) Improvement Homesite Value: | + | $0 | |
| (+) Improvement Non-Homesite Value: | + | $376,800 | |
| (+) Land Homesite Value: | + | $0 | |
| (+) Land Non-Homesite Value: | + | $370,000 | |
| (+) Curr Use (HS): | + | $0 | $0 |
| (+) Curr Use (NHS): | + | $0 | $0 |
| | | -------------------------- | |
| (=) Market Value: | = | $746,800 | |
| (–) Productivity Loss: | – | $0 | |
| | | -------------------------- | |
| (=) Subtotal: | = | $746,800 | |
| (+) Senior Appraised Value: | + | $0 | |
| (+) Non-Senior Appraised Value: | + | $746,800 | |
| | | -------------------------- | |
| (=) Total Appraised Value: | = | $746,800 | |
| (–) Senior Exemption Loss: | – | $0 | |
| (–) Exemption Loss: | – | $0 | |
| | | -------------------------- | |
| (=) Taxable Value: | = | $746,800 | |
Taxing Jurisdiction
| Owner: | MOONDANCER, DIANNE D | | |
| % Ownership: | 100.0000000000% | | |
| Total Value: | $746,800 | | |
| Tax Area: | 712 - APPRAISER-S Whid Schl Dist, outside Langley, improved, greater than 1 acre |
| CF | Conservation Futures | 0.0316035091 | $746,800 | $746,800 | $23.60 | | |
| FIRE3 | Fire & Rescue Dist #3 S Whidbey GEN | 1.2004855531 | $746,800 | $746,800 | $896.52 | | |
| HOBOND | Hospital BOND | 0.1910887512 | $746,800 | $746,800 | $142.71 | | |
| HOGEN | Hospital GEN | 0.3902502903 | $746,800 | $746,800 | $291.44 | | |
| CE | County Current Expense | 0.3708482477 | $746,800 | $746,800 | $276.95 | | |
| CR | County Roads | 0.4584763726 | $746,800 | $746,800 | $342.39 | | |
| ISLANDEMS | Hospital GEN (EMS) | 0.5000000000 | $746,800 | $746,800 | $373.40 | | |
| LIB | Library Sno-Isle GEN | 0.3153421757 | $746,800 | $746,800 | $235.50 | | |
| PORTWHID | Port of S Whidbey GEN | 0.1094540357 | $746,800 | $746,800 | $81.74 | | |
| SCH206BOND | School 206 BOND | 0.3161759235 | $746,800 | $746,800 | $236.12 | | |
| SCH206MO | School 206 Enrichment | 0.4547169547 | $746,800 | $746,800 | $339.58 | | |
| ST | State School | 1.3035497053 | $746,800 | $746,800 | $973.49 | | |
| ST2 | State School Part 2 | 0.8169543533 | $746,800 | $746,800 | $610.10 | | |
| SWHIDPRBD | P & R S Whidbey BOND | 0.0152817568 | $746,800 | $746,800 | $11.41 | | |
| SWHIDPRBD2 | P & R S Whidbey BOND2 | 0.0138911264 | $746,800 | $746,800 | $10.37 | | |
| SWHIDPRMT | P & R S Whidbey GEN | 0.2053334452 | $746,800 | $746,800 | $153.34 | | |
| | Total Tax Rate: | 6.6934522006 | | | | | |
| | | | | Taxes w/Current Exemptions: | $4,998.66 | | |
| | | | | Taxes w/o Exemptions: | $4,998.66 | | |
Improvement / Building
| Improvement #1: | RESIDENTIAL | State Code: | Y | 2057.0 sqft | Value: | $376,800 |
| Bathrooms: | 2.5 | Bedrooms: | 4 | | Ceiling: | DRYWALL PAINTED | Cooling: | HEAT PUMP/CONV/V | | Exterior Wall/Cover: | WOOD SIDING | Floor Covering: | HARDWOOD/CARP 60-40 | | Floor Structure: | WOOD W/SUBFLOOR | Foundation: | CONCRETE | | Interior Finish: | DRYWALL PAINT | Plumbing Fixture Cnt: | 12 | | Roof Slope: | 6" IN 12" | Roof Structure/Cover: | CJ ASPHALT |
|
| | Type | Description | Class CD | Sub Class CD | Year Built | Area |
| | BAS | BASE/MAIN FLOOR | 4 | 0 | 1988 | 992.7 |
| | OP4 | OPEN PORCH W/CEILING-ROOF | 4 | 0 | 1988 | 165.0 |
| | ENP | ENCLOSED PORCH | 4 | 0 | 1988 | 235.6 |
| | UTY | STORAGE/UTILITY | 4 | 0 | 1988 | 339.5 |
| | UPS | UPPER STORY | 4 | 0 | 1988 | 1064.3 |
| | CPD | OPEN CARPORT DIRT FLOOR | 4 | 0 | 1988 | 912.0 |
Sketch
Property Image
Land
| 1 | 32 | AC (03.01-09.99) | 5.0000 | 0.00 | 0.00 | 0.00 | 1.00 | $370,000 | $0 |
Roll Value History
| 2026 | N/A | N/A | N/A | N/A | N/A |
| 2025 | $376,800 | $370,000 | $0 | $746,800 | $746,800 |
| 2024 | $382,087 | $350,000 | $0 | $732,087 | $732,087 |
| 2023 | $387,375 | $330,000 | $0 | $717,375 | $717,375 |
| 2022 | $345,223 | $280,000 | $0 | $625,223 | $625,223 |
| 2021 | $304,241 | $230,000 | $0 | $534,241 | $534,241 |
| 2020 | $296,771 | $190,000 | $0 | $486,771 | $486,771 |
| 2019 | $190,155 | $230,000 | $0 | $420,155 | $420,155 |
| 2018 | $190,841 | $210,000 | $0 | $400,841 | $400,841 |
| 2017 | $192,112 | $180,000 | $0 | $372,112 | $372,112 |
| 2016 | $194,856 | $135,000 | $0 | $329,856 | $329,856 |
| 2015 | $197,601 | $135,000 | $0 | $332,601 | $332,601 |
| 2014 | $200,345 | $125,000 | $0 | $325,345 | $325,345 |
| 2013 | $205,004 | $135,000 | $0 | $340,004 | $340,004 |
| 2012 | $207,675 | $135,000 | $0 | $342,675 | $342,675 |
| 2011 | $210,341 | $135,000 | $0 | $345,341 | $345,341 |
| 2010 | $220,706 | $135,000 | $0 | $355,706 | $355,706 |
| 2009 | $230,313 | $195,000 | $0 | $425,313 | $425,313 |
| 2008 | $233,404 | $200,000 | $0 | $433,404 | $433,404 |
| 2007 | $214,671 | $244,200 | $0 | $458,871 | $458,871 |
Deed and Sales History
| 1 | 11/01/1996 | QCD | Quit Claim Deed | MOONDANCER, DIANNE D | MOONDANCER, DIANNE D | | | $0.00 | 64145 | 96020158 |
| 2 | 03/01/1996 | WD | Warranty Deed | FREDIANI, JOSEPH A | MOONDANCER, DIANNE D | | | $210,000.00 | 61119 | 96005720 |
| 3 | 08/01/1994 | WD | Warranty Deed | FREDIANI, JOSEPH T | FREDIANI, JOSEPH A | | | $0.00 | 43896 | 94020237 |
| 4 | 08/01/1991 | WD | Warranty Deed | HATFIELD, R P | FREDIANI, JOSEPH T | | | $185,762.00 | 12867 | 91012207 |
| 5 | 04/01/1986 | WD | Warranty Deed | TROBERG, PATRICIA | HATFIELD, R P | | | $24,500.00 | 61029 | 86004811 |
| 6 | 01/01/1986 | OTHER | Other - Misc. Documents | ANDERSON, LOREN E | TROBERG, PATRICIA | | | $0.00 | 61421 | 0 |
| 7 | 04/01/1983 | PACD | Purchaser's Assignment | DOUGLASS, PAUL L | ANDERSON, LOREN E | | | $17,550.00 | 31077 | 408760 |
| 8 | 11/01/1979 | EXECUTORD | Executor Deed | TROBERG, PATRICIA | DOUGLASS, PAUL L | | | $5,500.00 | 95440 | 361664 |
| 9 | 03/01/1979 | OTHER | Other - Misc. Documents | Unknown | TROBERG, PATRICIA | | | $0.00 | 91076 | 348841 |
Payout Agreement
| No payout information available.. |